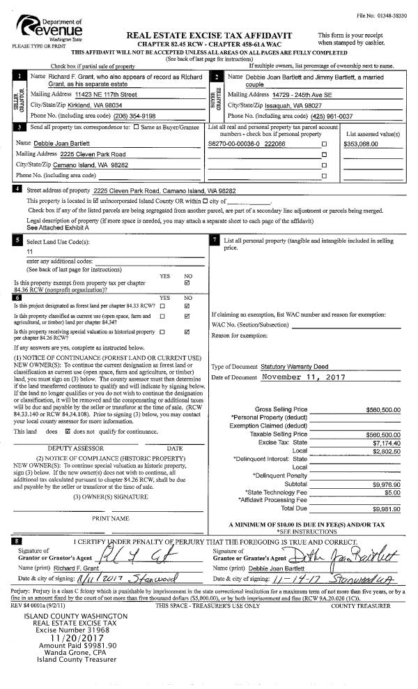
Property
Account |
| Property ID: | 222066 | Abbreviated Legal Description: | CAMANO SHORES 1 LOT 36 |
| Geographic ID: | S6270-00-00036-0 | Agent Code: | |
| Type: | Real | | |
| Tax Area: | 540 - APPRAISER-Stan/Cam Schl Dist, Special Dist, improved & less than 1 acre | Land Use Code | 11 |
| Open Space: | N | DFL | N |
| Historic Property: | N | Remodel Property: | N |
| Multi-Family Redevelopment: | N | | |
| Township: | | Section: | |
| Range: | |
Location |
| Address: | 2225 CLEVEN PARK RD CAMANO ISLAND, WA 98282 | Mapsco: | |
| Neighborhood: | Cycle 5 | Map ID: | 941 |
| Neighborhood CD: | 5 |
Owner |
| Name: | BARTLETT, DEBBIE JOAN | Owner ID: | 282973 |
| Mailing Address: | JIMMY BARTLETT 2225 CLEVEN PARK RD CAMANO ISLAND, WA 98282 | % Ownership: | 100.0000000000% |
| | | Exemptions: | |
Taxes and Assessment Details
Values
| (+) Improvement Homesite Value: | + | $0 | |
| (+) Improvement Non-Homesite Value: | + | $459,475 | |
| (+) Land Homesite Value: | + | $0 | |
| (+) Land Non-Homesite Value: | + | $260,000 | |
| (+) Curr Use (HS): | + | $0 | $0 |
| (+) Curr Use (NHS): | + | $0 | $0 |
| | | -------------------------- | |
| (=) Market Value: | = | $719,475 | |
| (–) Productivity Loss: | – | $0 | |
| | | -------------------------- | |
| (=) Subtotal: | = | $719,475 | |
| (+) Senior Appraised Value: | + | $0 | |
| (+) Non-Senior Appraised Value: | + | $719,475 | |
| | | -------------------------- | |
| (=) Total Appraised Value: | = | $719,475 | |
| (–) Senior Exemption Loss: | – | $0 | |
| (–) Exemption Loss: | – | $0 | |
| | | -------------------------- | |
| (=) Taxable Value: | = | $719,475 | |
Taxing Jurisdiction
| Owner: | BARTLETT, DEBBIE JOAN | | |
| % Ownership: | 100.0000000000% | | |
| Total Value: | $719,475 | | |
| Tax Area: | 540 - APPRAISER-Stan/Cam Schl Dist, Special Dist, improved & less than 1 acre |
| CF | Conservation Futures | 0.0313996660 | $719,475 | $719,475 | $22.59 | | |
| EMS1 | Fire & Rescue Dist #1 Camano GEN (EMS) | 0.4998471806 | $719,475 | $719,475 | $359.63 | | |
| FIRE1 | Fire & Rescue Dist #1 Camano GEN | 1.2496603404 | $719,475 | $719,475 | $899.10 | | |
| FIRE1BOND | Fire & Rescue Dist #1 Camano BOND | 0.1630371212 | $719,475 | $719,475 | $117.30 | | |
| CE | County Current Expense | 0.3674210519 | $719,475 | $719,475 | $264.35 | | |
| CR | County Roads | 0.4614296361 | $719,475 | $719,475 | $331.99 | | |
| LIB | Library Sno-Isle GEN | 0.3039084203 | $719,475 | $719,475 | $218.65 | | |
| SCH205_401 | School 205-401 Enrichment | 1.3697998934 | $719,475 | $719,475 | $985.54 | | |
| SCH205BOND | School 205-401 BOND | 0.9354199323 | $719,475 | $719,475 | $673.01 | | |
| ST | State School | 1.4761226122 | $719,475 | $719,475 | $1,062.03 | | |
| ST2 | State School Part 2 | 0.7953803475 | $719,475 | $719,475 | $572.26 | | |
| | Total Tax Rate: | 7.6534262019 | | | | | |
| | | | | Taxes w/Current Exemptions: | $5,506.45 | | |
| | | | | Taxes w/o Exemptions: | $5,506.45 | | |
Improvement / Building
| Improvement #1: | RESIDENTIAL | State Code: | Y | 2702.3 sqft | Value: | $459,475 |
| Bathrooms: | 2 | Bedrooms: | 3 | | Ceiling: | DRYWALL PAINTED | Exterior Wall/Cover: | CEMENT FIBER | | Floor Covering: | HARDWOOD/CARP 80-20 | Floor Structure: | WOOD W/SUBFLOOR | | Foundation: | CONCRETE | Heating: | FHA GAS | | Interior Finish: | DRYWALL PAINT | Plumbing Fixture Cnt: | 9 | | Roof Slope: | 4" IN 12" | Roof Structure/Cover: | CJ ASPHALT |
|
| | Type | Description | Class CD | Sub Class CD | Year Built | Area |
| | BAS | BASE/MAIN FLOOR | 4 | 0 | 2003 | 1625.6 |
| | BIG | BUILT IN GARAGE | 4 | 0 | 2003 | 517.1 |
| | OWP | OPEN WOOD PORCH W/STEPS | 4 | 0 | 2003 | 235.7 |
| | OWP | OPEN WOOD PORCH W/STEPS | 4 | 0 | 2003 | 456.0 |
| | DWN | DOWNSTAIRS LIVING AREA | 4 | 0 | 2003 | 1076.7 |
Sketch
Property Image
Land
| 1 | 13 | SQ (06001-08000) | 0.1300 | 5662.80 | 0.00 | 0.00 | 1.00 | $260,000 | $0 |
Roll Value History
| 2026 | N/A | N/A | N/A | N/A | N/A |
| 2025 | $459,475 | $260,000 | $0 | $719,475 | $719,475 |
| 2024 | $464,864 | $250,000 | $0 | $714,864 | $714,864 |
| 2023 | $470,254 | $250,000 | $0 | $720,254 | $720,254 |
| 2022 | $430,693 | $220,000 | $0 | $650,693 | $650,693 |
| 2021 | $378,763 | $200,000 | $0 | $578,763 | $578,763 |
| 2020 | $368,961 | $150,000 | $0 | $518,961 | $518,961 |
| 2019 | $284,395 | $180,000 | $0 | $464,395 | $464,395 |
| 2018 | $285,173 | $175,000 | $0 | $460,173 | $460,173 |
| 2017 | $228,068 | $125,000 | $0 | $353,068 | $353,068 |
| 2016 | $230,660 | $110,000 | $0 | $340,660 | $340,660 |
| 2015 | $231,165 | $85,000 | $0 | $316,165 | $316,165 |
| 2014 | $233,821 | $85,000 | $0 | $318,821 | $318,821 |
| 2013 | $237,870 | $85,000 | $0 | $322,870 | $322,870 |
| 2012 | $248,528 | $110,112 | $0 | $358,640 | $358,640 |
| 2011 | $251,289 | $137,640 | $0 | $388,929 | $388,929 |
| 2010 | $258,059 | $137,640 | $0 | $395,699 | $395,699 |
| 2009 | $325,508 | $160,000 | $0 | $485,508 | $485,508 |
| 2008 | $332,377 | $190,000 | $0 | $522,377 | $522,377 |
| 2007 | $332,417 | $190,000 | $0 | $522,417 | $522,417 |
Deed and Sales History
| 1 | 11/11/2017 | WD | Warranty Deed | GRANT, RICHARD F | BARTLETT, DEBBIE JOAN | | | $560,500.00 | 31968 | 4434392 |
| 2 | 03/18/2016 | DECREE | Divorce Decree/Legal Separation | GRANT, RICHARD | GRANT, RICHARD F | | | $0.00 | 23633 | 4396304 |
| 3 | 01/22/2004 | WD | Warranty Deed | SEAVIEW HOMES INC, | GRANT, RICHARD | | | $310,000.00 | 40303 | 4089531 |
| 4 | 04/22/2003 | QCD | Quit Claim Deed | CHRISTIAN, KEITH | SEAVIEW HOMES INC, | | | $0.00 | 31742 | 4056652 |
| 5 | 05/30/2002 | WD | Warranty Deed | REED, RODNEY K | CHRISTIAN, KEITH | | | $45,000.00 | 22116 | 4021948 |
| 6 | 02/01/1990 | WD | Warranty Deed | CHRISTIANSON, JAMES L | REED, RODNEY K | | | $17,475.00 | 1210 | 90003889 |
| 7 | 02/01/1979 | OTHER | Other - Misc. Documents | Unknown | CHRISTIANSON, JAMES L | | | $8,500.00 | 90914 | 348316 |
Payout Agreement
| No payout information available.. |