Property
Account |
| Property ID: | 222182 | Abbreviated Legal Description: | CAMANO SHORES 1 LOT 48 |
| Geographic ID: | S6270-00-00048-0 | Agent Code: | |
| Type: | Real | | |
| Tax Area: | 549 - APPRAISER-Stan/Cam Schl Dist, Special Dist, vacant & 50 acres or less | Land Use Code | 99 |
| Open Space: | N | DFL | N |
| Historic Property: | N | Remodel Property: | N |
| Multi-Family Redevelopment: | N | | |
| Township: | | Section: | |
| Range: | |
Location |
| Address: | 2216 CLEVEN PARK RD CAMANO ISLAND, WA 98282 | Mapsco: | |
| Neighborhood: | Cycle 5 | Map ID: | 941 |
| Neighborhood CD: | 5 |
Owner |
| Name: | CORNERSTONE HOMES NW, LLC | Owner ID: | 313460 |
| Mailing Address: | 13805 SMOKEY POINT BLVD SUITE 101 MARYSVILLE, WA 98271 | % Ownership: | 100.0000000000% |
| | | Exemptions: | |
Taxes and Assessment Details
Values
| (+) Improvement Homesite Value: | + | $0 | |
| (+) Improvement Non-Homesite Value: | + | $0 | |
| (+) Land Homesite Value: | + | $0 | |
| (+) Land Non-Homesite Value: | + | $200,000 | |
| (+) Curr Use (HS): | + | $0 | $0 |
| (+) Curr Use (NHS): | + | $0 | $0 |
| | | -------------------------- | |
| (=) Market Value: | = | $200,000 | |
| (–) Productivity Loss: | – | $0 | |
| | | -------------------------- | |
| (=) Subtotal: | = | $200,000 | |
| (+) Senior Appraised Value: | + | $0 | |
| (+) Non-Senior Appraised Value: | + | $200,000 | |
| | | -------------------------- | |
| (=) Total Appraised Value: | = | $200,000 | |
| (–) Senior Exemption Loss: | – | $0 | |
| (–) Exemption Loss: | – | $0 | |
| | | -------------------------- | |
| (=) Taxable Value: | = | $200,000 | |
Taxing Jurisdiction
| Owner: | CORNERSTONE HOMES NW, LLC | | |
| % Ownership: | 100.0000000000% | | |
| Total Value: | $200,000 | | |
| Tax Area: | 549 - APPRAISER-Stan/Cam Schl Dist, Special Dist, vacant & 50 acres or less |
| CF | Conservation Futures | 0.0313996660 | $200,000 | $200,000 | $6.28 | | |
| EMS1 | Fire & Rescue Dist #1 Camano GEN (EMS) | 0.4998471806 | $200,000 | $200,000 | $99.97 | | |
| CE | County Current Expense | 0.3674210519 | $200,000 | $200,000 | $73.48 | | |
| CR | County Roads | 0.4614296361 | $200,000 | $200,000 | $92.29 | | |
| LIB | Library Sno-Isle GEN | 0.3039084203 | $200,000 | $200,000 | $60.78 | | |
| SCH205_401 | School 205-401 Enrichment | 1.3697998934 | $200,000 | $200,000 | $273.96 | | |
| SCH205BOND | School 205-401 BOND | 0.9354199323 | $200,000 | $200,000 | $187.08 | | |
| ST | State School | 1.4761226122 | $200,000 | $200,000 | $295.22 | | |
| ST2 | State School Part 2 | 0.7953803475 | $200,000 | $200,000 | $159.08 | | |
| | Total Tax Rate: | 6.2407287403 | | | | | |
| | | | | Taxes w/Current Exemptions: | $1,248.14 | | |
| | | | | Taxes w/o Exemptions: | $1,248.14 | | |
Improvement / Building
Sketch
| No sketches available for this property. |
Property Image
Land
| 1 | 13 | SQ (06001-08000) | 0.0000 | 0.00 | 0.00 | 0.00 | 1.00 | $200,000 | $0 |
Roll Value History
| 2026 | N/A | N/A | N/A | N/A | N/A |
| 2025 | $0 | $200,000 | $0 | $200,000 | $200,000 |
| 2024 | $0 | $200,000 | $0 | $200,000 | $200,000 |
| 2023 | $0 | $200,000 | $0 | $200,000 | $200,000 |
| 2022 | $0 | $200,000 | $0 | $200,000 | $200,000 |
| 2021 | $0 | $175,000 | $0 | $175,000 | $175,000 |
| 2020 | $0 | $130,000 | $0 | $130,000 | $130,000 |
| 2019 | $0 | $130,000 | $0 | $130,000 | $130,000 |
| 2018 | $0 | $110,000 | $0 | $110,000 | $110,000 |
| 2017 | $0 | $95,000 | $0 | $95,000 | $95,000 |
| 2016 | $0 | $105,000 | $0 | $105,000 | $105,000 |
| 2015 | $0 | $109,740 | $0 | $109,740 | $109,740 |
| 2014 | $0 | $109,740 | $0 | $109,740 | $109,740 |
| 2013 | $0 | $109,740 | $0 | $109,740 | $109,740 |
| 2012 | $0 | $109,740 | $0 | $109,740 | $109,740 |
| 2011 | $0 | $109,740 | $0 | $109,740 | $109,740 |
| 2010 | $0 | $109,740 | $0 | $109,740 | $109,740 |
| 2009 | $0 | $127,500 | $0 | $127,500 | $127,500 |
| 2008 | $0 | $127,500 | $0 | $127,500 | $127,500 |
| 2007 | $0 | $127,500 | $0 | $127,500 | $127,500 |
Deed and Sales History
| 1 | 08/09/2024 | WD | Warranty Deed | BODE TTEE, BRIAN JUDE | CORNERSTONE HOMES NW, LLC | | | $470,000.00 | 60884 | 4575631 |
|   | |
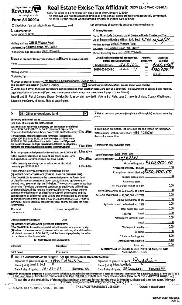
| 2 | 12/22/2021 | QCD | Quit Claim Deed | BODE TTEE, BRIAN JUDE | BODE TTEE, BRIAN JUDE | | | $0.00 | 51473 | 4536688 |
| 3 | 09/17/2018 | WD | Warranty Deed | GHETMIRI, KAMAL | BOOTH, JANET S | | | $300,000.00 | 36005 | 4452172 |
|   | |
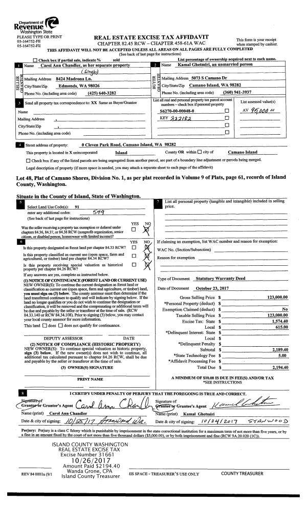
| 4 | 10/23/2017 | WD | Warranty Deed | CHANDLER, CAROL A | GHETMIRI, KAMAL | | | $123,000.00 | 31661 | 4432827 |
| 5 | 05/23/2002 | PRD | Personal Representatives Deed | CHANDLER, BILL H | CHANDLER, CAROL A | | | $0.00 | 22024 | 4021408 |
| 6 | 08/01/1988 | DECREE | Divorce Decree/Legal Separation | CHANDLER, BILL H | CHANDLER, BILL H | | | $0.00 | 82731 | 88010319 |
| 7 | 01/01/1900 | OTHER | Other - Misc. Documents | Unknown | CHANDLER, BILL H | | | $0.00 | 0 | 0 |
Payout Agreement
| No payout information available.. |