Property
Account |
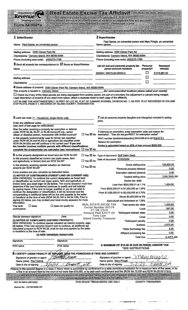
| Property ID: | 222244 | Abbreviated Legal Description: | CAMANO SHORES 1 LOT 54 TGW N15' OF LOT 55 |
| Geographic ID: | S6270-00-00054-0 | Agent Code: | |
| Type: | Real | | |
| Tax Area: | 540 - APPRAISER-Stan/Cam Schl Dist, Special Dist, improved & less than 1 acre | Land Use Code | 11 |
| Open Space: | N | DFL | N |
| Historic Property: | N | Remodel Property: | N |
| Multi-Family Redevelopment: | N | | |
| Township: | | Section: | |
| Range: | |
Location |
| Address: | 2230 CLEVEN PARK RD CAMANO ISLAND, WA 98282 | Mapsco: | |
| Neighborhood: | Cycle 5 | Map ID: | 941 |
| Neighborhood CD: | 5 |
Owner |
| Name: | GARCIA, PAUL | Owner ID: | 313060 |
| Mailing Address: | MARY PRINGLE 2230 CLEVEN PARK RD CAMANO ISLAND, WA 98282 | % Ownership: | 100.0000000000% |
| | | Exemptions: | |
Taxes and Assessment Details
Values
| (+) Improvement Homesite Value: | + | $0 | |
| (+) Improvement Non-Homesite Value: | + | $335,447 | |
| (+) Land Homesite Value: | + | $0 | |
| (+) Land Non-Homesite Value: | + | $270,000 | |
| (+) Curr Use (HS): | + | $0 | $0 |
| (+) Curr Use (NHS): | + | $0 | $0 |
| | | -------------------------- | |
| (=) Market Value: | = | $605,447 | |
| (–) Productivity Loss: | – | $0 | |
| | | -------------------------- | |
| (=) Subtotal: | = | $605,447 | |
| (+) Senior Appraised Value: | + | $0 | |
| (+) Non-Senior Appraised Value: | + | $605,447 | |
| | | -------------------------- | |
| (=) Total Appraised Value: | = | $605,447 | |
| (–) Senior Exemption Loss: | – | $0 | |
| (–) Exemption Loss: | – | $0 | |
| | | -------------------------- | |
| (=) Taxable Value: | = | $605,447 | |
Taxing Jurisdiction
| Owner: | GARCIA, PAUL | | |
| % Ownership: | 100.0000000000% | | |
| Total Value: | $605,447 | | |
| Tax Area: | 540 - APPRAISER-Stan/Cam Schl Dist, Special Dist, improved & less than 1 acre |
| CF | Conservation Futures | 0.0313996660 | $605,447 | $605,447 | $19.01 | | |
| EMS1 | Fire & Rescue Dist #1 Camano GEN (EMS) | 0.4998471806 | $605,447 | $605,447 | $302.63 | | |
| FIRE1 | Fire & Rescue Dist #1 Camano GEN | 1.2496603404 | $605,447 | $605,447 | $756.60 | | |
| FIRE1BOND | Fire & Rescue Dist #1 Camano BOND | 0.1630371212 | $605,447 | $605,447 | $98.71 | | |
| CE | County Current Expense | 0.3674210519 | $605,447 | $605,447 | $222.45 | | |
| CR | County Roads | 0.4614296361 | $605,447 | $605,447 | $279.37 | | |
| LIB | Library Sno-Isle GEN | 0.3039084203 | $605,447 | $605,447 | $184.00 | | |
| SCH205_401 | School 205-401 Enrichment | 1.3697998934 | $605,447 | $605,447 | $829.34 | | |
| SCH205BOND | School 205-401 BOND | 0.9354199323 | $605,447 | $605,447 | $566.35 | | |
| ST | State School | 1.4761226122 | $605,447 | $605,447 | $893.71 | | |
| ST2 | State School Part 2 | 0.7953803475 | $605,447 | $605,447 | $481.56 | | |
| | Total Tax Rate: | 7.6534262019 | | | | | |
| | | | | Taxes w/Current Exemptions: | $4,633.73 | | |
| | | | | Taxes w/o Exemptions: | $4,633.73 | | |
Improvement / Building
| Improvement #1: | RESIDENTIAL | State Code: | Y | 2560.0 sqft | Value: | $335,447 |
| Bathrooms: | 2.2 | Bedrooms: | 3 | | Ceiling: | DRYWALL PAINTED | Exterior Wall/Cover: | WOOD SIDING | | Floor Covering: | VINYL 100% | Floor Structure: | WOOD W/SUBFLOOR | | Foundation: | CONCRETE | Heating: | WALL HEAT ELECTRIC | | Interior Finish: | DRYWALL PAINT | Plumbing Fixture Cnt: | 14 | | Roof Slope: | 4" IN 12" | Roof Structure/Cover: | CJ ASPHALT |
|
| | Type | Description | Class CD | Sub Class CD | Year Built | Area |
| | BAS | BASE/MAIN FLOOR | 3 | 0 | 1990 | 1554.0 |
| | OWP | OPEN WOOD PORCH W/STEPS | 3 | 0 | 1990 | 424.0 |
| | OWR | OPEN WOOD PORCH W/STEPS/ROOF | 3 | 0 | 1990 | 18.0 |
| | DWN | DOWNSTAIRS LIVING AREA | 3 | 0 | 1990 | 1006.0 |
Sketch
Property Image
Land
| 1 | 14 | SQ (08001-12000) | 0.0000 | 0.00 | 0.00 | 0.00 | 1.00 | $270,000 | $0 |
Roll Value History
| 2026 | N/A | N/A | N/A | N/A | N/A |
| 2025 | $335,447 | $270,000 | $0 | $605,447 | $605,447 |
| 2024 | $301,020 | $250,000 | $0 | $551,020 | $551,020 |
| 2023 | $265,987 | $250,000 | $0 | $515,987 | $515,987 |
| 2022 | $244,057 | $220,000 | $0 | $464,057 | $464,057 |
| 2021 | $192,736 | $200,000 | $0 | $392,736 | $392,736 |
| 2020 | $188,352 | $150,000 | $0 | $338,352 | $338,352 |
| 2019 | $144,085 | $180,000 | $0 | $324,085 | $324,085 |
| 2018 | $144,591 | $175,000 | $0 | $319,591 | $319,591 |
| 2017 | $145,602 | $125,000 | $0 | $270,602 | $270,602 |
| 2016 | $147,624 | $110,000 | $0 | $257,624 | $257,624 |
| 2015 | $156,353 | $110,112 | $0 | $266,465 | $266,465 |
| 2014 | $158,465 | $110,112 | $0 | $268,577 | $268,577 |
| 2013 | $160,577 | $110,112 | $0 | $270,689 | $270,689 |
| 2012 | $162,690 | $110,112 | $0 | $272,802 | $272,802 |
| 2011 | $164,803 | $137,640 | $0 | $302,443 | $302,443 |
| 2010 | $172,226 | $137,640 | $0 | $309,866 | $309,866 |
| 2009 | $179,648 | $160,000 | $0 | $339,648 | $339,648 |
| 2008 | $181,793 | $125,000 | $0 | $306,793 | $306,793 |
| 2007 | $183,939 | $125,000 | $0 | $308,939 | $308,939 |
Deed and Sales History
| 1 | 07/02/2024 | QCD | Quit Claim Deed | GARCIA, PAUL | GARCIA, PAUL | | | $129,500.00 | 60574 | 4574341 |
| 2 | 11/27/2023 | WD | Warranty Deed | LONSINGER, STEPHEN ROBERT | GARCIA, PAUL | | | $649,000.00 | 58628 | 4567122 |
| 3 | 08/30/2018 | WD | Warranty Deed | PIASKOWSKI JR, HENERY | LONSINGER, STEPHEN ROBERT | | | $414,500.00 | 35809 | 4451338 |
| 4 | 01/23/2007 | QCD | Quit Claim Deed | PIASKOWSKI JR, HENERY | PIASKOWSKI JR, HENERY | | | $0.00 | 70247 | 4192571 |
| 5 | 12/08/2000 | BLA | DNU - Boundary Line Adjustment | RICCI, TED C | RICCI, TED C & ANITA J | | | $0.00 | 68889 | 20008612 |
| 6 | 11/30/2000 | WD | Warranty Deed | RICCI, TED C & ANITA J | PIASKOWSKI JR, HENERY | | | $205,000.00 | 4619 | 20021456 |
| 7 | 11/27/2000 | QCD | Quit Claim Deed | RICCI, TED C & ANITA J | RICCI, TED C & ANITA J | | | $0.00 | 4469 | 20020596 |
| 8 | 03/01/1991 | WD | Warranty Deed | JOHNSON, DENNIS D | RICCI, TED C | | | $159,000.00 | 10835 | 91003674 |
| 9 | 04/01/1990 | WD | Warranty Deed | EQUIPCO, LEASING | JOHNSON, DENNIS D | | | $28,500.00 | 2760 | 90009042 |
| 10 | 05/01/1988 | QCD | Quit Claim Deed | EQUIPCO, LEASING | EQUIPCO, LEASING | | | $0.00 | 92520 | 89008603 |
| 11 | 04/01/1988 | WD | Warranty Deed | RUDOLPH, KARIN M | EQUIPCO, LEASING | | | $11,177.00 | 81140 | 88004320 |
| 12 | 01/01/1985 | WD | Warranty Deed | RUDOLPH, NATHANIEL J | RUDOLPH, KARIN M | | | $0.00 | 50013 | 85000067 |
| 13 | 12/01/1984 | WD | Warranty Deed | RUDOLPH, NATHANIEL J | RUDOLPH, NATHANIEL J | | | $0.00 | 43637 | 0 |
| 14 | 11/01/1967 | EXECUTORD | Executor Deed | PARKWOOD, DEVELOPMENT C | RUDOLPH, NATHANIEL J | | | $0.00 | 29113 | 0 |
| 15 | 01/01/1900 | OTHER | Other - Misc. Documents | Unknown | PARKWOOD, DEVELOPMENT C | | | $0.00 | 0 | 0 |
Payout Agreement
| No payout information available.. |