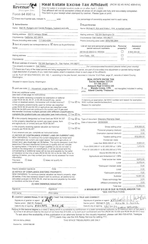
Property
Account |
| Property ID: | 222645 | Abbreviated Legal Description: | CAM VIEW TERR 1 LOT 18 TGW USE OF TIDES 14-31-2E PER 35D347 TGW EZ AF#95017509 |
| Geographic ID: | S6275-00-00018-0 | Agent Code: | |
| Type: | Real | | |
| Tax Area: | 510 - APPRAISER-Stan/Cam Schl Dist, improved & 1 acre or less | Land Use Code | 11 |
| Open Space: | N | DFL | N |
| Historic Property: | N | Remodel Property: | N |
| Multi-Family Redevelopment: | N | | |
| Township: | | Section: | |
| Range: | |
Location |
| Address: | 1155 WESTMOOR PLACE CAMANO ISLAND, WA 98282 | Mapsco: | |
| Neighborhood: | Cycle 5 | Map ID: | 481 |
| Neighborhood CD: | 5 |
Owner |
| Name: | HUNTSMAN JR, JOHN | Owner ID: | 185226 |
| Mailing Address: | JEANETTE HUNTSMAN 1155 WESTMOOR PLACE CAMANO ISLAND, WA 98282-8426 | % Ownership: | 100.0000000000% |
| | | Exemptions: | |
Taxes and Assessment Details
Values
| (+) Improvement Homesite Value: | + | $0 | |
| (+) Improvement Non-Homesite Value: | + | $209,280 | |
| (+) Land Homesite Value: | + | $0 | |
| (+) Land Non-Homesite Value: | + | $270,000 | |
| (+) Curr Use (HS): | + | $0 | $0 |
| (+) Curr Use (NHS): | + | $0 | $0 |
| | | -------------------------- | |
| (=) Market Value: | = | $479,280 | |
| (–) Productivity Loss: | – | $0 | |
| | | -------------------------- | |
| (=) Subtotal: | = | $479,280 | |
| (+) Senior Appraised Value: | + | $0 | |
| (+) Non-Senior Appraised Value: | + | $479,280 | |
| | | -------------------------- | |
| (=) Total Appraised Value: | = | $479,280 | |
| (–) Senior Exemption Loss: | – | $0 | |
| (–) Exemption Loss: | – | $0 | |
| | | -------------------------- | |
| (=) Taxable Value: | = | $479,280 | |
Taxing Jurisdiction
| Owner: | HUNTSMAN JR, JOHN | | |
| % Ownership: | 100.0000000000% | | |
| Total Value: | $479,280 | | |
| Tax Area: | 510 - APPRAISER-Stan/Cam Schl Dist, improved & 1 acre or less |
| CF | Conservation Futures | 0.0313996660 | $479,280 | $479,280 | $15.05 | | |
| EMS1 | Fire & Rescue Dist #1 Camano GEN (EMS) | 0.4998471806 | $479,280 | $479,280 | $239.57 | | |
| FIRE1 | Fire & Rescue Dist #1 Camano GEN | 1.2496603404 | $479,280 | $479,280 | $598.94 | | |
| FIRE1BOND | Fire & Rescue Dist #1 Camano BOND | 0.1630371212 | $479,280 | $479,280 | $78.14 | | |
| CE | County Current Expense | 0.3674210519 | $479,280 | $479,280 | $176.10 | | |
| CR | County Roads | 0.4614296361 | $479,280 | $479,280 | $221.15 | | |
| LIB | Library Sno-Isle GEN | 0.3039084203 | $479,280 | $479,280 | $145.66 | | |
| SCH205_401 | School 205-401 Enrichment | 1.3697998934 | $479,280 | $479,280 | $656.52 | | |
| SCH205BOND | School 205-401 BOND | 0.9354199323 | $479,280 | $479,280 | $448.33 | | |
| ST | State School | 1.4761226122 | $479,280 | $479,280 | $707.48 | | |
| ST2 | State School Part 2 | 0.7953803475 | $479,280 | $479,280 | $381.21 | | |
| | Total Tax Rate: | 7.6534262019 | | | | | |
| | | | | Taxes w/Current Exemptions: | $3,668.15 | | |
| | | | | Taxes w/o Exemptions: | $3,668.15 | | |
Improvement / Building
| Improvement #1: | RESIDENTIAL | State Code: | Y | 1758.0 sqft | Value: | $209,280 |
| Bathrooms: | 2 | Bedrooms: | 2 | | Ceiling: | DRYWALL PAINTED | Cooling: | HEAT PUMP/CONV/V | | Exterior Wall/Cover: | WOOD SIDING | Floor Covering: | CARPET/VINYL 80-20 | | Floor Structure: | WOOD W/SUBFLOOR | Foundation: | CONCRETE | | Interior Finish: | DRYWALL PAINT | Plumbing Fixture Cnt: | 10 | | Roof Slope: | 4" IN 12" | Roof Structure/Cover: | CJ ASPHALT |
|
| | Type | Description | Class CD | Sub Class CD | Year Built | Area |
| | BAS | BASE/MAIN FLOOR | 3 | 0 | 1966 | 999.0 |
| | BGR | BASEMENT GARAGE | 3 | 0 | 1966 | 240.0 |
| | OWP | OPEN WOOD PORCH W/STEPS | 3 | 0 | 1966 | 162.0 |
| | OWR | OPEN WOOD PORCH W/STEPS/ROOF | 3 | 0 | 1966 | 152.0 |
| | DWN | DOWNSTAIRS LIVING AREA | 3 | 0 | 1966 | 759.0 |
Sketch
Property Image
Land
| 1 | 14 | SQ (08001-12000) | 0.0000 | 0.00 | 0.00 | 0.00 | 1.00 | $270,000 | $0 |
Roll Value History
| 2026 | N/A | N/A | N/A | N/A | N/A |
| 2025 | $209,280 | $270,000 | $0 | $479,280 | $479,280 |
| 2024 | $212,488 | $270,000 | $0 | $482,488 | $482,488 |
| 2023 | $215,696 | $210,000 | $0 | $425,696 | $425,696 |
| 2022 | $198,227 | $210,000 | $0 | $408,227 | $408,227 |
| 2021 | $174,899 | $150,000 | $0 | $324,899 | $324,899 |
| 2020 | $170,872 | $150,000 | $0 | $320,872 | $320,872 |
| 2019 | $126,561 | $170,000 | $0 | $296,561 | $296,561 |
| 2018 | $127,006 | $130,000 | $0 | $257,006 | $257,006 |
| 2017 | $127,893 | $110,000 | $0 | $237,893 | $237,893 |
| 2016 | $129,669 | $110,000 | $0 | $239,669 | $239,669 |
| 2015 | $121,865 | $75,000 | $0 | $196,865 | $196,865 |
| 2014 | $123,659 | $75,000 | $0 | $198,659 | $198,659 |
| 2013 | $125,452 | $75,000 | $0 | $200,452 | $200,452 |
| 2012 | $127,246 | $82,400 | $0 | $209,646 | $209,646 |
| 2011 | $129,040 | $103,000 | $0 | $232,040 | $232,040 |
| 2010 | $140,293 | $103,000 | $0 | $243,293 | $243,293 |
| 2009 | $146,278 | $125,000 | $0 | $271,278 | $271,278 |
| 2008 | $148,201 | $96,800 | $0 | $245,001 | $245,001 |
| 2007 | $150,099 | $96,800 | $0 | $246,899 | $246,899 |
Deed and Sales History
| 1 | 04/02/2001 | WD | Warranty Deed | HANSEN, R E | HUNTSMAN JR, JOHN | | | $195,000.00 | 11223 | 20029657 |
| 2 | 08/01/1990 | WD | Warranty Deed | LAWRENCE, ALLAN H | HANSEN, R E | | | $139,000.00 | 5120 | 90017005 |
| 3 | 01/01/1900 | OTHER | Other - Misc. Documents | Unknown | LAWRENCE, ALLAN H | | | $0.00 | 0 | 0 |
Payout Agreement
| No payout information available.. |