Property
Account |
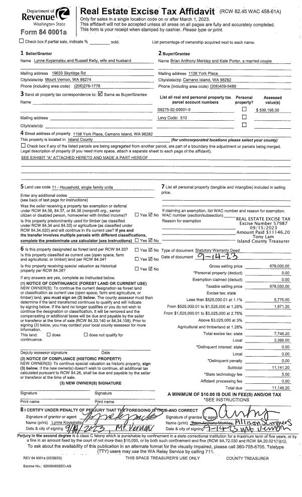
| Property ID: | 222707 | Abbreviated Legal Description: | CAM VIEW TERR 2 LOT 1 TGW EZ AF#95017509 |
| Geographic ID: | S6275-02-00001-0 | Agent Code: | |
| Type: | Real | | |
| Tax Area: | 510 - APPRAISER-Stan/Cam Schl Dist, improved & 1 acre or less | Land Use Code | 11 |
| Open Space: | N | DFL | N |
| Historic Property: | N | Remodel Property: | N |
| Multi-Family Redevelopment: | N | | |
| Township: | | Section: | |
| Range: | |
Location |
| Address: | 1138 YORK PLACE CAMANO ISLAND, WA 98282 | Mapsco: | |
| Neighborhood: | Cycle 5 | Map ID: | 481 |
| Neighborhood CD: | 5 |
Owner |
| Name: | MERKLEY, BRIAN ANTHONY | Owner ID: | 310074 |
| Mailing Address: | KATE PORTER 1138 YORK PL CAMANO ISLAND, WA 98282 | % Ownership: | 100.0000000000% |
| | | Exemptions: | |
Taxes and Assessment Details
Values
| (+) Improvement Homesite Value: | + | $0 | |
| (+) Improvement Non-Homesite Value: | + | $380,579 | |
| (+) Land Homesite Value: | + | $0 | |
| (+) Land Non-Homesite Value: | + | $270,000 | |
| (+) Curr Use (HS): | + | $0 | $0 |
| (+) Curr Use (NHS): | + | $0 | $0 |
| | | -------------------------- | |
| (=) Market Value: | = | $650,579 | |
| (–) Productivity Loss: | – | $0 | |
| | | -------------------------- | |
| (=) Subtotal: | = | $650,579 | |
| (+) Senior Appraised Value: | + | $0 | |
| (+) Non-Senior Appraised Value: | + | $650,579 | |
| | | -------------------------- | |
| (=) Total Appraised Value: | = | $650,579 | |
| (–) Senior Exemption Loss: | – | $0 | |
| (–) Exemption Loss: | – | $0 | |
| | | -------------------------- | |
| (=) Taxable Value: | = | $650,579 | |
Taxing Jurisdiction
| Owner: | MERKLEY, BRIAN ANTHONY | | |
| % Ownership: | 100.0000000000% | | |
| Total Value: | $650,579 | | |
| Tax Area: | 510 - APPRAISER-Stan/Cam Schl Dist, improved & 1 acre or less |
| CF | Conservation Futures | 0.0313996660 | $650,579 | $650,579 | $20.43 | | |
| EMS1 | Fire & Rescue Dist #1 Camano GEN (EMS) | 0.4998471806 | $650,579 | $650,579 | $325.19 | | |
| FIRE1 | Fire & Rescue Dist #1 Camano GEN | 1.2496603404 | $650,579 | $650,579 | $813.00 | | |
| FIRE1BOND | Fire & Rescue Dist #1 Camano BOND | 0.1630371212 | $650,579 | $650,579 | $106.07 | | |
| CE | County Current Expense | 0.3674210519 | $650,579 | $650,579 | $239.04 | | |
| CR | County Roads | 0.4614296361 | $650,579 | $650,579 | $300.20 | | |
| LIB | Library Sno-Isle GEN | 0.3039084203 | $650,579 | $650,579 | $197.72 | | |
| SCH205_401 | School 205-401 Enrichment | 1.3697998934 | $650,579 | $650,579 | $891.16 | | |
| SCH205BOND | School 205-401 BOND | 0.9354199323 | $650,579 | $650,579 | $608.56 | | |
| ST | State School | 1.4761226122 | $650,579 | $650,579 | $960.33 | | |
| ST2 | State School Part 2 | 0.7953803475 | $650,579 | $650,579 | $517.46 | | |
| | Total Tax Rate: | 7.6534262019 | | | | | |
| | | | | Taxes w/Current Exemptions: | $4,979.16 | | |
| | | | | Taxes w/o Exemptions: | $4,979.16 | | |
Improvement / Building
| Improvement #1: | RESIDENTIAL | State Code: | Y | 2522.4 sqft | Value: | $380,579 |
| Bathrooms: | 4 | Bedrooms: | 4 | | Ceiling: | DRYWALL PAINTED | Exterior Wall/Cover: | WOOD SIDING | | Floor Covering: | CARPET/VINYL 20-80 | Floor Structure: | WOOD W/SUBFLOOR | | Foundation: | CONCRETE | Heating: | FHA ELECTRIC | | Interior Finish: | DRYWALL PAINT | Plumbing Fixture Cnt: | 14 | | Roof Slope: | 6" IN 12" | Roof Structure/Cover: | CJ ASPHALT |
|
| | Type | Description | Class CD | Sub Class CD | Year Built | Area |
| | BAS | BASE/MAIN FLOOR | 3 | 0 | 1988 | 1234.4 |
| | OP4 | OPEN PORCH W/CEILING-ROOF | 3 | 0 | 1988 | 17.5 |
| | AGR | ATTACHED GARAGE | 3 | 0 | 1988 | 464.0 |
| | UTY | STORAGE/UTILITY | 3 | 0 | 1988 | 55.0 |
| | UTY | STORAGE/UTILITY | 3 | 0 | 1988 | 72.0 |
| | OWP | OPEN WOOD PORCH W/STEPS | 3 | 0 | 1988 | 488.8 |
| | OWP | OPEN WOOD PORCH W/STEPS | 3 | 0 | 1988 | 40.0 |
| | DWN | DOWNSTAIRS LIVING AREA | 3 | 0 | 1988 | 1288.0 |
| | OP4 | OPEN PORCH W/CEILING-ROOF | 3 | 0 | 1988 | 308.0 |
Sketch
Property Image
Land
| 1 | 14 | SQ (08001-12000) | 0.0000 | 0.00 | 0.00 | 0.00 | 1.00 | $270,000 | $0 |
Roll Value History
| 2026 | N/A | N/A | N/A | N/A | N/A |
| 2025 | $380,579 | $270,000 | $0 | $650,579 | $650,579 |
| 2024 | $385,047 | $270,000 | $0 | $655,047 | $655,047 |
| 2023 | $329,195 | $210,000 | $0 | $539,195 | $539,195 |
| 2022 | $301,839 | $210,000 | $0 | $511,839 | $511,839 |
| 2021 | $255,329 | $150,000 | $0 | $405,329 | $405,329 |
| 2020 | $249,153 | $150,000 | $0 | $399,153 | $399,153 |
| 2019 | $191,133 | $170,000 | $0 | $361,133 | $361,133 |
| 2018 | $191,735 | $130,000 | $0 | $321,735 | $321,735 |
| 2017 | $192,898 | $110,000 | $0 | $302,898 | $302,898 |
| 2016 | $195,310 | $110,000 | $0 | $305,310 | $305,310 |
| 2015 | $184,774 | $75,000 | $0 | $259,774 | $259,774 |
| 2014 | $187,231 | $75,000 | $0 | $262,231 | $262,231 |
| 2013 | $189,688 | $75,000 | $0 | $264,688 | $264,688 |
| 2012 | $192,147 | $82,400 | $0 | $274,547 | $274,547 |
| 2011 | $194,604 | $103,000 | $0 | $297,604 | $297,604 |
| 2010 | $203,562 | $103,000 | $0 | $306,562 | $306,562 |
| 2009 | $209,829 | $125,000 | $0 | $334,829 | $334,829 |
| 2008 | $212,304 | $105,875 | $0 | $318,179 | $318,179 |
| 2007 | $214,779 | $105,875 | $0 | $320,654 | $320,654 |
Deed and Sales History
| 1 | 09/14/2023 | WD | Warranty Deed | KOYAMATSU, LYNNE | MERKLEY, BRIAN ANTHONY | | | $679,000.00 | 57987 | 4564748 |
| 2 | 08/10/2017 | WD | Warranty Deed | PETERSON, CAROLYN M | KOYAMATSU, LYNNE | | | $363,900.00 | 30743 | 4428637 |
| 3 | 08/01/1993 | OTHER | Other - Misc. Documents | PETERSON, WILLIAM W | PETERSON, CAROLYN M | | | $0.00 | 65527 | 93015565 |
| 4 | 04/01/1989 | WD | Warranty Deed | CHESTERFIELD, JOHN R | PETERSON, WILLIAM W | | | $111,250.00 | 91524 | 89005328 |
| 5 | 06/01/1985 | WD | Warranty Deed | ROOT, RUTH E | CHESTERFIELD, JOHN R | | | $18,500.00 | 51467 | 0 |
| 6 | 08/01/1983 | OTHER | Other - Misc. Documents | ROOT, ROBERT W | ROOT, RUTH E | | | $0.00 | 60170 | 0 |
| 7 | 01/01/1900 | OTHER | Other - Misc. Documents | Unknown | ROOT, ROBERT W | | | $0.00 | 0 | 0 |
Payout Agreement
| No payout information available.. |