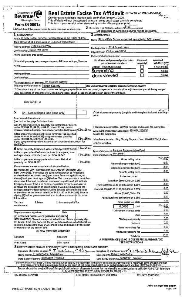
Property
Account |
| Property ID: | 22344 | Abbreviated Legal Description: | 1.7300 Acres ins Section 19s Township 32s Range R1s LOT B BLA 115-21 AF#4523659;s |
| Geographic ID: | R13219-305-3800 | Agent Code: | |
| Type: | Real | | |
| Tax Area: | 112 - APPRAISER-OH Schl Dist, outside OH, improved, greater than 1 acre | Land Use Code | 11 |
| Open Space: | N | DFL | N |
| Historic Property: | N | Remodel Property: | N |
| Multi-Family Redevelopment: | N | | |
| Township: | 32 | Section: | 19 |
| Range: | R1 |
Location |
| Address: | 1041 ZYLSTRA RD COUPEVILLE, WA 98239 | Mapsco: | |
| Neighborhood: | Cycle 2 | Map ID: | 144 |
| Neighborhood CD: | 2 |
Owner |
| Name: | ALBRIGHT, REBECCA GRACE | Owner ID: | 309785 |
| Mailing Address: | 1041 ZYLSTRA RD COUPEVILLE, WA 98239 | % Ownership: | 100.0000000000% |
| | | Exemptions: | |
Taxes and Assessment Details
Values
| (+) Improvement Homesite Value: | + | $0 | |
| (+) Improvement Non-Homesite Value: | + | $296,908 | |
| (+) Land Homesite Value: | + | $0 | |
| (+) Land Non-Homesite Value: | + | $284,889 | |
| (+) Curr Use (HS): | + | $0 | $0 |
| (+) Curr Use (NHS): | + | $0 | $0 |
| | | -------------------------- | |
| (=) Market Value: | = | $581,797 | |
| (–) Productivity Loss: | – | $0 | |
| | | -------------------------- | |
| (=) Subtotal: | = | $581,797 | |
| (+) Senior Appraised Value: | + | $0 | |
| (+) Non-Senior Appraised Value: | + | $581,797 | |
| | | -------------------------- | |
| (=) Total Appraised Value: | = | $581,797 | |
| (–) Senior Exemption Loss: | – | $0 | |
| (–) Exemption Loss: | – | $0 | |
| | | -------------------------- | |
| (=) Taxable Value: | = | $581,797 | |
Taxing Jurisdiction
| Owner: | ALBRIGHT, REBECCA GRACE | | |
| % Ownership: | 100.0000000000% | | |
| Total Value: | $581,797 | | |
| Tax Area: | 112 - APPRAISER-OH Schl Dist, outside OH, improved, greater than 1 acre |
| CF | Conservation Futures | 0.0313996660 | $581,797 | $581,797 | $18.27 | | |
| CEM1 | Cemetery #1 | 0.0040018856 | $581,797 | $581,797 | $2.33 | | |
| FIRE2 | Fire & Rescue Dist #2 N Whidbey GEN | 0.5381486274 | $581,797 | $581,797 | $313.09 | | |
| HOBOND | Hospital BOND | 0.1893405597 | $581,797 | $581,797 | $110.16 | | |
| HOGEN | Hospital GEN | 0.3848777722 | $581,797 | $581,797 | $223.92 | | |
| CE | County Current Expense | 0.3674210519 | $581,797 | $581,797 | $213.76 | | |
| CR | County Roads | 0.4614296361 | $581,797 | $581,797 | $268.46 | | |
| ISLANDEMS | Hospital GEN (EMS) | 0.4952018576 | $581,797 | $581,797 | $288.11 | | |
| LIB | Library Sno-Isle GEN | 0.3039084203 | $581,797 | $581,797 | $176.81 | | |
| NWHIDPRMT | P & R N Whidbey GEN | 0.1990272349 | $581,797 | $581,797 | $115.79 | | |
| SCH201MO | School 201 Enrichment | 2.3851112745 | $581,797 | $581,797 | $1,387.65 | | |
| ST | State School | 1.4761226122 | $581,797 | $581,797 | $858.80 | | |
| ST2 | State School Part 2 | 0.7953803475 | $581,797 | $581,797 | $462.75 | | |
| | Total Tax Rate: | 7.6313709459 | | | | | |
| | | | | Taxes w/Current Exemptions: | $4,439.90 | | |
| | | | | Taxes w/o Exemptions: | $4,439.90 | | |
Improvement / Building
| Improvement #1: | RESIDENTIAL | State Code: | Y | 2047.0 sqft | Value: | $294,912 |
| Bathrooms: | 2 | Bedrooms: | 2 | | Ceiling: | DRY WALL SPRAYED | Cooling: | HEAT PUMP/CONV/V | | Exterior Wall/Cover: | CEMENT FIBER | Floor Covering: | CARPET/VINYL 80-20 | | Floor Structure: | WOOD W/SUBFLOOR | Foundation: | CONCRETE | | Interior Finish: | DRYWALL PAINT | Plumbing Fixture Cnt: | 9 | | Roof Slope: | 4" IN 12" | Roof Structure/Cover: | CJ ALUMINIUM HEAVY |
|
| | Type | Description | Class CD | Sub Class CD | Year Built | Area |
| | BAS | BASE/MAIN FLOOR | 3 | 0 | 1952 | 2047.0 |
| | AGR | ATTACHED GARAGE | 3 | 0 | 1952 | 576.0 |
| | OWP | OPEN WOOD PORCH W/STEPS | 3 | 0 | 1952 | 216.0 |
| Improvement #2: | MISC | State Code: | Y | 0.0 sqft | Value: | $1,996 |
Sketch
Property Image
Land
| 1 | HS | HOMESITE | 1.0000 | 43560.00 | 0.00 | 0.00 | 1.00 | $220,000 | $0 |
| 2 | 91 | UNDEVELOPED LAND-METES AND BOUNDS | 0.7300 | 31798.80 | 0.00 | 0.00 | 1.00 | $64,889 | $0 |
Roll Value History
| 2026 | N/A | N/A | N/A | N/A | N/A |
| 2025 | $296,908 | $284,889 | $0 | $581,797 | $581,797 |
| 2024 | $276,778 | $260,000 | $0 | $536,778 | $536,778 |
| 2023 | $280,804 | $260,000 | $0 | $540,804 | $540,804 |
| 2022 | $258,108 | $250,000 | $0 | $508,108 | $508,108 |
| 2021 | $227,870 | $150,000 | $0 | $377,870 | $377,870 |
| 2020 | $1,996 | $85,000 | $0 | $86,996 | $86,996 |
| 2019 | $1,996 | $85,000 | $0 | $86,996 | $86,996 |
| 2018 | $1,996 | $75,000 | $0 | $76,996 | $76,996 |
| 2017 | $1,996 | $75,000 | $0 | $76,996 | $76,996 |
| 2016 | $1,996 | $60,000 | $0 | $61,996 | $61,996 |
| 2015 | $1,996 | $60,000 | $0 | $61,996 | $61,996 |
| 2014 | $1,996 | $60,000 | $0 | $61,996 | $61,996 |
| 2013 | $1,996 | $59,500 | $0 | $61,496 | $61,496 |
| 2012 | $1,996 | $59,500 | $0 | $61,496 | $61,496 |
| 2011 | $1,996 | $70,000 | $0 | $71,996 | $71,996 |
| 2010 | $1,996 | $70,000 | $0 | $71,996 | $71,996 |
| 2009 | $1,996 | $75,000 | $0 | $76,996 | $76,996 |
| 2008 | $1,996 | $75,000 | $0 | $76,996 | $76,996 |
| 2007 | $1,996 | $75,000 | $0 | $76,996 | $76,996 |
Deed and Sales History
| 1 | 08/24/2023 | QCD | Quit Claim Deed | ALBRIGHT, KENNETH E. | ALBRIGHT, REBECCA GRACE | | | $0.00 | 57736 | 4563915 |
| 2 | 09/15/2022 | QCD | Quit Claim Deed | ALBRIGHT, KENNETH E | ALBRIGHT, KENNETH E. | | | $0.00 | 54549 | 4551260 |
| 3 | 02/12/2021 | WD | Warranty Deed | MENGES JR, TERRY EUGENE | ALBRIGHT, KENNETH E | | | $605,000.00 | 47178 | 4512479 |
|   | |
| 4 | 06/13/2014 | DECREE | Divorce Decree/Legal Separation | MENGES JR, TERRY E | MENGES JR, TERRY EUGENE | | | $0.00 | 15676 | 4361025 |
| 5 | 06/07/2013 | WD | Warranty Deed | MILLS, TERRY V | MENGES JR, TERRY E | | | $385,000.00 | 11555 | 4341413 |
|   | |
| 6 | 01/01/1983 | WD | Warranty Deed | WITTIG, CATHERINE M | MILLS, TERRY V | | | $18,000.00 | 30252 | 405389 |
| 7 | 03/01/1982 | PACD | Purchaser's Assignment | WITTIG, GEORGE W | WITTIG, CATHERINE M | | | $1.00 | 59406 | 248364 |
| 8 | 01/01/1900 | OTHER | Other - Misc. Documents | Unknown | WITTIG, GEORGE W | | | $0.00 | 0 | 0 |
Payout Agreement
| No payout information available.. |