Property
Account |
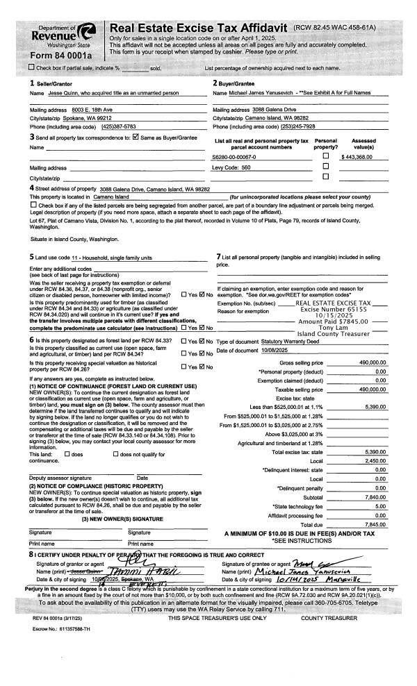
| Property ID: | 223467 | Abbreviated Legal Description: | CAM VISTA 1 LOT 67 |
| Geographic ID: | S6280-00-00067-0 | Agent Code: | |
| Type: | Real | | |
| Tax Area: | 560 - APPRAISER-Stan/Cam Schl Dist, Special Dist, improved & less than 1 acre | Land Use Code | 11 |
| Open Space: | N | DFL | N |
| Historic Property: | N | Remodel Property: | N |
| Multi-Family Redevelopment: | N | | |
| Township: | | Section: | |
| Range: | |
Location |
| Address: | 3088 GALENA DR CAMANO ISLAND, WA 98282 | Mapsco: | |
| Neighborhood: | 58CamanoVistaS | Map ID: | 864 |
| Neighborhood CD: | 58RcmvstaS |
Owner |
| Name: | QUINN, JESSE | Owner ID: | 299306 |
| Mailing Address: | 3088 GALENA DR CAMANO ISLAND, WA 98282 | % Ownership: | 100.0000000000% |
| | | Exemptions: | |
Taxes and Assessment Details
Values
| (+) Improvement Homesite Value: | + | $233,368 | |
| (+) Improvement Non-Homesite Value: | + | $0 | |
| (+) Land Homesite Value: | + | $210,000 | |
| (+) Land Non-Homesite Value: | + | $0 | |
| (+) Curr Use (HS): | + | $0 | $0 |
| (+) Curr Use (NHS): | + | $0 | $0 |
| | | -------------------------- | |
| (=) Market Value: | = | $443,368 | |
| (–) Productivity Loss: | – | $0 | |
| | | -------------------------- | |
| (=) Subtotal: | = | $443,368 | |
| (+) Senior Appraised Value: | + | $0 | |
| (+) Non-Senior Appraised Value: | + | $443,368 | |
| | | -------------------------- | |
| (=) Total Appraised Value: | = | $443,368 | |
| (–) Senior Exemption Loss: | – | $0 | |
| (–) Exemption Loss: | – | $0 | |
| | | -------------------------- | |
| (=) Taxable Value: | = | $443,368 | |
Taxing Jurisdiction
| Owner: | QUINN, JESSE | | |
| % Ownership: | 100.0000000000% | | |
| Total Value: | $443,368 | | |
| Tax Area: | 560 - APPRAISER-Stan/Cam Schl Dist, Special Dist, improved & less than 1 acre |
| CF | Conservation Futures | 0.0313996660 | $443,368 | $443,368 | $13.92 | | |
| EMS1 | Fire & Rescue Dist #1 Camano GEN (EMS) | 0.4998471806 | $443,368 | $443,368 | $221.62 | | |
| FIRE1 | Fire & Rescue Dist #1 Camano GEN | 1.2496603404 | $443,368 | $443,368 | $554.06 | | |
| FIRE1BOND | Fire & Rescue Dist #1 Camano BOND | 0.1630371212 | $443,368 | $443,368 | $72.29 | | |
| CE | County Current Expense | 0.3674210519 | $443,368 | $443,368 | $162.90 | | |
| CR | County Roads | 0.4614296361 | $443,368 | $443,368 | $204.58 | | |
| LIB | Library Sno-Isle GEN | 0.3039084203 | $443,368 | $443,368 | $134.74 | | |
| SCH205_401 | School 205-401 Enrichment | 1.3697998934 | $443,368 | $443,368 | $607.33 | | |
| SCH205BOND | School 205-401 BOND | 0.9354199323 | $443,368 | $443,368 | $414.74 | | |
| ST | State School | 1.4761226122 | $443,368 | $443,368 | $654.47 | | |
| ST2 | State School Part 2 | 0.7953803475 | $443,368 | $443,368 | $352.65 | | |
| | Total Tax Rate: | 7.6534262019 | | | | | |
| | | | | Taxes w/Current Exemptions: | $3,393.30 | | |
| | | | | Taxes w/o Exemptions: | $3,393.30 | | |
Improvement / Building
| Improvement #1: | RESIDENTIAL | State Code: | Y | 1238.0 sqft | Value: | $233,368 |
| Bathrooms: | 2 | Bedrooms: | 3 | | Ceiling: | DRYWALL PAINTED | Exterior Wall/Cover: | PLY/HARDBOARD T-111 | | Floor Covering: | HARDWOOD/CARP 20-80 | Floor Structure: | WOOD W/SUBFLOOR | | Foundation: | CONCRETE | Heating: | WALL HEAT ELECTRIC | | Interior Finish: | DRYWALL PAINT | Plumbing Fixture Cnt: | 9 | | Roof Slope: | 5" IN 12" | Roof Structure/Cover: | CJ ASPHALT |
|
| | Type | Description | Class CD | Sub Class CD | Year Built | Area |
| | BAS | BASE/MAIN FLOOR | 3 | 0 | 1994 | 1238.0 |
| | AGR | ATTACHED GARAGE | 3 | 0 | 1994 | 483.0 |
| | OWP | OPEN WOOD PORCH W/STEPS | 3 | 0 | 1994 | 132.0 |
| | OWC | OPEN WOOD PORCH W/STEPS/ROOF/C | 3 | 0 | 1994 | 25.0 |
| | UTY | STORAGE/UTILITY | 3 | 0 | 1994 | 128.0 |
Sketch
Property Image
Land
| 1 | 14 | SQ (08001-12000) | 0.0000 | 0.00 | 0.00 | 0.00 | 1.00 | $210,000 | $0 |
Roll Value History
| 2026 | N/A | N/A | N/A | N/A | N/A |
| 2025 | $233,368 | $210,000 | $0 | $443,368 | $443,368 |
| 2024 | $236,313 | $185,000 | $0 | $421,313 | $421,313 |
| 2023 | $239,258 | $180,000 | $0 | $419,258 | $419,258 |
| 2022 | $219,313 | $180,000 | $0 | $399,313 | $399,313 |
| 2021 | $173,611 | $140,000 | $0 | $313,611 | $313,611 |
| 2020 | $169,048 | $100,000 | $0 | $269,048 | $62,623 |
| 2019 | $120,338 | $130,000 | $0 | $250,338 | $62,623 |
| 2018 | $120,727 | $130,000 | $0 | $250,727 | $62,623 |
| 2017 | $121,506 | $50,000 | $0 | $171,506 | $62,623 |
| 2016 | $123,065 | $50,000 | $0 | $173,065 | $62,623 |
| 2015 | $121,558 | $35,000 | $0 | $156,558 | $62,623 |
| 2014 | $123,118 | $35,000 | $0 | $158,118 | $158,118 |
| 2013 | $124,676 | $40,000 | $0 | $164,676 | $164,676 |
| 2012 | $126,234 | $60,000 | $0 | $186,234 | $186,234 |
| 2011 | $127,793 | $75,000 | $0 | $202,793 | $202,793 |
| 2010 | $135,615 | $75,000 | $0 | $210,615 | $210,615 |
| 2009 | $144,338 | $80,000 | $0 | $224,338 | $224,338 |
| 2008 | $146,238 | $71,000 | $0 | $217,238 | $217,238 |
| 2007 | $148,141 | $71,000 | $0 | $219,141 | $219,141 |
Deed and Sales History
| 1 | 10/08/2025 | WD | Warranty Deed | QUINN, JESSE | YANUSEVICH, MICHAEL JAMES | | | $490,000.00 | 65155 | 4592220 |
| 2 | 04/26/2021 | WD | Warranty Deed | MCCORD, CHRISTY S | QUINN, JESSE | | | $395,000.00 | 48010 | 4517826 |
| 3 | 05/09/2017 | QCD | Quit Claim Deed | MCCORD, CHRISTY S | MCCORD, CHRISTY S | | | $0.00 | 29303 | 4422602 |
| 4 | 04/19/2010 | ESTSEPPROP | Establish Separate Property | MCCORD, CHRISTY S | MCCORD, CHRISTY S | | | $0.00 | 984 | 4272782 |
| 5 | 04/19/2010 | WD | Warranty Deed | HILSENBERG, FRED A | MCCORD, CHRISTY S | | | $183,000.00 | 983 | 4272781 |
| 6 | 10/20/2007 | PRD | Personal Representatives Deed | LEVERETT, VIRGIL A | HILSENBERG, FRED A | | | $0.00 | 73587 | 4215140 |
| 7 | 03/12/2004 | WD | Warranty Deed | MILLER, DEAN H | LEVERETT, VIRGIL A | | | $169,500.00 | 40981 | 4094250 |
| 8 | 01/01/1996 | WD | Warranty Deed | BRANDVOLD, DUANE G | MILLER, DEAN H | | | $112,500.00 | 60333 | 96001735 |
| 9 | 09/01/1994 | WD | Warranty Deed | WATTS, R L | BRANDVOLD, DUANE G | | | $20,000.00 | 43816 | 94019893 |
| 10 | 10/01/1979 | OTHER | Other - Misc. Documents | OLSEN, THEODORE K | WATTS, R L | | | $0.00 | 95237 | 3609430 |
| 11 | 10/01/1979 | TRUSTEED | Trustee's Deed | WATTS, R L | OLSEN, THEODORE K | | | $11,500.00 | 95234 | 360944 |
| 12 | 03/01/1972 | CD | DNU - Correction Deed | Unknown | WATTS, R L | | | $0.00 | 43640 | 0 |
Payout Agreement
| No payout information available.. |