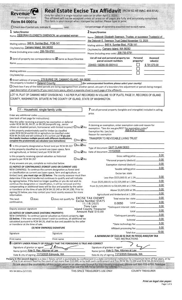
Property
Account |
| Property ID: | 224402 | Abbreviated Legal Description: | CAMANO WEST LOT 14 |
| Geographic ID: | S6285-00-00014-0 | Agent Code: | |
| Type: | Real | | |
| Tax Area: | 510 - APPRAISER-Stan/Cam Schl Dist, improved & 1 acre or less | Land Use Code | 11 |
| Open Space: | N | DFL | N |
| Historic Property: | N | Remodel Property: | N |
| Multi-Family Redevelopment: | N | | |
| Township: | | Section: | |
| Range: | |
Location |
| Address: | 278 BURKE DR CAMANO ISLAND, WA 98282 | Mapsco: | |
| Neighborhood: | North Camano | Map ID: | 574 |
| Neighborhood CD: | 06-C |
Owner |
| Name: | SWENSON, DEBORAH E | Owner ID: | 265371 |
| Mailing Address: | PMB 141 848 NORTH SUNRISE BLVD STE B CAMANO ISLAND, WA 98282 | % Ownership: | 100.0000000000% |
| | | Exemptions: | |
Taxes and Assessment Details
Values
| (+) Improvement Homesite Value: | + | $0 | |
| (+) Improvement Non-Homesite Value: | + | $341,570 | |
| (+) Land Homesite Value: | + | $0 | |
| (+) Land Non-Homesite Value: | + | $450,000 | |
| (+) Curr Use (HS): | + | $0 | $0 |
| (+) Curr Use (NHS): | + | $0 | $0 |
| | | -------------------------- | |
| (=) Market Value: | = | $791,570 | |
| (–) Productivity Loss: | – | $0 | |
| | | -------------------------- | |
| (=) Subtotal: | = | $791,570 | |
| (+) Senior Appraised Value: | + | $0 | |
| (+) Non-Senior Appraised Value: | + | $791,570 | |
| | | -------------------------- | |
| (=) Total Appraised Value: | = | $791,570 | |
| (–) Senior Exemption Loss: | – | $0 | |
| (–) Exemption Loss: | – | $0 | |
| | | -------------------------- | |
| (=) Taxable Value: | = | $791,570 | |
Taxing Jurisdiction
| Owner: | SWENSON, DEBORAH E | | |
| % Ownership: | 100.0000000000% | | |
| Total Value: | $791,570 | | |
| Tax Area: | 510 - APPRAISER-Stan/Cam Schl Dist, improved & 1 acre or less |
| CF | Conservation Futures | 0.0313996660 | $791,570 | $791,570 | $24.86 | | |
| EMS1 | Fire & Rescue Dist #1 Camano GEN (EMS) | 0.4998471806 | $791,570 | $791,570 | $395.66 | | |
| FIRE1 | Fire & Rescue Dist #1 Camano GEN | 1.2496603404 | $791,570 | $791,570 | $989.19 | | |
| FIRE1BOND | Fire & Rescue Dist #1 Camano BOND | 0.1630371212 | $791,570 | $791,570 | $129.06 | | |
| CE | County Current Expense | 0.3674210519 | $791,570 | $791,570 | $290.84 | | |
| CR | County Roads | 0.4614296361 | $791,570 | $791,570 | $365.25 | | |
| LIB | Library Sno-Isle GEN | 0.3039084203 | $791,570 | $791,570 | $240.56 | | |
| SCH205_401 | School 205-401 Enrichment | 1.3697998934 | $791,570 | $791,570 | $1,084.29 | | |
| SCH205BOND | School 205-401 BOND | 0.9354199323 | $791,570 | $791,570 | $740.45 | | |
| ST | State School | 1.4761226122 | $791,570 | $791,570 | $1,168.45 | | |
| ST2 | State School Part 2 | 0.7953803475 | $791,570 | $791,570 | $629.60 | | |
| | Total Tax Rate: | 7.6534262019 | | | | | |
| | | | | Taxes w/Current Exemptions: | $6,058.21 | | |
| | | | | Taxes w/o Exemptions: | $6,058.21 | | |
Improvement / Building
| Improvement #1: | RESIDENTIAL | State Code: | Y | 2050.0 sqft | Value: | $341,570 |
| Bathrooms: | 2.5 | Bedrooms: | 3 | | Ceiling: | DRYWALL PAINTED | Exterior Wall/Cover: | CEMENT FIBER | | Floor Covering: | HARDWOOD/CARP 20-80 | Floor Structure: | WOOD W/SUBFLOOR | | Foundation: | CONCRETE | Heating: | FHA GAS | | Interior Finish: | DRYWALL PAINT | Plumbing Fixture Cnt: | 13 | | Roof Slope: | 4" IN 12" | Roof Structure/Cover: | CJ ASPHALT |
|
| | Type | Description | Class CD | Sub Class CD | Year Built | Area |
| | BAS | BASE/MAIN FLOOR | 3 | 0 | 1999 | 1312.0 |
| | UB8 | BASEMENT UNFINISHED 8" | 3 | 0 | 1999 | 574.0 |
| | OP1 | OPEN PORCH SLAB | 3 | 0 | 1999 | 257.5 |
| | OP2 | OPEN PORCH W/STEPS | 3 | 0 | 1999 | 32.0 |
| | BGR | BASEMENT GARAGE | 3 | 0 | 1999 | 400.0 |
| | OWP | OPEN WOOD PORCH W/STEPS | 3 | 0 | 1999 | 88.0 |
| | OWC | OPEN WOOD PORCH W/STEPS/ROOF/C | 3 | 0 | 1999 | 156.0 |
| | DWN | DOWNSTAIRS LIVING AREA | 3 | 0 | 1999 | 738.0 |
Sketch
Property Image
Land
| 1 | 14 | SQ (08001-12000) | 0.0000 | 0.00 | 0.00 | 0.00 | 1.00 | $450,000 | $0 |
Roll Value History
| 2026 | N/A | N/A | N/A | N/A | N/A |
| 2025 | $341,570 | $450,000 | $0 | $791,570 | $791,570 |
| 2024 | $345,774 | $450,000 | $0 | $795,774 | $795,774 |
| 2023 | $349,978 | $450,000 | $0 | $799,978 | $799,978 |
| 2022 | $309,285 | $260,000 | $0 | $569,285 | $569,285 |
| 2021 | $272,266 | $200,000 | $0 | $472,266 | $472,266 |
| 2020 | $265,189 | $180,000 | $0 | $445,189 | $445,189 |
| 2019 | $200,873 | $210,000 | $0 | $410,873 | $410,873 |
| 2018 | $201,469 | $180,000 | $0 | $381,469 | $381,469 |
| 2017 | $202,657 | $130,000 | $0 | $332,657 | $332,657 |
| 2016 | $200,275 | $130,000 | $0 | $330,275 | $330,275 |
| 2015 | $202,657 | $92,800 | $0 | $295,457 | $295,457 |
| 2014 | $205,044 | $92,800 | $0 | $297,844 | $297,844 |
| 2013 | $207,426 | $92,800 | $0 | $300,226 | $300,226 |
| 2012 | $209,811 | $92,800 | $0 | $302,611 | $302,611 |
| 2011 | $212,195 | $116,000 | $0 | $328,195 | $328,195 |
| 2010 | $221,503 | $116,000 | $0 | $337,503 | $337,503 |
| 2009 | $231,425 | $200,000 | $0 | $431,425 | $431,425 |
| 2008 | $234,886 | $200,000 | $0 | $434,886 | $434,886 |
| 2007 | $238,335 | $200,000 | $0 | $438,335 | $438,335 |
Deed and Sales History
| 1 | 11/13/2025 | QCD | Quit Claim Deed | SWENSON, DEBORAH E | SWENSON TTEE, DEBORAH ELIZABETH | | | $0.00 | 65475 | 4593572 |
| 2 | 03/03/2014 | WD | Warranty Deed | TRAFTON, ROBERT E | SWENSON, DEBORAH E | | | $369,950.00 | 14564 | 4356529 |
| 3 | 12/12/1999 | WD | Warranty Deed | SEATON, PATRICK J | TRAFTON, ROBERT E | | | $263,000.00 | 95227 | 99029045 |
| 4 | 06/02/1998 | WD | Warranty Deed | PHILIPS, LARRY D | SEATON, PATRICK J | | | $47,500.00 | 82198 | 98011457 |
| 5 | 05/01/1984 | WD | Warranty Deed | FOWLER, RICHARD L | PHILIPS, LARRY D | | | $16,000.00 | 41393 | 424778 |
| 6 | 07/01/1982 | TRUSTEED | Trustee's Deed | SAINIUK, JOHN R | FOWLER, RICHARD L | | | $13,000.00 | 21821 | 398975 |
| 7 | 06/01/1982 | CD | DNU - Correction Deed | SAINIUK, JOHN R | SAINIUK, JOHN R | | | $0.00 | 21636 | 398288 |
Payout Agreement
| No payout information available.. |