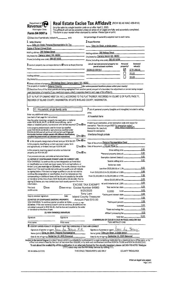
Property
Account |
| Property ID: | 225116 | Abbreviated Legal Description: | CAMANO WEST 2 LOT 19 |
| Geographic ID: | S6285-02-00019-0 | Agent Code: | |
| Type: | Real | | |
| Tax Area: | 510 - APPRAISER-Stan/Cam Schl Dist, improved & 1 acre or less | Land Use Code | 11 |
| Open Space: | N | DFL | N |
| Historic Property: | N | Remodel Property: | N |
| Multi-Family Redevelopment: | N | | |
| Township: | | Section: | |
| Range: | |
Location |
| Address: | 286 MELISSA ST CAMANO ISLAND, WA 98282 | Mapsco: | |
| Neighborhood: | North Camano | Map ID: | 574 |
| Neighborhood CD: | 06-C |
Owner |
| Name: | STRAIN, RICHARD E | Owner ID: | 285828 |
| Mailing Address: | E JOY STRAIN 286 MELISSA ST CAMANO ISLAND, WA 98282 | % Ownership: | 100.0000000000% |
| | | Exemptions: | SNR/DSBL |
Taxes and Assessment Details
Values
| (+) Improvement Homesite Value: | + | $421,848 | |
| (+) Improvement Non-Homesite Value: | + | $0 | |
| (+) Land Homesite Value: | + | $360,000 | |
| (+) Land Non-Homesite Value: | + | $0 | |
| (+) Curr Use (HS): | + | $0 | $0 |
| (+) Curr Use (NHS): | + | $0 | $0 |
| | | -------------------------- | |
| (=) Market Value: | = | $781,848 | |
| (–) Productivity Loss: | – | $0 | |
| | | -------------------------- | |
| (=) Subtotal: | = | $781,848 | |
| (+) Senior Appraised Value: | + | $781,848 | |
| (+) Non-Senior Appraised Value: | + | $0 | |
| | | -------------------------- | |
| (=) Total Appraised Value: | = | $781,848 | |
| (–) Senior Exemption Loss: | – | $0 | |
| (–) Exemption Loss: | – | $0 | |
| | | -------------------------- | |
| (=) Taxable Value: | = | $781,848 | |
Taxing Jurisdiction
| Owner: | STRAIN, RICHARD E | | |
| % Ownership: | 100.0000000000% | | |
| Total Value: | $781,848 | | |
| Tax Area: | 510 - APPRAISER-Stan/Cam Schl Dist, improved & 1 acre or less |
| CF | Conservation Futures | 0.0313996660 | $781,848 | $781,848 | $24.55 | | |
| EMS1 | Fire & Rescue Dist #1 Camano GEN (EMS) | 0.4998471806 | $781,848 | $781,848 | $390.80 | | |
| FIRE1 | Fire & Rescue Dist #1 Camano GEN | 1.2496603404 | $781,848 | $781,848 | $977.04 | | |
| FIRE1BOND | Fire & Rescue Dist #1 Camano BOND | 0.0000000000 | $781,848 | $0 | $0.00 | | |
| CE | County Current Expense | 0.3674210519 | $781,848 | $781,848 | $287.27 | | |
| CR | County Roads | 0.4614296361 | $781,848 | $781,848 | $360.77 | | |
| LIB | Library Sno-Isle GEN | 0.3039084203 | $781,848 | $781,848 | $237.61 | | |
| SCH205_401 | School 205-401 Enrichment | 0.0000000000 | $781,848 | $0 | $0.00 | | |
| SCH205BOND | School 205-401 BOND | 0.0000000000 | $781,848 | $0 | $0.00 | | |
| ST | State School | 1.4761226122 | $781,848 | $781,848 | $1,154.10 | | |
| ST2 | State School Part 2 | 0.0000000000 | $781,848 | $0 | $0.00 | | |
| | Total Tax Rate: | 4.3897889075 | | | | | |
| | | | | Taxes w/Current Exemptions: | $3,432.14 | | |
| | | | | Taxes w/o Exemptions: | $5,983.82 | | |
Improvement / Building
| Improvement #1: | RESIDENTIAL | State Code: | Y | 2202.0 sqft | Value: | $421,848 |
| Bathrooms: | 3 | Bedrooms: | 3 | | Ceiling: | DRYWALL PAINTED | Exterior Wall/Cover: | CEMENT FIBER | | Floor Covering: | HARDWOOD/CARP 60-40 | Floor Structure: | WOOD W/SUBFLOOR | | Foundation: | CONCRETE | Heating: | HEAT PUMP | | Interior Finish: | DRYWALL PAINT | Plumbing Fixture Cnt: | 13 | | Roof Slope: | 6" IN 12" | Roof Structure/Cover: | CJ ASPHALT |
|
| | Type | Description | Class CD | Sub Class CD | Year Built | Area |
| | BAS | BASE/MAIN FLOOR | 3 | 0 | 1999 | 2202.0 |
| | UTY | STORAGE/UTILITY | 3 | 0 | 1999 | 905.0 |
| | OP4 | OPEN PORCH W/CEILING-ROOF | 3 | 0 | 1999 | 24.0 |
| | AGR | ATTACHED GARAGE | 3 | 0 | 1999 | 420.0 |
| | OWP | OPEN WOOD PORCH W/STEPS | 3 | 0 | 1999 | 338.5 |
Sketch
Property Image
Land
| 1 | 14 | SQ (08001-12000) | 0.0000 | 0.00 | 0.00 | 0.00 | 1.00 | $360,000 | $0 |
Roll Value History
| 2026 | N/A | N/A | N/A | N/A | N/A |
| 2025 | $421,848 | $360,000 | $0 | $781,848 | $781,848 |
| 2024 | $421,853 | $360,000 | $0 | $781,853 | $781,853 |
| 2023 | $426,860 | $360,000 | $0 | $786,860 | $786,860 |
| 2022 | $359,317 | $260,000 | $0 | $619,317 | $619,317 |
| 2021 | $316,394 | $200,000 | $0 | $516,394 | $516,394 |
| 2020 | $308,560 | $180,000 | $0 | $488,560 | $488,560 |
| 2019 | $235,924 | $210,000 | $0 | $445,924 | $445,924 |
| 2018 | $236,642 | $180,000 | $0 | $416,642 | $416,642 |
| 2017 | $238,070 | $130,000 | $0 | $368,070 | $368,070 |
| 2016 | $235,390 | $130,000 | $0 | $365,390 | $365,390 |
| 2015 | $238,262 | $92,800 | $0 | $331,062 | $331,062 |
| 2014 | $241,133 | $92,800 | $0 | $333,933 | $333,933 |
| 2013 | $244,002 | $92,800 | $0 | $336,802 | $336,802 |
| 2012 | $246,873 | $92,800 | $0 | $339,673 | $339,673 |
| 2011 | $249,743 | $116,000 | $0 | $365,743 | $365,743 |
| 2010 | $246,016 | $116,000 | $0 | $362,016 | $362,016 |
| 2009 | $258,371 | $200,000 | $0 | $458,371 | $458,371 |
| 2008 | $264,745 | $200,000 | $0 | $464,745 | $464,745 |
| 2007 | $301,023 | $200,000 | $0 | $501,023 | $501,023 |
Deed and Sales History
| 1 | 09/24/2025 | PRD | Personal Representatives Deed | STRAIN, RICHARD E | STRAIN, EDNA JOY | | | $10.00 | 64960 | 4591465 |
| 2 | 06/29/2018 | QCD | Quit Claim Deed | STRAIN TRUSTEE, RICHARD E | STRAIN, RICHARD E | | | $0.00 | 34806 | 4447262 |
| 3 | 03/03/2005 | WD | Warranty Deed | SLACK SR, PATRICK L | STRAIN TRUSTEE, RICHARD E | | | $412,000.00 | 51014 | 4128340 |
| 4 | 04/14/1999 | WD | Warranty Deed | COWAN, STEVEN G | SLACK SR, PATRICK L | | | $260,000.00 | 91483 | 99009649 |
| 5 | 09/01/1994 | WD | Warranty Deed | NELSON, LARRY & | COWAN, STEVEN G | | | $55,000.00 | 44120 | 94021197 |
| 6 | 07/01/1980 | TRUSTEED | Trustee's Deed | LINDAUER, CO | NELSON, LARRY & | | | $20,000.00 | 2426 | 371318 |
| 7 | 01/01/1900 | OTHER | Other - Misc. Documents | Unknown | LINDAUER, CO | | | $0.00 | 0 | 0 |
Payout Agreement
| No payout information available.. |