Property
Account |
| Property ID: | 225125 | Abbreviated Legal Description: | CAMANO WEST 2 LOT 20 |
| Geographic ID: | S6285-02-00020-0 | Agent Code: | |
| Type: | Real | | |
| Tax Area: | 510 - APPRAISER-Stan/Cam Schl Dist, improved & 1 acre or less | Land Use Code | 11 |
| Open Space: | N | DFL | N |
| Historic Property: | N | Remodel Property: | N |
| Multi-Family Redevelopment: | N | | |
| Township: | | Section: | |
| Range: | |
Location |
| Address: | 831 LINDA LN CAMANO ISLAND, WA 98282 | Mapsco: | |
| Neighborhood: | North Camano | Map ID: | 574 |
| Neighborhood CD: | 06-C |
Owner |
| Name: | HARGRAVE TTEE, GEORGE B | Owner ID: | 309571 |
| Mailing Address: | GRETCHEN S HARGRAVE TTEE 831 LINDA LN CAMANO ISLAND, WA 98282 | % Ownership: | 100.0000000000% |
| | | Exemptions: | |
Taxes and Assessment Details
Values
| (+) Improvement Homesite Value: | + | $0 | |
| (+) Improvement Non-Homesite Value: | + | $520,012 | |
| (+) Land Homesite Value: | + | $0 | |
| (+) Land Non-Homesite Value: | + | $360,000 | |
| (+) Curr Use (HS): | + | $0 | $0 |
| (+) Curr Use (NHS): | + | $0 | $0 |
| | | -------------------------- | |
| (=) Market Value: | = | $880,012 | |
| (–) Productivity Loss: | – | $0 | |
| | | -------------------------- | |
| (=) Subtotal: | = | $880,012 | |
| (+) Senior Appraised Value: | + | $0 | |
| (+) Non-Senior Appraised Value: | + | $880,012 | |
| | | -------------------------- | |
| (=) Total Appraised Value: | = | $880,012 | |
| (–) Senior Exemption Loss: | – | $0 | |
| (–) Exemption Loss: | – | $0 | |
| | | -------------------------- | |
| (=) Taxable Value: | = | $880,012 | |
Taxing Jurisdiction
| Owner: | HARGRAVE TTEE, GEORGE B | | |
| % Ownership: | 100.0000000000% | | |
| Total Value: | $880,012 | | |
| Tax Area: | 510 - APPRAISER-Stan/Cam Schl Dist, improved & 1 acre or less |
| CF | Conservation Futures | 0.0313996660 | $880,012 | $880,012 | $27.63 | | |
| EMS1 | Fire & Rescue Dist #1 Camano GEN (EMS) | 0.4998471806 | $880,012 | $880,012 | $439.87 | | |
| FIRE1 | Fire & Rescue Dist #1 Camano GEN | 1.2496603404 | $880,012 | $880,012 | $1,099.72 | | |
| FIRE1BOND | Fire & Rescue Dist #1 Camano BOND | 0.1630371212 | $880,012 | $880,012 | $143.47 | | |
| CE | County Current Expense | 0.3674210519 | $880,012 | $880,012 | $323.33 | | |
| CR | County Roads | 0.4614296361 | $880,012 | $880,012 | $406.06 | | |
| LIB | Library Sno-Isle GEN | 0.3039084203 | $880,012 | $880,012 | $267.44 | | |
| SCH205_401 | School 205-401 Enrichment | 1.3697998934 | $880,012 | $880,012 | $1,205.44 | | |
| SCH205BOND | School 205-401 BOND | 0.9354199323 | $880,012 | $880,012 | $823.18 | | |
| ST | State School | 1.4761226122 | $880,012 | $880,012 | $1,299.01 | | |
| ST2 | State School Part 2 | 0.7953803475 | $880,012 | $880,012 | $699.94 | | |
| | Total Tax Rate: | 7.6534262019 | | | | | |
| | | | | Taxes w/Current Exemptions: | $6,735.09 | | |
| | | | | Taxes w/o Exemptions: | $6,735.09 | | |
Improvement / Building
| Improvement #1: | RESIDENTIAL | State Code: | Y | 2219.1 sqft | Value: | $520,012 |
| Bathrooms: | 2 | Bedrooms: | 3 | | Ceiling: | DRYWALL PAINTED | Exterior Wall/Cover: | CEMENT FIBER | | Floor Covering: | HARDWOOD/CARP 20-80 | Floor Structure: | WOOD W/SUBFLOOR | | Foundation: | CONCRETE | Heating: | HEAT PUMP | | Interior Finish: | DRYWALL PAINT | Plumbing Fixture Cnt: | 13 | | Roof Slope: | 4" IN 12" | Roof Structure/Cover: | CJ ALUMINIUM HEAVY |
|
| | Type | Description | Class CD | Sub Class CD | Year Built | Area |
| | BAS | BASE/MAIN FLOOR | 4 | 0 | 2002 | 2219.1 |
| | OP4 | OPEN PORCH W/CEILING-ROOF | 4 | 0 | 2002 | 16.2 |
| | AGR | ATTACHED GARAGE | 4 | 0 | 2002 | 488.4 |
| | OWP | OPEN WOOD PORCH W/STEPS | 4 | 0 | 2002 | 460.2 |
Sketch
Property Image
Land
| 1 | 14 | SQ (08001-12000) | 0.0000 | 0.00 | 0.00 | 0.00 | 1.00 | $360,000 | $0 |
Roll Value History
| 2026 | N/A | N/A | N/A | N/A | N/A |
| 2025 | $520,012 | $360,000 | $0 | $880,012 | $880,012 |
| 2024 | $518,200 | $360,000 | $0 | $878,200 | $878,200 |
| 2023 | $431,251 | $360,000 | $0 | $791,251 | $791,251 |
| 2022 | $355,727 | $260,000 | $0 | $615,727 | $615,727 |
| 2021 | $312,917 | $200,000 | $0 | $512,917 | $512,917 |
| 2020 | $304,910 | $180,000 | $0 | $484,910 | $484,910 |
| 2019 | $233,541 | $210,000 | $0 | $443,541 | $443,541 |
| 2018 | $220,678 | $180,000 | $0 | $400,678 | $400,678 |
| 2017 | $221,970 | $130,000 | $0 | $351,970 | $351,970 |
| 2016 | $219,922 | $130,000 | $0 | $349,922 | $349,922 |
| 2015 | $222,508 | $92,800 | $0 | $315,308 | $126,123 |
| 2014 | $225,097 | $92,800 | $0 | $317,897 | $247,897 |
| 2013 | $227,682 | $92,800 | $0 | $320,482 | $320,482 |
| 2012 | $230,271 | $92,800 | $0 | $323,071 | $323,071 |
| 2011 | $232,859 | $116,000 | $0 | $348,859 | $348,859 |
| 2010 | $236,949 | $116,000 | $0 | $352,949 | $352,949 |
| 2009 | $244,341 | $200,000 | $0 | $444,341 | $444,341 |
| 2008 | $247,054 | $200,000 | $0 | $447,054 | $447,054 |
| 2007 | $252,334 | $200,000 | $0 | $452,334 | $452,334 |
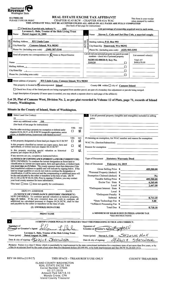
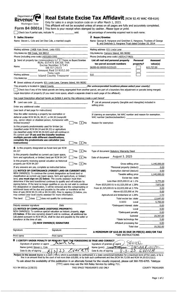
Deed and Sales History
| 1 | 08/03/2023 | WD | Warranty Deed | COLE, STEVEN L | HARGRAVE TTEE, GEORGE B | | | $1,140,000.00 | 57545 | 4563146 |
| 2 | 02/14/2019 | WD | Warranty Deed | IHDE TRUSTEE, JON D | COLE, STEVEN L | | | $489,500.00 | 37684 | 4459698 |
| 3 | 08/02/2002 | WD | Warranty Deed | KOOPER, TODD G | IHDE TRUSTEE, JON D | | | $267,705.00 | 23117 | 4027999 |
| 4 | 04/26/2002 | WD | Warranty Deed | FRISCH, MARION M | KOOPER, TODD G | | | $70,000.00 | 21645 | 4018635 |
| 5 | 04/01/1981 | TRUSTEED | Trustee's Deed | NARBY, CONWAY | FRISCH, MARION M | | | $27,500.00 | 11675 | 383710 |
| 6 | 05/01/1980 | TRUSTEED | Trustee's Deed | LINDAUER, CO | NARBY, CONWAY | | | $21,000.00 | 1759 | 369078 |
| 7 | 01/01/1900 | OTHER | Other - Misc. Documents | Unknown | LINDAUER, CO | | | $0.00 | 0 | 0 |
Payout Agreement
| No payout information available.. |