Property
Account |
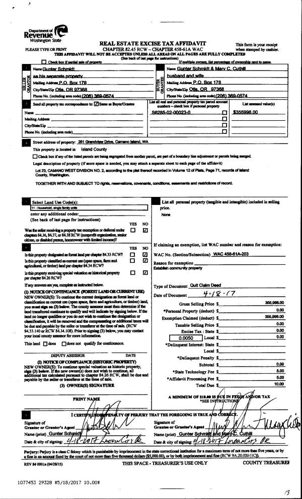
| Property ID: | 225152 | Abbreviated Legal Description: | CAMANO WEST 2 LOT 23 |
| Geographic ID: | S6285-02-00023-0 | Agent Code: | |
| Type: | Real | | |
| Tax Area: | 510 - APPRAISER-Stan/Cam Schl Dist, improved & 1 acre or less | Land Use Code | 11 |
| Open Space: | N | DFL | N |
| Historic Property: | N | Remodel Property: | N |
| Multi-Family Redevelopment: | N | | |
| Township: | | Section: | |
| Range: | |
Location |
| Address: | 281 GRANDVIEW AVE CAMANO ISLAND, WA 98282 | Mapsco: | |
| Neighborhood: | North Camano | Map ID: | 574 |
| Neighborhood CD: | 06-C |
Owner |
| Name: | SCHMIDT, GUNTER | Owner ID: | 279938 |
| Mailing Address: | MARY C CUTHILL PO BOX 178 OTIS, OR 97368 | % Ownership: | 100.0000000000% |
| | | Exemptions: | |
Taxes and Assessment Details
Values
| (+) Improvement Homesite Value: | + | $0 | |
| (+) Improvement Non-Homesite Value: | + | $330,487 | |
| (+) Land Homesite Value: | + | $0 | |
| (+) Land Non-Homesite Value: | + | $360,000 | |
| (+) Curr Use (HS): | + | $0 | $0 |
| (+) Curr Use (NHS): | + | $0 | $0 |
| | | -------------------------- | |
| (=) Market Value: | = | $690,487 | |
| (–) Productivity Loss: | – | $0 | |
| | | -------------------------- | |
| (=) Subtotal: | = | $690,487 | |
| (+) Senior Appraised Value: | + | $0 | |
| (+) Non-Senior Appraised Value: | + | $690,487 | |
| | | -------------------------- | |
| (=) Total Appraised Value: | = | $690,487 | |
| (–) Senior Exemption Loss: | – | $0 | |
| (–) Exemption Loss: | – | $0 | |
| | | -------------------------- | |
| (=) Taxable Value: | = | $690,487 | |
Taxing Jurisdiction
| Owner: | SCHMIDT, GUNTER | | |
| % Ownership: | 100.0000000000% | | |
| Total Value: | $690,487 | | |
| Tax Area: | 510 - APPRAISER-Stan/Cam Schl Dist, improved & 1 acre or less |
| CF | Conservation Futures | 0.0313996660 | $690,487 | $690,487 | $21.68 | | |
| EMS1 | Fire & Rescue Dist #1 Camano GEN (EMS) | 0.4998471806 | $690,487 | $690,487 | $345.14 | | |
| FIRE1 | Fire & Rescue Dist #1 Camano GEN | 1.2496603404 | $690,487 | $690,487 | $862.87 | | |
| FIRE1BOND | Fire & Rescue Dist #1 Camano BOND | 0.1630371212 | $690,487 | $690,487 | $112.58 | | |
| CE | County Current Expense | 0.3674210519 | $690,487 | $690,487 | $253.70 | | |
| CR | County Roads | 0.4614296361 | $690,487 | $690,487 | $318.61 | | |
| LIB | Library Sno-Isle GEN | 0.3039084203 | $690,487 | $690,487 | $209.84 | | |
| SCH205_401 | School 205-401 Enrichment | 1.3697998934 | $690,487 | $690,487 | $945.83 | | |
| SCH205BOND | School 205-401 BOND | 0.9354199323 | $690,487 | $690,487 | $645.90 | | |
| ST | State School | 1.4761226122 | $690,487 | $690,487 | $1,019.24 | | |
| ST2 | State School Part 2 | 0.7953803475 | $690,487 | $690,487 | $549.20 | | |
| | Total Tax Rate: | 7.6534262019 | | | | | |
| | | | | Taxes w/Current Exemptions: | $5,284.59 | | |
| | | | | Taxes w/o Exemptions: | $5,284.59 | | |
Improvement / Building
| Improvement #1: | RESIDENTIAL | State Code: | Y | 3272.0 sqft | Value: | $330,487 |
| Bathrooms: | 3 | Bedrooms: | 3 | | Ceiling: | DRYWALL PAINTED | Exterior Wall/Cover: | WOOD SIDING | | Floor Covering: | CARPET/VINYL 80-20 | Floor Structure: | WOOD W/SUBFLOOR | | Foundation: | CONCRETE | Heating: | WALL HEAT ELECTRIC | | Interior Finish: | DRYWALL PAINT | Plumbing Fixture Cnt: | 12 | | Roof Slope: | 5" IN 12" | Roof Structure/Cover: | CJ ASPHALT |
|
| | Type | Description | Class CD | Sub Class CD | Year Built | Area |
| | BAS | BASE/MAIN FLOOR | 3 | 0 | 1991 | 1644.0 |
| | DWN | DOWNSTAIRS LIVING AREA | 3 | 0 | 1991 | 1628.0 |
| | AGR | ATTACHED GARAGE | 3 | 0 | 1991 | 768.0 |
| | OWP | OPEN WOOD PORCH W/STEPS | 3 | 0 | 1991 | 256.0 |
| | OWC | OPEN WOOD PORCH W/STEPS/ROOF/C | 3 | 0 | 1991 | 256.0 |
Sketch
Property Image
Land
| 1 | 14 | SQ (08001-12000) | 0.0000 | 0.00 | 0.00 | 0.00 | 1.00 | $360,000 | $0 |
Roll Value History
| 2026 | N/A | N/A | N/A | N/A | N/A |
| 2025 | $330,487 | $360,000 | $0 | $690,487 | $690,487 |
| 2024 | $335,060 | $360,000 | $0 | $695,060 | $695,060 |
| 2023 | $339,635 | $360,000 | $0 | $699,635 | $699,635 |
| 2022 | $311,685 | $260,000 | $0 | $571,685 | $571,685 |
| 2021 | $306,259 | $200,000 | $0 | $506,259 | $506,259 |
| 2020 | $298,205 | $180,000 | $0 | $478,205 | $478,205 |
| 2019 | $215,487 | $210,000 | $0 | $425,487 | $425,487 |
| 2018 | $216,175 | $180,000 | $0 | $396,175 | $396,175 |
| 2017 | $217,551 | $130,000 | $0 | $347,551 | $347,551 |
| 2016 | $225,998 | $130,000 | $0 | $355,998 | $355,998 |
| 2015 | $228,896 | $92,800 | $0 | $321,696 | $321,696 |
| 2014 | $231,794 | $92,800 | $0 | $324,594 | $324,594 |
| 2013 | $234,690 | $92,800 | $0 | $327,490 | $327,490 |
| 2012 | $237,588 | $92,800 | $0 | $330,388 | $330,388 |
| 2011 | $240,485 | $116,000 | $0 | $356,485 | $356,485 |
| 2010 | $240,457 | $116,000 | $0 | $356,457 | $356,457 |
| 2009 | $250,697 | $200,000 | $0 | $450,697 | $450,697 |
| 2008 | $253,629 | $200,000 | $0 | $453,629 | $453,629 |
| 2007 | $256,561 | $200,000 | $0 | $456,561 | $456,561 |
Deed and Sales History
| 1 | 04/18/2017 | QCD | Quit Claim Deed | GUNTER, SCHMIDT | SCHMIDT, GUNTER | | | $0.00 | 29328 | 4422699 |
| 2 | 04/18/2017 | QCD | Quit Claim Deed | SCHMIDT CO TRUSTEE, HEINZ | GUNTER, SCHMIDT | | | $0.00 | 29327 | 4422698 |
| 3 | 08/04/2010 | QCD | Quit Claim Deed | SCHMIDT, HEINZ G | SCHMIDT CO TRUSTEE, HEINZ | | | | 1924 | 4278290 |
| 4 | 11/01/1993 | QCD | Quit Claim Deed | SCHMIDT, HEINZ G | SCHMIDT, HEINZ G | | | $0.00 | 34440 | 93023147 |
| 5 | 12/01/1981 | TRUSTEED | Trustee's Deed | GAFFREY, JAMES T | SCHMIDT, HEINZ G | | | $28,000.00 | 20059 | 391953 |
| 6 | 10/01/1980 | TRUSTEED | Trustee's Deed | LINDAUER, CO | GAFFREY, JAMES T | | | $25,000.00 | 3463 | 375155 |
| 7 | 01/01/1900 | OTHER | Other - Misc. Documents | Unknown | LINDAUER, CO | | | $0.00 | 0 | 0 |
Payout Agreement
| No payout information available.. |