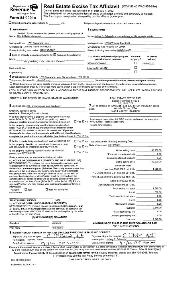
Property
Account |
| Property ID: | 225312 | Abbreviated Legal Description: | CAMANO WOOD LOT 4 |
| Geographic ID: | S6290-00-00004-0 | Agent Code: | |
| Type: | Real | | |
| Tax Area: | 542 - APPRAISER-Stan/Cam Schl Dist, Special Dist, improved, greater than 1 acre | Land Use Code | 11 |
| Open Space: | N | DFL | N |
| Historic Property: | N | Remodel Property: | N |
| Multi-Family Redevelopment: | N | | |
| Township: | | Section: | |
| Range: | |
Location |
| Address: | 1785 TAMARACK LN CAMANO ISLAND, WA 98282 | Mapsco: | |
| Neighborhood: | 58NofTamarackS | Map ID: | 869 |
| Neighborhood CD: | 58RntamS |
Owner |
| Name: | SCHWARTZ, JEFFREY R. | Owner ID: | 306428 |
| Mailing Address: | 196 E 75TH ST APT 4F NEW YORK, NY 10021-3256 | % Ownership: | 100.0000000000% |
| | | Exemptions: | |
Taxes and Assessment Details
Values
| (+) Improvement Homesite Value: | + | $0 | |
| (+) Improvement Non-Homesite Value: | + | $40,395 | |
| (+) Land Homesite Value: | + | $0 | |
| (+) Land Non-Homesite Value: | + | $140,000 | |
| (+) Curr Use (HS): | + | $0 | $0 |
| (+) Curr Use (NHS): | + | $0 | $0 |
| | | -------------------------- | |
| (=) Market Value: | = | $180,395 | |
| (–) Productivity Loss: | – | $0 | |
| | | -------------------------- | |
| (=) Subtotal: | = | $180,395 | |
| (+) Senior Appraised Value: | + | $0 | |
| (+) Non-Senior Appraised Value: | + | $180,395 | |
| | | -------------------------- | |
| (=) Total Appraised Value: | = | $180,395 | |
| (–) Senior Exemption Loss: | – | $0 | |
| (–) Exemption Loss: | – | $0 | |
| | | -------------------------- | |
| (=) Taxable Value: | = | $180,395 | |
Taxing Jurisdiction
| Owner: | SCHWARTZ, JEFFREY R. | | |
| % Ownership: | 100.0000000000% | | |
| Total Value: | $180,395 | | |
| Tax Area: | 542 - APPRAISER-Stan/Cam Schl Dist, Special Dist, improved, greater than 1 acre |
| CF | Conservation Futures | 0.0313996660 | $180,395 | $180,395 | $5.66 | | |
| EMS1 | Fire & Rescue Dist #1 Camano GEN (EMS) | 0.4998471806 | $180,395 | $180,395 | $90.17 | | |
| FIRE1 | Fire & Rescue Dist #1 Camano GEN | 1.2496603404 | $180,395 | $180,395 | $225.43 | | |
| FIRE1BOND | Fire & Rescue Dist #1 Camano BOND | 0.1630371212 | $180,395 | $180,395 | $29.41 | | |
| CE | County Current Expense | 0.3674210519 | $180,395 | $180,395 | $66.28 | | |
| CR | County Roads | 0.4614296361 | $180,395 | $180,395 | $83.24 | | |
| LIB | Library Sno-Isle GEN | 0.3039084203 | $180,395 | $180,395 | $54.82 | | |
| SCH205_401 | School 205-401 Enrichment | 1.3697998934 | $180,395 | $180,395 | $247.11 | | |
| SCH205BOND | School 205-401 BOND | 0.9354199323 | $180,395 | $180,395 | $168.75 | | |
| ST | State School | 1.4761226122 | $180,395 | $180,395 | $266.29 | | |
| ST2 | State School Part 2 | 0.7953803475 | $180,395 | $180,395 | $143.48 | | |
| | Total Tax Rate: | 7.6534262019 | | | | | |
| | | | | Taxes w/Current Exemptions: | $1,380.64 | | |
| | | | | Taxes w/o Exemptions: | $1,380.64 | | |
Improvement / Building
| Improvement #1: | RESIDENTIAL | State Code: | Y | 2145.4 sqft | Value: | $40,395 |
| Bathrooms: | 2 | Bedrooms: | 3 | | Ceiling: | DRYWALL PAINTED | Exterior Wall/Cover: | CEMENT FIBER | | Floor Covering: | (NONE) | Floor Structure: | WOOD W/SUBFLOOR | | Foundation: | CONCRETE | Heating: | (NONE) | | Interior Finish: | DRYWALL PAINT | Plumbing Fixture Cnt: | 13 | | Roof Slope: | 6" IN 12" | Roof Structure/Cover: | CJ ASPHALT |
|
| | Type | Description | Class CD | Sub Class CD | Year Built | Area |
| | BAS | BASE/MAIN FLOOR | 3 | 0 | 2025 | 2145.4 |
| | OP4 | OPEN PORCH W/CEILING-ROOF | 3 | 0 | 2025 | 52.3 |
| | AGR | ATTACHED GARAGE | 3 | 0 | 2025 | 547.5 |
| | OP4 | OPEN PORCH W/CEILING-ROOF | 3 | 0 | 2025 | 0.0 |
| | OWP | OPEN WOOD PORCH W/STEPS | 3 | 0 | 2025 | 0.0 |
| | OWR | OPEN WOOD PORCH W/STEPS/ROOF | 3 | 0 | 2025 | 0.0 |
Sketch
| No sketches available for this property. |
Property Image
Land
| 1 | 18 | AC (02.01-03.00) | 2.2700 | 98881.20 | 0.00 | 0.00 | 1.00 | $140,000 | $0 |
Roll Value History
| 2026 | N/A | N/A | N/A | N/A | N/A |
| 2025 | $40,395 | $140,000 | $0 | $180,395 | $180,395 |
| 2024 | $0 | $120,000 | $0 | $120,000 | $120,000 |
| 2023 | $0 | $120,000 | $0 | $120,000 | $120,000 |
| 2022 | $0 | $90,000 | $0 | $90,000 | $90,000 |
| 2021 | $0 | $70,000 | $0 | $70,000 | $70,000 |
| 2020 | $0 | $70,000 | $0 | $70,000 | $70,000 |
| 2019 | $0 | $70,000 | $0 | $70,000 | $70,000 |
| 2018 | $0 | $65,000 | $0 | $65,000 | $65,000 |
| 2017 | $0 | $65,000 | $0 | $65,000 | $65,000 |
| 2016 | $0 | $50,000 | $0 | $50,000 | $50,000 |
| 2015 | $0 | $40,000 | $0 | $40,000 | $40,000 |
| 2014 | $0 | $40,000 | $0 | $40,000 | $40,000 |
| 2013 | $0 | $40,000 | $0 | $40,000 | $40,000 |
| 2012 | $0 | $55,800 | $0 | $55,800 | $55,800 |
| 2011 | $0 | $55,800 | $0 | $55,800 | $55,800 |
| 2010 | $0 | $55,800 | $0 | $55,800 | $55,800 |
| 2009 | $0 | $98,400 | $0 | $98,400 | $98,400 |
| 2008 | $0 | $81,180 | $0 | $81,180 | $81,180 |
| 2007 | $0 | $84,575 | $0 | $84,575 | $84,575 |
Deed and Sales History
| 1 | 09/09/2022 | QCD | Quit Claim Deed | HALBERSTAM, MOLLIE G | SCHWARTZ, JEFFREY R. | | | $0.00 | 54809 | 4552341 |
| 2 | 09/13/2022 | WD | Warranty Deed | RYSER, RON B | SCHWARTZ, JEFFREY R. | | | $140,000.00 | 54808 | 4552340 |
| 3 | 06/19/2002 | WD | Warranty Deed | MOTHER, JOSEPH F | RYSER, RON B | | | $35,000.00 | 22494 | 4024159 |
| 4 | 06/01/1985 | QCD | Quit Claim Deed | BROWN, RODNEY A | MOTHER, JOSEPH F | | | $0.00 | 51434 | 85005831 |
| 5 | 01/01/1900 | OTHER | Other - Misc. Documents | Unknown | BROWN, RODNEY A | | | $0.00 | 0 | 0 |
Payout Agreement
| No payout information available.. |