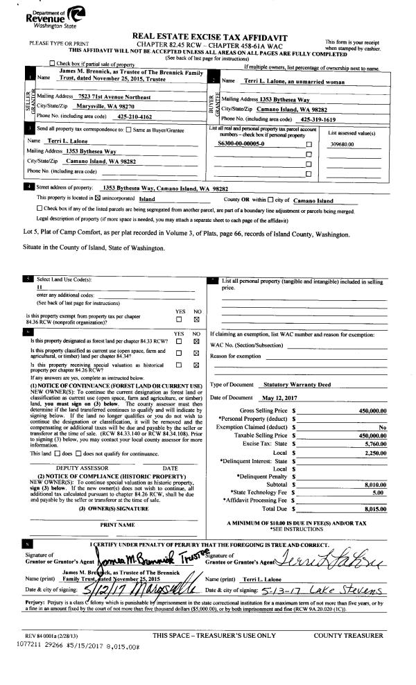
Property
Account |
| Property ID: | 225900 | Abbreviated Legal Description: | CAMP COMFORT LOT 5 |
| Geographic ID: | S6300-00-00005-0 | Agent Code: | |
| Type: | Real | | |
| Tax Area: | 510 - APPRAISER-Stan/Cam Schl Dist, improved & 1 acre or less | Land Use Code | 11 |
| Open Space: | N | DFL | N |
| Historic Property: | N | Remodel Property: | N |
| Multi-Family Redevelopment: | N | | |
| Township: | | Section: | |
| Range: | |
Location |
| Address: | 1353 BYTHESEA WAY CAMANO ISLAND, WA 98282 | Mapsco: | |
| Neighborhood: | Cycle 5 | Map ID: | 502 |
| Neighborhood CD: | 5 |
Owner |
| Name: | LALONE, TERRI L | Owner ID: | 279871 |
| Mailing Address: | 1353 BYTHESEA WAY CAMANO ISLAND, WA 98282 | % Ownership: | 100.0000000000% |
| | | Exemptions: | |
Taxes and Assessment Details
Values
| (+) Improvement Homesite Value: | + | $0 | |
| (+) Improvement Non-Homesite Value: | + | $139,152 | |
| (+) Land Homesite Value: | + | $0 | |
| (+) Land Non-Homesite Value: | + | $650,000 | |
| (+) Curr Use (HS): | + | $0 | $0 |
| (+) Curr Use (NHS): | + | $0 | $0 |
| | | -------------------------- | |
| (=) Market Value: | = | $789,152 | |
| (–) Productivity Loss: | – | $0 | |
| | | -------------------------- | |
| (=) Subtotal: | = | $789,152 | |
| (+) Senior Appraised Value: | + | $0 | |
| (+) Non-Senior Appraised Value: | + | $789,152 | |
| | | -------------------------- | |
| (=) Total Appraised Value: | = | $789,152 | |
| (–) Senior Exemption Loss: | – | $0 | |
| (–) Exemption Loss: | – | $0 | |
| | | -------------------------- | |
| (=) Taxable Value: | = | $789,152 | |
Taxing Jurisdiction
| Owner: | LALONE, TERRI L | | |
| % Ownership: | 100.0000000000% | | |
| Total Value: | $789,152 | | |
| Tax Area: | 510 - APPRAISER-Stan/Cam Schl Dist, improved & 1 acre or less |
| CF | Conservation Futures | 0.0313996660 | $789,152 | $789,152 | $24.78 | | |
| EMS1 | Fire & Rescue Dist #1 Camano GEN (EMS) | 0.4998471806 | $789,152 | $789,152 | $394.46 | | |
| FIRE1 | Fire & Rescue Dist #1 Camano GEN | 1.2496603404 | $789,152 | $789,152 | $986.17 | | |
| FIRE1BOND | Fire & Rescue Dist #1 Camano BOND | 0.1630371212 | $789,152 | $789,152 | $128.66 | | |
| CE | County Current Expense | 0.3674210519 | $789,152 | $789,152 | $289.95 | | |
| CR | County Roads | 0.4614296361 | $789,152 | $789,152 | $364.14 | | |
| LIB | Library Sno-Isle GEN | 0.3039084203 | $789,152 | $789,152 | $239.83 | | |
| SCH205_401 | School 205-401 Enrichment | 1.3697998934 | $789,152 | $789,152 | $1,080.98 | | |
| SCH205BOND | School 205-401 BOND | 0.9354199323 | $789,152 | $789,152 | $738.19 | | |
| ST | State School | 1.4761226122 | $789,152 | $789,152 | $1,164.89 | | |
| ST2 | State School Part 2 | 0.7953803475 | $789,152 | $789,152 | $627.68 | | |
| | Total Tax Rate: | 7.6534262019 | | | | | |
| | | | | Taxes w/Current Exemptions: | $6,039.73 | | |
| | | | | Taxes w/o Exemptions: | $6,039.73 | | |
Improvement / Building
| Improvement #1: | RESIDENTIAL | State Code: | Y | 1251.7 sqft | Value: | $139,152 |
| Bathrooms: | 2 | Bedrooms: | 2 | | Ceiling: | DRYWALL PAINTED | Exterior Wall/Cover: | STUCCO | | Floor Covering: | CERAMIC TILE/CPT 40-60 | Floor Structure: | WOOD W/SUBFLOOR | | Foundation: | CONCRETE BLOCKS | Heating: | BASEBOARD ELECTRIC | | Interior Finish: | DRYWALL PAINT | Plumbing Fixture Cnt: | 9 | | Roof Slope: | FLAT | Roof Structure/Cover: | CJ BUILT-UP ROCK |
|
| | Type | Description | Class CD | Sub Class CD | Year Built | Area |
| | BAS | BASE/MAIN FLOOR | 3 | 0 | 1953 | 760.8 |
| | DWN | DOWNSTAIRS LIVING AREA | 3 | 0 | 1953 | 490.9 |
| | OP3 | OPEN PORCH W/ROOF | 3 | 0 | 1953 | 40.0 |
| | BIG | BUILT IN GARAGE | 3 | 0 | 1953 | 269.9 |
| | OWR | OPEN WOOD PORCH W/STEPS/ROOF | 3 | 0 | 1953 | 243.6 |
| | OP3 | OPEN PORCH W/ROOF | 3 | 0 | 1953 | 104.0 |
Sketch
Property Image
Land
| 1 | LB | LOW BANK | 0.0000 | 0.00 | 37.00 | 0.00 | 1.00 | $650,000 | $0 |
Roll Value History
| 2026 | N/A | N/A | N/A | N/A | N/A |
| 2025 | $139,152 | $650,000 | $0 | $789,152 | $789,152 |
| 2024 | $144,592 | $650,000 | $0 | $794,592 | $794,592 |
| 2023 | $147,162 | $650,000 | $0 | $797,162 | $797,162 |
| 2022 | $135,580 | $550,000 | $0 | $685,580 | $685,580 |
| 2021 | $84,696 | $275,000 | $0 | $359,696 | $359,696 |
| 2020 | $82,811 | $275,000 | $0 | $357,811 | $357,811 |
| 2019 | $57,749 | $275,000 | $0 | $332,749 | $332,749 |
| 2018 | $58,030 | $250,000 | $0 | $308,030 | $308,030 |
| 2017 | $58,555 | $250,000 | $0 | $308,555 | $308,555 |
| 2016 | $59,680 | $250,000 | $0 | $309,680 | $309,680 |
| 2015 | $49,088 | $250,000 | $0 | $299,088 | $299,088 |
| 2014 | $50,204 | $250,000 | $0 | $300,204 | $300,204 |
| 2013 | $51,319 | $199,209 | $0 | $250,528 | $250,528 |
| 2012 | $52,435 | $199,209 | $0 | $251,644 | $251,644 |
| 2011 | $53,551 | $249,011 | $0 | $302,562 | $302,562 |
| 2010 | $64,962 | $249,011 | $0 | $313,973 | $313,973 |
| 2009 | $67,989 | $279,194 | $0 | $347,183 | $347,183 |
| 2008 | $69,141 | $279,194 | $0 | $348,335 | $348,335 |
| 2007 | $45,433 | $304,054 | $0 | $349,487 | $349,487 |
Deed and Sales History
| 1 | 12/29/2025 | QCD | Quit Claim Deed | BAYONA, JENNIFER | BMMJR HALE LLC | | | $0.00 | 66023 | 4596055 |
| 2 | 10/17/2025 | WD | Warranty Deed | LALONE, TERRI L | BAYONA, JENNIFER | | | $970,000.00 | 65207 | 4592496 |
| 3 | 05/12/2017 | WD | Warranty Deed | BRENNICK TRUSTEE, JAMES M | LALONE, TERRI L | | | $450,000.00 | 29266 | 4422460 |
| 4 | 12/08/2015 | TRUSTEED | Trustee's Deed | BRENNICK, JAMES M | BRENNICK TRUSTEE, JAMES M | | | $0.00 | 22491 | 4391071 |
| 5 | 07/25/2000 | WD | Warranty Deed | BOURQUE, PHILIP J | BRENNICK, JAMES M | | | $208,000.00 | 2814 | 20013270 |
| 6 | 08/20/1999 | QCD | Quit Claim Deed | BOURQUE, PHILIP J | BOURQUE, PHILIP J | | | $0.00 | 93502 | 99020028 |
| 7 | 06/01/1984 | REC | Real Estate Contract | BUCKMAN, JAMES F | BOURQUE, PHILIP J | | | $75,000.00 | 41597 | 425466 |
| 8 | 03/01/1982 | OTHER | Other - Misc. Documents | BUCKMAN, JAMES F | BUCKMAN, JAMES F | | | $1.00 | 20817 | 395051 |
| 9 | 05/01/1973 | EXECUTORD | Executor Deed | COGSWELL, JESSYE | BUCKMAN, JAMES F | | | $0.00 | 47271 | 0 |
| 10 | 08/01/1967 | EXECUTORD | Executor Deed | THOMPSON, ELLIS L | COGSWELL, JESSYE | | | $0.00 | 27369 | 0 |
| 11 | 01/01/1900 | OTHER | Other - Misc. Documents | Unknown | THOMPSON, ELLIS L | | | $0.00 | 0 | 0 |
Payout Agreement
| No payout information available.. |