Property
Account |
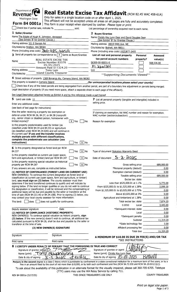
| Property ID: | 226124 | Abbreviated Legal Description: | CAMP COMFORT LOTS 31 & 32 |
| Geographic ID: | S6300-00-00031-0 | Agent Code: | |
| Type: | Real | | |
| Tax Area: | 510 - APPRAISER-Stan/Cam Schl Dist, improved & 1 acre or less | Land Use Code | 11 |
| Open Space: | N | DFL | N |
| Historic Property: | N | Remodel Property: | N |
| Multi-Family Redevelopment: | N | | |
| Township: | | Section: | |
| Range: | |
Location |
| Address: | 1369 BONANZA ALY CAMANO ISLAND, WA 98282 | Mapsco: | |
| Neighborhood: | Cycle 5 | Map ID: | 502 |
| Neighborhood CD: | 5 |
Owner |
| Name: | DEER, CHRISTY KAY LYNN | Owner ID: | 316695 |
| Mailing Address: | DAVID DOUGLAS DEER 18019 94TH AVE NE BOTHELL, WA 98011 | % Ownership: | 100.0000000000% |
| | | Exemptions: | |
Taxes and Assessment Details
Values
| (+) Improvement Homesite Value: | + | $0 | |
| (+) Improvement Non-Homesite Value: | + | $285,027 | |
| (+) Land Homesite Value: | + | $0 | |
| (+) Land Non-Homesite Value: | + | $280,000 | |
| (+) Curr Use (HS): | + | $0 | $0 |
| (+) Curr Use (NHS): | + | $0 | $0 |
| | | -------------------------- | |
| (=) Market Value: | = | $565,027 | |
| (–) Productivity Loss: | – | $0 | |
| | | -------------------------- | |
| (=) Subtotal: | = | $565,027 | |
| (+) Senior Appraised Value: | + | $0 | |
| (+) Non-Senior Appraised Value: | + | $565,027 | |
| | | -------------------------- | |
| (=) Total Appraised Value: | = | $565,027 | |
| (–) Senior Exemption Loss: | – | $0 | |
| (–) Exemption Loss: | – | $0 | |
| | | -------------------------- | |
| (=) Taxable Value: | = | $565,027 | |
Taxing Jurisdiction
| Owner: | DEER, CHRISTY KAY LYNN | | |
| % Ownership: | 100.0000000000% | | |
| Total Value: | $565,027 | | |
| Tax Area: | 510 - APPRAISER-Stan/Cam Schl Dist, improved & 1 acre or less |
| CF | Conservation Futures | 0.0313996660 | $565,027 | $565,027 | $17.74 | | |
| EMS1 | Fire & Rescue Dist #1 Camano GEN (EMS) | 0.4998471806 | $565,027 | $565,027 | $282.43 | | |
| FIRE1 | Fire & Rescue Dist #1 Camano GEN | 1.2496603404 | $565,027 | $565,027 | $706.09 | | |
| FIRE1BOND | Fire & Rescue Dist #1 Camano BOND | 0.1630371212 | $565,027 | $565,027 | $92.12 | | |
| CE | County Current Expense | 0.3674210519 | $565,027 | $565,027 | $207.60 | | |
| CR | County Roads | 0.4614296361 | $565,027 | $565,027 | $260.72 | | |
| LIB | Library Sno-Isle GEN | 0.3039084203 | $565,027 | $565,027 | $171.72 | | |
| SCH205_401 | School 205-401 Enrichment | 1.3697998934 | $565,027 | $565,027 | $773.97 | | |
| SCH205BOND | School 205-401 BOND | 0.9354199323 | $565,027 | $565,027 | $528.54 | | |
| ST | State School | 1.4761226122 | $565,027 | $565,027 | $834.05 | | |
| ST2 | State School Part 2 | 0.7953803475 | $565,027 | $565,027 | $449.41 | | |
| | Total Tax Rate: | 7.6534262019 | | | | | |
| | | | | Taxes w/Current Exemptions: | $4,324.39 | | |
| | | | | Taxes w/o Exemptions: | $4,324.39 | | |
Improvement / Building
| Improvement #1: | RESIDENTIAL | State Code: | Y | 1548.3 sqft | Value: | $285,027 |
| Bathrooms: | 3 | Bedrooms: | 3 | | Ceiling: | DRYWALL PAINTED | Exterior Wall/Cover: | PLY/HARDBOARD T-111 | | Floor Covering: | CARPET/VINYL 80-20 | Floor Structure: | WOOD W/SUBFLOOR | | Foundation: | CONCRETE | Heating: | FHA GAS | | Interior Finish: | DRYWALL PAINT | Plumbing Fixture Cnt: | 13 | | Roof Slope: | 3" IN 12" | Roof Structure/Cover: | CJ ASPHALT |
|
| | Type | Description | Class CD | Sub Class CD | Year Built | Area |
| | BAS | BASE/MAIN FLOOR | 3 | 0 | 2002 | 1102.9 |
| | BIG | BUILT IN GARAGE | 3 | 0 | 2002 | 657.5 |
| | OWC | OPEN WOOD PORCH W/STEPS/ROOF/C | 3 | 0 | 2002 | 291.2 |
| | OWC | OPEN WOOD PORCH W/STEPS/ROOF/C | 3 | 0 | 2002 | 294.0 |
| | DWN | DOWNSTAIRS LIVING AREA | 3 | 0 | 2002 | 445.4 |
Sketch
Property Image
Land
| 1 | 12 | SQ (00000-06000) | 0.0000 | 0.00 | 0.00 | 0.00 | 1.00 | $280,000 | $0 |
Roll Value History
| 2026 | N/A | N/A | N/A | N/A | N/A |
| 2025 | $285,027 | $280,000 | $0 | $565,027 | $565,027 |
| 2024 | $288,536 | $280,000 | $0 | $568,536 | $227,414 |
| 2023 | $292,043 | $280,000 | $0 | $572,043 | $228,817 |
| 2022 | $267,629 | $230,000 | $0 | $497,629 | $497,629 |
| 2021 | $238,992 | $150,000 | $0 | $388,992 | $388,992 |
| 2020 | $232,151 | $150,000 | $0 | $382,151 | $382,151 |
| 2019 | $165,894 | $200,000 | $0 | $365,894 | $365,894 |
| 2018 | $166,368 | $150,000 | $0 | $316,368 | $316,368 |
| 2017 | $167,240 | $110,000 | $0 | $277,240 | $277,240 |
| 2016 | $169,140 | $110,000 | $0 | $279,140 | $279,140 |
| 2015 | $166,150 | $75,000 | $0 | $241,150 | $241,150 |
| 2014 | $168,054 | $75,000 | $0 | $243,054 | $243,054 |
| 2013 | $169,957 | $75,000 | $0 | $244,957 | $244,957 |
| 2012 | $171,860 | $86,400 | $0 | $258,260 | $258,260 |
| 2011 | $173,764 | $108,000 | $0 | $281,764 | $281,764 |
| 2010 | $183,690 | $108,000 | $0 | $291,690 | $291,690 |
| 2009 | $201,823 | $125,000 | $0 | $326,823 | $326,823 |
| 2008 | $204,063 | $94,500 | $0 | $298,563 | $298,563 |
| 2007 | $208,230 | $94,500 | $0 | $302,730 | $302,730 |
Deed and Sales History
| 1 | 05/02/2025 | WD | Warranty Deed | JOHNSTON, HUGH R | DEER, CHRISTY KAY LYNN | | | $689,000.00 | 63376 | 4585375 |
| 2 | 03/10/2017 | QCD | Quit Claim Deed | JOHNSTON, HUGH R / CELIA L | JOHNSTON, HUGH R | | | $0.00 | 28449 | 4418877 |
| 3 | 12/12/2001 | BLA | DNU - Boundary Line Adjustment | JOHNSTON, HUGH R/CELIA L | JOHNSTON, HUGH R/CELIA L | | | $0.00 | 69235 | 20032262 |
| 4 | 05/25/1999 | SEG | DNU - Segregation | JOHNSTON, HUGH R | JOHNSTON, HUGH R/CELIA L | | | $0.00 | 68266 | 0 |
| 5 | 07/01/1995 | WD | Warranty Deed | MAGILL, GORDON | JOHNSTON, HUGH R | | | $90,000.00 | 52387 | 95011062 |
| 6 | 01/01/1900 | OTHER | Other - Misc. Documents | Unknown | MAGILL, GORDON | | | $0.00 | 0 | 0 |
Payout Agreement
| No payout information available.. |