Property
Account |
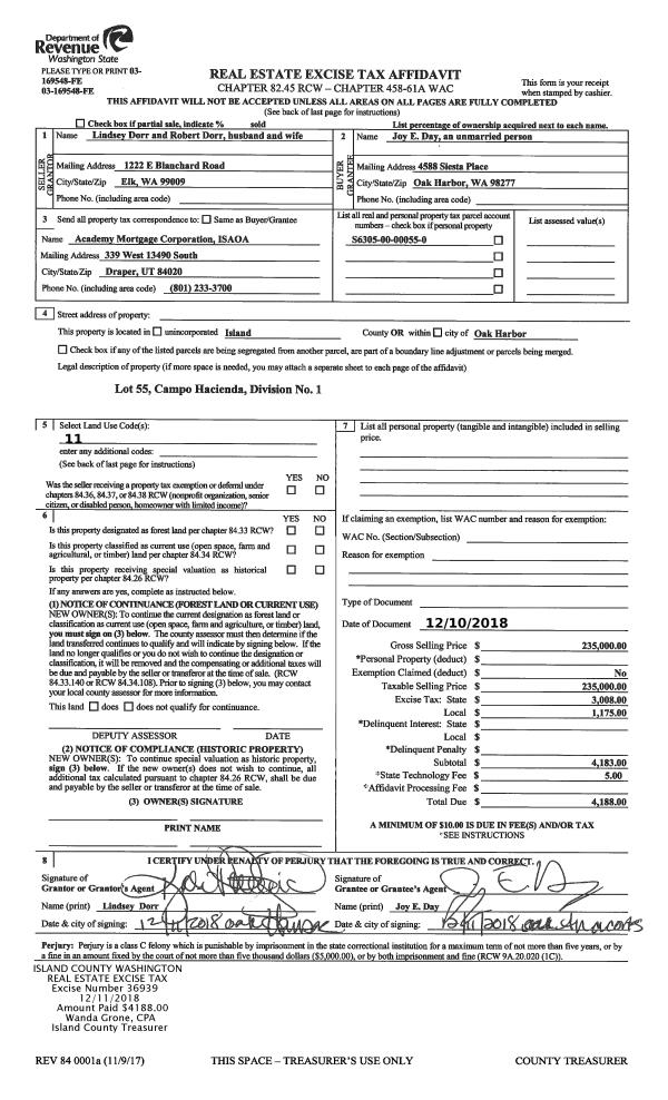
| Property ID: | 227089 | Abbreviated Legal Description: | CAMPO HAC 1 LOT 55 |
| Geographic ID: | S6305-00-00055-0 | Agent Code: | |
| Type: | Real | | |
| Tax Area: | 110 - APPRAISER-OH Schl Dist, outside OH, improved & 1 acre or less | Land Use Code | 11 |
| Open Space: | N | DFL | N |
| Historic Property: | N | Remodel Property: | N |
| Multi-Family Redevelopment: | N | | |
| Township: | | Section: | |
| Range: | |
Location |
| Address: | 4588 SIESTA PLACE OAK HARBOR, WA 98277 | Mapsco: | |
| Neighborhood: | Cycle 6 | Map ID: | 190 |
| Neighborhood CD: | 6 |
Owner |
| Name: | DAY, JOY E | Owner ID: | 288178 |
| Mailing Address: | 4588 SIESTA PL OAK HARBOR, WA 98277 | % Ownership: | 100.0000000000% |
| | | Exemptions: | |
Taxes and Assessment Details
Values
| (+) Improvement Homesite Value: | + | $0 | |
| (+) Improvement Non-Homesite Value: | + | $93,191 | |
| (+) Land Homesite Value: | + | $0 | |
| (+) Land Non-Homesite Value: | + | $220,000 | |
| (+) Curr Use (HS): | + | $0 | $0 |
| (+) Curr Use (NHS): | + | $0 | $0 |
| | | -------------------------- | |
| (=) Market Value: | = | $313,191 | |
| (–) Productivity Loss: | – | $0 | |
| | | -------------------------- | |
| (=) Subtotal: | = | $313,191 | |
| (+) Senior Appraised Value: | + | $0 | |
| (+) Non-Senior Appraised Value: | + | $313,191 | |
| | | -------------------------- | |
| (=) Total Appraised Value: | = | $313,191 | |
| (–) Senior Exemption Loss: | – | $0 | |
| (–) Exemption Loss: | – | $0 | |
| | | -------------------------- | |
| (=) Taxable Value: | = | $313,191 | |
Taxing Jurisdiction
| Owner: | DAY, JOY E | | |
| % Ownership: | 100.0000000000% | | |
| Total Value: | $313,191 | | |
| Tax Area: | 110 - APPRAISER-OH Schl Dist, outside OH, improved & 1 acre or less |
| CF | Conservation Futures | 0.0313996660 | $313,191 | $313,191 | $9.83 | | |
| CEM1 | Cemetery #1 | 0.0040018856 | $313,191 | $313,191 | $1.25 | | |
| FIRE2 | Fire & Rescue Dist #2 N Whidbey GEN | 0.5381486274 | $313,191 | $313,191 | $168.54 | | |
| HOBOND | Hospital BOND | 0.1893405597 | $313,191 | $313,191 | $59.30 | | |
| HOGEN | Hospital GEN | 0.3848777722 | $313,191 | $313,191 | $120.54 | | |
| CE | County Current Expense | 0.3674210519 | $313,191 | $313,191 | $115.07 | | |
| CR | County Roads | 0.4614296361 | $313,191 | $313,191 | $144.52 | | |
| ISLANDEMS | Hospital GEN (EMS) | 0.4952018576 | $313,191 | $313,191 | $155.09 | | |
| LIB | Library Sno-Isle GEN | 0.3039084203 | $313,191 | $313,191 | $95.18 | | |
| NWHIDPRMT | P & R N Whidbey GEN | 0.1990272349 | $313,191 | $313,191 | $62.33 | | |
| SCH201MO | School 201 Enrichment | 2.3851112745 | $313,191 | $313,191 | $747.00 | | |
| ST | State School | 1.4761226122 | $313,191 | $313,191 | $462.31 | | |
| ST2 | State School Part 2 | 0.7953803475 | $313,191 | $313,191 | $249.11 | | |
| | Total Tax Rate: | 7.6313709459 | | | | | |
| | | | | Taxes w/Current Exemptions: | $2,390.07 | | |
| | | | | Taxes w/o Exemptions: | $2,390.07 | | |
Improvement / Building
| Improvement #1: | MANUFACTURED HOME | State Code: | Y | 1080.0 sqft | Value: | $93,191 |
| Bathrooms: | 0 | Bedrooms: | 0 | | Ceiling: | PLASTER PAINTED | Cooling: | EVAP NO DUCT | | Exterior Wall/Cover: | VINYL | Floor Covering: | CARPET 100% | | Floor Structure: | SLAB ON GRADE | Foundation: | SLAB | | Heating: | FHA ELECTRIC | Interior Finish: | PLASTER | | Plumbing Fixture Cnt: | 1 | Roof Slope: | FLAT | | Roof Structure/Cover: | CJ ALUMINIUM HEAVY |   |   |
|
| | Type | Description | Class CD | Sub Class CD | Year Built | Area |
| | BAS | BASE/MAIN FLOOR | 4 | 0 | 1991 | 1080.0 |
| | OWP | OPEN WOOD PORCH W/STEPS | 4 | 0 | 1991 | 84.0 |
Sketch
Property Image
Land
| 1 | 15 | SQ (12001-21780) | 0.0000 | 0.00 | 0.00 | 0.00 | 1.00 | $220,000 | $0 |
Roll Value History
| 2026 | N/A | N/A | N/A | N/A | N/A |
| 2025 | $93,191 | $220,000 | $0 | $313,191 | $313,191 |
| 2024 | $95,933 | $200,000 | $0 | $295,933 | $295,933 |
| 2023 | $85,801 | $190,000 | $0 | $275,801 | $275,801 |
| 2022 | $68,929 | $170,000 | $0 | $238,929 | $238,929 |
| 2021 | $61,579 | $150,000 | $0 | $211,579 | $211,579 |
| 2020 | $61,374 | $135,000 | $0 | $196,374 | $196,374 |
| 2019 | $49,602 | $170,000 | $0 | $219,602 | $219,602 |
| 2018 | $40,280 | $130,000 | $0 | $170,280 | $170,280 |
| 2017 | $41,465 | $110,000 | $0 | $151,465 | $151,465 |
| 2016 | $42,650 | $85,000 | $0 | $127,650 | $127,650 |
| 2015 | $43,242 | $65,000 | $0 | $108,242 | $108,242 |
| 2014 | $44,426 | $50,000 | $0 | $94,426 | $94,426 |
| 2013 | $45,611 | $72,250 | $0 | $117,861 | $117,861 |
| 2012 | $46,796 | $72,250 | $0 | $119,046 | $119,046 |
| 2011 | $47,980 | $85,000 | $0 | $132,980 | $132,980 |
| 2010 | $56,178 | $85,000 | $0 | $141,178 | $141,178 |
| 2009 | $59,353 | $95,000 | $0 | $154,353 | $154,353 |
| 2008 | $61,136 | $104,500 | $0 | $165,636 | $165,636 |
| 2007 | $62,284 | $104,500 | $0 | $166,784 | $166,784 |
Deed and Sales History
| 1 | 12/10/2018 | WD | Warranty Deed | DORR, ROBERT P | DAY, JOY E | | | $235,000.00 | 36939 | 4456295 |
| 2 | 06/02/2006 | ESTSEPPROP | Establish Separate Property | DORR, ROBERT P | DORR, ROBERT P | | | $0.00 | 62618 | 4173350 |
| 3 | 05/09/2005 | WD | Warranty Deed | ANDERSON, SHAUN J | DORR, ROBERT P | | | $135,900.00 | 52255 | 4134872 |
| 4 | 12/16/2004 | TRUSTEED | Trustee's Deed | VETERANS AFFAIRS, THE SECRETAR | ANDERSON, SHAUN J | | | $90,100.00 | 45931 | 4121342 |
| 5 | 07/01/2003 | TRUSTEED | Trustee's Deed | BROOKS, KARRY L | VETERANS AFFAIRS, THE SECRETAR | | | $89,011.00 | 32880 | 4065416 |
| 6 | 11/20/2000 | 5 | DNU - Marriage License/Name Change | BROOKS, KARRY L | BROOKS, KARRY L | | | $0.00 | 68858 | 0 |
| 7 | 09/01/2000 | QCD | Quit Claim Deed | MALETTO, KARRY | BROOKS, KARRY L | | | $0.00 | 3354 | 20015583 |
| 8 | 05/26/1999 | ESTSEPPROP | Establish Separate Property | MALETTO, KARRY | MALETTO, KARRY | | | $0.00 | 94175 | 99022888 |
| 9 | 05/05/1999 | OTHER | Other - Misc. Documents | MELETTO, JON / | MALETTO, KARRY | | | $0.00 | 94181 | 0 |
| 10 | 05/01/1995 | OTHER | Other - Misc. Documents | MALETTO, JON F | MELETTO, JON / | | | $41,800.00 | 51796 | 0 |
| 11 | 05/01/1995 | WD | Warranty Deed | NELSON, JOHN R | MALETTO, JON F | | | $53,200.00 | 51795 | 95008428 |
| 12 | 02/01/1991 | OTHER | Other - Misc. Documents | NELSON, JOHN R | NELSON, JOHN R | | | $30,700.00 | 11111111 | 0 |
| 13 | 11/01/1990 | WD | Warranty Deed | BRADFIELD, DOLLY M | NELSON, JOHN R | | | $12,000.00 | 6180 | 90021197 |
| 14 | 06/01/1985 | OTHER | Other - Misc. Documents | BRADFIELD, JOHN M | BRADFIELD, DOLLY M | | | $0.00 | 61220 | 0 |
| 15 | 01/01/1900 | OTHER | Other - Misc. Documents | Unknown | BRADFIELD, JOHN M | | | $0.00 | 0 | 0 |
Payout Agreement
| No payout information available.. |