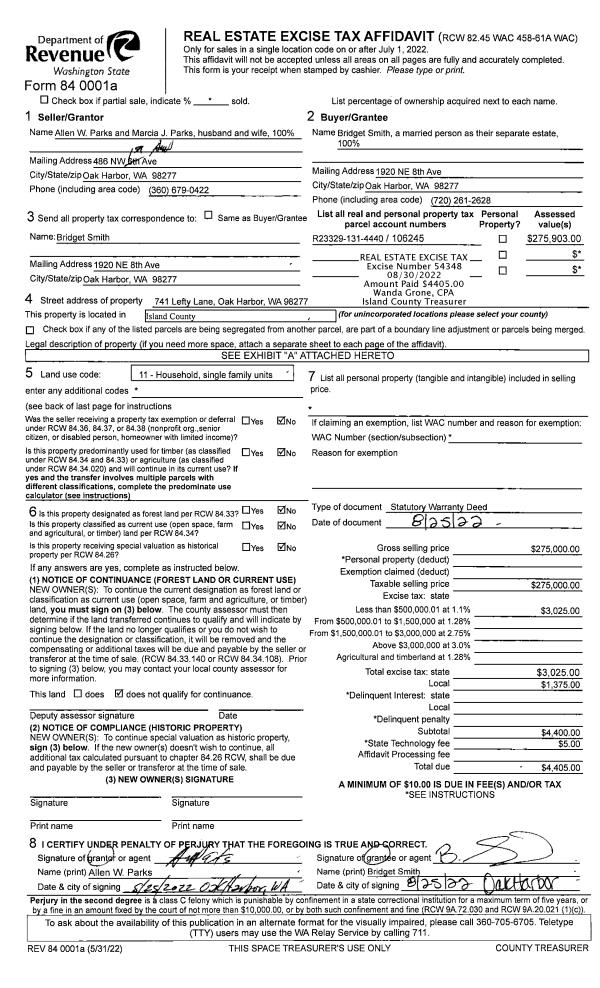
Property
Account |
| Property ID: | 227294 | Abbreviated Legal Description: | CAREFREE AC 1 LOT 2 EX E 1/2 |
| Geographic ID: | S6315-00-00002-1 | Agent Code: | |
| Type: | Real | | |
| Tax Area: | 512 - APPRAISER-Stan/Cam Schl Dist, improved, greater than 1 acre | Land Use Code | 11 |
| Open Space: | N | DFL | N |
| Historic Property: | N | Remodel Property: | N |
| Multi-Family Redevelopment: | N | | |
| Township: | | Section: | |
| Range: | |
Location |
| Address: | 870 CEDAR LN CAMANO ISLAND, WA 98282 | Mapsco: | |
| Neighborhood: | Cycle 5 | Map ID: | 457 |
| Neighborhood CD: | 5 |
Owner |
| Name: | MUSGRAVE, JOEL P | Owner ID: | 292767 |
| Mailing Address: | JESSICA L MUSGRAVE 870 CEDAR LN CAMANO ISLAND, WA 98282 | % Ownership: | 100.0000000000% |
| | | Exemptions: | |
Taxes and Assessment Details
Values
| (+) Improvement Homesite Value: | + | $0 | |
| (+) Improvement Non-Homesite Value: | + | $517,993 | |
| (+) Land Homesite Value: | + | $0 | |
| (+) Land Non-Homesite Value: | + | $250,000 | |
| (+) Curr Use (HS): | + | $0 | $0 |
| (+) Curr Use (NHS): | + | $0 | $0 |
| | | -------------------------- | |
| (=) Market Value: | = | $767,993 | |
| (–) Productivity Loss: | – | $0 | |
| | | -------------------------- | |
| (=) Subtotal: | = | $767,993 | |
| (+) Senior Appraised Value: | + | $0 | |
| (+) Non-Senior Appraised Value: | + | $767,993 | |
| | | -------------------------- | |
| (=) Total Appraised Value: | = | $767,993 | |
| (–) Senior Exemption Loss: | – | $0 | |
| (–) Exemption Loss: | – | $0 | |
| | | -------------------------- | |
| (=) Taxable Value: | = | $767,993 | |
Taxing Jurisdiction
| Owner: | MUSGRAVE, JOEL P | | |
| % Ownership: | 100.0000000000% | | |
| Total Value: | $767,993 | | |
| Tax Area: | 512 - APPRAISER-Stan/Cam Schl Dist, improved, greater than 1 acre |
| CF | Conservation Futures | 0.0313996660 | $767,993 | $767,993 | $24.11 | | |
| EMS1 | Fire & Rescue Dist #1 Camano GEN (EMS) | 0.4998471806 | $767,993 | $767,993 | $383.88 | | |
| FIRE1 | Fire & Rescue Dist #1 Camano GEN | 1.2496603404 | $767,993 | $767,993 | $959.73 | | |
| FIRE1BOND | Fire & Rescue Dist #1 Camano BOND | 0.1630371212 | $767,993 | $767,993 | $125.21 | | |
| CE | County Current Expense | 0.3674210519 | $767,993 | $767,993 | $282.18 | | |
| CR | County Roads | 0.4614296361 | $767,993 | $767,993 | $354.37 | | |
| LIB | Library Sno-Isle GEN | 0.3039084203 | $767,993 | $767,993 | $233.40 | | |
| SCH205_401 | School 205-401 Enrichment | 1.3697998934 | $767,993 | $767,993 | $1,052.00 | | |
| SCH205BOND | School 205-401 BOND | 0.9354199323 | $767,993 | $767,993 | $718.40 | | |
| ST | State School | 1.4761226122 | $767,993 | $767,993 | $1,133.65 | | |
| ST2 | State School Part 2 | 0.7953803475 | $767,993 | $767,993 | $610.85 | | |
| | Total Tax Rate: | 7.6534262019 | | | | | |
| | | | | Taxes w/Current Exemptions: | $5,877.78 | | |
| | | | | Taxes w/o Exemptions: | $5,877.78 | | |
Improvement / Building
| Improvement #1: | RESIDENTIAL | State Code: | Y | 2238.0 sqft | Value: | $517,993 |
| Bathrooms: | 2.5 | Bedrooms: | 3 | | Ceiling: | DRYWALL PAINTED | Cooling: | HEAT PUMP/CONV/V | | Exterior Wall/Cover: | CEMENT FIBER | Floor Covering: | CARPET/VINYL 60-40 | | Floor Structure: | WOOD W/SUBFLOOR | Foundation: | CONCRETE | | Interior Finish: | DRYWALL PAINT | Plumbing Fixture Cnt: | 14 | | Roof Slope: | 8" IN 12" | Roof Structure/Cover: | CJ ASPHALT |
|
| | Type | Description | Class CD | Sub Class CD | Year Built | Area |
| | BAS | BASE/MAIN FLOOR | 3 | 0 | 2018 | 1518.0 |
| | UPS | UPPER STORY | 3 | 0 | 2018 | 720.0 |
| | AGR | ATTACHED GARAGE | 3 | 0 | 2018 | 816.0 |
| | OWR | OPEN WOOD PORCH W/STEPS/ROOF | 3 | 0 | 2018 | 242.0 |
| | DGR | DETACHED GARAGE | 3 | 0 | 2018 | 1452.0 |
Sketch
Property Image
Land
| 1 | 17 | AC (01.01-02.00) | 1.1700 | 50965.20 | 0.00 | 0.00 | 1.00 | $250,000 | $0 |
Roll Value History
| 2026 | N/A | N/A | N/A | N/A | N/A |
| 2025 | $517,993 | $250,000 | $0 | $767,993 | $767,993 |
| 2024 | $522,204 | $250,000 | $0 | $772,204 | $772,204 |
| 2023 | $526,415 | $240,000 | $0 | $766,415 | $766,415 |
| 2022 | $480,476 | $240,000 | $0 | $720,476 | $720,476 |
| 2021 | $396,477 | $180,000 | $0 | $576,477 | $576,477 |
| 2020 | $349,649 | $150,000 | $0 | $499,649 | $499,649 |
| 2019 | $256,985 | $140,000 | $0 | $396,985 | $396,985 |
| 2018 | $258,927 | $135,000 | $0 | $393,927 | $393,927 |
| 2017 | $0 | $80,000 | $0 | $80,000 | $80,000 |
| 2016 | $0 | $75,000 | $0 | $75,000 | $75,000 |
| 2015 | $0 | $70,000 | $0 | $70,000 | $70,000 |
| 2014 | $0 | $70,000 | $0 | $70,000 | $70,000 |
| 2013 | $0 | $70,000 | $0 | $70,000 | $70,000 |
| 2012 | $0 | $95,000 | $0 | $95,000 | $95,000 |
| 2011 | $0 | $95,000 | $0 | $95,000 | $95,000 |
| 2010 | $0 | $95,000 | $0 | $95,000 | $95,000 |
| 2009 | $0 | $135,000 | $0 | $135,000 | $135,000 |
| 2008 | $0 | $140,000 | $0 | $140,000 | $140,000 |
| 2007 | $0 | $140,000 | $0 | $140,000 | $140,000 |
Deed and Sales History
| 1 | 11/26/2019 | WD | Warranty Deed | GLIDDEN, JEREMY | MUSGRAVE, JOEL P | | | $540,000.00 | 41329 | 4476753 |
| 2 | 03/22/2017 | WD | Warranty Deed | HICKS, DENNIS W | GLIDDEN, JEREMY | | | $78,000.00 | 28553 | 4419386 |
| 3 | 12/01/1978 | OTHER | Other - Misc. Documents | Unknown | HICKS, DENNIS W | | | $17,500.00 | 90033 | 345492 |
Payout Agreement
| No payout information available.. |