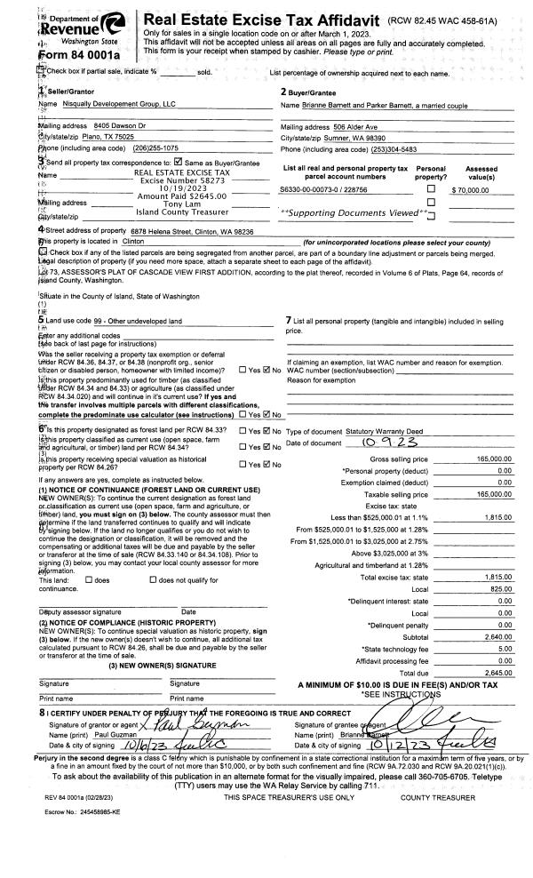
| 1 | 10/09/2023 | WD | Warranty Deed | NISQUALLY DEVELOPEMENT GROUP, LLC | BARNETT, BRIANNE | | | $165,000.00 | 58273 | 4565843 |
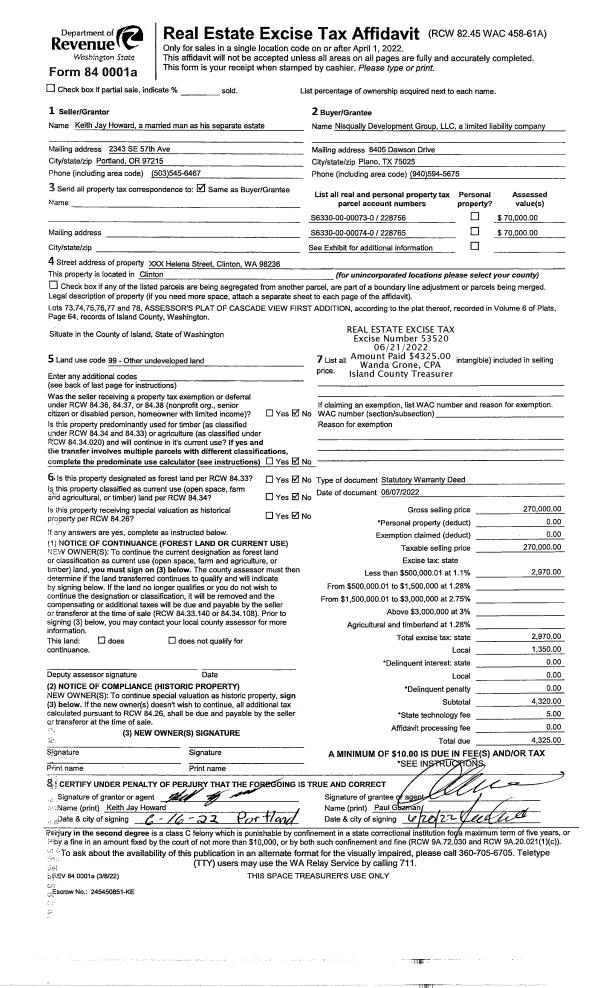
| 2 | 06/07/2022 | WD | Warranty Deed | HOWARD, KEITH JAY | NISQUALLY DEVELOPEMENT GROUP, LLC | | | $270,000.00 | 53520 | 4546898 |
|   | |
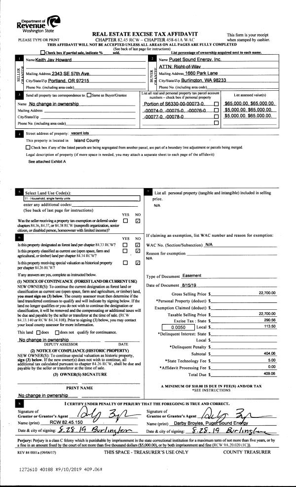
| 3 | 08/15/2019 | EZ | Easement | HOWARD, KEITH JAY | PUGET SOUND ENERGY | | | $22,700.00 | 40188 | 4471066 |
|   | |
| 4 | 01/25/2019 | QCD | Quit Claim Deed | DEVLIN, CORNELIA M | HOWARD, KEITH JAY | | | $0.00 | 37832 | 4460317 |
| 5 | 04/03/2014 | ESTSEPPROP | Establish Separate Property | DEVLIN, CORNELIA M | DEVLIN, CORNELIA M | | | $0.00 | 14864 | 4357744 |
| 6 | 03/26/2014 | WD | Warranty Deed | TAYLOR TRUSTEE, PAUL / DEBBIE | DEVLIN, CORNELIA M | | | $27,000.00 | 14863 | 4357743 |
| 7 | 04/11/2014 | QCD | Quit Claim Deed | TAYLOR, HOWARD | TAYLOR TRUSTEE, PAUL / DEBBIE | | | | 14862 | 4357742 |
| 8 | 07/09/2003 | QCD | Quit Claim Deed | TAYLOR, CHRISTOPHER | TAYLOR, HOWARD | | | $0.00 | 32933 | 4065987 |
| 9 | 06/04/1999 | QCD | Quit Claim Deed | TAYLOR, PAUL D | TAYLOR, CHRISTOPHER | | | $0.00 | 92163 | 99013363 |
| 10 | 10/01/1986 | QCD | Quit Claim Deed | TAYLOR, PAUL E | TAYLOR, PAUL D | | | $0.00 | 63027 | 86013692 |
| 11 | 03/01/1979 | OTHER | Other - Misc. Documents | Unknown | TAYLOR, PAUL E | | | $1,500.00 | 91735 | 350946 |