Property
Account |
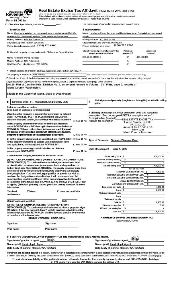
| Property ID: | 229194 | Abbreviated Legal Description: | CAST HILLS 1 LOT 28 |
| Geographic ID: | S6340-00-00028-0 | Agent Code: | |
| Type: | Real | | |
| Tax Area: | 100 - APPRAISER-OH Schl Dist, in OH | Land Use Code | 11 |
| Open Space: | N | DFL | N |
| Historic Property: | N | Remodel Property: | N |
| Multi-Family Redevelopment: | N | | |
| Township: | | Section: | |
| Range: | |
Location |
| Address: | 652 SW JUDSON DR OAK HARBOR, WA 98277 | Mapsco: | |
| Neighborhood: | Cycle 1 | Map ID: | 92 |
| Neighborhood CD: | 1 |
Owner |
| Name: | REYNOSO, HUMBERTO PEREZ | Owner ID: | 316017 |
| Mailing Address: | MARIA MONTSERRAT GRAJEDA LAZO 802 79TH DR NE LAKE STEVENS, WA 98258 | % Ownership: | 100.0000000000% |
| | | Exemptions: | |
Taxes and Assessment Details
Values
| (+) Improvement Homesite Value: | + | $0 | |
| (+) Improvement Non-Homesite Value: | + | $276,759 | |
| (+) Land Homesite Value: | + | $0 | |
| (+) Land Non-Homesite Value: | + | $200,000 | |
| (+) Curr Use (HS): | + | $0 | $0 |
| (+) Curr Use (NHS): | + | $0 | $0 |
| | | -------------------------- | |
| (=) Market Value: | = | $476,759 | |
| (–) Productivity Loss: | – | $0 | |
| | | -------------------------- | |
| (=) Subtotal: | = | $476,759 | |
| (+) Senior Appraised Value: | + | $0 | |
| (+) Non-Senior Appraised Value: | + | $476,759 | |
| | | -------------------------- | |
| (=) Total Appraised Value: | = | $476,759 | |
| (–) Senior Exemption Loss: | – | $0 | |
| (–) Exemption Loss: | – | $0 | |
| | | -------------------------- | |
| (=) Taxable Value: | = | $476,759 | |
Taxing Jurisdiction
| Owner: | REYNOSO, HUMBERTO PEREZ | | |
| % Ownership: | 100.0000000000% | | |
| Total Value: | $476,759 | | |
| Tax Area: | 100 - APPRAISER-OH Schl Dist, in OH |
| CF | Conservation Futures | 0.0313996660 | $476,759 | $476,759 | $14.97 | | |
| CEM1 | Cemetery #1 | 0.0040018856 | $476,759 | $476,759 | $1.91 | | |
| COH | City of Oak Harbor | 2.3090730572 | $476,759 | $476,759 | $1,100.87 | | |
| OAKBOND | City of Oak Harbor BOND | 0.1902260131 | $476,759 | $476,759 | $90.69 | | |
| HOBOND | Hospital BOND | 0.1893405597 | $476,759 | $476,759 | $90.27 | | |
| HOGEN | Hospital GEN | 0.3848777722 | $476,759 | $476,759 | $183.49 | | |
| CE | County Current Expense | 0.3674210519 | $476,759 | $476,759 | $175.17 | | |
| ISLANDEMS | Hospital GEN (EMS) | 0.4952018576 | $476,759 | $476,759 | $236.09 | | |
| LIB | Library Sno-Isle GEN | 0.3039084203 | $476,759 | $476,759 | $144.89 | | |
| NWHIDPRMT | P & R N Whidbey GEN | 0.1990272349 | $476,759 | $476,759 | $94.89 | | |
| SCH201MO | School 201 Enrichment | 2.3851112745 | $476,759 | $476,759 | $1,137.12 | | |
| ST | State School | 1.4761226122 | $476,759 | $476,759 | $703.75 | | |
| ST2 | State School Part 2 | 0.7953803475 | $476,759 | $476,759 | $379.20 | | |
| | Total Tax Rate: | 9.1310917527 | | | | | |
| | | | | Taxes w/Current Exemptions: | $4,353.31 | | |
| | | | | Taxes w/o Exemptions: | $4,353.31 | | |
Improvement / Building
| Improvement #1: | RESIDENTIAL | State Code: | Y | 2028.0 sqft | Value: | $276,759 |
| Bathrooms: | 2.25 | Bedrooms: | 4 | | Ceiling: | DRY WALL SPRAYED | Exterior Wall/Cover: | PLY/HARDBOARD T-111 | | Floor Covering: | CARPET/VINYL 80-20 | Floor Structure: | WOOD W/SUBFLOOR | | Foundation: | CONCRETE | Heating: | FHA GAS | | Interior Finish: | DRYWALL PAINT | Plumbing Fixture Cnt: | 12 | | Roof Slope: | 4" IN 12" | Roof Structure/Cover: | CJ ASPHALT |
|
| | Type | Description | Class CD | Sub Class CD | Year Built | Area |
| | BAS | BASE/MAIN FLOOR | 3 | 0 | 1976 | 1014.0 |
| | OP1 | OPEN PORCH SLAB | 3 | 0 | 1976 | 946.0 |
| | OP3 | OPEN PORCH W/ROOF | 3 | 0 | 1976 | 24.0 |
| | AGR | ATTACHED GARAGE | 3 | 0 | 1976 | 690.0 |
| | UPS | UPPER STORY | 3 | 0 | 1976 | 1014.0 |
| | OWP | OPEN WOOD PORCH W/STEPS | 3 | 0 | 1976 | 56.0 |
| | OWR | OPEN WOOD PORCH W/STEPS/ROOF | 3 | 0 | 1976 | 56.0 |
| | OWR | OPEN WOOD PORCH W/STEPS/ROOF | 3 | 0 | 1976 | 76.0 |
Sketch
Property Image
Land
| 1 | 14 | SQ (08001-12000) | 0.0000 | 0.00 | 0.00 | 0.00 | 1.00 | $200,000 | $0 |
Roll Value History
| 2026 | N/A | N/A | N/A | N/A | N/A |
| 2025 | $276,759 | $200,000 | $0 | $476,759 | $476,759 |
| 2024 | $280,536 | $180,000 | $0 | $460,536 | $460,536 |
| 2023 | $284,316 | $190,000 | $0 | $474,316 | $474,316 |
| 2022 | $260,879 | $180,000 | $0 | $440,879 | $440,879 |
| 2021 | $229,816 | $130,000 | $0 | $359,816 | $359,816 |
| 2020 | $224,096 | $100,000 | $0 | $324,096 | $324,096 |
| 2019 | $170,050 | $150,000 | $0 | $320,050 | $320,050 |
| 2018 | $170,586 | $130,000 | $0 | $300,586 | $300,586 |
| 2017 | $171,658 | $110,000 | $0 | $281,658 | $281,658 |
| 2016 | $178,714 | $90,000 | $0 | $268,714 | $268,714 |
| 2015 | $163,269 | $70,000 | $0 | $233,269 | $233,269 |
| 2014 | $165,476 | $55,000 | $0 | $220,476 | $220,476 |
| 2013 | $167,682 | $55,000 | $0 | $222,682 | $222,682 |
| 2012 | $169,890 | $60,000 | $0 | $229,890 | $229,890 |
| 2011 | $171,200 | $50,000 | $0 | $221,200 | $221,200 |
| 2010 | $182,254 | $50,000 | $0 | $232,254 | $232,254 |
| 2009 | $189,999 | $60,000 | $0 | $249,999 | $249,999 |
| 2008 | $192,287 | $72,000 | $0 | $264,287 | $264,287 |
| 2007 | $194,577 | $72,000 | $0 | $266,577 | $266,577 |
Deed and Sales History
| 1 | 09/09/2025 | WD | Warranty Deed | REYNOSO, HUMBERTO PEREZ | DELAGE JR, JOHN WILLIAM | | | $575,000.00 | 64792 | 4590833 |
| 2 | 04/01/2025 | WD | Warranty Deed | WINFREY, STEPHANIE | REYNOSO, HUMBERTO PEREZ | | | $400,000.00 | 63003 | 4583970 |
| 3 | 03/23/2016 | WD | Warranty Deed | MILLER, CATHERINE COLE | WINFREY, STEPHANIE | | | $283,000.00 | 23775 | 4396984 |
| 4 | 09/01/1979 | CD | DNU - Correction Deed | MILLER, FREDRIC C | MILLER, CATHERINE C | | | $0.00 | 94529 | 358702 |
| 5 | 01/01/1900 | OTHER | Other - Misc. Documents | Unknown | MILLER, FREDRIC C | | | $0.00 | 0 | 0 |
Payout Agreement
| No payout information available.. |