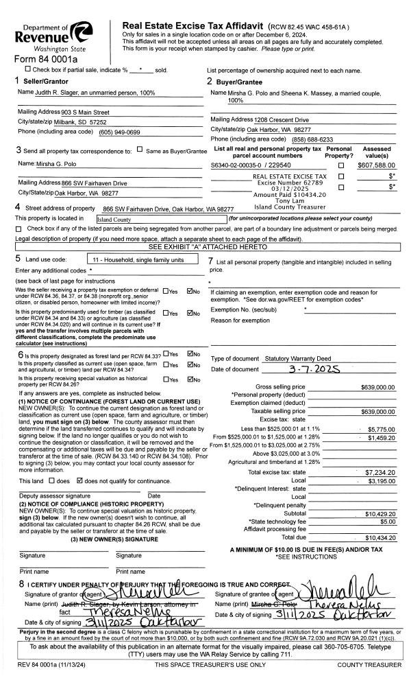
Property
Account |
| Property ID: | 229540 | Abbreviated Legal Description: | CAST HILLS 2 LOT 35 EX PT TO CITY OF OH DESC: BG NECR L35 N88*W20' S01*W5' S88*E20' N01*E5'TPB ALSO EX E25' BLA SP 9-87 V2 SP P144 AF#87016187 |
| Geographic ID: | S6340-02-00035-0 | Agent Code: | |
| Type: | Real | | |
| Tax Area: | 100 - APPRAISER-OH Schl Dist, in OH | Land Use Code | 11 |
| Open Space: | N | DFL | N |
| Historic Property: | N | Remodel Property: | N |
| Multi-Family Redevelopment: | N | | |
| Township: | | Section: | |
| Range: | |
Location |
| Address: | 866 SW FAIRHAVEN DR OAK HARBOR, WA 98277 | Mapsco: | |
| Neighborhood: | Cycle 1 | Map ID: | 93 |
| Neighborhood CD: | 1 |
Owner |
| Name: | POLO, MIRSHA G | Owner ID: | 315736 |
| Mailing Address: | SHEENA K MASSEY 866 SW FAIRHAVEN DR OAK HARBOR, WA 98277 | % Ownership: | 100.0000000000% |
| | | Exemptions: | |
Taxes and Assessment Details
Values
| (+) Improvement Homesite Value: | + | $0 | |
| (+) Improvement Non-Homesite Value: | + | $397,588 | |
| (+) Land Homesite Value: | + | $0 | |
| (+) Land Non-Homesite Value: | + | $210,000 | |
| (+) Curr Use (HS): | + | $0 | $0 |
| (+) Curr Use (NHS): | + | $0 | $0 |
| | | -------------------------- | |
| (=) Market Value: | = | $607,588 | |
| (–) Productivity Loss: | – | $0 | |
| | | -------------------------- | |
| (=) Subtotal: | = | $607,588 | |
| (+) Senior Appraised Value: | + | $0 | |
| (+) Non-Senior Appraised Value: | + | $607,588 | |
| | | -------------------------- | |
| (=) Total Appraised Value: | = | $607,588 | |
| (–) Senior Exemption Loss: | – | $0 | |
| (–) Exemption Loss: | – | $0 | |
| | | -------------------------- | |
| (=) Taxable Value: | = | $607,588 | |
Taxing Jurisdiction
| Owner: | POLO, MIRSHA G | | |
| % Ownership: | 100.0000000000% | | |
| Total Value: | $607,588 | | |
| Tax Area: | 100 - APPRAISER-OH Schl Dist, in OH |
| CF | Conservation Futures | 0.0313996660 | $607,588 | $607,588 | $19.08 | | |
| CEM1 | Cemetery #1 | 0.0040018856 | $607,588 | $607,588 | $2.43 | | |
| COH | City of Oak Harbor | 2.3090730572 | $607,588 | $607,588 | $1,402.97 | | |
| OAKBOND | City of Oak Harbor BOND | 0.1902260131 | $607,588 | $607,588 | $115.58 | | |
| HOBOND | Hospital BOND | 0.1893405597 | $607,588 | $607,588 | $115.04 | | |
| HOGEN | Hospital GEN | 0.3848777722 | $607,588 | $607,588 | $233.85 | | |
| CE | County Current Expense | 0.3674210519 | $607,588 | $607,588 | $223.24 | | |
| ISLANDEMS | Hospital GEN (EMS) | 0.4952018576 | $607,588 | $607,588 | $300.88 | | |
| LIB | Library Sno-Isle GEN | 0.3039084203 | $607,588 | $607,588 | $184.65 | | |
| NWHIDPRMT | P & R N Whidbey GEN | 0.1990272349 | $607,588 | $607,588 | $120.93 | | |
| SCH201MO | School 201 Enrichment | 2.3851112745 | $607,588 | $607,588 | $1,449.16 | | |
| ST | State School | 1.4761226122 | $607,588 | $607,588 | $896.87 | | |
| ST2 | State School Part 2 | 0.7953803475 | $607,588 | $607,588 | $483.26 | | |
| | Total Tax Rate: | 9.1310917527 | | | | | |
| | | | | Taxes w/Current Exemptions: | $5,547.94 | | |
| | | | | Taxes w/o Exemptions: | $5,547.94 | | |
Improvement / Building
| Improvement #1: | RESIDENTIAL | State Code: | Y | 2098.8 sqft | Value: | $397,588 |
| Bathrooms: | 2.5 | Bedrooms: | 3 | | Ceiling: | DRYWALL PAINTED | Exterior Wall/Cover: | CEMENT FIBER | | Floor Covering: | CARPET/VINYL 20-80 | Floor Structure: | WOOD W/SUBFLOOR | | Foundation: | CONCRETE | Heating: | FHA GAS | | Interior Finish: | DRYWALL PAINT | Plumbing Fixture Cnt: | 14 | | Roof Slope: | 8" IN 12" | Roof Structure/Cover: | CJ ASPHALT |
|
| | Type | Description | Class CD | Sub Class CD | Year Built | Area |
| | BAS | BASE/MAIN FLOOR | 3 | 0 | 1999 | 1396.8 |
| | UB8 | BASEMENT UNFINISHED 8" | 3 | 0 | 1999 | 1396.8 |
| | OP1 | OPEN PORCH SLAB | 3 | 0 | 1999 | 600.0 |
| | AGR | ATTACHED GARAGE | 3 | 0 | 1999 | 721.6 |
| | UPS | UPPER STORY | 3 | 0 | 1999 | 702.0 |
| | OWP | OPEN WOOD PORCH W/STEPS | 3 | 0 | 1999 | 240.0 |
| | OWC | OPEN WOOD PORCH W/STEPS/ROOF/C | 3 | 0 | 1999 | 135.0 |
| | ENP | ENCLOSED PORCH | 3 | 0 | 1999 | 160.0 |
Sketch
Property Image
Land
| 1 | 15 | SQ (12001-21780) | 0.0000 | 0.00 | 0.00 | 0.00 | 1.00 | $210,000 | $0 |
Roll Value History
| 2026 | N/A | N/A | N/A | N/A | N/A |
| 2025 | $397,588 | $210,000 | $0 | $607,588 | $607,588 |
| 2024 | $402,734 | $210,000 | $0 | $612,734 | $612,734 |
| 2023 | $397,588 | $210,000 | $0 | $607,588 | $607,588 |
| 2022 | $364,692 | $200,000 | $0 | $564,692 | $564,692 |
| 2021 | $321,183 | $150,000 | $0 | $471,183 | $471,183 |
| 2020 | $312,901 | $125,000 | $0 | $437,901 | $437,901 |
| 2019 | $236,833 | $170,000 | $0 | $406,833 | $406,833 |
| 2018 | $237,561 | $150,000 | $0 | $387,561 | $387,561 |
| 2017 | $239,859 | $125,000 | $0 | $364,859 | $364,859 |
| 2016 | $242,783 | $100,000 | $0 | $342,783 | $342,783 |
| 2015 | $245,709 | $75,000 | $0 | $320,709 | $320,709 |
| 2014 | $248,633 | $75,000 | $0 | $323,633 | $323,633 |
| 2013 | $251,560 | $75,000 | $0 | $326,560 | $326,560 |
| 2012 | $254,484 | $75,000 | $0 | $329,484 | $329,484 |
| 2011 | $276,930 | $75,000 | $0 | $351,930 | $351,930 |
| 2010 | $289,741 | $75,000 | $0 | $364,741 | $364,741 |
| 2009 | $302,238 | $85,000 | $0 | $387,238 | $387,238 |
| 2008 | $305,894 | $85,000 | $0 | $390,894 | $390,894 |
| 2007 | $306,350 | $85,000 | $0 | $391,350 | $391,350 |
Deed and Sales History
| 1 | 03/07/2025 | WD | Warranty Deed | SLAGER, JUDITH | POLO, MIRSHA G | | | $639,000.00 | 62789 | 4583158 |
| 2 | 12/15/2003 | DECREE | Divorce Decree/Legal Separation | SLAGER, JOSEPH M | SLAGER, JUDITH | | | $0.00 | 35696 | 4086771 |
| 3 | 01/01/1997 | WD | Warranty Deed | O'KELLEY, JANE | SLAGER, JOSEPH M | | | $65,000.00 | 70188 | 97000722 |
| 4 | 11/01/1988 | OTHER | Other - Misc. Documents | ZYLSTRA, JANE | O'KELLEY, JANE | | | $0.00 | 62929 | 0 |
| 5 | 11/01/1987 | OTHER | Other - Misc. Documents | ZYLSTRA, JANE | ZYLSTRA, JANE | | | $0.00 | 62440 | 87016187 |
| 6 | 04/01/1987 | QCD | Quit Claim Deed | ZYLSTRA, JANE | ZYLSTRA, JANE | | | $0.00 | 62130 | 87003445 |
| 7 | 05/01/1985 | DECREE | Divorce Decree/Legal Separation | ZYLSTRA, TED D | ZYLSTRA, JANE | | | $0.00 | 51141 | 85004644 |
| 8 | 01/01/1900 | OTHER | Other - Misc. Documents | Unknown | ZYLSTRA, TED D | | | $0.00 | 0 | 0 |
Payout Agreement
| No payout information available.. |