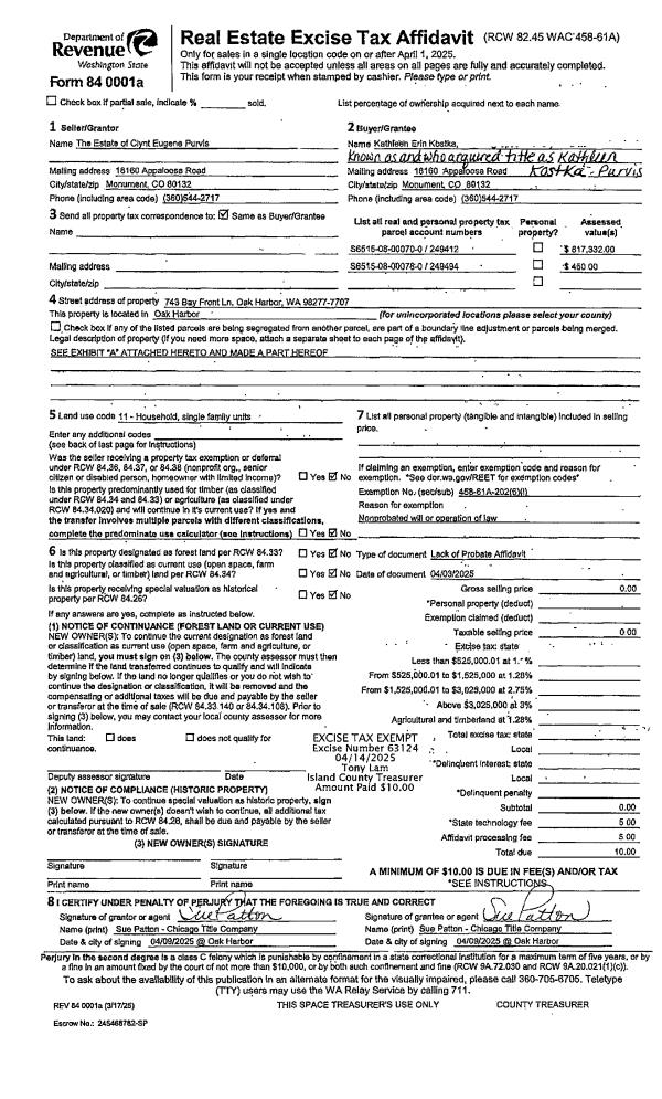
Property
Account |
| Property ID: | 229808 | Abbreviated Legal Description: | CAST HILLS 3 LOT 25 |
| Geographic ID: | S6340-03-00025-0 | Agent Code: | |
| Type: | Real | | |
| Tax Area: | 100 - APPRAISER-OH Schl Dist, in OH | Land Use Code | 11 |
| Open Space: | N | DFL | N |
| Historic Property: | N | Remodel Property: | N |
| Multi-Family Redevelopment: | N | | |
| Township: | | Section: | |
| Range: | |
Location |
| Address: | 761 SW CASTILIAN DR OAK HARBOR, WA 98277 | Mapsco: | |
| Neighborhood: | Cycle 1 | Map ID: | 93 |
| Neighborhood CD: | 1 |
Owner |
| Name: | DUERKSEN TTEE, SANDRA JAMES | Owner ID: | 315507 |
| Mailing Address: | PO BOX 1525 COUPEVILLE, WA 98239 | % Ownership: | 100.0000000000% |
| | | Exemptions: | |
Taxes and Assessment Details
Values
| (+) Improvement Homesite Value: | + | $0 | |
| (+) Improvement Non-Homesite Value: | + | $394,710 | |
| (+) Land Homesite Value: | + | $0 | |
| (+) Land Non-Homesite Value: | + | $200,000 | |
| (+) Curr Use (HS): | + | $0 | $0 |
| (+) Curr Use (NHS): | + | $0 | $0 |
| | | -------------------------- | |
| (=) Market Value: | = | $594,710 | |
| (–) Productivity Loss: | – | $0 | |
| | | -------------------------- | |
| (=) Subtotal: | = | $594,710 | |
| (+) Senior Appraised Value: | + | $0 | |
| (+) Non-Senior Appraised Value: | + | $594,710 | |
| | | -------------------------- | |
| (=) Total Appraised Value: | = | $594,710 | |
| (–) Senior Exemption Loss: | – | $0 | |
| (–) Exemption Loss: | – | $0 | |
| | | -------------------------- | |
| (=) Taxable Value: | = | $594,710 | |
Taxing Jurisdiction
| Owner: | DUERKSEN TTEE, SANDRA JAMES | | |
| % Ownership: | 100.0000000000% | | |
| Total Value: | $594,710 | | |
| Tax Area: | 100 - APPRAISER-OH Schl Dist, in OH |
| CF | Conservation Futures | 0.0313996660 | $594,710 | $594,710 | $18.67 | | |
| CEM1 | Cemetery #1 | 0.0040018856 | $594,710 | $594,710 | $2.38 | | |
| COH | City of Oak Harbor | 2.3090730572 | $594,710 | $594,710 | $1,373.23 | | |
| OAKBOND | City of Oak Harbor BOND | 0.1902260131 | $594,710 | $594,710 | $113.13 | | |
| HOBOND | Hospital BOND | 0.1893405597 | $594,710 | $594,710 | $112.60 | | |
| HOGEN | Hospital GEN | 0.3848777722 | $594,710 | $594,710 | $228.89 | | |
| CE | County Current Expense | 0.3674210519 | $594,710 | $594,710 | $218.51 | | |
| ISLANDEMS | Hospital GEN (EMS) | 0.4952018576 | $594,710 | $594,710 | $294.50 | | |
| LIB | Library Sno-Isle GEN | 0.3039084203 | $594,710 | $594,710 | $180.74 | | |
| NWHIDPRMT | P & R N Whidbey GEN | 0.1990272349 | $594,710 | $594,710 | $118.36 | | |
| SCH201MO | School 201 Enrichment | 2.3851112745 | $594,710 | $594,710 | $1,418.45 | | |
| ST | State School | 1.4761226122 | $594,710 | $594,710 | $877.86 | | |
| ST2 | State School Part 2 | 0.7953803475 | $594,710 | $594,710 | $473.02 | | |
| | Total Tax Rate: | 9.1310917527 | | | | | |
| | | | | Taxes w/Current Exemptions: | $5,430.34 | | |
| | | | | Taxes w/o Exemptions: | $5,430.34 | | |
Improvement / Building
| Improvement #1: | RESIDENTIAL | State Code: | Y | 2404.0 sqft | Value: | $394,710 |
| Bathrooms: | 3.5 | Bedrooms: | 5 | | Ceiling: | DRYWALL PAINTED | Exterior Wall/Cover: | WOOD SIDING | | Floor Covering: | CERAMIC TILE/CPT 40-60 | Floor Structure: | WOOD W/SUBFLOOR | | Foundation: | CONCRETE | Heating: | B/B HOT WATER-GAS | | Interior Finish: | DRYWALL PAINT | Plumbing Fixture Cnt: | 15 | | Roof Slope: | 12" IN 12" | Roof Structure/Cover: | CJ CONCRETE TILE |
|
| | Type | Description | Class CD | Sub Class CD | Year Built | Area |
| | BAS | BASE/MAIN FLOOR | 3 | 0 | 1977 | 912.0 |
| | OP4 | OPEN PORCH W/CEILING-ROOF | 3 | 0 | 1977 | 60.0 |
| | AGR | ATTACHED GARAGE | 3 | 0 | 1977 | 529.0 |
| | UPS | UPPER STORY | 3 | 0 | 1977 | 988.0 |
| | OWP | OPEN WOOD PORCH W/STEPS | 3 | 0 | 1977 | 104.0 |
| | OWP | OPEN WOOD PORCH W/STEPS | 3 | 0 | 1977 | 39.0 |
| | UPH | HALF STORY | 3 | 0 | 1977 | 504.0 |
Sketch
Property Image
Land
| 1 | 13 | SQ (06001-08000) | 0.0000 | 0.00 | 0.00 | 0.00 | 1.00 | $200,000 | $0 |
Roll Value History
| 2026 | N/A | N/A | N/A | N/A | N/A |
| 2025 | $394,710 | $200,000 | $0 | $594,710 | $594,710 |
| 2024 | $389,469 | $180,000 | $0 | $569,469 | $569,469 |
| 2023 | $374,909 | $190,000 | $0 | $564,909 | $564,909 |
| 2022 | $343,876 | $180,000 | $0 | $523,876 | $523,876 |
| 2021 | $302,846 | $130,000 | $0 | $432,846 | $432,846 |
| 2020 | $295,446 | $100,000 | $0 | $395,446 | $395,446 |
| 2019 | $227,477 | $150,000 | $0 | $377,477 | $377,477 |
| 2018 | $228,178 | $130,000 | $0 | $358,178 | $358,178 |
| 2017 | $204,855 | $110,000 | $0 | $314,855 | $314,855 |
| 2016 | $207,700 | $90,000 | $0 | $297,700 | $297,700 |
| 2015 | $210,546 | $70,000 | $0 | $280,546 | $280,546 |
| 2014 | $213,392 | $55,000 | $0 | $268,392 | $268,392 |
| 2013 | $216,236 | $55,000 | $0 | $271,236 | $271,236 |
| 2012 | $219,080 | $60,000 | $0 | $279,080 | $279,080 |
| 2011 | $239,532 | $50,000 | $0 | $289,532 | $289,532 |
| 2010 | $253,258 | $50,000 | $0 | $303,258 | $303,258 |
| 2009 | $264,227 | $60,000 | $0 | $324,227 | $324,227 |
| 2008 | $267,577 | $72,000 | $0 | $339,577 | $339,577 |
| 2007 | $270,949 | $72,000 | $0 | $342,949 | $342,949 |
Deed and Sales History
| 1 | 02/14/2025 | WD | Warranty Deed | PURIN, MARIO A | DUERKSEN TTEE, SANDRA JAMES | | | $615,000.00 | 62604 | 4582403 |
| 2 | 08/29/2017 | WD | Warranty Deed | DUPALO, ROBERT J | PURIN, MARIO A | | | $360,000.00 | 30967 | 4429640 |
| 3 | 03/16/2006 | WD | Warranty Deed | NEFF, RONALD D | DUPALO, ROBERT J | | | $375,000.00 | 61430 | 4166479 |
| 4 | 08/14/2003 | WD | Warranty Deed | PAYNE, THOMAS J | NEFF, RONALD D | | | $254,500.00 | 33639 | 4071725 |
| 5 | 10/01/1993 | WD | Warranty Deed | NOONAN, THOMAS F | PAYNE, THOMAS J | | | $188,000.00 | 33989 | 93020797 |
| 6 | 07/01/1981 | WD | Warranty Deed | BUCHSIEB, LOUIS D | NOONAN, THOMAS F | | | $100,000.00 | 12018 | 384907 |
| 7 | 01/01/1900 | OTHER | Other - Misc. Documents | Unknown | BUCHSIEB, LOUIS D | | | $0.00 | 0 | 0 |
Payout Agreement
| No payout information available.. |