Property
Account |
| Property ID: | 229960 | Abbreviated Legal Description: | CAST HILLS 4 LOT 14 |
| Geographic ID: | S6340-04-00014-0 | Agent Code: | |
| Type: | Real | | |
| Tax Area: | 100 - APPRAISER-OH Schl Dist, in OH | Land Use Code | 11 |
| Open Space: | N | DFL | N |
| Historic Property: | N | Remodel Property: | N |
| Multi-Family Redevelopment: | N | | |
| Township: | | Section: | |
| Range: | |
Location |
| Address: | 927 SW KINGMA CT OAK HARBOR, WA 98277 | Mapsco: | |
| Neighborhood: | Cycle 1 | Map ID: | 92 |
| Neighborhood CD: | 1 |
Owner |
| Name: | DEVRIES, PETER | Owner ID: | 311894 |
| Mailing Address: | 751 SW PUFFIN ST OAK HARBOR, WA 98277 | % Ownership: | 100.0000000000% |
| | | Exemptions: | |
Taxes and Assessment Details
Values
| (+) Improvement Homesite Value: | + | $0 | |
| (+) Improvement Non-Homesite Value: | + | $227,095 | |
| (+) Land Homesite Value: | + | $0 | |
| (+) Land Non-Homesite Value: | + | $200,000 | |
| (+) Curr Use (HS): | + | $0 | $0 |
| (+) Curr Use (NHS): | + | $0 | $0 |
| | | -------------------------- | |
| (=) Market Value: | = | $427,095 | |
| (–) Productivity Loss: | – | $0 | |
| | | -------------------------- | |
| (=) Subtotal: | = | $427,095 | |
| (+) Senior Appraised Value: | + | $0 | |
| (+) Non-Senior Appraised Value: | + | $427,095 | |
| | | -------------------------- | |
| (=) Total Appraised Value: | = | $427,095 | |
| (–) Senior Exemption Loss: | – | $0 | |
| (–) Exemption Loss: | – | $0 | |
| | | -------------------------- | |
| (=) Taxable Value: | = | $427,095 | |
Taxing Jurisdiction
| Owner: | DEVRIES, PETER | | |
| % Ownership: | 100.0000000000% | | |
| Total Value: | $427,095 | | |
| Tax Area: | 100 - APPRAISER-OH Schl Dist, in OH |
| CF | Conservation Futures | 0.0313996660 | $427,095 | $427,095 | $13.41 | | |
| CEM1 | Cemetery #1 | 0.0040018856 | $427,095 | $427,095 | $1.71 | | |
| COH | City of Oak Harbor | 2.3090730572 | $427,095 | $427,095 | $986.19 | | |
| OAKBOND | City of Oak Harbor BOND | 0.1902260131 | $427,095 | $427,095 | $81.24 | | |
| HOBOND | Hospital BOND | 0.1893405597 | $427,095 | $427,095 | $80.87 | | |
| HOGEN | Hospital GEN | 0.3848777722 | $427,095 | $427,095 | $164.38 | | |
| CE | County Current Expense | 0.3674210519 | $427,095 | $427,095 | $156.92 | | |
| ISLANDEMS | Hospital GEN (EMS) | 0.4952018576 | $427,095 | $427,095 | $211.50 | | |
| LIB | Library Sno-Isle GEN | 0.3039084203 | $427,095 | $427,095 | $129.80 | | |
| NWHIDPRMT | P & R N Whidbey GEN | 0.1990272349 | $427,095 | $427,095 | $85.00 | | |
| SCH201MO | School 201 Enrichment | 2.3851112745 | $427,095 | $427,095 | $1,018.67 | | |
| ST | State School | 1.4761226122 | $427,095 | $427,095 | $630.44 | | |
| ST2 | State School Part 2 | 0.7953803475 | $427,095 | $427,095 | $339.70 | | |
| | Total Tax Rate: | 9.1310917527 | | | | | |
| | | | | Taxes w/Current Exemptions: | $3,899.83 | | |
| | | | | Taxes w/o Exemptions: | $3,899.83 | | |
Improvement / Building
| Improvement #1: | RESIDENTIAL | State Code: | Y | 1240.0 sqft | Value: | $227,095 |
| Bathrooms: | 1.5 | Bedrooms: | 3 | | Ceiling: | DRY WALL SPRAYED | Exterior Wall/Cover: | WOOD SIDING | | Floor Covering: | CARPET/VINYL 80-20 | Floor Structure: | WOOD W/SUBFLOOR | | Foundation: | CONCRETE | Heating: | BASEBOARD ELECTRIC | | Interior Finish: | DRYWALL PAINT | Plumbing Fixture Cnt: | 8 | | Roof Slope: | 4" IN 12" | Roof Structure/Cover: | CJ ASPHALT |
|
| | Type | Description | Class CD | Sub Class CD | Year Built | Area |
| | BAS | BASE/MAIN FLOOR | 3 | 0 | 1978 | 1000.0 |
| | AGR | ATTACHED GARAGE | 3 | 0 | 1978 | 160.0 |
| | BIG | BUILT IN GARAGE | 3 | 0 | 1978 | 280.0 |
| | DWN | DOWNSTAIRS LIVING AREA | 3 | 0 | 1978 | 240.0 |
| | OWP | OPEN WOOD PORCH W/STEPS | 3 | 0 | 1978 | 200.0 |
| | OWP | OPEN WOOD PORCH W/STEPS | 3 | 0 | 1978 | 46.0 |
Sketch
Property Image
Land
| 1 | 14 | SQ (08001-12000) | 0.0000 | 0.00 | 0.00 | 0.00 | 1.00 | $200,000 | $0 |
Roll Value History
| 2026 | N/A | N/A | N/A | N/A | N/A |
| 2025 | $227,095 | $200,000 | $0 | $427,095 | $427,095 |
| 2024 | $234,618 | $180,000 | $0 | $414,618 | $414,618 |
| 2023 | $237,370 | $190,000 | $0 | $427,370 | $427,370 |
| 2022 | $217,435 | $180,000 | $0 | $397,435 | $397,435 |
| 2021 | $191,237 | $130,000 | $0 | $321,237 | $321,237 |
| 2020 | $164,626 | $100,000 | $0 | $264,626 | $264,626 |
| 2019 | $118,008 | $150,000 | $0 | $268,008 | $268,008 |
| 2018 | $118,376 | $130,000 | $0 | $248,376 | $248,376 |
| 2017 | $119,112 | $110,000 | $0 | $229,112 | $229,112 |
| 2016 | $112,010 | $90,000 | $0 | $202,010 | $202,010 |
| 2015 | $113,427 | $70,000 | $0 | $183,427 | $183,427 |
| 2014 | $114,845 | $55,000 | $0 | $169,845 | $169,845 |
| 2013 | $116,263 | $55,000 | $0 | $171,263 | $171,263 |
| 2012 | $117,681 | $60,000 | $0 | $177,681 | $177,681 |
| 2011 | $117,951 | $50,000 | $0 | $167,951 | $167,951 |
| 2010 | $127,350 | $50,000 | $0 | $177,350 | $177,350 |
| 2009 | $134,172 | $60,000 | $0 | $194,172 | $194,172 |
| 2008 | $136,056 | $72,000 | $0 | $208,056 | $208,056 |
| 2007 | $140,451 | $72,000 | $0 | $212,451 | $212,451 |
Deed and Sales History
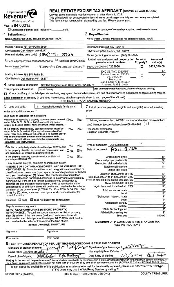
| 1 | 04/03/2024 | QCD | Quit Claim Deed | DEVRIES, JENNIFER | DEVRIES, PETER | | | $0.00 | 59583 | 4570952 |
| 2 | 04/03/2024 | WD | Warranty Deed | GONZALEZ, ABDIEL RAMIREZ | DEVRIES, PETER | | | $405,000.00 | 59582 | 4570951 |
| 3 | 08/06/2020 | WD | Warranty Deed | PICK, JUSTIN | GONZALEZ, ABDIEL RAMIREZ | | | $355,000.00 | 44197 | 4493659 |
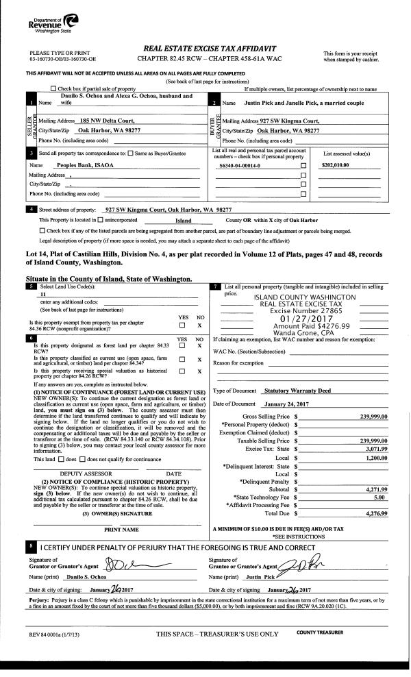
| 4 | 01/24/2017 | WD | Warranty Deed | OCHOA, DANILO S | PICK, JUSTIN | | | $239,999.00 | 27865 | 4415958 |
| 5 | 01/09/2007 | WD | Warranty Deed | WOOD, ROBERT T | OCHOA, DANILO S | | | $215,000.00 | 70083 | 4191288 |
| 6 | 09/01/1995 | WD | Warranty Deed | KURTZ, KENNETH H | WOOD, ROBERT T | | | $121,500.00 | 53439 | 95015724 |
| 7 | 11/01/1993 | QCD | Quit Claim Deed | KURTZ, KENNETH H | KURTZ, KENNETH H | | | $0.00 | 40386 | 94002338 |
| 8 | 02/01/1992 | WD | Warranty Deed | KURTZ, KENNETH H | KURTZ, KENNETH H | | | $0.00 | 20782 | 92004005 |
| 9 | 01/01/1990 | WD | Warranty Deed | HAMBLEN, RICKY R | KURTZ, KENNETH H | | | $80,000.00 | 236 | 90000711 |
| 10 | 07/01/1985 | WD | Warranty Deed | MAUGANS, HARRY G | HAMBLEN, RICKY R | | | $67,000.00 | 51831 | 85007169 |
| 11 | 04/01/1981 | TRUSTEED | Trustee's Deed | CAJOBE, JOSE C | MAUGANS, HARRY G | | | $64,950.00 | 11047 | 381575 |
| 12 | 06/01/1978 | OTHER | Other - Misc. Documents | Unknown | CAJOBE, JOSE C | | | $45,950.00 | 82957 | 335021 |
Payout Agreement
| No payout information available.. |