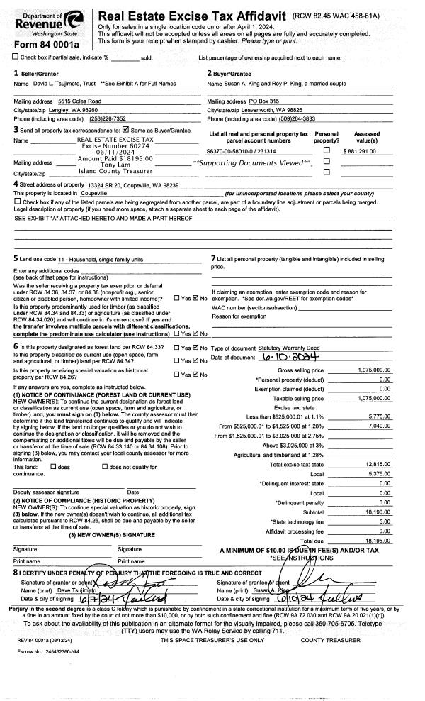
Property
Account |
| Property ID: | 231314 | Abbreviated Legal Description: | CHICAGO LOT 10,11 & 12 BLK 58 & ADJ VAC ST;LOT 10, 11 & 12 BLK 59 & ADJ VAC ST; LOT 10, 11 & 12 BLK 60 & ADJ VAC ST |
| Geographic ID: | S6370-00-58010-0 | Agent Code: | |
| Type: | Real | | |
| Tax Area: | 310 - APPRAISER-Cpvl Schl Dist, outside Cpvl, improved & 1 acre or less | Land Use Code | 11 |
| Open Space: | N | DFL | N |
| Historic Property: | N | Remodel Property: | N |
| Multi-Family Redevelopment: | N | | |
| Township: | | Section: | |
| Range: | |
Location |
| Address: | 13324 SR20 COUPEVILLE, WA 98239 | Mapsco: | |
| Neighborhood: | Cycle 2 | Map ID: | 77 |
| Neighborhood CD: | 2 |
Owner |
| Name: | KING, SUSAN A | Owner ID: | 312713 |
| Mailing Address: | ROY P KING PO BOX 315 LEAVENWORTH, WA 98826 | % Ownership: | 100.0000000000% |
| | | Exemptions: | |
Taxes and Assessment Details
Values
| (+) Improvement Homesite Value: | + | $0 | |
| (+) Improvement Non-Homesite Value: | + | $306,839 | |
| (+) Land Homesite Value: | + | $0 | |
| (+) Land Non-Homesite Value: | + | $640,000 | |
| (+) Curr Use (HS): | + | $0 | $0 |
| (+) Curr Use (NHS): | + | $0 | $0 |
| | | -------------------------- | |
| (=) Market Value: | = | $946,839 | |
| (–) Productivity Loss: | – | $0 | |
| | | -------------------------- | |
| (=) Subtotal: | = | $946,839 | |
| (+) Senior Appraised Value: | + | $0 | |
| (+) Non-Senior Appraised Value: | + | $946,839 | |
| | | -------------------------- | |
| (=) Total Appraised Value: | = | $946,839 | |
| (–) Senior Exemption Loss: | – | $0 | |
| (–) Exemption Loss: | – | $0 | |
| | | -------------------------- | |
| (=) Taxable Value: | = | $946,839 | |
Taxing Jurisdiction
| Owner: | KING, SUSAN A | | |
| % Ownership: | 100.0000000000% | | |
| Total Value: | $946,839 | | |
| Tax Area: | 310 - APPRAISER-Cpvl Schl Dist, outside Cpvl, improved & 1 acre or less |
| CF | Conservation Futures | 0.0313996660 | $946,839 | $946,839 | $29.73 | | |
| CEM2 | Cemetery #2 | 0.0092609791 | $946,839 | $946,839 | $8.77 | | |
| FIRE5 | Fire & Rescue Dist #5 C Whidbey GEN | 1.1892169230 | $946,839 | $946,839 | $1,126.00 | | |
| FIRE5BOND | Fire & Rescue Dist #5 C Whidbey BOND | 0.1394359503 | $946,839 | $946,839 | $132.02 | | |
| HOBOND | Hospital BOND | 0.1893405597 | $946,839 | $946,839 | $179.28 | | |
| HOGEN | Hospital GEN | 0.3848777722 | $946,839 | $946,839 | $364.42 | | |
| CE | County Current Expense | 0.3674210519 | $946,839 | $946,839 | $347.89 | | |
| CR | County Roads | 0.4614296361 | $946,839 | $946,839 | $436.90 | | |
| ISLANDEMS | Hospital GEN (EMS) | 0.4952018576 | $946,839 | $946,839 | $468.88 | | |
| LIB | Library Sno-Isle GEN | 0.3039084203 | $946,839 | $946,839 | $287.75 | | |
| LIBCAP | Library Sno-Isle BOND (Cap Fac Imp Area) | 0.0528562629 | $946,839 | $946,839 | $50.05 | | |
| POCOUP | Port of Coupeville GEN | 0.1065226063 | $946,839 | $946,839 | $100.86 | | |
| POCOUPIDD | Port of Coupeville IDD | 0.3353038577 | $946,839 | $946,839 | $317.48 | | |
| COUPSDTECH | School 204 CP (TECH) | 0.1215123397 | $946,839 | $946,839 | $115.05 | | |
| SCH204MO | School 204 Enrichment | 0.6416662518 | $946,839 | $946,839 | $607.55 | | |
| ST | State School | 1.4761226122 | $946,839 | $946,839 | $1,397.65 | | |
| ST2 | State School Part 2 | 0.7953803475 | $946,839 | $946,839 | $753.10 | | |
| | Total Tax Rate: | 7.1008570943 | | | | | |
| | | | | Taxes w/Current Exemptions: | $6,723.38 | | |
| | | | | Taxes w/o Exemptions: | $6,723.38 | | |
Improvement / Building
| Improvement #1: | RESIDENTIAL | State Code: | Y | 1634.0 sqft | Value: | $306,839 |
| Bathrooms: | 2 | Bedrooms: | 2 | | Ceiling: | TONGUE & GROOVE | Cooling: | HEAT PUMP/CONV/V | | Exterior Wall/Cover: | VINYL | Floor Covering: | VINYL 100% | | Floor Structure: | WOOD W/SUBFLOOR | Foundation: | CONCRETE | | Heating: | (NONE) | Interior Finish: | DRYWALL PAINT | | Plumbing Fixture Cnt: | 10 | Roof Slope: | 3" IN 12" | | Roof Structure/Cover: | BEAM ROLL COMPOSITION |   |   |
|
| | Type | Description | Class CD | Sub Class CD | Year Built | Area |
| | BAS | BASE/MAIN FLOOR | 3 | 0 | 1962 | 1634.0 |
| | OWP | OPEN WOOD PORCH W/STEPS | 3 | 0 | 1962 | 363.5 |
| | OWP | OPEN WOOD PORCH W/STEPS | 3 | 0 | 1962 | 78.0 |
| | DGR | DETACHED GARAGE | 3 | 0 | 1962 | 1088.0 |
Sketch
Property Image
Land
| 1 | LB | LOW BANK | 0.7600 | 33105.60 | 75.00 | 0.00 | 1.00 | $640,000 | $0 |
Roll Value History
| 2026 | N/A | N/A | N/A | N/A | N/A |
| 2025 | $306,839 | $640,000 | $0 | $946,839 | $946,839 |
| 2024 | $287,521 | $615,000 | $0 | $902,521 | $902,521 |
| 2023 | $291,291 | $590,000 | $0 | $881,291 | $881,291 |
| 2022 | $267,183 | $575,000 | $0 | $842,183 | $842,183 |
| 2021 | $235,302 | $350,000 | $0 | $585,302 | $585,302 |
| 2020 | $229,267 | $350,000 | $0 | $579,267 | $579,267 |
| 2019 | $166,952 | $400,000 | $0 | $566,952 | $566,952 |
| 2018 | $167,465 | $400,000 | $0 | $567,465 | $567,465 |
| 2017 | $156,289 | $400,000 | $0 | $556,289 | $556,289 |
| 2016 | $158,194 | $400,000 | $0 | $558,194 | $558,194 |
| 2015 | $160,099 | $400,000 | $0 | $560,099 | $560,099 |
| 2014 | $113,134 | $400,000 | $0 | $513,134 | $513,134 |
| 2013 | $114,748 | $400,000 | $0 | $514,748 | $514,748 |
| 2012 | $107,489 | $330,453 | $0 | $437,942 | $437,942 |
| 2011 | $108,968 | $330,453 | $0 | $439,421 | $439,421 |
| 2010 | $118,647 | $330,453 | $0 | $449,100 | $449,100 |
| 2009 | $123,327 | $409,131 | $0 | $532,458 | $532,458 |
| 2008 | $125,200 | $464,207 | $0 | $589,407 | $589,407 |
| 2007 | $127,076 | $330,453 | $0 | $457,529 | $457,529 |
Deed and Sales History
| 1 | 06/10/2024 | WD | Warranty Deed | TSUJIMOTO TTEE, DAVID L | KING, SUSAN A | | | $1,075,000.00 | 60274 | 4573302 |
| 2 | 02/27/2020 | QCD | Quit Claim Deed | TSUJIMOTO, DAVID L | TSUJIMOTO TTEE, DAVID L | | | $0.00 | 43674 | 4490648 |
| 3 | 01/17/2014 | WD | Warranty Deed | BUCHANAN, PERCY F | TSUJIMOTO, DAVID L | | | $370,000.00 | 14106 | 4354413 |
| 4 | 09/01/1982 | WD | Warranty Deed | JENKS, THEODORE C | BUCHANAN, PERCY F | | | $94,500.00 | 22275 | 400938 |
| 5 | 01/01/1900 | OTHER | Other - Misc. Documents | Unknown | JENKS, THEODORE C | | | $0.00 | 0 | 0 |
Payout Agreement
| No payout information available.. |