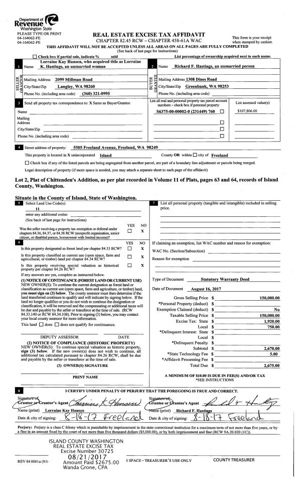
Property
Account |
| Property ID: | 231449 | Abbreviated Legal Description: | CHITTENDENS LOT 2 |
| Geographic ID: | S6375-00-00002-0 | Agent Code: | |
| Type: | Real | | |
| Tax Area: | 760 - APPRAISER-S Whid Schl Dist, Special District, improved & less than 1 acre | Land Use Code | 11 |
| Open Space: | N | DFL | N |
| Historic Property: | N | Remodel Property: | N |
| Multi-Family Redevelopment: | N | | |
| Township: | | Section: | |
| Range: | |
Location |
| Address: | 5505 FREELAND AVE FREELAND, WA 98249 | Mapsco: | |
| Neighborhood: | 34cFR-freeland av | Map ID: | 310 |
| Neighborhood CD: | 34cFRfrlnd |
Owner |
| Name: | HASTINGS, RICHARD F | Owner ID: | 281525 |
| Mailing Address: | 1308 DINES RD GREENBANK, WA 98253 | % Ownership: | 100.0000000000% |
| | | Exemptions: | |
Taxes and Assessment Details
Values
| (+) Improvement Homesite Value: | + | $0 | |
| (+) Improvement Non-Homesite Value: | + | $26,414 | |
| (+) Land Homesite Value: | + | $0 | |
| (+) Land Non-Homesite Value: | + | $260,000 | |
| (+) Curr Use (HS): | + | $0 | $0 |
| (+) Curr Use (NHS): | + | $0 | $0 |
| | | -------------------------- | |
| (=) Market Value: | = | $286,414 | |
| (–) Productivity Loss: | – | $0 | |
| | | -------------------------- | |
| (=) Subtotal: | = | $286,414 | |
| (+) Senior Appraised Value: | + | $0 | |
| (+) Non-Senior Appraised Value: | + | $286,414 | |
| | | -------------------------- | |
| (=) Total Appraised Value: | = | $286,414 | |
| (–) Senior Exemption Loss: | – | $0 | |
| (–) Exemption Loss: | – | $0 | |
| | | -------------------------- | |
| (=) Taxable Value: | = | $286,414 | |
Taxing Jurisdiction
| Owner: | HASTINGS, RICHARD F | | |
| % Ownership: | 100.0000000000% | | |
| Total Value: | $286,414 | | |
| Tax Area: | 760 - APPRAISER-S Whid Schl Dist, Special District, improved & less than 1 acre |
| CF | Conservation Futures | 0.0313996660 | $286,414 | $286,414 | $8.99 | | |
| FIRE3 | Fire & Rescue Dist #3 S Whidbey GEN | 1.2130821753 | $286,414 | $286,414 | $347.44 | | |
| HOBOND | Hospital BOND | 0.1893405597 | $286,414 | $286,414 | $54.23 | | |
| HOGEN | Hospital GEN | 0.3848777722 | $286,414 | $286,414 | $110.23 | | |
| CE | County Current Expense | 0.3674210519 | $286,414 | $286,414 | $105.23 | | |
| CR | County Roads | 0.4614296361 | $286,414 | $286,414 | $132.16 | | |
| ISLANDEMS | Hospital GEN (EMS) | 0.4952018576 | $286,414 | $286,414 | $141.83 | | |
| LIB | Library Sno-Isle GEN | 0.3039084203 | $286,414 | $286,414 | $87.04 | | |
| PORTWHID | Port of S Whidbey GEN | 0.1086004714 | $286,414 | $286,414 | $31.10 | | |
| SCH206BOND | School 206 BOND | 0.5960237832 | $286,414 | $286,414 | $170.71 | | |
| SCH206CAP | School 206 CP | 0.3066144020 | $286,414 | $286,414 | $87.82 | | |
| SCH206MO | School 206 Enrichment | 0.4808755445 | $286,414 | $286,414 | $137.73 | | |
| ST | State School | 1.4761226122 | $286,414 | $286,414 | $422.78 | | |
| ST2 | State School Part 2 | 0.7953803475 | $286,414 | $286,414 | $227.81 | | |
| SWHIDPRBD | P & R S Whidbey BOND | 0.0144185398 | $286,414 | $286,414 | $4.13 | | |
| SWHIDPRBD3 | P & R S Whidbey BOND3 | 0.1483535547 | $286,414 | $286,414 | $42.49 | | |
| SWHIDPRMT | P & R S Whidbey GEN | 0.4600000000 | $286,414 | $286,414 | $131.75 | | |
| | Total Tax Rate: | 7.8330503944 | | | | | |
| | | | | Taxes w/Current Exemptions: | $2,243.47 | | |
| | | | | Taxes w/o Exemptions: | $2,243.47 | | |
Improvement / Building
| Improvement #1: | MANUFACTURED HOME | State Code: | Y | 1560.0 sqft | Value: | $26,414 |
| Bathrooms: | 2 | Bedrooms: | 2 | | Ceiling: | DRYWALL PAINTED | Exterior Wall/Cover: | PLY/HARDBOARD T-111 | | Floor Covering: | CARPET 100% | Floor Structure: | WOOD W/SUBFLOOR | | Foundation: | CONCRETE | Heating: | FHA ELECTRIC | | Interior Finish: | DRYWALL PAINT | Plumbing Fixture Cnt: | 9 | | Roof Slope: | 4" IN 12" | Roof Structure/Cover: | CJ ALUMINIUM HEAVY |
|
| | Type | Description | Class CD | Sub Class CD | Year Built | Area |
| | BAS | BASE/MAIN FLOOR | 2 | 0 | 1983 | 1560.0 |
| | OCP | OPEN CARPORT | 2 | 0 | 1983 | 363.0 |
| | UTY | STORAGE/UTILITY | 2 | 0 | 1983 | 160.0 |
| | OWR | OPEN WOOD PORCH W/STEPS/ROOF | 2 | 0 | 1983 | 115.0 |
| | ENP | ENCLOSED PORCH | 2 | 0 | 1983 | 133.5 |
| | ENP | ENCLOSED PORCH | 2 | 0 | 1983 | 215.0 |
Sketch
Property Image
Land
| 1 | 16 | AC (00.51-01.00) | 0.6600 | 28749.60 | 0.00 | 0.00 | 1.00 | $260,000 | $0 |
Roll Value History
| 2026 | N/A | N/A | N/A | N/A | N/A |
| 2025 | $26,414 | $260,000 | $0 | $286,414 | $286,414 |
| 2024 | $27,805 | $240,000 | $0 | $267,805 | $267,805 |
| 2023 | $25,388 | $200,000 | $0 | $225,388 | $225,388 |
| 2022 | $24,087 | $160,000 | $0 | $184,087 | $184,087 |
| 2021 | $21,895 | $160,000 | $0 | $181,895 | $181,895 |
| 2020 | $22,172 | $135,000 | $0 | $157,172 | $157,172 |
| 2019 | $13,693 | $170,000 | $0 | $183,693 | $183,693 |
| 2018 | $14,804 | $130,000 | $0 | $144,804 | $144,804 |
| 2017 | $17,092 | $87,714 | $0 | $104,806 | $104,806 |
| 2016 | $17,913 | $87,714 | $0 | $105,627 | $105,627 |
| 2015 | $18,730 | $87,714 | $0 | $106,444 | $106,444 |
| 2014 | $19,549 | $87,714 | $0 | $107,263 | $107,263 |
| 2013 | $24,307 | $87,714 | $0 | $112,021 | $112,021 |
| 2012 | $24,307 | $87,714 | $0 | $112,021 | $112,021 |
| 2011 | $24,307 | $87,714 | $0 | $112,021 | $112,021 |
| 2010 | $28,376 | $87,714 | $0 | $116,090 | $116,090 |
| 2009 | $30,679 | $96,389 | $0 | $127,068 | $127,068 |
| 2008 | $31,823 | $96,389 | $0 | $128,212 | $128,212 |
| 2007 | $34,866 | $96,389 | $0 | $131,255 | $131,255 |
Deed and Sales History
| 1 | 08/16/2017 | WD | Warranty Deed | HANSEN, LORRAINE KAY | HASTINGS, RICHARD F | | | $150,000.00 | 30725 | 4428518 |
| 2 | 11/01/2005 | 5 | DNU - Marriage License/Name Change | HASTINGS, LORRAINE | HANSEN, LORRAINE KAY | | | $0.00 | 70741 | 0 |
| 3 | 03/02/2005 | DECREE | Divorce Decree/Legal Separation | HASTINGS, LORRAINE | HASTINGS, LORRAINE | | | $0.00 | 51128 | 4128949 |
| 4 | 03/02/2005 | DECREE | Divorce Decree/Legal Separation | Unknown | HASTINGS, LORRAINE | | | $0.00 | 51128 | 4128949 |
| 5 | 03/02/2005 | QCD | Quit Claim Deed | K, & K | HASTINGS, RICHARD | | | $0.00 | 51127 | 4128948 |
| 6 | 05/01/1994 | OTHER | Other - Misc. Documents | HASTINGS, RICHARD F | K, & K | | | $0.00 | 41955 | 0 |
| 7 | 04/01/1994 | OTHER | Other - Misc. Documents | K, & K | HASTINGS, RICHARD F | | | $0.00 | 41476 | 0 |
| 8 | 03/01/1994 | WD | Warranty Deed | HASTINGS, RICHARD F | K, & K | | | $0.00 | 41540 | 94009352 |
| 9 | 09/01/1989 | OTHER | Other - Misc. Documents | HASTINGS, RICHARD F | HASTINGS, RICHARD F | | | $13,000.00 | 93652 | 0 |
| 10 | 08/01/1989 | WD | Warranty Deed | MILLER, FRANK P | HASTINGS, RICHARD F | | | $50,000.00 | 93653 | 89012202 |
| 11 | 10/01/1982 | OTHER | Other - Misc. Documents | MILLER, FRANK P | MILLER, FRANK P | | | $31,000.00 | 11111111 | 0 |
| 12 | 10/01/1978 | OTHER | Other - Misc. Documents | Unknown | MILLER, FRANK P | | | $40,000.00 | 84924 | 340857 |
Payout Agreement
| No payout information available.. |