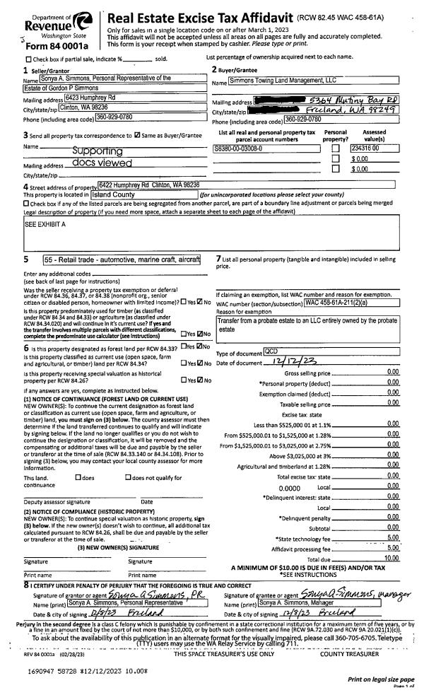
Property
Account |
| Property ID: | 231715 | Abbreviated Legal Description: | CLINTON LOTS 8 & 9 BLK 3 INCL ADJ VAC ALLEY |
| Geographic ID: | S6380-00-03008-0 | Agent Code: | |
| Type: | Real | | |
| Tax Area: | 720 - APPRAISER-S Whid Schl Dist, Special District, improved & less than 1 acre | Land Use Code | 59 |
| Open Space: | N | DFL | N |
| Historic Property: | N | Remodel Property: | N |
| Multi-Family Redevelopment: | N | | |
| Township: | | Section: | |
| Range: | |
Location |
| Address: | 6422 HUMPHREY RD CLINTON, WA 98236 | Mapsco: | |
| Neighborhood: | 44cCL-central ave | Map ID: | 815 |
| Neighborhood CD: | 44cCLcentr |
Owner |
| Name: | SIMMONS TOWING LAND MANAGEMENT LLC | Owner ID: | 310866 |
| Mailing Address: | 5364 MUTINY BAY RD FREELAND, WA 98249 | % Ownership: | 100.0000000000% |
| | | Exemptions: | |
Taxes and Assessment Details
Values
| (+) Improvement Homesite Value: | + | $0 | |
| (+) Improvement Non-Homesite Value: | + | $50,885 | |
| (+) Land Homesite Value: | + | $0 | |
| (+) Land Non-Homesite Value: | + | $250,000 | |
| (+) Curr Use (HS): | + | $0 | $0 |
| (+) Curr Use (NHS): | + | $0 | $0 |
| | | -------------------------- | |
| (=) Market Value: | = | $300,885 | |
| (–) Productivity Loss: | – | $0 | |
| | | -------------------------- | |
| (=) Subtotal: | = | $300,885 | |
| (+) Senior Appraised Value: | + | $0 | |
| (+) Non-Senior Appraised Value: | + | $300,885 | |
| | | -------------------------- | |
| (=) Total Appraised Value: | = | $300,885 | |
| (–) Senior Exemption Loss: | – | $0 | |
| (–) Exemption Loss: | – | $0 | |
| | | -------------------------- | |
| (=) Taxable Value: | = | $300,885 | |
Taxing Jurisdiction
| Owner: | SIMMONS TOWING LAND MANAGEMENT LLC | | |
| % Ownership: | 100.0000000000% | | |
| Total Value: | $300,885 | | |
| Tax Area: | 720 - APPRAISER-S Whid Schl Dist, Special District, improved & less than 1 acre |
| CF | Conservation Futures | 0.0313996660 | $300,885 | $300,885 | $9.45 | | |
| FIRE3 | Fire & Rescue Dist #3 S Whidbey GEN | 1.2130821753 | $300,885 | $300,885 | $365.00 | | |
| HOBOND | Hospital BOND | 0.1893405597 | $300,885 | $300,885 | $56.97 | | |
| HOGEN | Hospital GEN | 0.3848777722 | $300,885 | $300,885 | $115.80 | | |
| CE | County Current Expense | 0.3674210519 | $300,885 | $300,885 | $110.55 | | |
| CR | County Roads | 0.4614296361 | $300,885 | $300,885 | $138.84 | | |
| ISLANDEMS | Hospital GEN (EMS) | 0.4952018576 | $300,885 | $300,885 | $149.00 | | |
| LIB | Library Sno-Isle GEN | 0.3039084203 | $300,885 | $300,885 | $91.44 | | |
| PORTWHID | Port of S Whidbey GEN | 0.1086004714 | $300,885 | $300,885 | $32.68 | | |
| SCH206BOND | School 206 BOND | 0.5960237832 | $300,885 | $300,885 | $179.33 | | |
| SCH206CAP | School 206 CP | 0.3066144020 | $300,885 | $300,885 | $92.26 | | |
| SCH206MO | School 206 Enrichment | 0.4808755445 | $300,885 | $300,885 | $144.69 | | |
| ST | State School | 1.4761226122 | $300,885 | $300,885 | $444.14 | | |
| ST2 | State School Part 2 | 0.7953803475 | $300,885 | $300,885 | $239.32 | | |
| SWHIDPRBD | P & R S Whidbey BOND | 0.0144185398 | $300,885 | $300,885 | $4.34 | | |
| SWHIDPRBD3 | P & R S Whidbey BOND3 | 0.1483535547 | $300,885 | $300,885 | $44.64 | | |
| SWHIDPRMT | P & R S Whidbey GEN | 0.4600000000 | $300,885 | $300,885 | $138.41 | | |
| | Total Tax Rate: | 7.8330503944 | | | | | |
| | | | | Taxes w/Current Exemptions: | $2,356.86 | | |
| | | | | Taxes w/o Exemptions: | $2,356.86 | | |
Improvement / Building
| Improvement #1: | COMMERCIAL | State Code: | F1 | 1200.0 sqft | Value: | $50,885 |
| Bathrooms: | 1 | Ceiling: | PAINT OPEN FLOOR BAS | | Exterior Wall/Cover: | PLYWD/WD OR ST STUDS | Floor Covering: | CONCRETE SEALER | | Floor Structure: | CONCRETE ON GROUND | Foundation: | SLAB | | Heating: | SPACE HEATERS | Interior Finish: | OFFICE | | Plumbing Fixture Cnt: | 3 | Roof Structure/Cover: | BUILT-UP/OPEN WOOD |
|
| | Type | Description | Class CD | Sub Class CD | Year Built | Area |
| | BAS | BASE/MAIN FLOOR | 3 | 0 | 1984 | 1200.0 |
| | OP3 | OPEN PORCH W/ROOF | 3 | 0 | 1984 | 675.0 |
| | oPV1 | PV/ASPH 2" | 3 | 0 | 1984 | 5220.0 |
Sketch
Property Image
Land
| 1 | 68 | COMMERCIAL RETAIL | 0.3657 | 15929.89 | 0.00 | 0.00 | 1.00 | $250,000 | $0 |
Roll Value History
| 2026 | N/A | N/A | N/A | N/A | N/A |
| 2025 | $50,885 | $250,000 | $0 | $300,885 | $300,885 |
| 2024 | $52,601 | $230,000 | $0 | $282,601 | $282,601 |
| 2023 | $54,316 | $180,000 | $0 | $234,316 | $234,316 |
| 2022 | $47,140 | $130,000 | $0 | $177,140 | $177,140 |
| 2021 | $45,081 | $130,000 | $0 | $175,081 | $175,081 |
| 2020 | $30,730 | $130,000 | $0 | $160,730 | $160,730 |
| 2019 | $26,645 | $150,000 | $0 | $176,645 | $176,645 |
| 2018 | $26,679 | $130,000 | $0 | $156,679 | $156,679 |
| 2017 | $26,747 | $159,299 | $0 | $186,046 | $186,046 |
| 2016 | $26,883 | $159,299 | $0 | $186,182 | $186,182 |
| 2015 | $27,019 | $159,299 | $0 | $186,318 | $186,318 |
| 2014 | $28,741 | $143,637 | $0 | $172,378 | $172,378 |
| 2013 | $28,490 | $143,637 | $0 | $172,127 | $172,127 |
| 2012 | $50,837 | $143,637 | $0 | $194,474 | $194,474 |
| 2011 | $50,837 | $143,637 | $0 | $194,474 | $194,474 |
| 2010 | $59,841 | $143,637 | $0 | $203,478 | $203,478 |
| 2009 | $61,904 | $157,836 | $0 | $219,740 | $219,740 |
| 2008 | $63,968 | $157,836 | $0 | $221,804 | $221,804 |
| 2007 | $65,000 | $157,836 | $0 | $222,836 | $222,836 |
Deed and Sales History
| 1 | 04/30/2024 | QCD | Quit Claim Deed | SIMMONS, GORDON | SIMMONS TOWING LAND MANAGEMENT LLC | | | $0.00 | 59873 | 4572028 |
| 2 | 12/12/2023 | QCD | Quit Claim Deed | SIMMONS, GORDON | SIMMONS TOWING LAND MANAGEMENT LLC | | | $0.00 | 58728 | 4567527 |
| 3 | 02/03/2020 | QCD | Quit Claim Deed | SIMMONS, ESTATE OF SHIRLEY A | SIMMONS, GORDON | | | $0.00 | 42151 | 4481564 |
| 4 | 01/01/1900 | OTHER | Other - Misc. Documents | Unknown | SIMMONS, GORDON | | | $0.00 | 0 | 0 |
Payout Agreement
| No payout information available.. |