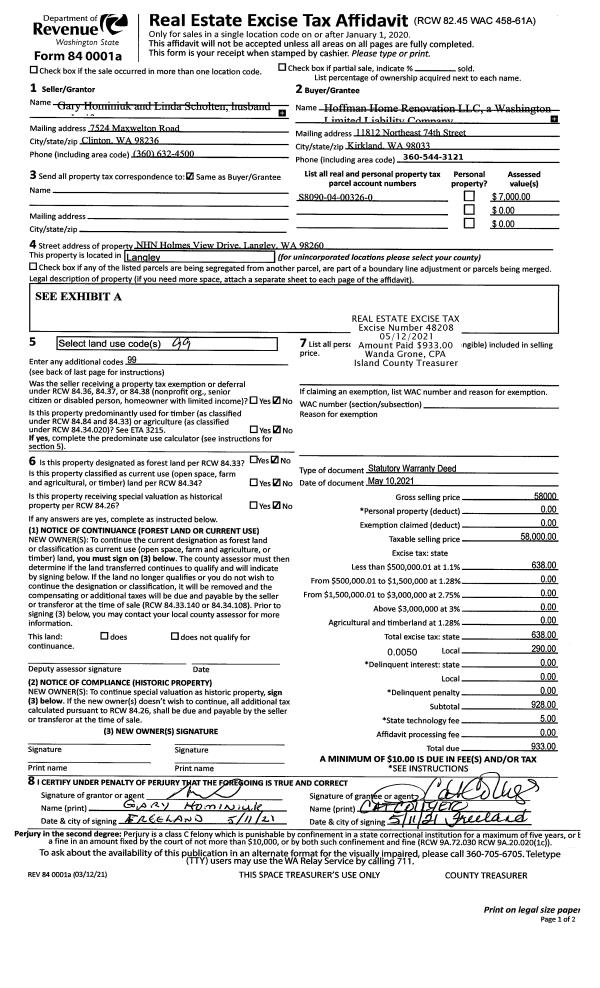
Property
Account |
| Property ID: | 231760 | Abbreviated Legal Description: | CLINTON LOT 15 & S30' OF LOT 14 BLK 3 TGW ADJ VAC ALLEY |
| Geographic ID: | S6380-00-03015-0 | Agent Code: | |
| Type: | Real | | |
| Tax Area: | 720 - APPRAISER-S Whid Schl Dist, Special District, improved & less than 1 acre | Land Use Code | 11 |
| Open Space: | N | DFL | N |
| Historic Property: | N | Remodel Property: | N |
| Multi-Family Redevelopment: | N | | |
| Township: | | Section: | |
| Range: | |
Location |
| Address: | 6439 CENTRAL AVE CLINTON, WA 98236 | Mapsco: | |
| Neighborhood: | 44cCL-central ave | Map ID: | 815 |
| Neighborhood CD: | 44cCLcentr |
Owner |
| Name: | LEONARD, DAVID | Owner ID: | 15506 |
| Mailing Address: | PO BOX 571 CLINTON, WA 98236-0571 | % Ownership: | 100.0000000000% |
| | | Exemptions: | |
Taxes and Assessment Details
Values
| (+) Improvement Homesite Value: | + | $0 | |
| (+) Improvement Non-Homesite Value: | + | $41,065 | |
| (+) Land Homesite Value: | + | $0 | |
| (+) Land Non-Homesite Value: | + | $80,000 | |
| (+) Curr Use (HS): | + | $0 | $0 |
| (+) Curr Use (NHS): | + | $0 | $0 |
| | | -------------------------- | |
| (=) Market Value: | = | $121,065 | |
| (–) Productivity Loss: | – | $0 | |
| | | -------------------------- | |
| (=) Subtotal: | = | $121,065 | |
| (+) Senior Appraised Value: | + | $0 | |
| (+) Non-Senior Appraised Value: | + | $121,065 | |
| | | -------------------------- | |
| (=) Total Appraised Value: | = | $121,065 | |
| (–) Senior Exemption Loss: | – | $0 | |
| (–) Exemption Loss: | – | $0 | |
| | | -------------------------- | |
| (=) Taxable Value: | = | $121,065 | |
Taxing Jurisdiction
| Owner: | LEONARD, DAVID | | |
| % Ownership: | 100.0000000000% | | |
| Total Value: | $121,065 | | |
| Tax Area: | 720 - APPRAISER-S Whid Schl Dist, Special District, improved & less than 1 acre |
| CF | Conservation Futures | 0.0313996660 | $121,065 | $121,065 | $3.80 | | |
| FIRE3 | Fire & Rescue Dist #3 S Whidbey GEN | 1.2130821753 | $121,065 | $121,065 | $146.86 | | |
| HOBOND | Hospital BOND | 0.1893405597 | $121,065 | $121,065 | $22.92 | | |
| HOGEN | Hospital GEN | 0.3848777722 | $121,065 | $121,065 | $46.60 | | |
| CE | County Current Expense | 0.3674210519 | $121,065 | $121,065 | $44.48 | | |
| CR | County Roads | 0.4614296361 | $121,065 | $121,065 | $55.86 | | |
| ISLANDEMS | Hospital GEN (EMS) | 0.4952018576 | $121,065 | $121,065 | $59.95 | | |
| LIB | Library Sno-Isle GEN | 0.3039084203 | $121,065 | $121,065 | $36.79 | | |
| PORTWHID | Port of S Whidbey GEN | 0.1086004714 | $121,065 | $121,065 | $13.15 | | |
| SCH206BOND | School 206 BOND | 0.5960237832 | $121,065 | $121,065 | $72.16 | | |
| SCH206CAP | School 206 CP | 0.3066144020 | $121,065 | $121,065 | $37.12 | | |
| SCH206MO | School 206 Enrichment | 0.4808755445 | $121,065 | $121,065 | $58.22 | | |
| ST | State School | 1.4761226122 | $121,065 | $121,065 | $178.71 | | |
| ST2 | State School Part 2 | 0.7953803475 | $121,065 | $121,065 | $96.29 | | |
| SWHIDPRBD | P & R S Whidbey BOND | 0.0144185398 | $121,065 | $121,065 | $1.75 | | |
| SWHIDPRBD3 | P & R S Whidbey BOND3 | 0.1483535547 | $121,065 | $121,065 | $17.96 | | |
| SWHIDPRMT | P & R S Whidbey GEN | 0.4600000000 | $121,065 | $121,065 | $55.69 | | |
| | Total Tax Rate: | 7.8330503944 | | | | | |
| | | | | Taxes w/Current Exemptions: | $948.31 | | |
| | | | | Taxes w/o Exemptions: | $948.31 | | |
Improvement / Building
| Improvement #1: | RESIDENTIAL | State Code: | Y | 0.0 sqft | Value: | $13,665 |
| Improvement #2: | RESIDENTIAL | State Code: | Y | 0.0 sqft | Value: | $27,400 |
Sketch
Property Image
Land
| 1 | 14 | SQ (08001-12000) | 0.2666 | 11614.43 | 0.00 | 0.00 | 1.00 | $80,000 | $0 |
Roll Value History
| 2026 | N/A | N/A | N/A | N/A | N/A |
| 2025 | $41,065 | $80,000 | $0 | $121,065 | $121,065 |
| 2024 | $18,720 | $80,000 | $0 | $98,720 | $98,720 |
| 2023 | $18,720 | $70,000 | $0 | $88,720 | $88,720 |
| 2022 | $18,720 | $130,000 | $0 | $148,720 | $148,720 |
| 2021 | $18,720 | $130,000 | $0 | $148,720 | $148,720 |
| 2020 | $18,720 | $130,000 | $0 | $148,720 | $148,720 |
| 2019 | $18,720 | $150,000 | $0 | $168,720 | $168,720 |
| 2018 | $18,720 | $130,000 | $0 | $148,720 | $148,720 |
| 2017 | $18,720 | $72,000 | $0 | $90,720 | $90,720 |
| 2016 | $13,553 | $72,000 | $0 | $85,553 | $85,553 |
| 2015 | $7,553 | $72,000 | $0 | $79,553 | $79,553 |
| 2014 | $7,553 | $100,000 | $0 | $107,553 | $107,553 |
| 2013 | $7,553 | $100,000 | $0 | $107,553 | $107,553 |
| 2012 | $7,553 | $100,000 | $0 | $107,553 | $107,553 |
| 2011 | $7,553 | $100,000 | $0 | $107,553 | $107,553 |
| 2010 | $7,553 | $100,000 | $0 | $107,553 | $107,553 |
| 2009 | $56,068 | $100,000 | $0 | $156,068 | $156,068 |
| 2008 | $56,983 | $129,987 | $0 | $186,970 | $186,970 |
| 2007 | $57,898 | $129,987 | $0 | $187,885 | $187,885 |
Deed and Sales History
| 1 | 10/20/2008 | PRD | Personal Representatives Deed | BEATY, ELLEN P | LEONARD, DAVID | | | $0.00 | 82904 | 4239669 |
| 2 | 02/01/1992 | QCD | Quit Claim Deed | BEATY, JOHN M | BEATY, ELLEN P | | | $0.00 | 20533 | 92002587 |
| 3 | 01/01/1900 | OTHER | Other - Misc. Documents | Unknown | BEATY, JOHN M | | | $0.00 | 0 | 0 |
Payout Agreement
| No payout information available.. |