Property
Account |
| Property ID: | 231886 | Abbreviated Legal Description: | Clinton,s Lot 12,s Blk 5;s LOT B BLA 438-01 AF#4013163s |
| Geographic ID: | S6380-00-05012-0 | Agent Code: | |
| Type: | Real | | |
| Tax Area: | 720 - APPRAISER-S Whid Schl Dist, Special District, improved & less than 1 acre | Land Use Code | 11 |
| Open Space: | N | DFL | N |
| Historic Property: | N | Remodel Property: | N |
| Multi-Family Redevelopment: | N | | |
| Township: | | Section: | |
| Range: | |
Location |
| Address: | 6466 CENTRAL AVE CLINTON, WA 98236 | Mapsco: | |
| Neighborhood: | Cycle 4 | Map ID: | 815 |
| Neighborhood CD: | 4 |
Owner |
| Name: | HENDERSON, WILLIAM | Owner ID: | 317313 |
| Mailing Address: | SARAH BENNER-KENAGY 6466 CENTRAL AVE CLINTON, WA 98236 | % Ownership: | 100.0000000000% |
| | | Exemptions: | |
Taxes and Assessment Details
Values
| (+) Improvement Homesite Value: | + | $0 | |
| (+) Improvement Non-Homesite Value: | + | $192,356 | |
| (+) Land Homesite Value: | + | $0 | |
| (+) Land Non-Homesite Value: | + | $240,000 | |
| (+) Curr Use (HS): | + | $0 | $0 |
| (+) Curr Use (NHS): | + | $0 | $0 |
| | | -------------------------- | |
| (=) Market Value: | = | $432,356 | |
| (–) Productivity Loss: | – | $0 | |
| | | -------------------------- | |
| (=) Subtotal: | = | $432,356 | |
| (+) Senior Appraised Value: | + | $0 | |
| (+) Non-Senior Appraised Value: | + | $432,356 | |
| | | -------------------------- | |
| (=) Total Appraised Value: | = | $432,356 | |
| (–) Senior Exemption Loss: | – | $0 | |
| (–) Exemption Loss: | – | $0 | |
| | | -------------------------- | |
| (=) Taxable Value: | = | $432,356 | |
Taxing Jurisdiction
| Owner: | HENDERSON, WILLIAM | | |
| % Ownership: | 100.0000000000% | | |
| Total Value: | $432,356 | | |
| Tax Area: | 720 - APPRAISER-S Whid Schl Dist, Special District, improved & less than 1 acre |
| CF | Conservation Futures | 0.0313996660 | $432,356 | $432,356 | $13.58 | | |
| FIRE3 | Fire & Rescue Dist #3 S Whidbey GEN | 1.2130821753 | $432,356 | $432,356 | $524.48 | | |
| HOBOND | Hospital BOND | 0.1893405597 | $432,356 | $432,356 | $81.86 | | |
| HOGEN | Hospital GEN | 0.3848777722 | $432,356 | $432,356 | $166.40 | | |
| CE | County Current Expense | 0.3674210519 | $432,356 | $432,356 | $158.86 | | |
| CR | County Roads | 0.4614296361 | $432,356 | $432,356 | $199.50 | | |
| ISLANDEMS | Hospital GEN (EMS) | 0.4952018576 | $432,356 | $432,356 | $214.10 | | |
| LIB | Library Sno-Isle GEN | 0.3039084203 | $432,356 | $432,356 | $131.40 | | |
| PORTWHID | Port of S Whidbey GEN | 0.1086004714 | $432,356 | $432,356 | $46.95 | | |
| SCH206BOND | School 206 BOND | 0.5960237832 | $432,356 | $432,356 | $257.69 | | |
| SCH206CAP | School 206 CP | 0.3066144020 | $432,356 | $432,356 | $132.57 | | |
| SCH206MO | School 206 Enrichment | 0.4808755445 | $432,356 | $432,356 | $207.91 | | |
| ST | State School | 1.4761226122 | $432,356 | $432,356 | $638.21 | | |
| ST2 | State School Part 2 | 0.7953803475 | $432,356 | $432,356 | $343.89 | | |
| SWHIDPRBD | P & R S Whidbey BOND | 0.0144185398 | $432,356 | $432,356 | $6.23 | | |
| SWHIDPRBD3 | P & R S Whidbey BOND3 | 0.1483535547 | $432,356 | $432,356 | $64.14 | | |
| SWHIDPRMT | P & R S Whidbey GEN | 0.4600000000 | $432,356 | $432,356 | $198.88 | | |
| | Total Tax Rate: | 7.8330503944 | | | | | |
| | | | | Taxes w/Current Exemptions: | $3,386.65 | | |
| | | | | Taxes w/o Exemptions: | $3,386.65 | | |
Improvement / Building
| Improvement #1: | RESIDENTIAL | State Code: | Y | 1020.0 sqft | Value: | $192,356 |
| Bathrooms: | 1.5 | Bedrooms: | 2 | | Ceiling: | DRYWALL PAINTED | Cooling: | HEAT PUMP/CONV/V | | Exterior Wall/Cover: | WOOD SIDING | Floor Covering: | VINYL/HARDWOOD 60-40 | | Floor Structure: | WOOD W/SUBFLOOR | Foundation: | CONCRETE | | Interior Finish: | DRYWALL PAINT | Plumbing Fixture Cnt: | 6 | | Roof Slope: | 4" IN 12" | Roof Structure/Cover: | CJ ASPHALT |
|
| | Type | Description | Class CD | Sub Class CD | Year Built | Area |
| | BAS | BASE/MAIN FLOOR | 3 | 0 | 1952 | 1020.0 |
| | OP2 | OPEN PORCH W/STEPS | 3 | 0 | 1952 | 15.0 |
| | OP3 | OPEN PORCH W/ROOF | 3 | 0 | 1952 | 96.0 |
| | DGR | DETACHED GARAGE | 3 | 0 | 1952 | 200.0 |
| | UTY | STORAGE/UTILITY | 3 | 0 | 1952 | 249.0 |
Sketch
Property Image
Land
| 1 | 14 | SQ (08001-12000) | 0.0000 | 0.00 | 0.00 | 0.00 | 1.00 | $240,000 | $0 |
Roll Value History
| 2026 | N/A | N/A | N/A | N/A | N/A |
| 2025 | $192,356 | $240,000 | $0 | $432,356 | $432,356 |
| 2024 | $181,851 | $230,000 | $0 | $411,851 | $411,851 |
| 2023 | $184,478 | $230,000 | $0 | $414,478 | $414,478 |
| 2022 | $169,422 | $210,000 | $0 | $379,422 | $379,422 |
| 2021 | $149,396 | $150,000 | $0 | $299,396 | $299,396 |
| 2020 | $137,549 | $130,000 | $0 | $267,549 | $267,549 |
| 2019 | $99,319 | $150,000 | $0 | $249,319 | $249,319 |
| 2018 | $99,667 | $130,000 | $0 | $229,667 | $229,667 |
| 2017 | $100,364 | $110,000 | $0 | $210,364 | $210,364 |
| 2016 | $101,759 | $85,000 | $0 | $186,759 | $186,759 |
| 2015 | $103,153 | $85,000 | $0 | $188,153 | $188,153 |
| 2014 | $69,698 | $85,000 | $0 | $154,698 | $154,698 |
| 2013 | $71,092 | $85,000 | $0 | $156,092 | $156,092 |
| 2012 | $72,486 | $76,000 | $0 | $148,486 | $148,486 |
| 2011 | $73,880 | $85,000 | $0 | $158,880 | $158,880 |
| 2010 | $83,701 | $85,000 | $0 | $168,701 | $168,701 |
| 2009 | $86,448 | $100,000 | $0 | $186,448 | $186,448 |
| 2008 | $72,050 | $100,000 | $0 | $172,050 | $172,050 |
| 2007 | $73,365 | $100,000 | $0 | $173,365 | $173,365 |
Deed and Sales History
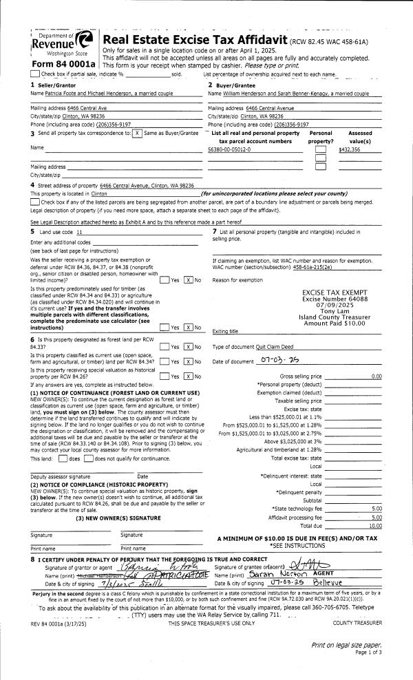
| 1 | 07/03/2025 | QCD | Quit Claim Deed | FOOTE, PATRICA | HENDERSON, WILLIAM | | | $0.00 | 64088 | 4587979 |
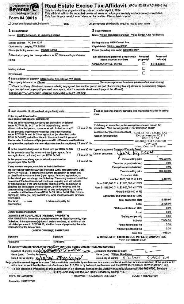
| 2 | 06/10/2024 | WD | Warranty Deed | ANDERSON, DOROTHY | HENDERSON ET AL, WILLIAM | | | $499,000.00 | 60311 | 4573414 |
| 3 | 09/16/2020 | QCD | Quit Claim Deed | ANDERSON, DOROTHY | ANDERSON, DOROTHY | | | $0.00 | 44802 | 4496905 |
| 4 | 03/01/1996 | QCD | Quit Claim Deed | MOE, ESTER B | ANDERSON, DOROTHY | | | $0.00 | 61081 | 96005546 |
| 5 | 02/01/1996 | QCD | Quit Claim Deed | MOE, ESTER B | MOE, ESTER B | | | $0.00 | 60506 | 96002707 |
| 6 | 01/01/1900 | OTHER | Other - Misc. Documents | Unknown | MOE, ESTER B | | | $0.00 | 0 | 0 |
Payout Agreement
| No payout information available.. |