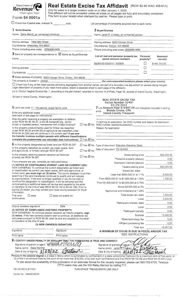
Property
Account |
| Property ID: | 232929 | Abbreviated Legal Description: | CLINTON HTS 1 LOT 2 |
| Geographic ID: | S6390-00-00002-0 | Agent Code: | |
| Type: | Real | | |
| Tax Area: | 720 - APPRAISER-S Whid Schl Dist, Special District, improved & less than 1 acre | Land Use Code | 11 |
| Open Space: | N | DFL | N |
| Historic Property: | N | Remodel Property: | N |
| Multi-Family Redevelopment: | N | | |
| Township: | | Section: | |
| Range: | |
Location |
| Address: | 6253 HINMAN DR CLINTON, WA 98236 | Mapsco: | |
| Neighborhood: | Cycle 4 | Map ID: | 808 |
| Neighborhood CD: | 4 |
Owner |
| Name: | LINDSEY, JANET R | Owner ID: | 303581 |
| Mailing Address: | 6253 HINMAN DR CLINTON, WA 98236 | % Ownership: | 100.0000000000% |
| | | Exemptions: | |
Taxes and Assessment Details
Values
| (+) Improvement Homesite Value: | + | $0 | |
| (+) Improvement Non-Homesite Value: | + | $275,564 | |
| (+) Land Homesite Value: | + | $0 | |
| (+) Land Non-Homesite Value: | + | $350,000 | |
| (+) Curr Use (HS): | + | $0 | $0 |
| (+) Curr Use (NHS): | + | $0 | $0 |
| | | -------------------------- | |
| (=) Market Value: | = | $625,564 | |
| (–) Productivity Loss: | – | $0 | |
| | | -------------------------- | |
| (=) Subtotal: | = | $625,564 | |
| (+) Senior Appraised Value: | + | $0 | |
| (+) Non-Senior Appraised Value: | + | $625,564 | |
| | | -------------------------- | |
| (=) Total Appraised Value: | = | $625,564 | |
| (–) Senior Exemption Loss: | – | $0 | |
| (–) Exemption Loss: | – | $0 | |
| | | -------------------------- | |
| (=) Taxable Value: | = | $625,564 | |
Taxing Jurisdiction
| Owner: | LINDSEY, JANET R | | |
| % Ownership: | 100.0000000000% | | |
| Total Value: | $625,564 | | |
| Tax Area: | 720 - APPRAISER-S Whid Schl Dist, Special District, improved & less than 1 acre |
| CF | Conservation Futures | 0.0313996660 | $625,564 | $625,564 | $19.64 | | |
| FIRE3 | Fire & Rescue Dist #3 S Whidbey GEN | 1.2130821753 | $625,564 | $625,564 | $758.86 | | |
| HOBOND | Hospital BOND | 0.1893405597 | $625,564 | $625,564 | $118.44 | | |
| HOGEN | Hospital GEN | 0.3848777722 | $625,564 | $625,564 | $240.77 | | |
| CE | County Current Expense | 0.3674210519 | $625,564 | $625,564 | $229.85 | | |
| CR | County Roads | 0.4614296361 | $625,564 | $625,564 | $288.65 | | |
| ISLANDEMS | Hospital GEN (EMS) | 0.4952018576 | $625,564 | $625,564 | $309.78 | | |
| LIB | Library Sno-Isle GEN | 0.3039084203 | $625,564 | $625,564 | $190.11 | | |
| PORTWHID | Port of S Whidbey GEN | 0.1086004714 | $625,564 | $625,564 | $67.94 | | |
| SCH206BOND | School 206 BOND | 0.5960237832 | $625,564 | $625,564 | $372.85 | | |
| SCH206CAP | School 206 CP | 0.3066144020 | $625,564 | $625,564 | $191.81 | | |
| SCH206MO | School 206 Enrichment | 0.4808755445 | $625,564 | $625,564 | $300.82 | | |
| ST | State School | 1.4761226122 | $625,564 | $625,564 | $923.41 | | |
| ST2 | State School Part 2 | 0.7953803475 | $625,564 | $625,564 | $497.56 | | |
| SWHIDPRBD | P & R S Whidbey BOND | 0.0144185398 | $625,564 | $625,564 | $9.02 | | |
| SWHIDPRBD3 | P & R S Whidbey BOND3 | 0.1483535547 | $625,564 | $625,564 | $92.80 | | |
| SWHIDPRMT | P & R S Whidbey GEN | 0.4600000000 | $625,564 | $625,564 | $287.76 | | |
| | Total Tax Rate: | 7.8330503944 | | | | | |
| | | | | Taxes w/Current Exemptions: | $4,900.07 | | |
| | | | | Taxes w/o Exemptions: | $4,900.07 | | |
Improvement / Building
| Improvement #1: | RESIDENTIAL | State Code: | Y | 1491.0 sqft | Value: | $275,564 |
| Bathrooms: | 2 | Bedrooms: | 3 | | Ceiling: | DRYWALL PAINTED | Cooling: | HEAT PUMP/CONV/V | | Exterior Wall/Cover: | STUCCO | Floor Covering: | VINYL 100% | | Floor Structure: | WOOD W/SUBFLOOR | Foundation: | CONCRETE | | Interior Finish: | DRYWALL PAINT | Plumbing Fixture Cnt: | 10 | | Roof Slope: | 4" IN 12" | Roof Structure/Cover: | CJ ASPHALT |
|
| | Type | Description | Class CD | Sub Class CD | Year Built | Area |
| | BAS | BASE/MAIN FLOOR | 3 | 0 | 1974 | 1491.0 |
| | OP2 | OPEN PORCH W/STEPS | 3 | 0 | 1974 | 48.0 |
| | AGR | ATTACHED GARAGE | 3 | 0 | 1974 | 462.0 |
| | OWP | OPEN WOOD PORCH W/STEPS | 3 | 0 | 1974 | 336.0 |
| | UTY | STORAGE/UTILITY | 3 | 0 | 1974 | 80.0 |
Sketch
Property Image
Land
| 1 | 15 | SQ (12001-21780) | 0.0000 | 0.00 | 0.00 | 0.00 | 1.00 | $350,000 | $0 |
Roll Value History
| 2026 | N/A | N/A | N/A | N/A | N/A |
| 2025 | $275,564 | $350,000 | $0 | $625,564 | $625,564 |
| 2024 | $279,130 | $330,000 | $0 | $609,130 | $609,130 |
| 2023 | $282,698 | $300,000 | $0 | $582,698 | $212,696 |
| 2022 | $251,741 | $280,000 | $0 | $531,741 | $212,696 |
| 2021 | $221,743 | $230,000 | $0 | $451,743 | $451,743 |
| 2020 | $213,426 | $180,000 | $0 | $393,426 | $393,426 |
| 2019 | $154,934 | $210,000 | $0 | $364,934 | $364,934 |
| 2018 | $153,535 | $200,000 | $0 | $353,535 | $353,535 |
| 2017 | $154,500 | $200,000 | $0 | $354,500 | $354,500 |
| 2016 | $156,431 | $150,000 | $0 | $306,431 | $306,431 |
| 2015 | $158,364 | $100,000 | $0 | $258,364 | $258,364 |
| 2014 | $155,925 | $100,000 | $0 | $255,925 | $255,925 |
| 2013 | $157,964 | $100,000 | $0 | $257,964 | $257,964 |
| 2012 | $160,005 | $106,250 | $0 | $266,255 | $266,255 |
| 2011 | $162,046 | $125,000 | $0 | $287,046 | $287,046 |
| 2010 | $172,033 | $125,000 | $0 | $297,033 | $297,033 |
| 2009 | $179,545 | $150,000 | $0 | $329,545 | $329,545 |
| 2008 | $141,834 | $175,000 | $0 | $316,834 | $316,834 |
| 2007 | $143,968 | $175,000 | $0 | $318,968 | $318,968 |
Deed and Sales History
| 1 | 03/16/2022 | WD | Warranty Deed | MERRITT, DANA | LINDSEY, JANET R | | | $640,000.00 | 52491 | 4542364 |
| 2 | 09/10/2002 | WD | Warranty Deed | SWILLEY, DONALD E | MERRITT, DANA | | | $234,000.00 | 23694 | 4031369 |
| 3 | 10/01/1984 | REC | Real Estate Contract | SANBORN, ELMER R | SWILLEY, DONALD E | | | $70,000.00 | 43024 | 84004506 |
| 4 | 01/01/1900 | OTHER | Other - Misc. Documents | Unknown | SANBORN, ELMER R | | | $0.00 | 0 | 0 |
Payout Agreement
| No payout information available.. |