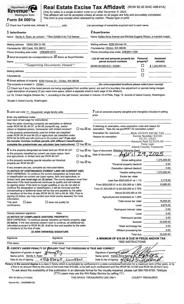
Property
Account |
| Property ID: | 233081 | Abbreviated Legal Description: | CLINTON HTS 1 LOT 18 |
| Geographic ID: | S6390-00-00018-0 | Agent Code: | |
| Type: | Real | | |
| Tax Area: | 720 - APPRAISER-S Whid Schl Dist, Special District, improved & less than 1 acre | Land Use Code | 11 |
| Open Space: | N | DFL | N |
| Historic Property: | N | Remodel Property: | N |
| Multi-Family Redevelopment: | N | | |
| Township: | | Section: | |
| Range: | |
Location |
| Address: | 6250 HINMAN DR CLINTON, WA 98236 | Mapsco: | |
| Neighborhood: | Cycle 4 | Map ID: | 808 |
| Neighborhood CD: | 4 |
Owner |
| Name: | KRAMER, KEILEE ANNE | Owner ID: | 316292 |
| Mailing Address: | MICHAEL EUGENE WILSON 6250 HINMAN DR CLINTON, WA 98236 | % Ownership: | 100.0000000000% |
| | | Exemptions: | |
Taxes and Assessment Details
Values
| (+) Improvement Homesite Value: | + | $0 | |
| (+) Improvement Non-Homesite Value: | + | $967,171 | |
| (+) Land Homesite Value: | + | $0 | |
| (+) Land Non-Homesite Value: | + | $350,000 | |
| (+) Curr Use (HS): | + | $0 | $0 |
| (+) Curr Use (NHS): | + | $0 | $0 |
| | | -------------------------- | |
| (=) Market Value: | = | $1,317,171 | |
| (–) Productivity Loss: | – | $0 | |
| | | -------------------------- | |
| (=) Subtotal: | = | $1,317,171 | |
| (+) Senior Appraised Value: | + | $0 | |
| (+) Non-Senior Appraised Value: | + | $1,317,171 | |
| | | -------------------------- | |
| (=) Total Appraised Value: | = | $1,317,171 | |
| (–) Senior Exemption Loss: | – | $0 | |
| (–) Exemption Loss: | – | $0 | |
| | | -------------------------- | |
| (=) Taxable Value: | = | $1,317,171 | |
Taxing Jurisdiction
| Owner: | KRAMER, KEILEE ANNE | | |
| % Ownership: | 100.0000000000% | | |
| Total Value: | $1,317,171 | | |
| Tax Area: | 720 - APPRAISER-S Whid Schl Dist, Special District, improved & less than 1 acre |
| CF | Conservation Futures | 0.0313996660 | $1,317,171 | $1,317,171 | $41.36 | | |
| FIRE3 | Fire & Rescue Dist #3 S Whidbey GEN | 1.2130821753 | $1,317,171 | $1,317,171 | $1,597.84 | | |
| HOBOND | Hospital BOND | 0.1893405597 | $1,317,171 | $1,317,171 | $249.39 | | |
| HOGEN | Hospital GEN | 0.3848777722 | $1,317,171 | $1,317,171 | $506.95 | | |
| CE | County Current Expense | 0.3674210519 | $1,317,171 | $1,317,171 | $483.96 | | |
| CR | County Roads | 0.4614296361 | $1,317,171 | $1,317,171 | $607.78 | | |
| ISLANDEMS | Hospital GEN (EMS) | 0.4952018576 | $1,317,171 | $1,317,171 | $652.27 | | |
| LIB | Library Sno-Isle GEN | 0.3039084203 | $1,317,171 | $1,317,171 | $400.30 | | |
| PORTWHID | Port of S Whidbey GEN | 0.1086004714 | $1,317,171 | $1,317,171 | $143.05 | | |
| SCH206BOND | School 206 BOND | 0.5960237832 | $1,317,171 | $1,317,171 | $785.07 | | |
| SCH206CAP | School 206 CP | 0.3066144020 | $1,317,171 | $1,317,171 | $403.86 | | |
| SCH206MO | School 206 Enrichment | 0.4808755445 | $1,317,171 | $1,317,171 | $633.40 | | |
| ST | State School | 1.4761226122 | $1,317,171 | $1,317,171 | $1,944.31 | | |
| ST2 | State School Part 2 | 0.7953803475 | $1,317,171 | $1,317,171 | $1,047.65 | | |
| SWHIDPRBD | P & R S Whidbey BOND | 0.0144185398 | $1,317,171 | $1,317,171 | $18.99 | | |
| SWHIDPRBD3 | P & R S Whidbey BOND3 | 0.1483535547 | $1,317,171 | $1,317,171 | $195.41 | | |
| SWHIDPRMT | P & R S Whidbey GEN | 0.4600000000 | $1,317,171 | $1,317,171 | $605.90 | | |
| | Total Tax Rate: | 7.8330503944 | | | | | |
| | | | | Taxes w/Current Exemptions: | $10,317.49 | | |
| | | | | Taxes w/o Exemptions: | $10,317.49 | | |
Improvement / Building
| Improvement #1: | RESIDENTIAL | State Code: | Y | 3748.0 sqft | Value: | $967,171 |
| Bathrooms: | 3.5 | Bedrooms: | 4 | | Ceiling: | DRYWALL PAINTED | Exterior Wall/Cover: | CEMENT FIBER | | Floor Covering: | CARPET/VINYL 60-40 | Floor Structure: | WOOD W/SUBFLOOR | | Foundation: | CONCRETE | Heating: | RADIANT FLOOR | | Interior Finish: | DRYWALL PAINT | Plumbing Fixture Cnt: | 17 | | Roof Slope: | 6" IN 12" | Roof Structure/Cover: | CJ ASPHALT |
|
| | Type | Description | Class CD | Sub Class CD | Year Built | Area |
| | BAS | BASE/MAIN FLOOR | 6 | 0 | 2006 | 1808.0 |
| | OP4 | OPEN PORCH W/CEILING-ROOF | 6 | 0 | 2006 | 96.0 |
| | BGR | BASEMENT GARAGE | 6 | 0 | 2006 | 1072.0 |
| | UPS | UPPER STORY | 6 | 0 | 2006 | 1204.0 |
| | OWP | OPEN WOOD PORCH W/STEPS | 6 | 0 | 2006 | 452.0 |
| | OWP | OPEN WOOD PORCH W/STEPS | 6 | 0 | 2006 | 48.0 |
| | DWN | DOWNSTAIRS LIVING AREA | 6 | 0 | 2006 | 736.0 |
| | OWC | OPEN WOOD PORCH W/STEPS/ROOF/C | 6 | 0 | 2006 | 72.0 |
Sketch
Property Image
Land
| 1 | 15 | SQ (12001-21780) | 0.0000 | 0.00 | 0.00 | 0.00 | 1.00 | $350,000 | $0 |
Roll Value History
| 2026 | N/A | N/A | N/A | N/A | N/A |
| 2025 | $967,171 | $350,000 | $0 | $1,317,171 | $1,317,171 |
| 2024 | $914,835 | $330,000 | $0 | $1,244,835 | $1,244,835 |
| 2023 | $925,443 | $300,000 | $0 | $1,225,443 | $1,225,443 |
| 2022 | $847,612 | $280,000 | $0 | $1,127,612 | $1,127,612 |
| 2021 | $745,397 | $230,000 | $0 | $975,397 | $975,397 |
| 2020 | $693,717 | $180,000 | $0 | $873,717 | $873,717 |
| 2019 | $632,057 | $210,000 | $0 | $842,057 | $842,057 |
| 2018 | $633,871 | $200,000 | $0 | $833,871 | $833,871 |
| 2017 | $637,492 | $200,000 | $0 | $837,492 | $837,492 |
| 2016 | $644,735 | $150,000 | $0 | $794,735 | $794,735 |
| 2015 | $651,980 | $100,000 | $0 | $751,980 | $751,980 |
| 2014 | $618,643 | $100,000 | $0 | $718,643 | $718,643 |
| 2013 | $625,264 | $100,000 | $0 | $725,264 | $725,264 |
| 2012 | $631,881 | $106,250 | $0 | $738,131 | $738,131 |
| 2011 | $638,501 | $125,000 | $0 | $763,501 | $763,501 |
| 2010 | $637,003 | $125,000 | $0 | $762,003 | $762,003 |
| 2009 | $663,165 | $150,000 | $0 | $813,165 | $813,165 |
| 2008 | $671,659 | $175,000 | $0 | $846,659 | $846,659 |
| 2007 | $672,283 | $175,000 | $0 | $847,283 | $847,283 |
Deed and Sales History
| 1 | 04/29/2025 | WD | Warranty Deed | RYAN, SANDY A | KRAMER, KEILEE ANNE | | | $1,375,000.00 | 63330 | 4585223 |
| 2 | 03/27/2018 | WD | Warranty Deed | BROWN, THOMAS R | RYAN, JOHN H | | | $780,000.00 | 33520 | 4441827 |
| 3 | 03/12/2003 | WD | Warranty Deed | NEWSHAM, DICK E | BROWN, THOMAS R | | | $38,000.00 | 31180 | 4052169 |
| 4 | 01/01/1979 | OTHER | Other - Misc. Documents | Unknown | NEWSHAM, DICK E | | | $12,000.00 | 90035 | 345495 |
Payout Agreement
| No payout information available.. |