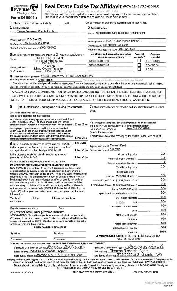
Property
Account |
| Property ID: | 23361 | Abbreviated Legal Description: | 12 HATHAWAY DC - BG E/4 CR SEC 21 S1*W ALG ELN OF SE/4 1095.89' TPB S1*W ALG SD ELN 100.51' N88*W165' N1*E110.23' S84*E143.33' S88*E22' TPB EX CO RD MONROE LANDING RD ALSO EX PT TO IS CO AF#4167431 |
| Geographic ID: | R13221-152-5230 | Agent Code: | |
| Type: | Real | | |
| Tax Area: | 330 - APPRAISER-Cpvl Schl Dist, Special Dist, improved & less than 1 acre | Land Use Code | 11 |
| Open Space: | N | DFL | N |
| Historic Property: | N | Remodel Property: | N |
| Multi-Family Redevelopment: | N | | |
| Township: | 32 | Section: | 21 |
| Range: | R1 |
Location |
| Address: | 915 MONROE LANDING RD OAK HARBOR, WA 98277 | Mapsco: | |
| Neighborhood: | Cycle 2 | Map ID: | 150 |
| Neighborhood CD: | 2 |
Owner |
| Name: | HALE, EILEEN | Owner ID: | 277967 |
| Mailing Address: | 915 MONROE LANDING RD OAK HARBOR, WA 98277 | % Ownership: | 100.0000000000% |
| | | Exemptions: | SNR/DSBL |
Taxes and Assessment Details
Values
| (+) Improvement Homesite Value: | + | $119,929 | |
| (+) Improvement Non-Homesite Value: | + | $0 | |
| (+) Land Homesite Value: | + | $243,636 | |
| (+) Land Non-Homesite Value: | + | $0 | |
| (+) Curr Use (HS): | + | $0 | $0 |
| (+) Curr Use (NHS): | + | $0 | $0 |
| | | -------------------------- | |
| (=) Market Value: | = | $363,565 | |
| (–) Productivity Loss: | – | $0 | |
| | | -------------------------- | |
| (=) Subtotal: | = | $363,565 | |
| (+) Senior Appraised Value: | + | $133,552 | |
| (+) Non-Senior Appraised Value: | + | $0 | |
| | | -------------------------- | |
| (=) Total Appraised Value: | = | $133,552 | |
| (–) Senior Exemption Loss: | – | $80,131 | |
| (–) Exemption Loss: | – | $0 | |
| | | -------------------------- | |
| (=) Taxable Value: | = | $53,421 | |
Taxing Jurisdiction
| Owner: | HALE, EILEEN | | |
| % Ownership: | 100.0000000000% | | |
| Total Value: | $363,565 | | |
| Tax Area: | 330 - APPRAISER-Cpvl Schl Dist, Special Dist, improved & less than 1 acre |
| CF | Conservation Futures | 0.0313996660 | $363,565 | $53,421 | $1.68 | | |
| CEM2 | Cemetery #2 | 0.0092609791 | $363,565 | $53,421 | $0.49 | | |
| FIRE2 | Fire & Rescue Dist #2 N Whidbey GEN | 0.5381486274 | $363,565 | $53,421 | $28.75 | | |
| HOBOND | Hospital BOND | 0.0000000000 | $363,565 | $0 | $0.00 | | |
| HOGEN | Hospital GEN | 0.3848777722 | $363,565 | $53,421 | $20.56 | | |
| CE | County Current Expense | 0.3674210519 | $363,565 | $53,421 | $19.63 | | |
| CR | County Roads | 0.4614296361 | $363,565 | $53,421 | $24.65 | | |
| ISLANDEMS | Hospital GEN (EMS) | 0.4952018576 | $363,565 | $53,421 | $26.45 | | |
| LIB | Library Sno-Isle GEN | 0.3039084203 | $363,565 | $53,421 | $16.24 | | |
| LIBCAP | Library Sno-Isle BOND (Cap Fac Imp Area) | 0.0000000000 | $363,565 | $0 | $0.00 | | |
| POCOUP | Port of Coupeville GEN | 0.1065226063 | $363,565 | $53,421 | $5.69 | | |
| POCOUPIDD | Port of Coupeville IDD | 0.3353038577 | $363,565 | $53,421 | $17.91 | | |
| COUPSDTECH | School 204 CP (TECH) | 0.0000000000 | $363,565 | $0 | $0.00 | | |
| SCH204MO | School 204 Enrichment | 0.0000000000 | $363,565 | $0 | $0.00 | | |
| ST | State School | 1.4761226122 | $363,565 | $53,421 | $78.86 | | |
| ST2 | State School Part 2 | 0.0000000000 | $363,565 | $0 | $0.00 | | |
| | Total Tax Rate: | 4.5095970868 | | | | | |
| | | | | Taxes w/Current Exemptions: | $240.91 | | |
| | | | | Taxes w/o Exemptions: | $2,294.24 | | |
Improvement / Building
| Improvement #1: | RESIDENTIAL | State Code: | Y | 740.0 sqft | Value: | $119,929 |
| Bathrooms: | 1 | Bedrooms: | 2 | | Ceiling: | DRYWALL PAINTED | Exterior Wall/Cover: | WOOD SIDING | | Floor Covering: | VINYL/HARDWOOD 60-40 | Floor Structure: | WOOD W/SUBFLOOR | | Foundation: | CONCRETE BLOCKS | Heating: | FHA OIL | | Interior Finish: | DRYWALL PAINT | Plumbing Fixture Cnt: | 6 | | Roof Slope: | 5" IN 12" | Roof Structure/Cover: | CJ ASPHALT |
|
| | Type | Description | Class CD | Sub Class CD | Year Built | Area |
| | BAS | BASE/MAIN FLOOR | 3 | 0 | 1952 | 740.0 |
| | UB6 | BASEMENT UNFINISHED 6" | 3 | 0 | 1952 | 260.0 |
| | UTY | STORAGE/UTILITY | 3 | 0 | 1952 | 256.0 |
| | DGR | DETACHED GARAGE | 3 | 0 | 1952 | 400.0 |
Sketch
Property Image
Land
| 1 | HS | HOMESITE | 0.3800 | 16552.80 | 0.00 | 0.00 | 1.00 | $243,636 | $0 |
Roll Value History
| 2026 | N/A | N/A | N/A | N/A | N/A |
| 2025 | $119,929 | $243,636 | $0 | $363,565 | $53,421 |
| 2024 | $100,394 | $190,000 | $0 | $290,394 | $53,421 |
| 2023 | $102,564 | $190,000 | $0 | $292,564 | $53,421 |
| 2022 | $94,836 | $180,000 | $0 | $274,836 | $53,421 |
| 2021 | $84,175 | $140,000 | $0 | $224,175 | $53,421 |
| 2020 | $82,520 | $120,000 | $0 | $202,520 | $53,421 |
| 2019 | $58,153 | $150,000 | $0 | $208,153 | $53,421 |
| 2018 | $42,267 | $130,000 | $0 | $172,267 | $53,421 |
| 2017 | $42,696 | $120,000 | $0 | $162,696 | $53,421 |
| 2016 | $43,552 | $90,000 | $0 | $133,552 | $53,421 |
| 2015 | $44,410 | $90,000 | $0 | $134,410 | $134,410 |
| 2014 | $45,266 | $90,000 | $0 | $135,266 | $135,266 |
| 2013 | $46,122 | $102,000 | $0 | $148,122 | $148,122 |
| 2012 | $49,497 | $102,000 | $0 | $151,497 | $151,497 |
| 2011 | $50,364 | $120,000 | $0 | $170,364 | $170,364 |
| 2010 | $57,783 | $120,000 | $0 | $177,783 | $177,783 |
| 2009 | $60,232 | $120,000 | $0 | $180,232 | $180,232 |
| 2008 | $61,305 | $160,000 | $0 | $221,305 | $221,305 |
| 2007 | $62,380 | $120,000 | $0 | $182,380 | $182,380 |
Deed and Sales History
| 1 | 12/13/2016 | WD | Warranty Deed | KUHUSKI, ESTATE OF SYLVIA D | HALE, EILEEN | | | $135,000.00 | 27281 | 4413230 |
| 2 | 12/02/2015 | QCD | Quit Claim Deed | HALE, EILEEN | | | | | 22489 | 4391063 |
| 3 | 01/29/2006 | QCD | Quit Claim Deed | KUHUSKI, SYLVIA D | KUHUSKI, SYLVIA D | | | $2,000.00 | 61600 | 4167431 |
| 4 | 01/01/1900 | OTHER | Other - Misc. Documents | Unknown | KUHUSKI, SYLVIA D | | | $0.00 | 0 | 0 |
Payout Agreement
| No payout information available.. |