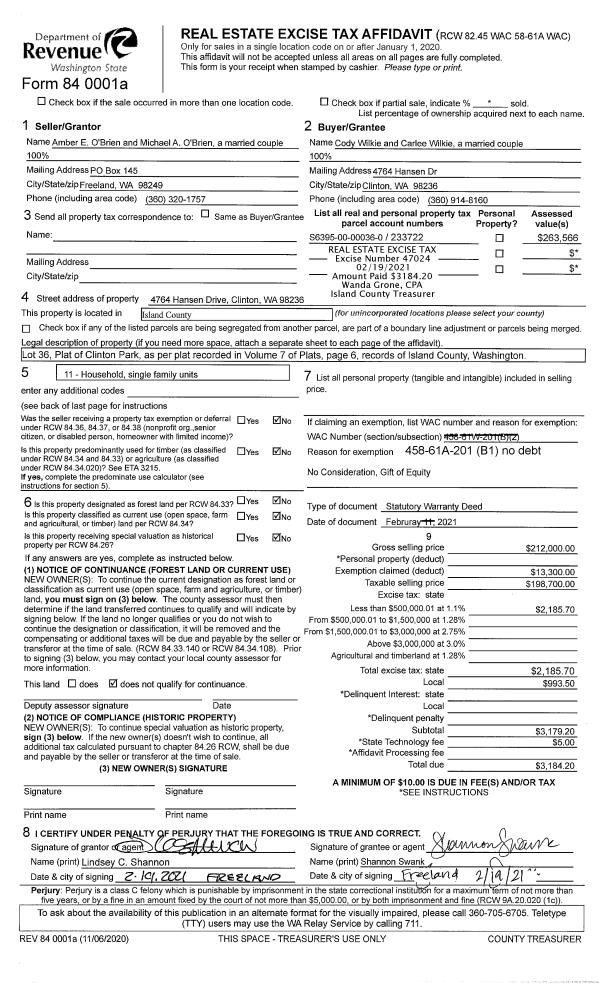
Property
Account |
| Property ID: | 233722 | Abbreviated Legal Description: | CLINTON PK LOT 36 INCL 1/45 INT IN TDLS AS DESC 317D149 A56174 |
| Geographic ID: | S6395-00-00036-0 | Agent Code: | |
| Type: | Real | | |
| Tax Area: | 720 - APPRAISER-S Whid Schl Dist, Special District, improved & less than 1 acre | Land Use Code | 11 |
| Open Space: | N | DFL | N |
| Historic Property: | N | Remodel Property: | N |
| Multi-Family Redevelopment: | N | | |
| Township: | | Section: | |
| Range: | |
Location |
| Address: | 4764 HANSEN DR CLINTON, WA 98236 | Mapsco: | |
| Neighborhood: | Cycle 4 | Map ID: | 808 |
| Neighborhood CD: | 4 |
Owner |
| Name: | WILKIE, CODY | Owner ID: | 298198 |
| Mailing Address: | CARLEE WILKIE PO BOX 801 CLINTON, WA 98236 | % Ownership: | 100.0000000000% |
| | | Exemptions: | |
Taxes and Assessment Details
Values
| (+) Improvement Homesite Value: | + | $0 | |
| (+) Improvement Non-Homesite Value: | + | $189,879 | |
| (+) Land Homesite Value: | + | $0 | |
| (+) Land Non-Homesite Value: | + | $240,000 | |
| (+) Curr Use (HS): | + | $0 | $0 |
| (+) Curr Use (NHS): | + | $0 | $0 |
| | | -------------------------- | |
| (=) Market Value: | = | $429,879 | |
| (–) Productivity Loss: | – | $0 | |
| | | -------------------------- | |
| (=) Subtotal: | = | $429,879 | |
| (+) Senior Appraised Value: | + | $0 | |
| (+) Non-Senior Appraised Value: | + | $429,879 | |
| | | -------------------------- | |
| (=) Total Appraised Value: | = | $429,879 | |
| (–) Senior Exemption Loss: | – | $0 | |
| (–) Exemption Loss: | – | $0 | |
| | | -------------------------- | |
| (=) Taxable Value: | = | $429,879 | |
Taxing Jurisdiction
| Owner: | WILKIE, CODY | | |
| % Ownership: | 100.0000000000% | | |
| Total Value: | $429,879 | | |
| Tax Area: | 720 - APPRAISER-S Whid Schl Dist, Special District, improved & less than 1 acre |
| CF | Conservation Futures | 0.0313996660 | $429,879 | $429,879 | $13.50 | | |
| FIRE3 | Fire & Rescue Dist #3 S Whidbey GEN | 1.2130821753 | $429,879 | $429,879 | $521.48 | | |
| HOBOND | Hospital BOND | 0.1893405597 | $429,879 | $429,879 | $81.39 | | |
| HOGEN | Hospital GEN | 0.3848777722 | $429,879 | $429,879 | $165.45 | | |
| CE | County Current Expense | 0.3674210519 | $429,879 | $429,879 | $157.95 | | |
| CR | County Roads | 0.4614296361 | $429,879 | $429,879 | $198.36 | | |
| ISLANDEMS | Hospital GEN (EMS) | 0.4952018576 | $429,879 | $429,879 | $212.88 | | |
| LIB | Library Sno-Isle GEN | 0.3039084203 | $429,879 | $429,879 | $130.64 | | |
| PORTWHID | Port of S Whidbey GEN | 0.1086004714 | $429,879 | $429,879 | $46.69 | | |
| SCH206BOND | School 206 BOND | 0.5960237832 | $429,879 | $429,879 | $256.22 | | |
| SCH206CAP | School 206 CP | 0.3066144020 | $429,879 | $429,879 | $131.81 | | |
| SCH206MO | School 206 Enrichment | 0.4808755445 | $429,879 | $429,879 | $206.72 | | |
| ST | State School | 1.4761226122 | $429,879 | $429,879 | $634.55 | | |
| ST2 | State School Part 2 | 0.7953803475 | $429,879 | $429,879 | $341.92 | | |
| SWHIDPRBD | P & R S Whidbey BOND | 0.0144185398 | $429,879 | $429,879 | $6.20 | | |
| SWHIDPRBD3 | P & R S Whidbey BOND3 | 0.1483535547 | $429,879 | $429,879 | $63.77 | | |
| SWHIDPRMT | P & R S Whidbey GEN | 0.4600000000 | $429,879 | $429,879 | $197.74 | | |
| | Total Tax Rate: | 7.8330503944 | | | | | |
| | | | | Taxes w/Current Exemptions: | $3,367.27 | | |
| | | | | Taxes w/o Exemptions: | $3,367.27 | | |
Improvement / Building
| Improvement #1: | RESIDENTIAL | State Code: | Y | 1192.0 sqft | Value: | $189,879 |
| Bathrooms: | 1 | Bedrooms: | 3 | | Ceiling: | DRY WALL SPRAYED | Cooling: | HEAT PUMP/CONV/V | | Exterior Wall/Cover: | WOOD SIDING | Floor Covering: | CARPET/VINYL 80-20 | | Floor Structure: | WOOD W/SUBFLOOR | Foundation: | CONCRETE | | Interior Finish: | DRYWALL PAINT | Plumbing Fixture Cnt: | 9 | | Roof Slope: | 4" IN 12" | Roof Structure/Cover: | CJ ASPHALT |
|
| | Type | Description | Class CD | Sub Class CD | Year Built | Area |
| | BAS | BASE/MAIN FLOOR | 3 | 0 | 1975 | 824.0 |
| | DWN | DOWNSTAIRS LIVING AREA | 3 | 0 | 1975 | 368.0 |
| | OP1 | OPEN PORCH SLAB | 3 | 0 | 1975 | 80.0 |
| | OCP | OPEN CARPORT | 3 | 0 | 1975 | 220.0 |
| | OWP | OPEN WOOD PORCH W/STEPS | 3 | 0 | 1975 | 288.0 |
Sketch
Property Image
Land
| 1 | 14 | SQ (08001-12000) | 0.0000 | 0.00 | 0.00 | 0.00 | 1.00 | $240,000 | $0 |
Roll Value History
| 2026 | N/A | N/A | N/A | N/A | N/A |
| 2025 | $189,879 | $240,000 | $0 | $429,879 | $429,879 |
| 2024 | $192,275 | $230,000 | $0 | $422,275 | $422,275 |
| 2023 | $194,672 | $230,000 | $0 | $424,672 | $424,672 |
| 2022 | $169,763 | $200,000 | $0 | $369,763 | $369,763 |
| 2021 | $151,750 | $140,000 | $0 | $291,750 | $291,750 |
| 2020 | $143,566 | $120,000 | $0 | $263,566 | $263,566 |
| 2019 | $97,952 | $140,000 | $0 | $237,952 | $237,952 |
| 2018 | $98,274 | $130,000 | $0 | $228,274 | $228,274 |
| 2017 | $98,916 | $110,000 | $0 | $208,916 | $208,916 |
| 2016 | $100,201 | $85,000 | $0 | $185,201 | $185,201 |
| 2015 | $101,485 | $65,000 | $0 | $166,485 | $166,485 |
| 2014 | $95,872 | $65,000 | $0 | $160,872 | $160,872 |
| 2013 | $97,236 | $65,000 | $0 | $162,236 | $162,236 |
| 2012 | $98,600 | $65,000 | $0 | $163,600 | $163,600 |
| 2011 | $99,965 | $85,000 | $0 | $184,965 | $184,965 |
| 2010 | $102,932 | $85,000 | $0 | $187,932 | $187,932 |
| 2009 | $106,105 | $100,000 | $0 | $206,105 | $206,105 |
| 2008 | $92,445 | $120,000 | $0 | $212,445 | $212,445 |
| 2007 | $93,749 | $74,000 | $0 | $167,749 | $167,749 |
Deed and Sales History
| 1 | 02/11/2021 | WD | Warranty Deed | O'BRIEN, AMBER E | WILKIE, CODY | | | $198,700.00 | 47024 | 4511444 |
| 2 | 11/22/2019 | WD | Warranty Deed | MILLS, CHARLES W | O'BRIEN, AMBER E | | | $196,000.00 | 41261 | 4476438 |
| 3 | 05/01/1988 | WD | Warranty Deed | MORGAN, HARVEY C | MILLS, CHARLES W | | | $50,000.00 | 81387 | 88005176 |
| 4 | 05/01/1981 | TRUSTEED | Trustee's Deed | BATES, WAYNE L | MORGAN, HARVEY C | | | $44,950.00 | 11529 | 383208 |
| 5 | 01/01/1900 | OTHER | Other - Misc. Documents | Unknown | BATES, WAYNE L | | | $0.00 | 0 | 0 |
Payout Agreement
| No payout information available.. |