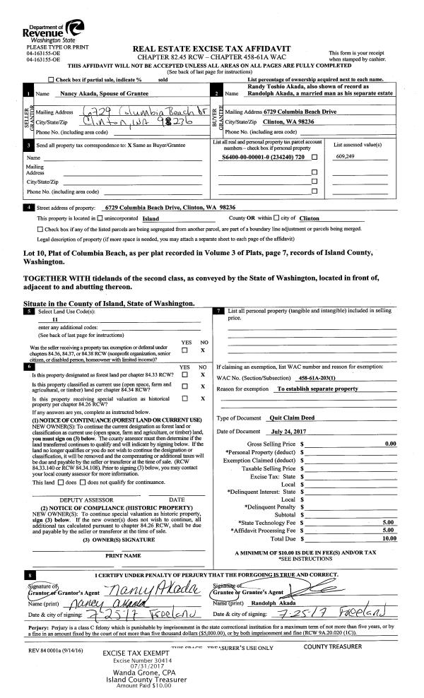
Property
Account |
| Property ID: | 234240 | Abbreviated Legal Description: | COLUMBIA BCH LOT 10 INCL ADJ TIDES |
| Geographic ID: | S6400-00-00010-0 | Agent Code: | |
| Type: | Real | | |
| Tax Area: | 720 - APPRAISER-S Whid Schl Dist, Special District, improved & less than 1 acre | Land Use Code | 11 |
| Open Space: | N | DFL | N |
| Historic Property: | N | Remodel Property: | N |
| Multi-Family Redevelopment: | N | | |
| Township: | | Section: | |
| Range: | |
Location |
| Address: | 6729 COLUMBIA BEACH DR CLINTON, WA 98236 | Mapsco: | |
| Neighborhood: | Cycle 4 | Map ID: | 1001 |
| Neighborhood CD: | 4 |
Owner |
| Name: | AKADA, RANDOLPH TOSHIO | Owner ID: | 302605 |
| Mailing Address: | NANCY GAIL AKADA 6729 COLUMBIA BEACH DR CLINTON, WA 98236 | % Ownership: | 100.0000000000% |
| | | Exemptions: | |
Taxes and Assessment Details
Values
| (+) Improvement Homesite Value: | + | $0 | |
| (+) Improvement Non-Homesite Value: | + | $357,743 | |
| (+) Land Homesite Value: | + | $0 | |
| (+) Land Non-Homesite Value: | + | $850,500 | |
| (+) Curr Use (HS): | + | $0 | $0 |
| (+) Curr Use (NHS): | + | $0 | $0 |
| | | -------------------------- | |
| (=) Market Value: | = | $1,208,243 | |
| (–) Productivity Loss: | – | $0 | |
| | | -------------------------- | |
| (=) Subtotal: | = | $1,208,243 | |
| (+) Senior Appraised Value: | + | $0 | |
| (+) Non-Senior Appraised Value: | + | $1,208,243 | |
| | | -------------------------- | |
| (=) Total Appraised Value: | = | $1,208,243 | |
| (–) Senior Exemption Loss: | – | $0 | |
| (–) Exemption Loss: | – | $0 | |
| | | -------------------------- | |
| (=) Taxable Value: | = | $1,208,243 | |
Taxing Jurisdiction
| Owner: | AKADA, RANDOLPH TOSHIO | | |
| % Ownership: | 100.0000000000% | | |
| Total Value: | $1,208,243 | | |
| Tax Area: | 720 - APPRAISER-S Whid Schl Dist, Special District, improved & less than 1 acre |
| CF | Conservation Futures | 0.0313996660 | $1,208,243 | $1,208,243 | $37.94 | | |
| FIRE3 | Fire & Rescue Dist #3 S Whidbey GEN | 1.2130821753 | $1,208,243 | $1,208,243 | $1,465.70 | | |
| HOBOND | Hospital BOND | 0.1893405597 | $1,208,243 | $1,208,243 | $228.77 | | |
| HOGEN | Hospital GEN | 0.3848777722 | $1,208,243 | $1,208,243 | $465.03 | | |
| CE | County Current Expense | 0.3674210519 | $1,208,243 | $1,208,243 | $443.93 | | |
| CR | County Roads | 0.4614296361 | $1,208,243 | $1,208,243 | $557.52 | | |
| ISLANDEMS | Hospital GEN (EMS) | 0.4952018576 | $1,208,243 | $1,208,243 | $598.32 | | |
| LIB | Library Sno-Isle GEN | 0.3039084203 | $1,208,243 | $1,208,243 | $367.20 | | |
| PORTWHID | Port of S Whidbey GEN | 0.1086004714 | $1,208,243 | $1,208,243 | $131.22 | | |
| SCH206BOND | School 206 BOND | 0.5960237832 | $1,208,243 | $1,208,243 | $720.14 | | |
| SCH206CAP | School 206 CP | 0.3066144020 | $1,208,243 | $1,208,243 | $370.46 | | |
| SCH206MO | School 206 Enrichment | 0.4808755445 | $1,208,243 | $1,208,243 | $581.01 | | |
| ST | State School | 1.4761226122 | $1,208,243 | $1,208,243 | $1,783.51 | | |
| ST2 | State School Part 2 | 0.7953803475 | $1,208,243 | $1,208,243 | $961.01 | | |
| SWHIDPRBD | P & R S Whidbey BOND | 0.0144185398 | $1,208,243 | $1,208,243 | $17.42 | | |
| SWHIDPRBD3 | P & R S Whidbey BOND3 | 0.1483535547 | $1,208,243 | $1,208,243 | $179.25 | | |
| SWHIDPRMT | P & R S Whidbey GEN | 0.4600000000 | $1,208,243 | $1,208,243 | $555.79 | | |
| | Total Tax Rate: | 7.8330503944 | | | | | |
| | | | | Taxes w/Current Exemptions: | $9,464.22 | | |
| | | | | Taxes w/o Exemptions: | $9,464.22 | | |
Improvement / Building
| Improvement #1: | RESIDENTIAL | State Code: | Y | 2460.0 sqft | Value: | $357,743 |
| Bathrooms: | 2.5 | Bedrooms: | 3 | | Ceiling: | DRYWALL PAINTED | Cooling: | HEAT PUMP/CONV/V | | Exterior Wall/Cover: | PLY/HARDBOARD T-111 | Floor Covering: | HARDWOOD/CARP 60-40 | | Floor Structure: | SLAB ON GRADE | Foundation: | CONCRETE | | Interior Finish: | DRYWALL PAINT | Plumbing Fixture Cnt: | 14 | | Roof Slope: | 6" IN 12" | Roof Structure/Cover: | CJ ASPHALT |
|
| | Type | Description | Class CD | Sub Class CD | Year Built | Area |
| | BAS | BASE/MAIN FLOOR | 3 | 0 | 2011 | 1400.0 |
| | BIG | BUILT IN GARAGE | 3 | 0 | 2011 | 220.0 |
| | DWN | DOWNSTAIRS LIVING AREA | 3 | 0 | 2011 | 1060.0 |
| | OWP | OPEN WOOD PORCH W/STEPS | 3 | 0 | 2011 | 340.0 |
| | AGR | ATTACHED GARAGE | 3 | 0 | 2011 | 120.0 |
Sketch
Property Image
Land
| 1 | LB | LOW BANK | 0.0000 | 0.00 | 50.00 | 0.00 | 1.00 | $850,000 | $0 |
| 2 | 55 | TIDES | 0.0000 | 0.00 | 50.00 | 0.00 | 1.00 | $500 | $0 |
Roll Value History
| 2026 | N/A | N/A | N/A | N/A | N/A |
| 2025 | $357,743 | $850,500 | $0 | $1,208,243 | $1,208,243 |
| 2024 | $361,890 | $800,500 | $0 | $1,162,390 | $1,162,390 |
| 2023 | $346,605 | $800,500 | $0 | $1,147,105 | $1,147,105 |
| 2022 | $317,411 | $750,500 | $0 | $1,067,911 | $1,067,911 |
| 2021 | $278,329 | $675,500 | $0 | $953,829 | $953,829 |
| 2020 | $272,000 | $600,500 | $0 | $872,500 | $872,500 |
| 2019 | $207,065 | $550,500 | $0 | $757,565 | $757,565 |
| 2018 | $207,626 | $450,500 | $0 | $658,126 | $658,126 |
| 2017 | $208,749 | $400,500 | $0 | $609,249 | $609,249 |
| 2016 | $210,994 | $400,500 | $0 | $611,494 | $611,494 |
| 2015 | $213,237 | $400,500 | $0 | $613,737 | $613,737 |
| 2014 | $174,393 | $400,500 | $0 | $574,893 | $574,893 |
| 2013 | $176,210 | $400,500 | $0 | $576,710 | $576,710 |
| 2012 | $178,027 | $440,110 | $0 | $618,137 | $618,137 |
| 2011 | $85,840 | $517,688 | $0 | $603,528 | $603,528 |
| 2010 | $71,363 | $517,688 | $0 | $589,051 | $589,051 |
| 2009 | $74,846 | $644,997 | $0 | $719,843 | $719,843 |
| 2008 | $76,679 | $644,997 | $0 | $721,676 | $721,676 |
| 2007 | $78,298 | $644,647 | $0 | $722,945 | $722,945 |
Deed and Sales History
| 1 | 07/16/2021 | QCD | Quit Claim Deed | AKADA, RANDY TOSHIO | AKADA, RANDOLPH TOSHIO | | | $0.00 | 51606 | 4537534 |
| 2 | 07/24/2017 | WD | Warranty Deed | AKADA, RANDOLPH | AKADA, RANDY TOSHIO | | | $0.00 | 30414 | 4427231 |
| 3 | 05/25/2011 | QCD | Quit Claim Deed | AKADA TRUSTEE, RANDOLPH T | AKADA, RANDOLPH | | | $0.00 | 4520 | 4295739 |
| 4 | 10/21/2010 | QCD | Quit Claim Deed | AKADA, MARY S | AKADA TRUSTEE, RANDOLPH T | | | $0.00 | 2724 | 4283859 |
Payout Agreement
| No payout information available.. |