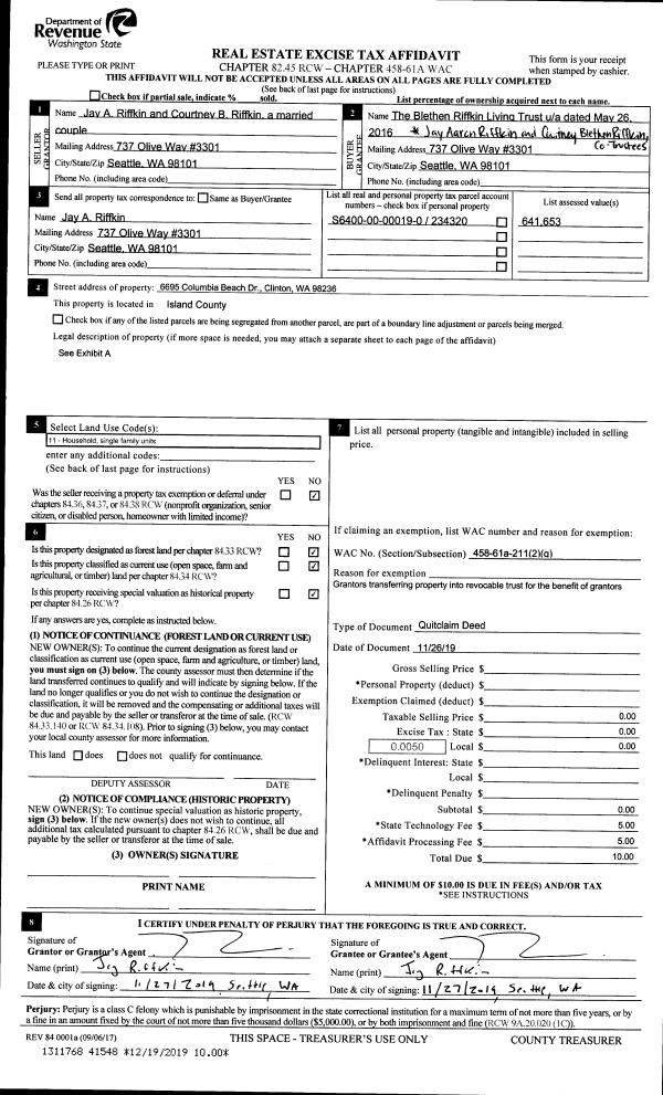
Property
Account |
| Property ID: | 234320 | Abbreviated Legal Description: | COLUMBIA BCH LOT 19 EX S5' INCL ADJ TIDES |
| Geographic ID: | S6400-00-00019-0 | Agent Code: | |
| Type: | Real | | |
| Tax Area: | 720 - APPRAISER-S Whid Schl Dist, Special District, improved & less than 1 acre | Land Use Code | 11 |
| Open Space: | N | DFL | N |
| Historic Property: | N | Remodel Property: | N |
| Multi-Family Redevelopment: | N | | |
| Township: | | Section: | |
| Range: | |
Location |
| Address: | 6695 COLUMBIA BEACH DR CLINTON, WA 98236 | Mapsco: | |
| Neighborhood: | Cycle 4 | Map ID: | 1001 |
| Neighborhood CD: | 4 |
Owner |
| Name: | RIFFKIN TTEE, JAY AARON | Owner ID: | 292965 |
| Mailing Address: | COURTNEY BLETHEN RIFFKIN, TTEE 737 OLIVE WAY #3301 SEATTLE, WA 98101 | % Ownership: | 100.0000000000% |
| | | Exemptions: | |
Taxes and Assessment Details
Values
| (+) Improvement Homesite Value: | + | $0 | |
| (+) Improvement Non-Homesite Value: | + | $198,509 | |
| (+) Land Homesite Value: | + | $0 | |
| (+) Land Non-Homesite Value: | + | $850,450 | |
| (+) Curr Use (HS): | + | $0 | $0 |
| (+) Curr Use (NHS): | + | $0 | $0 |
| | | -------------------------- | |
| (=) Market Value: | = | $1,048,959 | |
| (–) Productivity Loss: | – | $0 | |
| | | -------------------------- | |
| (=) Subtotal: | = | $1,048,959 | |
| (+) Senior Appraised Value: | + | $0 | |
| (+) Non-Senior Appraised Value: | + | $1,048,959 | |
| | | -------------------------- | |
| (=) Total Appraised Value: | = | $1,048,959 | |
| (–) Senior Exemption Loss: | – | $0 | |
| (–) Exemption Loss: | – | $0 | |
| | | -------------------------- | |
| (=) Taxable Value: | = | $1,048,959 | |
Taxing Jurisdiction
| Owner: | RIFFKIN TTEE, JAY AARON | | |
| % Ownership: | 100.0000000000% | | |
| Total Value: | $1,048,959 | | |
| Tax Area: | 720 - APPRAISER-S Whid Schl Dist, Special District, improved & less than 1 acre |
| CF | Conservation Futures | 0.0313996660 | $1,048,959 | $1,048,959 | $32.94 | | |
| FIRE3 | Fire & Rescue Dist #3 S Whidbey GEN | 1.2130821753 | $1,048,959 | $1,048,959 | $1,272.47 | | |
| HOBOND | Hospital BOND | 0.1893405597 | $1,048,959 | $1,048,959 | $198.61 | | |
| HOGEN | Hospital GEN | 0.3848777722 | $1,048,959 | $1,048,959 | $403.72 | | |
| CE | County Current Expense | 0.3674210519 | $1,048,959 | $1,048,959 | $385.41 | | |
| CR | County Roads | 0.4614296361 | $1,048,959 | $1,048,959 | $484.02 | | |
| ISLANDEMS | Hospital GEN (EMS) | 0.4952018576 | $1,048,959 | $1,048,959 | $519.45 | | |
| LIB | Library Sno-Isle GEN | 0.3039084203 | $1,048,959 | $1,048,959 | $318.79 | | |
| PORTWHID | Port of S Whidbey GEN | 0.1086004714 | $1,048,959 | $1,048,959 | $113.92 | | |
| SCH206BOND | School 206 BOND | 0.5960237832 | $1,048,959 | $1,048,959 | $625.20 | | |
| SCH206CAP | School 206 CP | 0.3066144020 | $1,048,959 | $1,048,959 | $321.63 | | |
| SCH206MO | School 206 Enrichment | 0.4808755445 | $1,048,959 | $1,048,959 | $504.42 | | |
| ST | State School | 1.4761226122 | $1,048,959 | $1,048,959 | $1,548.39 | | |
| ST2 | State School Part 2 | 0.7953803475 | $1,048,959 | $1,048,959 | $834.32 | | |
| SWHIDPRBD | P & R S Whidbey BOND | 0.0144185398 | $1,048,959 | $1,048,959 | $15.12 | | |
| SWHIDPRBD3 | P & R S Whidbey BOND3 | 0.1483535547 | $1,048,959 | $1,048,959 | $155.62 | | |
| SWHIDPRMT | P & R S Whidbey GEN | 0.4600000000 | $1,048,959 | $1,048,959 | $482.52 | | |
| | Total Tax Rate: | 7.8330503944 | | | | | |
| | | | | Taxes w/Current Exemptions: | $8,216.55 | | |
| | | | | Taxes w/o Exemptions: | $8,216.55 | | |
Improvement / Building
| Improvement #1: | RESIDENTIAL | State Code: | Y | 912.0 sqft | Value: | $198,509 |
| Bathrooms: | 1 | Bedrooms: | 2 | | Ceiling: | DRYWALL PAINTED | Cooling: | HEAT PUMP/CONV/V | | Exterior Wall/Cover: | PLY/HARDBOARD T-111 | Floor Covering: | VINYL 100% | | Floor Structure: | WOOD W/SUBFLOOR | Foundation: | CONCRETE | | Interior Finish: | DRYWALL PAINT | Plumbing Fixture Cnt: | 6 | | Roof Slope: | 3" IN 12" | Roof Structure/Cover: | CJ ASPHALT |
|
| | Type | Description | Class CD | Sub Class CD | Year Built | Area |
| | BAS | BASE/MAIN FLOOR | 3 | 0 | 1946 | 912.0 |
| | OCP | OPEN CARPORT | 3 | 0 | 1946 | 480.0 |
Sketch
Property Image
Land
| 1 | LB | LOW BANK | 0.1100 | 4791.60 | 45.00 | 0.00 | 1.00 | $850,000 | $0 |
| 2 | 55 | TIDES | 0.0000 | 0.00 | 45.00 | 0.00 | 1.00 | $450 | $0 |
Roll Value History
| 2026 | N/A | N/A | N/A | N/A | N/A |
| 2025 | $198,509 | $850,450 | $0 | $1,048,959 | $1,048,959 |
| 2024 | $200,837 | $800,450 | $0 | $1,001,287 | $1,001,287 |
| 2023 | $203,166 | $800,450 | $0 | $1,003,616 | $1,003,616 |
| 2022 | $186,076 | $750,450 | $0 | $936,526 | $936,526 |
| 2021 | $157,582 | $675,450 | $0 | $833,032 | $833,032 |
| 2020 | $152,846 | $600,450 | $0 | $753,296 | $753,296 |
| 2019 | $91,203 | $550,450 | $0 | $641,653 | $641,653 |
| 2018 | $91,453 | $450,450 | $0 | $541,903 | $541,903 |
| 2017 | $85,844 | $400,450 | $0 | $486,294 | $486,294 |
| 2016 | $86,773 | $400,450 | $0 | $487,223 | $487,223 |
| 2015 | $28,233 | $400,450 | $0 | $428,683 | $428,683 |
| 2014 | $34,458 | $400,400 | $0 | $434,858 | $434,858 |
| 2013 | $35,289 | $400,400 | $0 | $435,689 | $435,689 |
| 2012 | $36,119 | $365,746 | $0 | $401,865 | $401,865 |
| 2011 | $36,949 | $430,219 | $0 | $467,168 | $467,168 |
| 2010 | $47,217 | $430,219 | $0 | $477,436 | $477,436 |
| 2009 | $49,317 | $536,021 | $0 | $585,338 | $585,338 |
| 2008 | $50,201 | $536,021 | $0 | $586,222 | $586,222 |
| 2007 | $51,084 | $535,741 | $0 | $586,825 | $586,825 |
Deed and Sales History
| 1 | 11/26/2019 | QCD | Quit Claim Deed | RIFFKIN, JAY A | RIFFKIN TTEE, JAY AARON | | | $0.00 | 41548 | 4477899 |
| 2 | 07/25/2019 | WD | Warranty Deed | SIMONE, DAVID L | RIFFKIN, JAY A | | | $746,000.00 | 39632 | 4468303 |
| 3 | 10/13/2014 | WD | Warranty Deed | ZEBROSKI, THOMAS E | SIMONE, DAVID L | | | $327,500.00 | 17192 | 4367045 |
| 4 | 12/21/2010 | QCD | Quit Claim Deed | ZEBROSKI, THOMAS M | ZEBROSKI, THOMAS E | | | $0.00 | 3203 | 4287262 |
| 5 | 01/16/2001 | QCD | Quit Claim Deed | ZEBROSKI, THOMAS M | ZEBROSKI, THOMAS M | | | $0.00 | 11602 | 20031716 |
| 6 | 05/28/1998 | WD | Warranty Deed | DICK, ROLAND S | ZEBROSKI, THOMAS M | | | $200,000.00 | 82062 | 98010848 |
| 7 | 03/01/1994 | WD | Warranty Deed | DICK, ROLAND S | DICK, ROLAND S | | | $0.00 | 41304 | 94011205 |
| 8 | 01/01/1900 | OTHER | Other - Misc. Documents | Unknown | ZEBROSKI, THOMAS E | | | $0.00 | 82062 | 98010848 |
| 9 | 01/01/1900 | OTHER | Other - Misc. Documents | ZEBROSKI, THOMAS E | DICK, ROLAND S | | | $0.00 | 0 | 0 |
Payout Agreement
| No payout information available.. |