Property
Account |
| Property ID: | 235025 | Abbreviated Legal Description: | COLUMBIA VISTA LOTS 35, 36 & W40'OF LOT 34 COMBD 8/10/84 |
| Geographic ID: | S6405-00-00035-0 | Agent Code: | |
| Type: | Real | | |
| Tax Area: | 720 - APPRAISER-S Whid Schl Dist, Special District, improved & less than 1 acre | Land Use Code | 11 |
| Open Space: | N | DFL | N |
| Historic Property: | N | Remodel Property: | N |
| Multi-Family Redevelopment: | N | | |
| Township: | | Section: | |
| Range: | |
Location |
| Address: | 4810 MARTIN DR CLINTON, WA 98236 | Mapsco: | |
| Neighborhood: | Cycle 4 | Map ID: | 1003 |
| Neighborhood CD: | 4 |
Owner |
| Name: | ASHE, NICHOLAS J | Owner ID: | 312124 |
| Mailing Address: | ELIZABETH M ASHE 966 N DEER PARK LN OAK HARBOR, WA 98277 | % Ownership: | 100.0000000000% |
| | | Exemptions: | |
Taxes and Assessment Details
Values
| (+) Improvement Homesite Value: | + | $0 | |
| (+) Improvement Non-Homesite Value: | + | $364,084 | |
| (+) Land Homesite Value: | + | $0 | |
| (+) Land Non-Homesite Value: | + | $340,000 | |
| (+) Curr Use (HS): | + | $0 | $0 |
| (+) Curr Use (NHS): | + | $0 | $0 |
| | | -------------------------- | |
| (=) Market Value: | = | $704,084 | |
| (–) Productivity Loss: | – | $0 | |
| | | -------------------------- | |
| (=) Subtotal: | = | $704,084 | |
| (+) Senior Appraised Value: | + | $0 | |
| (+) Non-Senior Appraised Value: | + | $704,084 | |
| | | -------------------------- | |
| (=) Total Appraised Value: | = | $704,084 | |
| (–) Senior Exemption Loss: | – | $0 | |
| (–) Exemption Loss: | – | $0 | |
| | | -------------------------- | |
| (=) Taxable Value: | = | $704,084 | |
Taxing Jurisdiction
| Owner: | ASHE, NICHOLAS J | | |
| % Ownership: | 100.0000000000% | | |
| Total Value: | $704,084 | | |
| Tax Area: | 720 - APPRAISER-S Whid Schl Dist, Special District, improved & less than 1 acre |
| CF | Conservation Futures | 0.0313996660 | $704,084 | $704,084 | $22.11 | | |
| FIRE3 | Fire & Rescue Dist #3 S Whidbey GEN | 1.2130821753 | $704,084 | $704,084 | $854.11 | | |
| HOBOND | Hospital BOND | 0.1893405597 | $704,084 | $704,084 | $133.31 | | |
| HOGEN | Hospital GEN | 0.3848777722 | $704,084 | $704,084 | $270.99 | | |
| CE | County Current Expense | 0.3674210519 | $704,084 | $704,084 | $258.70 | | |
| CR | County Roads | 0.4614296361 | $704,084 | $704,084 | $324.89 | | |
| ISLANDEMS | Hospital GEN (EMS) | 0.4952018576 | $704,084 | $704,084 | $348.66 | | |
| LIB | Library Sno-Isle GEN | 0.3039084203 | $704,084 | $704,084 | $213.98 | | |
| PORTWHID | Port of S Whidbey GEN | 0.1086004714 | $704,084 | $704,084 | $76.46 | | |
| SCH206BOND | School 206 BOND | 0.5960237832 | $704,084 | $704,084 | $419.65 | | |
| SCH206CAP | School 206 CP | 0.3066144020 | $704,084 | $704,084 | $215.88 | | |
| SCH206MO | School 206 Enrichment | 0.4808755445 | $704,084 | $704,084 | $338.58 | | |
| ST | State School | 1.4761226122 | $704,084 | $704,084 | $1,039.31 | | |
| ST2 | State School Part 2 | 0.7953803475 | $704,084 | $704,084 | $560.01 | | |
| SWHIDPRBD | P & R S Whidbey BOND | 0.0144185398 | $704,084 | $704,084 | $10.15 | | |
| SWHIDPRBD3 | P & R S Whidbey BOND3 | 0.1483535547 | $704,084 | $704,084 | $104.45 | | |
| SWHIDPRMT | P & R S Whidbey GEN | 0.4600000000 | $704,084 | $704,084 | $323.88 | | |
| | Total Tax Rate: | 7.8330503944 | | | | | |
| | | | | Taxes w/Current Exemptions: | $5,515.12 | | |
| | | | | Taxes w/o Exemptions: | $5,515.12 | | |
Improvement / Building
| Improvement #1: | RESIDENTIAL | State Code: | Y | 1898.0 sqft | Value: | $364,084 |
| Bathrooms: | 2.5 | Bedrooms: | 3 | | Ceiling: | DRYWALL PAINTED | Cooling: | HEAT PUMP/CONV/V | | Exterior Wall/Cover: | PLY/HARDBOARD T-111 | Floor Covering: | LAMINATE/LVP | | Floor Structure: | WOOD W/SUBFLOOR | Foundation: | CONCRETE | | Interior Finish: | DRYWALL PAINT | Plumbing Fixture Cnt: | 12 | | Roof Slope: | 12" IN 12" | Roof Structure/Cover: | BEAM ASPHALT |
|
| | Type | Description | Class CD | Sub Class CD | Year Built | Area |
| | BAS | BASE/MAIN FLOOR | 3 | 0 | 1985 | 988.0 |
| | AGR | ATTACHED GARAGE | 3 | 0 | 1985 | 528.0 |
| | UPS | UPPER STORY | 3 | 0 | 1985 | 910.0 |
| | OWP | OPEN WOOD PORCH W/STEPS | 3 | 0 | 1985 | 296.0 |
| | OWP | OPEN WOOD PORCH W/STEPS | 3 | 0 | 1985 | 167.0 |
| | DGR | DETACHED GARAGE | 3 | 0 | 1985 | 200.0 |
| | UTY | STORAGE/UTILITY | 3 | 0 | 1985 | 400.0 |
Sketch
| No sketches available for this property. |
Property Image
Land
| 1 | 14 | SQ (08001-12000) | 0.0000 | 0.00 | 0.00 | 0.00 | 1.00 | $340,000 | $0 |
Roll Value History
| 2026 | N/A | N/A | N/A | N/A | N/A |
| 2025 | $364,084 | $340,000 | $0 | $704,084 | $704,084 |
| 2024 | $338,948 | $300,000 | $0 | $638,948 | $638,948 |
| 2023 | $331,305 | $300,000 | $0 | $631,305 | $631,305 |
| 2022 | $304,311 | $280,000 | $0 | $584,311 | $584,311 |
| 2021 | $268,584 | $230,000 | $0 | $498,584 | $498,584 |
| 2020 | $248,654 | $180,000 | $0 | $428,654 | $428,654 |
| 2019 | $188,228 | $240,000 | $0 | $428,228 | $428,228 |
| 2018 | $188,819 | $200,000 | $0 | $388,819 | $388,819 |
| 2017 | $190,003 | $200,000 | $0 | $390,003 | $390,003 |
| 2016 | $192,371 | $100,000 | $0 | $292,371 | $292,371 |
| 2015 | $194,738 | $100,000 | $0 | $294,738 | $294,738 |
| 2014 | $180,236 | $125,000 | $0 | $305,236 | $98,027 |
| 2013 | $182,512 | $125,000 | $0 | $307,512 | $98,027 |
| 2012 | $184,789 | $148,750 | $0 | $333,539 | $98,027 |
| 2011 | $187,066 | $175,000 | $0 | $362,066 | $98,027 |
| 2010 | $195,407 | $175,000 | $0 | $370,407 | $98,027 |
| 2009 | $203,825 | $200,000 | $0 | $403,825 | $98,027 |
| 2008 | $206,100 | $200,000 | $0 | $406,100 | $98,027 |
| 2007 | $208,882 | $200,000 | $0 | $408,882 | $98,027 |
Deed and Sales History
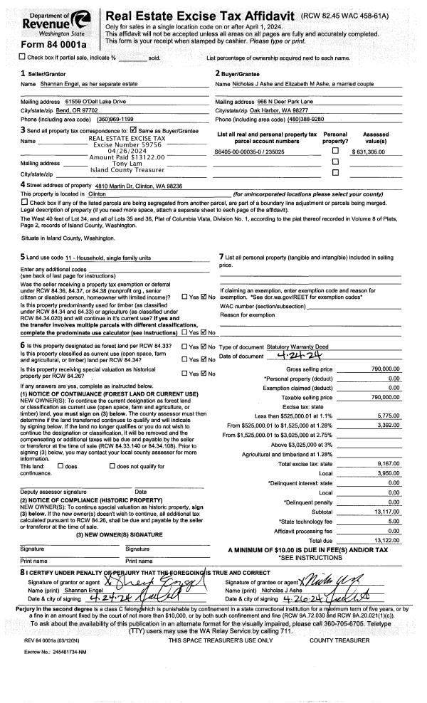
| 1 | 04/24/2024 | WD | Warranty Deed | ENGEL, SHANNAN | ASHE, NICHOLAS J | | | $790,000.00 | 59756 | 4571643 |
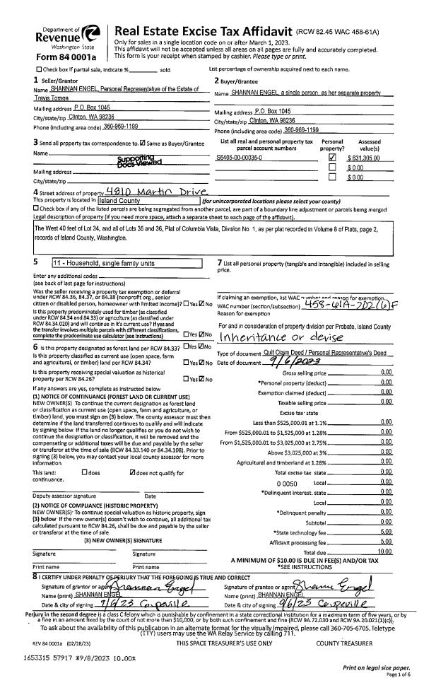
| 2 | 09/06/2023 | PRD | Personal Representatives Deed | TORNGA, TRAVIS | ENGEL, SHANNAN | | | $0.00 | 57917 | 4564454 |
| 3 | 06/01/2018 | WD | Warranty Deed | GARNER, ROLON | ENGEL, SHANNAN | | | $411,500.00 | 34487 | 4446000 |
| 4 | 02/11/2004 | QCD | Quit Claim Deed | GARNER, ROLON BERT | GARNER, ROLON | | | $0.00 | 40517 | 4091000 |
| 5 | 04/17/2000 | WD | Warranty Deed | GE CAPITAL MORT. SERVICES, | GARNER, ROLON BERT | | | $245,000.00 | 1391 | 20006866 |
| 6 | 11/19/1999 | TRUSTEED | Trustee's Deed | SHERMAN, ROBERT L | GE CAPITAL MORT. SERVICES, | | | $0.00 | 94832 | 99027163 |
| 7 | 04/01/1996 | WD | Warranty Deed | KITTLESON, ALBERT L | SHERMAN, ROBERT L | | | $240,000.00 | 61368 | 96006930 |
| 8 | 08/01/1984 | OTHER | Other - Misc. Documents | LIEN, PAUL J | KITTLESON, ALBERT L | | | $0.00 | 60750 | 84001404 |
| 9 | 08/01/1984 | WD | Warranty Deed | KITTLESON, ALBERT L | LIEN, PAUL J | | | $22,000.00 | 42386 | 84001929 |
| 10 | 04/01/1984 | REC | Real Estate Contract | STEINER, HARRIS H | KITTLESON, ALBERT L | | | $2,466.00 | 40994 | 423281 |
| 11 | 01/01/1900 | OTHER | Other - Misc. Documents | Unknown | STEINER, HARRIS H | | | $0.00 | 0 | 0 |
Payout Agreement
| No payout information available.. |