Property
Account |
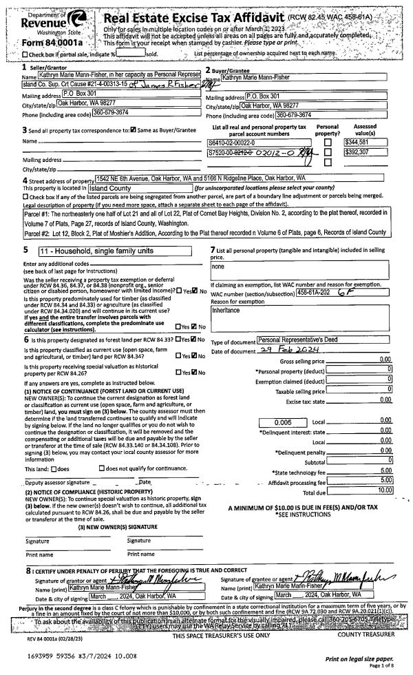
| Property ID: | 235338 | Abbreviated Legal Description: | CORNET BAY HTS 2 LOT 22 & NELY 1/2 LOT 21 |
| Geographic ID: | S6410-02-00022-0 | Agent Code: | |
| Type: | Real | | |
| Tax Area: | 110 - APPRAISER-OH Schl Dist, outside OH, improved & 1 acre or less | Land Use Code | 11 |
| Open Space: | N | DFL | N |
| Historic Property: | N | Remodel Property: | N |
| Multi-Family Redevelopment: | N | | |
| Township: | | Section: | |
| Range: | |
Location |
| Address: | 5166 RIDGELINE PLACE OAK HARBOR, WA 98277 | Mapsco: | |
| Neighborhood: | Cycle 6 | Map ID: | 280 |
| Neighborhood CD: | 6 |
Owner |
| Name: | MANN-FISHER, KATHRYN MARIE | Owner ID: | 311608 |
| Mailing Address: | PO BOX 301 OAK HARBOR, WA 98277 | % Ownership: | 100.0000000000% |
| | | Exemptions: | |
Taxes and Assessment Details
Values
| (+) Improvement Homesite Value: | + | $0 | |
| (+) Improvement Non-Homesite Value: | + | $164,489 | |
| (+) Land Homesite Value: | + | $0 | |
| (+) Land Non-Homesite Value: | + | $200,000 | |
| (+) Curr Use (HS): | + | $0 | $0 |
| (+) Curr Use (NHS): | + | $0 | $0 |
| | | -------------------------- | |
| (=) Market Value: | = | $364,489 | |
| (–) Productivity Loss: | – | $0 | |
| | | -------------------------- | |
| (=) Subtotal: | = | $364,489 | |
| (+) Senior Appraised Value: | + | $0 | |
| (+) Non-Senior Appraised Value: | + | $364,489 | |
| | | -------------------------- | |
| (=) Total Appraised Value: | = | $364,489 | |
| (–) Senior Exemption Loss: | – | $0 | |
| (–) Exemption Loss: | – | $0 | |
| | | -------------------------- | |
| (=) Taxable Value: | = | $364,489 | |
Taxing Jurisdiction
| Owner: | MANN-FISHER, KATHRYN MARIE | | |
| % Ownership: | 100.0000000000% | | |
| Total Value: | $364,489 | | |
| Tax Area: | 110 - APPRAISER-OH Schl Dist, outside OH, improved & 1 acre or less |
| CF | Conservation Futures | 0.0313996660 | $364,489 | $364,489 | $11.44 | | |
| CEM1 | Cemetery #1 | 0.0040018856 | $364,489 | $364,489 | $1.46 | | |
| FIRE2 | Fire & Rescue Dist #2 N Whidbey GEN | 0.5381486274 | $364,489 | $364,489 | $196.15 | | |
| HOBOND | Hospital BOND | 0.1893405597 | $364,489 | $364,489 | $69.01 | | |
| HOGEN | Hospital GEN | 0.3848777722 | $364,489 | $364,489 | $140.28 | | |
| CE | County Current Expense | 0.3674210519 | $364,489 | $364,489 | $133.92 | | |
| CR | County Roads | 0.4614296361 | $364,489 | $364,489 | $168.19 | | |
| ISLANDEMS | Hospital GEN (EMS) | 0.4952018576 | $364,489 | $364,489 | $180.50 | | |
| LIB | Library Sno-Isle GEN | 0.3039084203 | $364,489 | $364,489 | $110.77 | | |
| NWHIDPRMT | P & R N Whidbey GEN | 0.1990272349 | $364,489 | $364,489 | $72.54 | | |
| SCH201MO | School 201 Enrichment | 2.3851112745 | $364,489 | $364,489 | $869.35 | | |
| ST | State School | 1.4761226122 | $364,489 | $364,489 | $538.03 | | |
| ST2 | State School Part 2 | 0.7953803475 | $364,489 | $364,489 | $289.91 | | |
| | Total Tax Rate: | 7.6313709459 | | | | | |
| | | | | Taxes w/Current Exemptions: | $2,781.55 | | |
| | | | | Taxes w/o Exemptions: | $2,781.55 | | |
Improvement / Building
| Improvement #1: | RESIDENTIAL | State Code: | Y | 1627.0 sqft | Value: | $164,489 |
| Bathrooms: | 2 | Bedrooms: | 0 | | Ceiling: | DRYWALL PAINTED | Exterior Wall/Cover: | WOOD SIDING | | Floor Covering: | CARPET/VINYL 60-40 | Floor Structure: | WOOD W/SUBFLOOR | | Foundation: | CONCRETE | Heating: | BASEBOARD ELECTRIC | | Interior Finish: | DRYWALL PAINT | Plumbing Fixture Cnt: | 9 | | Roof Slope: | 3" IN 12" | Roof Structure/Cover: | CJ BUILT-UP ROCK |
|
| | Type | Description | Class CD | Sub Class CD | Year Built | Area |
| | BAS | BASE/MAIN FLOOR | 3 | 0 | 1963 | 1627.0 |
| | AGR | ATTACHED GARAGE | 3 | 0 | 1963 | 648.0 |
| | OWR | OPEN WOOD PORCH W/STEPS/ROOF | 3 | 0 | 1963 | 81.0 |
Sketch
Property Image
Land
| 1 | 15 | SQ (12001-21780) | 0.0000 | 0.00 | 0.00 | 0.00 | 1.00 | $200,000 | $0 |
Roll Value History
| 2026 | N/A | N/A | N/A | N/A | N/A |
| 2025 | $164,489 | $200,000 | $0 | $364,489 | $364,489 |
| 2024 | $171,302 | $170,000 | $0 | $341,302 | $341,302 |
| 2023 | $174,581 | $170,000 | $0 | $344,581 | $344,581 |
| 2022 | $161,051 | $100,000 | $0 | $261,051 | $261,051 |
| 2021 | $142,621 | $75,000 | $0 | $217,621 | $217,621 |
| 2020 | $139,871 | $75,000 | $0 | $214,871 | $214,871 |
| 2019 | $101,988 | $110,000 | $0 | $211,988 | $211,988 |
| 2018 | $102,433 | $110,000 | $0 | $212,433 | $212,433 |
| 2017 | $103,324 | $110,000 | $0 | $213,324 | $213,324 |
| 2016 | $98,706 | $85,000 | $0 | $183,706 | $183,706 |
| 2015 | $100,720 | $65,000 | $0 | $165,720 | $165,720 |
| 2014 | $102,733 | $55,000 | $0 | $157,733 | $157,733 |
| 2013 | $104,746 | $63,750 | $0 | $168,496 | $168,496 |
| 2012 | $106,763 | $63,750 | $0 | $170,513 | $170,513 |
| 2011 | $108,777 | $75,000 | $0 | $183,777 | $183,777 |
| 2010 | $123,073 | $75,000 | $0 | $198,073 | $198,073 |
| 2009 | $128,752 | $90,000 | $0 | $218,752 | $218,752 |
| 2008 | $130,779 | $87,980 | $0 | $218,759 | $218,759 |
| 2007 | $132,807 | $87,980 | $0 | $220,787 | $220,787 |
Deed and Sales History
| 1 | 02/29/2024 | PRD | Personal Representatives Deed | FISHER, JAMES R | MANN-FISHER, KATHRYN MARIE | | | $0.00 | 59356 | 4570038 |
| 2 | 06/17/2013 | PRD | Personal Representatives Deed | MANN, VERLEE BERTHA | FISHER, JAMES R | | | $0.00 | 12121 | 4344784 |
| 3 | 11/07/2011 | CPADC | Comm Prop Agmnt & Death Cert | MANN, ROBERT D | MANN, VERLEE BERTHA | | | | 82203 | |
Payout Agreement
| No payout information available.. |