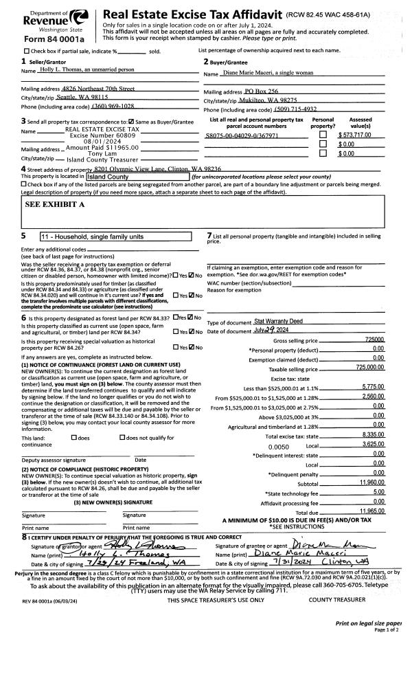
Property
Account |
| Property ID: | 236738 | Abbreviated Legal Description: | COUPEVILLE S/2 LOTS 5 & 6 BLK 24 |
| Geographic ID: | S6415-00-24005-2 | Agent Code: | |
| Type: | Real | | |
| Tax Area: | 300 - APPRAISER-Cpvl Schl Dist, in Cpvl | Land Use Code | 11 |
| Open Space: | N | DFL | N |
| Historic Property: | N | Remodel Property: | N |
| Multi-Family Redevelopment: | N | | |
| Township: | | Section: | |
| Range: | |
Location |
| Address: | 306 NE 6TH ST COUPEVILLE, WA 98239 | Mapsco: | |
| Neighborhood: | Cycle 2 | Map ID: | 175 |
| Neighborhood CD: | 2 |
Owner |
| Name: | CROWLEY, SHAWN R | Owner ID: | 177466 |
| Mailing Address: | KAREN E PETERSEN 8503 19TH AVE NW SEATTLE, WA 98117-3519 | % Ownership: | 100.0000000000% |
| | | Exemptions: | |
Taxes and Assessment Details
Values
| (+) Improvement Homesite Value: | + | $0 | |
| (+) Improvement Non-Homesite Value: | + | $119,219 | |
| (+) Land Homesite Value: | + | $0 | |
| (+) Land Non-Homesite Value: | + | $260,000 | |
| (+) Curr Use (HS): | + | $0 | $0 |
| (+) Curr Use (NHS): | + | $0 | $0 |
| | | -------------------------- | |
| (=) Market Value: | = | $379,219 | |
| (–) Productivity Loss: | – | $0 | |
| | | -------------------------- | |
| (=) Subtotal: | = | $379,219 | |
| (+) Senior Appraised Value: | + | $0 | |
| (+) Non-Senior Appraised Value: | + | $379,219 | |
| | | -------------------------- | |
| (=) Total Appraised Value: | = | $379,219 | |
| (–) Senior Exemption Loss: | – | $0 | |
| (–) Exemption Loss: | – | $0 | |
| | | -------------------------- | |
| (=) Taxable Value: | = | $379,219 | |
Taxing Jurisdiction
| Owner: | CROWLEY, SHAWN R | | |
| % Ownership: | 100.0000000000% | | |
| Total Value: | $379,219 | | |
| Tax Area: | 300 - APPRAISER-Cpvl Schl Dist, in Cpvl |
| CF | Conservation Futures | 0.0313996660 | $379,219 | $379,219 | $11.91 | | |
| CEM2 | Cemetery #2 | 0.0092609791 | $379,219 | $379,219 | $3.51 | | |
| COUP | City: Town of Coupeville | 0.8188663519 | $379,219 | $379,219 | $310.53 | | |
| FIRE5 | Fire & Rescue Dist #5 C Whidbey GEN | 1.1892169230 | $379,219 | $379,219 | $450.97 | | |
| FIRE5BOND | Fire & Rescue Dist #5 C Whidbey BOND | 0.1394359503 | $379,219 | $379,219 | $52.88 | | |
| HOBOND | Hospital BOND | 0.1893405597 | $379,219 | $379,219 | $71.80 | | |
| HOGEN | Hospital GEN | 0.3848777722 | $379,219 | $379,219 | $145.95 | | |
| CE | County Current Expense | 0.3674210519 | $379,219 | $379,219 | $139.33 | | |
| ISLANDEMS | Hospital GEN (EMS) | 0.4952018576 | $379,219 | $379,219 | $187.79 | | |
| LIB | Library Sno-Isle GEN | 0.3039084203 | $379,219 | $379,219 | $115.25 | | |
| LIBCAP | Library Sno-Isle BOND (Cap Fac Imp Area) | 0.0528562629 | $379,219 | $379,219 | $20.04 | | |
| POCOUP | Port of Coupeville GEN | 0.1065226063 | $379,219 | $379,219 | $40.40 | | |
| POCOUPIDD | Port of Coupeville IDD | 0.3353038577 | $379,219 | $379,219 | $127.15 | | |
| COUPSDTECH | School 204 CP (TECH) | 0.1215123397 | $379,219 | $379,219 | $46.08 | | |
| SCH204MO | School 204 Enrichment | 0.6416662518 | $379,219 | $379,219 | $243.33 | | |
| ST | State School | 1.4761226122 | $379,219 | $379,219 | $559.77 | | |
| ST2 | State School Part 2 | 0.7953803475 | $379,219 | $379,219 | $301.62 | | |
| | Total Tax Rate: | 7.4582938101 | | | | | |
| | | | | Taxes w/Current Exemptions: | $2,828.31 | | |
| | | | | Taxes w/o Exemptions: | $2,828.31 | | |
Improvement / Building
| Improvement #1: | RESIDENTIAL | State Code: | Y | 680.0 sqft | Value: | $119,219 |
| Bathrooms: | 1 | Bedrooms: | 1 | | Ceiling: | DRYWALL PAINTED | Exterior Wall/Cover: | CEMENT FIBER | | Floor Covering: | CARPET/VINYL 80-20 | Floor Structure: | WOOD W/SUBFLOOR | | Foundation: | CONCRETE | Heating: | WALL HEAT ELECTRIC | | Interior Finish: | DRYWALL PAINT | Plumbing Fixture Cnt: | 6 | | Roof Slope: | 5" IN 12" | Roof Structure/Cover: | CJ ASPHALT |
|
| | Type | Description | Class CD | Sub Class CD | Year Built | Area |
| | BAS | BASE/MAIN FLOOR | 3 | 0 | 1942 | 680.0 |
| | OCP | OPEN CARPORT | 3 | 0 | 1942 | 176.0 |
| | UTY | STORAGE/UTILITY | 3 | 0 | 1942 | 44.0 |
| | OWC | OPEN WOOD PORCH W/STEPS/ROOF/C | 3 | 0 | 1942 | 15.0 |
| | OWP | OPEN WOOD PORCH W/STEPS | 3 | 0 | 1942 | 89.0 |
Sketch
| No sketches available for this property. |
Property Image
Land
| 1 | HS | HOMESITE | 0.1148 | 5000.69 | 0.00 | 0.00 | 1.00 | $260,000 | $0 |
Roll Value History
| 2026 | N/A | N/A | N/A | N/A | N/A |
| 2025 | $119,219 | $260,000 | $0 | $379,219 | $379,219 |
| 2024 | $110,514 | $240,000 | $0 | $350,514 | $350,514 |
| 2023 | $112,133 | $240,000 | $0 | $352,133 | $352,133 |
| 2022 | $103,008 | $200,000 | $0 | $303,008 | $303,008 |
| 2021 | $90,848 | $150,000 | $0 | $240,848 | $240,848 |
| 2020 | $88,361 | $130,000 | $0 | $218,361 | $218,361 |
| 2019 | $61,417 | $170,000 | $0 | $231,417 | $231,417 |
| 2018 | $54,211 | $150,000 | $0 | $204,211 | $204,211 |
| 2017 | $54,613 | $125,000 | $0 | $179,613 | $179,613 |
| 2016 | $55,414 | $115,000 | $0 | $170,414 | $170,414 |
| 2015 | $56,216 | $90,000 | $0 | $146,216 | $146,216 |
| 2014 | $57,018 | $85,000 | $0 | $142,018 | $142,018 |
| 2013 | $57,821 | $85,000 | $0 | $142,821 | $142,821 |
| 2012 | $58,622 | $89,250 | $0 | $147,872 | $147,872 |
| 2011 | $59,424 | $105,000 | $0 | $164,424 | $164,424 |
| 2010 | $61,903 | $105,000 | $0 | $166,903 | $166,903 |
| 2009 | $64,624 | $120,000 | $0 | $184,624 | $184,624 |
| 2008 | $65,448 | $124,000 | $0 | $189,448 | $189,448 |
| 2007 | $66,272 | $120,000 | $0 | $186,272 | $186,272 |
Deed and Sales History
| 1 | 07/03/1998 | WD | Warranty Deed | COOK, CHARLES A | CROWLEY, SHAWN R | | | $79,900.00 | 82770 | 98014348 |
| 2 | 10/01/1993 | QCD | Quit Claim Deed | COOK, CHARLIE | COOK, CHARLES A | | | $0.00 | 34009 | 93020888 |
| 3 | 08/01/1993 | QCD | Quit Claim Deed | LEE, MARK | COOK, CHARLIE | | | $0.00 | 33096 | 93016055 |
| 4 | 03/01/1993 | QCD | Quit Claim Deed | COOK, CHARLES A | LEE, MARK | | | $0.00 | 30827 | 93004239 |
| 5 | 09/01/1991 | WD | Warranty Deed | PERALTA, JULIO C | COOK, CHARLES A | | | $35,000.00 | 13241 | 91013804 |
| 6 | 08/01/1990 | DECREE | Divorce Decree/Legal Separation | PERALTA, JULIO C | PERALTA, JULIO C | | | $0.00 | 63793 | 0 |
| 7 | 05/01/1977 | TRUSTEED | Trustee's Deed | KILLION, LUCINDA | PERALTA, JULIO C | | | $0.00 | 72026 | 0 |
| 8 | 07/01/1966 | TRUSTEED | Trustee's Deed | PHILLIPS, HELEN A | KILLION, LUCINDA | | | $0.00 | 23220 | 0 |
| 9 | 08/01/1964 | CD | DNU - Correction Deed | WARREN, MARIAN C | PHILLIPS, HELEN A | | | $0.00 | 16989 | 0 |
| 10 | 01/01/1961 | EZ | Easement | BEERS, HAROLD D | WARREN, MARIAN C | | | $0.00 | 16362 | 0 |
| 11 | 10/01/1957 | EXECUTORD | Executor Deed | WASHINGTON, LAND C | BEERS, HAROLD D | | | $0.00 | 2903 | 0 |
| 12 | 01/01/1900 | OTHER | Other - Misc. Documents | Unknown | CROWLEY, SHAWN R | | | $0.00 | 82770 | 98014348 |
| 13 | 01/01/1900 | OTHER | Other - Misc. Documents | CROWLEY, SHAWN R | WASHINGTON, LAND C | | | $0.00 | 0 | 0 |
Payout Agreement
| No payout information available.. |