Property
Account |
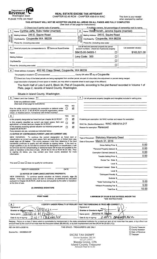
| Property ID: | 237149 | Abbreviated Legal Description: | COUPEVILLE N/2 LOTS 5 & 6 BLK 34 |
| Geographic ID: | S6415-00-34005-1 | Agent Code: | |
| Type: | Real | | |
| Tax Area: | 300 - APPRAISER-Cpvl Schl Dist, in Cpvl | Land Use Code | 11 |
| Open Space: | N | DFL | N |
| Historic Property: | N | Remodel Property: | N |
| Multi-Family Redevelopment: | N | | |
| Township: | | Section: | |
| Range: | |
Location |
| Address: | 402 NE CLAPP ST COUPEVILLE, WA 98239 | Mapsco: | |
| Neighborhood: | Cycle 2 | Map ID: | 173 |
| Neighborhood CD: | 2 |
Owner |
| Name: | SQUIRE, JEROME | Owner ID: | 274261 |
| Mailing Address: | HEIDE HORETH 245 EQ SQUIRE RD COUPEVILLE, WA 98239 | % Ownership: | 100.0000000000% |
| | | Exemptions: | |
Taxes and Assessment Details
Values
| (+) Improvement Homesite Value: | + | $0 | |
| (+) Improvement Non-Homesite Value: | + | $94,905 | |
| (+) Land Homesite Value: | + | $0 | |
| (+) Land Non-Homesite Value: | + | $260,000 | |
| (+) Curr Use (HS): | + | $0 | $0 |
| (+) Curr Use (NHS): | + | $0 | $0 |
| | | -------------------------- | |
| (=) Market Value: | = | $354,905 | |
| (–) Productivity Loss: | – | $0 | |
| | | -------------------------- | |
| (=) Subtotal: | = | $354,905 | |
| (+) Senior Appraised Value: | + | $0 | |
| (+) Non-Senior Appraised Value: | + | $354,905 | |
| | | -------------------------- | |
| (=) Total Appraised Value: | = | $354,905 | |
| (–) Senior Exemption Loss: | – | $0 | |
| (–) Exemption Loss: | – | $0 | |
| | | -------------------------- | |
| (=) Taxable Value: | = | $354,905 | |
Taxing Jurisdiction
| Owner: | SQUIRE, JEROME | | |
| % Ownership: | 100.0000000000% | | |
| Total Value: | $354,905 | | |
| Tax Area: | 300 - APPRAISER-Cpvl Schl Dist, in Cpvl |
| CF | Conservation Futures | 0.0313996660 | $354,905 | $354,905 | $11.14 | | |
| CEM2 | Cemetery #2 | 0.0092609791 | $354,905 | $354,905 | $3.29 | | |
| COUP | City: Town of Coupeville | 0.8188663519 | $354,905 | $354,905 | $290.62 | | |
| FIRE5 | Fire & Rescue Dist #5 C Whidbey GEN | 1.1892169230 | $354,905 | $354,905 | $422.06 | | |
| FIRE5BOND | Fire & Rescue Dist #5 C Whidbey BOND | 0.1394359503 | $354,905 | $354,905 | $49.49 | | |
| HOBOND | Hospital BOND | 0.1893405597 | $354,905 | $354,905 | $67.20 | | |
| HOGEN | Hospital GEN | 0.3848777722 | $354,905 | $354,905 | $136.60 | | |
| CE | County Current Expense | 0.3674210519 | $354,905 | $354,905 | $130.40 | | |
| ISLANDEMS | Hospital GEN (EMS) | 0.4952018576 | $354,905 | $354,905 | $175.75 | | |
| LIB | Library Sno-Isle GEN | 0.3039084203 | $354,905 | $354,905 | $107.86 | | |
| LIBCAP | Library Sno-Isle BOND (Cap Fac Imp Area) | 0.0528562629 | $354,905 | $354,905 | $18.76 | | |
| POCOUP | Port of Coupeville GEN | 0.1065226063 | $354,905 | $354,905 | $37.81 | | |
| POCOUPIDD | Port of Coupeville IDD | 0.3353038577 | $354,905 | $354,905 | $119.00 | | |
| COUPSDTECH | School 204 CP (TECH) | 0.1215123397 | $354,905 | $354,905 | $43.13 | | |
| SCH204MO | School 204 Enrichment | 0.6416662518 | $354,905 | $354,905 | $227.73 | | |
| ST | State School | 1.4761226122 | $354,905 | $354,905 | $523.88 | | |
| ST2 | State School Part 2 | 0.7953803475 | $354,905 | $354,905 | $282.28 | | |
| | Total Tax Rate: | 7.4582938101 | | | | | |
| | | | | Taxes w/Current Exemptions: | $2,647.00 | | |
| | | | | Taxes w/o Exemptions: | $2,647.00 | | |
Improvement / Building
| Improvement #1: | RESIDENTIAL | State Code: | Y | 693.0 sqft | Value: | $94,905 |
| Bathrooms: | 1 | Bedrooms: | 2 | | Ceiling: | DRYWALL PAINTED | Exterior Wall/Cover: | VINYL | | Floor Covering: | CARPET/VINYL 60-40 | Floor Structure: | WOOD W/SUBFLOOR | | Foundation: | CONCRETE | Heating: | BASEBOARD ELECTRIC | | Interior Finish: | DRYWALL PAINT | Plumbing Fixture Cnt: | 6 | | Roof Slope: | 5" IN 12" | Roof Structure/Cover: | CJ ASPHALT |
|
| | Type | Description | Class CD | Sub Class CD | Year Built | Area |
| | BAS | BASE/MAIN FLOOR | 3 | 0 | 1946 | 693.0 |
| | OWP | OPEN WOOD PORCH W/STEPS | 3 | 0 | 1946 | 91.8 |
Sketch
| No sketches available for this property. |
Property Image
Land
| 1 | HS | HOMESITE | 0.1148 | 5000.69 | 0.00 | 0.00 | 1.00 | $260,000 | $0 |
Roll Value History
| 2026 | N/A | N/A | N/A | N/A | N/A |
| 2025 | $94,905 | $260,000 | $0 | $354,905 | $354,905 |
| 2024 | $95,133 | $240,000 | $0 | $335,133 | $335,133 |
| 2023 | $96,765 | $240,000 | $0 | $336,765 | $336,765 |
| 2022 | $89,101 | $200,000 | $0 | $289,101 | $289,101 |
| 2021 | $78,764 | $150,000 | $0 | $228,764 | $228,764 |
| 2020 | $76,843 | $130,000 | $0 | $206,843 | $206,843 |
| 2019 | $53,755 | $170,000 | $0 | $223,755 | $223,755 |
| 2018 | $47,335 | $150,000 | $0 | $197,335 | $197,335 |
| 2017 | $47,726 | $125,000 | $0 | $172,726 | $172,726 |
| 2016 | $48,521 | $115,000 | $0 | $163,521 | $163,521 |
| 2015 | $49,317 | $90,000 | $0 | $139,317 | $139,317 |
| 2014 | $50,113 | $85,000 | $0 | $135,113 | $135,113 |
| 2013 | $50,908 | $85,000 | $0 | $135,908 | $135,908 |
| 2012 | $51,715 | $89,250 | $0 | $140,965 | $140,965 |
| 2011 | $52,510 | $105,000 | $0 | $157,510 | $157,510 |
| 2010 | $55,711 | $105,000 | $0 | $160,711 | $160,711 |
| 2009 | $58,205 | $120,000 | $0 | $178,205 | $178,205 |
| 2008 | $59,002 | $124,000 | $0 | $183,002 | $183,002 |
| 2007 | $59,800 | $120,000 | $0 | $179,800 | $179,800 |
Deed and Sales History
| 1 | 03/31/2016 | QCD | Quit Claim Deed | SQUIRE, JEROME | SQUIRE, JEROME | | | $0.00 | 28134 | 4417412 |
| 2 | 03/31/2016 | QCD | Quit Claim Deed | HEIDE HORETH / CYNTHIA JAFFE, JEROME SQUIRE / ROBT HETLER | SQUIRE, JEROME | | | $60,000.00 | 23734 | 4396759 |
| 3 | 03/01/2000 | WD | Warranty Deed | SEC VETERANS AFFAIRS, | SQUIRE, JEROME H | | | $68,000.00 | 816 | 20004177 |
| 4 | 04/16/1999 | TRUSTEED | Trustee's Deed | KING, THOMAS K | NORWEST MORTGAGE INC, | | | $63,277.00 | 91403 | 99009251 |
| 5 | 04/14/1999 | TRUSTEED | Trustee's Deed | NORWEST MORTGAGE INC, | SEC VETERANS AFFAIRS, | | | $0.00 | 91404 | 99009252 |
| 6 | 09/01/1995 | WD | Warranty Deed | FLETCHER, JOHN B | KING, THOMAS K | | | $78,000.00 | 53572 | 95016399 |
| 7 | 10/01/1994 | DECREE | Divorce Decree/Legal Separation | FLETCHER, JOHN B | FLETCHER, JOHN B | | | $0.00 | 44333 | 94025332 |
| 8 | 03/01/1987 | WD | Warranty Deed | JARREL, BILL R | FLETCHER, JOHN B | | | $38,000.00 | 70756 | 87004062 |
| 9 | 11/01/1979 | TRUSTEED | Trustee's Deed | PEARSON, CARL E | JARREL, BILL R | | | $9,121.00 | 95370 | 361413 |
Payout Agreement
| No payout information available.. |