Property
Account |
| Property ID: | 237648 | Abbreviated Legal Description: | CRESCENT AC LOT 2 TGW E70' OF FOLL DESC: BG N/4 CR SEC 31-33-2E S1*W417.34' ALG N-S CTRLN SEC 31 TPB S1*W417.34' N85*W528' M/L TO SELY CR OF LARSON TR AF#227304 N1*E414.85' M/L TP N86*W FR TPB S86*E TPB TGW & SUB EZ |
| Geographic ID: | S6430-00-00002-0 | Agent Code: | |
| Type: | Real | | |
| Tax Area: | 112 - APPRAISER-OH Schl Dist, outside OH, improved, greater than 1 acre | Land Use Code | 11 |
| Open Space: | N | DFL | N |
| Historic Property: | N | Remodel Property: | N |
| Multi-Family Redevelopment: | N | | |
| Township: | | Section: | |
| Range: | |
Location |
| Address: | 2747 CRESCENT ACRES RD OAK HARBOR, WA 98277 | Mapsco: | |
| Neighborhood: | Cycle 6 | Map ID: | 646 |
| Neighborhood CD: | 6 |
Owner |
| Name: | STOVER, JESSICA | Owner ID: | 291333 |
| Mailing Address: | 2747 CRESCENT ACRES RD OAK HARBOR, WA 98277 | % Ownership: | 100.0000000000% |
| | | Exemptions: | |
Taxes and Assessment Details
Values
| (+) Improvement Homesite Value: | + | $0 | |
| (+) Improvement Non-Homesite Value: | + | $278,900 | |
| (+) Land Homesite Value: | + | $0 | |
| (+) Land Non-Homesite Value: | + | $300,000 | |
| (+) Curr Use (HS): | + | $0 | $0 |
| (+) Curr Use (NHS): | + | $0 | $0 |
| | | -------------------------- | |
| (=) Market Value: | = | $578,900 | |
| (–) Productivity Loss: | – | $0 | |
| | | -------------------------- | |
| (=) Subtotal: | = | $578,900 | |
| (+) Senior Appraised Value: | + | $0 | |
| (+) Non-Senior Appraised Value: | + | $578,900 | |
| | | -------------------------- | |
| (=) Total Appraised Value: | = | $578,900 | |
| (–) Senior Exemption Loss: | – | $0 | |
| (–) Exemption Loss: | – | $0 | |
| | | -------------------------- | |
| (=) Taxable Value: | = | $578,900 | |
Taxing Jurisdiction
| Owner: | STOVER, JESSICA | | |
| % Ownership: | 100.0000000000% | | |
| Total Value: | $578,900 | | |
| Tax Area: | 112 - APPRAISER-OH Schl Dist, outside OH, improved, greater than 1 acre |
| CF | Conservation Futures | 0.0313996660 | $578,900 | $578,900 | $18.18 | | |
| CEM1 | Cemetery #1 | 0.0040018856 | $578,900 | $578,900 | $2.32 | | |
| FIRE2 | Fire & Rescue Dist #2 N Whidbey GEN | 0.5381486274 | $578,900 | $578,900 | $311.53 | | |
| HOBOND | Hospital BOND | 0.1893405597 | $578,900 | $578,900 | $109.61 | | |
| HOGEN | Hospital GEN | 0.3848777722 | $578,900 | $578,900 | $222.81 | | |
| CE | County Current Expense | 0.3674210519 | $578,900 | $578,900 | $212.70 | | |
| CR | County Roads | 0.4614296361 | $578,900 | $578,900 | $267.12 | | |
| ISLANDEMS | Hospital GEN (EMS) | 0.4952018576 | $578,900 | $578,900 | $286.67 | | |
| LIB | Library Sno-Isle GEN | 0.3039084203 | $578,900 | $578,900 | $175.93 | | |
| NWHIDPRMT | P & R N Whidbey GEN | 0.1990272349 | $578,900 | $578,900 | $115.22 | | |
| SCH201MO | School 201 Enrichment | 2.3851112745 | $578,900 | $578,900 | $1,380.74 | | |
| ST | State School | 1.4761226122 | $578,900 | $578,900 | $854.53 | | |
| ST2 | State School Part 2 | 0.7953803475 | $578,900 | $578,900 | $460.45 | | |
| | Total Tax Rate: | 7.6313709459 | | | | | |
| | | | | Taxes w/Current Exemptions: | $4,417.81 | | |
| | | | | Taxes w/o Exemptions: | $4,417.81 | | |
Improvement / Building
| Improvement #1: | RESIDENTIAL | State Code: | Y | 1392.0 sqft | Value: | $278,900 |
| Bathrooms: | 2 | Bedrooms: | 2 | | Ceiling: | DRY WALL SPRAYED | Exterior Wall/Cover: | LOG TO 10" | | Floor Covering: | CARPET/VINYL 80-20 | Floor Structure: | WOOD W/SUBFLOOR | | Foundation: | CONCRETE | Heating: | BASEBOARD ELECTRIC | | Interior Finish: | DRYWALL PAINT | Plumbing Fixture Cnt: | 9 | | Roof Slope: | 4" IN 12" | Roof Structure/Cover: | BEAM ASPHALT |
|
| | Type | Description | Class CD | Sub Class CD | Year Built | Area |
| | BAS | BASE/MAIN FLOOR | 4 | 0 | 1980 | 1392.0 |
| | ENP | ENCLOSED PORCH | 4 | 0 | 1980 | 877.6 |
| | UTY | STORAGE/UTILITY | 4 | 0 | 1980 | 180.0 |
Sketch
Property Image
Land
| 1 | 32 | AC (03.01-09.99) | 3.0800 | 0.00 | 0.00 | 0.00 | 1.00 | $300,000 | $0 |
Roll Value History
| 2026 | N/A | N/A | N/A | N/A | N/A |
| 2025 | $278,900 | $300,000 | $0 | $578,900 | $578,900 |
| 2024 | $306,402 | $280,000 | $0 | $586,402 | $586,402 |
| 2023 | $311,324 | $270,000 | $0 | $581,324 | $581,324 |
| 2022 | $180,360 | $240,000 | $0 | $420,360 | $420,360 |
| 2021 | $159,439 | $160,000 | $0 | $319,439 | $319,439 |
| 2020 | $156,088 | $140,000 | $0 | $296,088 | $296,088 |
| 2019 | $113,847 | $200,000 | $0 | $313,847 | $313,847 |
| 2018 | $114,298 | $170,000 | $0 | $284,298 | $284,298 |
| 2017 | $115,198 | $150,000 | $0 | $265,198 | $265,198 |
| 2016 | $128,197 | $140,000 | $0 | $268,197 | $268,197 |
| 2015 | $130,169 | $120,000 | $0 | $250,169 | $250,169 |
| 2014 | $132,141 | $100,000 | $0 | $232,141 | $232,141 |
| 2013 | $134,113 | $60,984 | $0 | $195,097 | $195,097 |
| 2012 | $136,085 | $60,984 | $0 | $197,069 | $197,069 |
| 2011 | $138,058 | $67,760 | $0 | $205,818 | $205,818 |
| 2010 | $134,308 | $67,760 | $0 | $202,068 | $202,068 |
| 2009 | $140,089 | $89,320 | $0 | $229,409 | $229,409 |
| 2008 | $147,499 | $89,320 | $0 | $236,819 | $236,819 |
| 2007 | $149,428 | $55,440 | $0 | $204,868 | $204,868 |
Deed and Sales History
| 1 | 05/13/2022 | QCD | Quit Claim Deed | HAMER, MARY | STOVER, JESSICA LYN | | | $0.00 | 53143 | 454281 |
| 2 | 08/07/2019 | WD | Warranty Deed | SECRETARY OF VETERANS AFFAIRS | STOVER, JESSICA | | | $0.00 | 39846 | 4469314 |
| 3 | 04/22/2019 | WD | Warranty Deed | WELLS FARGO BANK NA | SECRETARY OF VETERANS AFFAIRS | | | $221,472.00 | 38112 | 4461535 |
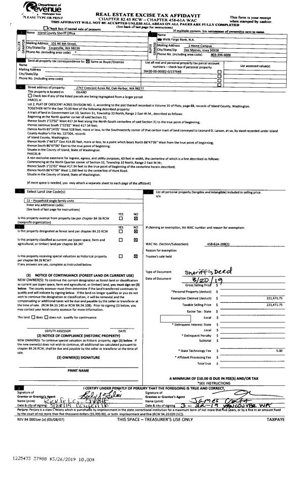
| 4 | 04/18/2019 | SHERIFFD | Sheriff Deed | RENTSCHLER, JOHN D | WELLS FARGO BANK NA | | | $0.00 | 37988 | 4461045 |
| 5 | 08/30/2012 | WD | Warranty Deed | BRUMAR, EVELYN I | RENTSCHLER, JOHN D | | | $242,000.00 | 8796 | 4322621 |
| 6 | 07/06/2011 | | | BRUMAR, EVELYN I | BRUMAR, EVELYN I | | | | 82114 | 4293526 |
| 7 | 07/06/2011 | | | MARTINEZ, EVELYN I | BRUMAR, EVELYN I | | | | 82104 | 4293527 |
| 8 | 06/02/2005 | QCD | Quit Claim Deed | BRUBAKER, HEIDI S | MARTINEZ, EVELYN I | | | $0.00 | 53786 | 4142961 |
| 9 | 03/29/2005 | WD | Warranty Deed | FISHER-MURPHY, ANITA F | BRUBAKER, HEIDI S | | | $212,500.00 | 51331 | 4129962 |
| 10 | 07/21/2003 | BLA | DNU - Boundary Line Adjustment | FISHER-MURPHY, ANITA F | FISHER-MURPHY, ANITA F | | | $0.00 | 69949 | 20036709 |
| 11 | 04/15/1999 | QCD | Quit Claim Deed | FISHER, ANITA F | FISHER-MURPHY, ANITA F | | | $0.00 | 91443 | 99009457 |
| 12 | 10/01/1996 | WD | Warranty Deed | OLMSTEAD, JAMES R | FISHER, ANITA F | | | $140,000.00 | 63700 | 96017956 |
| 13 | 08/01/1996 | BLA | DNU - Boundary Line Adjustment | OLMSTEAD, JAMES R | OLMSTEAD, JAMES R | | | $0.00 | 67093 | 96014588 |
| 14 | 01/01/1900 | OTHER | Other - Misc. Documents | Unknown | OLMSTEAD, JAMES R | | | $0.00 | 0 | 0 |
Payout Agreement
| No payout information available.. |