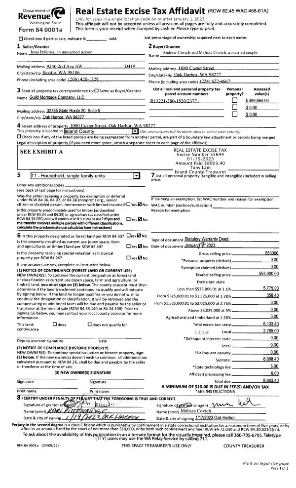
Property
Account |
| Property ID: | 23771 | Abbreviated Legal Description: | 90 - NW NW SE NW TGW & SUBJ EZ (LOT 15A SP 77-62 AF#324122) |
| Geographic ID: | R13221-380-1520 | Agent Code: | |
| Type: | Real | | |
| Tax Area: | 112 - APPRAISER-OH Schl Dist, outside OH, improved, greater than 1 acre | Land Use Code | 11 |
| Open Space: | N | DFL | N |
| Historic Property: | N | Remodel Property: | N |
| Multi-Family Redevelopment: | N | | |
| Township: | 32 | Section: | 21 |
| Range: | R1 |
Location |
| Address: | 1080 CUSTER ST OAK HARBOR, WA 98277 | Mapsco: | |
| Neighborhood: | Cycle 2 | Map ID: | 151 |
| Neighborhood CD: | 2 |
Owner |
| Name: | COVICH, ANDREW | Owner ID: | 307314 |
| Mailing Address: | MELISSA COVICH 1080 CUSTER ST OAK HARBOR, WA 98277 | % Ownership: | 100.0000000000% |
| | | Exemptions: | |
Taxes and Assessment Details
Values
| (+) Improvement Homesite Value: | + | $0 | |
| (+) Improvement Non-Homesite Value: | + | $279,424 | |
| (+) Land Homesite Value: | + | $0 | |
| (+) Land Non-Homesite Value: | + | $308,616 | |
| (+) Curr Use (HS): | + | $0 | $0 |
| (+) Curr Use (NHS): | + | $0 | $0 |
| | | -------------------------- | |
| (=) Market Value: | = | $588,040 | |
| (–) Productivity Loss: | – | $0 | |
| | | -------------------------- | |
| (=) Subtotal: | = | $588,040 | |
| (+) Senior Appraised Value: | + | $0 | |
| (+) Non-Senior Appraised Value: | + | $588,040 | |
| | | -------------------------- | |
| (=) Total Appraised Value: | = | $588,040 | |
| (–) Senior Exemption Loss: | – | $0 | |
| (–) Exemption Loss: | – | $0 | |
| | | -------------------------- | |
| (=) Taxable Value: | = | $588,040 | |
Taxing Jurisdiction
| Owner: | COVICH, ANDREW | | |
| % Ownership: | 100.0000000000% | | |
| Total Value: | $588,040 | | |
| Tax Area: | 112 - APPRAISER-OH Schl Dist, outside OH, improved, greater than 1 acre |
| CF | Conservation Futures | 0.0313996660 | $588,040 | $588,040 | $18.46 | | |
| CEM1 | Cemetery #1 | 0.0040018856 | $588,040 | $588,040 | $2.35 | | |
| FIRE2 | Fire & Rescue Dist #2 N Whidbey GEN | 0.5381486274 | $588,040 | $588,040 | $316.45 | | |
| HOBOND | Hospital BOND | 0.1893405597 | $588,040 | $588,040 | $111.34 | | |
| HOGEN | Hospital GEN | 0.3848777722 | $588,040 | $588,040 | $226.32 | | |
| CE | County Current Expense | 0.3674210519 | $588,040 | $588,040 | $216.06 | | |
| CR | County Roads | 0.4614296361 | $588,040 | $588,040 | $271.34 | | |
| ISLANDEMS | Hospital GEN (EMS) | 0.4952018576 | $588,040 | $588,040 | $291.20 | | |
| LIB | Library Sno-Isle GEN | 0.3039084203 | $588,040 | $588,040 | $178.71 | | |
| NWHIDPRMT | P & R N Whidbey GEN | 0.1990272349 | $588,040 | $588,040 | $117.04 | | |
| SCH201MO | School 201 Enrichment | 2.3851112745 | $588,040 | $588,040 | $1,402.54 | | |
| ST | State School | 1.4761226122 | $588,040 | $588,040 | $868.02 | | |
| ST2 | State School Part 2 | 0.7953803475 | $588,040 | $588,040 | $467.72 | | |
| | Total Tax Rate: | 7.6313709459 | | | | | |
| | | | | Taxes w/Current Exemptions: | $4,487.55 | | |
| | | | | Taxes w/o Exemptions: | $4,487.55 | | |
Improvement / Building
| Improvement #1: | RESIDENTIAL | State Code: | Y | 1593.0 sqft | Value: | $279,424 |
| Bathrooms: | 2 | Bedrooms: | 3 | | Ceiling: | DRYWALL PAINTED | Exterior Wall/Cover: | WOOD SIDING | | Floor Covering: | CARPET/VINYL 80-20 | Floor Structure: | WOOD W/SUBFLOOR | | Foundation: | CONCRETE | Heating: | FHA ELECTRIC | | Interior Finish: | DRYWALL PAINT | Plumbing Fixture Cnt: | 10 | | Roof Slope: | 4" IN 12" | Roof Structure/Cover: | CJ ASPHALT |
|
| | Type | Description | Class CD | Sub Class CD | Year Built | Area |
| | BAS | BASE/MAIN FLOOR | 3 | 0 | 1987 | 1593.0 |
| | OP1 | OPEN PORCH SLAB | 3 | 0 | 1987 | 144.0 |
| | OP4 | OPEN PORCH W/CEILING-ROOF | 3 | 0 | 1987 | 132.0 |
| | OP4 | OPEN PORCH W/CEILING-ROOF | 3 | 0 | 1987 | 80.0 |
| | AGR | ATTACHED GARAGE | 3 | 0 | 1987 | 576.0 |
Sketch
Property Image
Land
| 1 | HS | HOMESITE | 1.0000 | 43560.00 | 0.00 | 0.00 | 1.00 | $220,000 | $0 |
| 2 | 91 | UNDEVELOPED LAND-METES AND BOUNDS | 1.5200 | 66211.20 | 0.00 | 0.00 | 1.00 | $88,616 | $0 |
Roll Value History
| 2026 | N/A | N/A | N/A | N/A | N/A |
| 2025 | $279,424 | $308,616 | $0 | $588,040 | $588,040 |
| 2024 | $283,137 | $300,000 | $0 | $583,137 | $583,137 |
| 2023 | $286,851 | $270,000 | $0 | $556,851 | $556,851 |
| 2022 | $249,664 | $250,000 | $0 | $499,664 | $499,664 |
| 2021 | $220,017 | $170,000 | $0 | $390,017 | $390,017 |
| 2020 | $214,559 | $150,000 | $0 | $364,559 | $364,559 |
| 2019 | $156,307 | $180,000 | $0 | $336,307 | $336,307 |
| 2018 | $146,795 | $160,000 | $0 | $306,795 | $306,795 |
| 2017 | $147,807 | $150,000 | $0 | $297,807 | $297,807 |
| 2016 | $149,831 | $120,000 | $0 | $269,831 | $269,831 |
| 2015 | $151,855 | $90,000 | $0 | $241,855 | $241,855 |
| 2014 | $153,880 | $90,000 | $0 | $243,880 | $243,880 |
| 2013 | $155,906 | $102,000 | $0 | $257,906 | $257,906 |
| 2012 | $158,638 | $102,000 | $0 | $260,638 | $260,638 |
| 2011 | $160,666 | $120,000 | $0 | $280,666 | $280,666 |
| 2010 | $164,667 | $120,000 | $0 | $284,667 | $284,667 |
| 2009 | $171,938 | $105,000 | $0 | $276,938 | $276,938 |
| 2008 | $178,401 | $65,000 | $0 | $243,401 | $243,401 |
| 2007 | $165,163 | $105,596 | $0 | $270,759 | $270,759 |
Deed and Sales History
| 1 | 01/17/2023 | WD | Warranty Deed | PELLETIER, IRMA | COVICH, ANDREW | | | $553,000.00 | 55644 | 4555843 |
| 2 | 11/02/1998 | OTHER | Other - Misc. Documents | PELLETIER, ROBERT C | PELLETIER, IRMA | | | $0.00 | 68057 | 0 |
| 3 | 07/01/1989 | WD | Warranty Deed | BENEFIELD, GERALD E | PELLETIER, ROBERT C | | | $105,000.00 | 92791 | 89009394 |
| 4 | 05/01/1987 | WD | Warranty Deed | BAKER, JAMES M | BENEFIELD, GERALD E | | | $18,250.00 | 71397 | 87006782 |
| 5 | 07/01/1982 | WD | Warranty Deed | OLNEY, STEPHEN E | BAKER, JAMES M | | | $22,500.00 | 21824 | 399001 |
| 6 | 08/01/1980 | REC | Real Estate Contract | BEERS, LEO R | OLNEY, STEPHEN E | | | $20,900.00 | 2766 | 372614 |
| 7 | 12/01/1978 | OTHER | Other - Misc. Documents | Unknown | BEERS, LEO R | | | $15,000.00 | 91199 | 349270 |
Payout Agreement
| No payout information available.. |