Property
Account |
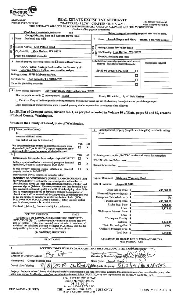
| Property ID: | 237924 | Abbreviated Legal Description: | CRESCENT AC LOT 28 |
| Geographic ID: | S6430-00-00028-0 | Agent Code: | |
| Type: | Real | | |
| Tax Area: | 112 - APPRAISER-OH Schl Dist, outside OH, improved, greater than 1 acre | Land Use Code | 11 |
| Open Space: | N | DFL | N |
| Historic Property: | N | Remodel Property: | N |
| Multi-Family Redevelopment: | N | | |
| Township: | | Section: | |
| Range: | |
Location |
| Address: | | Mapsco: | |
| Neighborhood: | Cycle 6 | Map ID: | 646 |
| Neighborhood CD: | 6 |
Owner |
| Name: | HOGAN, JOSEPH | Owner ID: | 291314 |
| Mailing Address: | MARY HOGAN 260 VALLEY ROAD OAK HARBOR, WA 98277 | % Ownership: | 100.0000000000% |
| | | Exemptions: | |
Taxes and Assessment Details
Values
| (+) Improvement Homesite Value: | + | $0 | |
| (+) Improvement Non-Homesite Value: | + | $318,940 | |
| (+) Land Homesite Value: | + | $0 | |
| (+) Land Non-Homesite Value: | + | $250,000 | |
| (+) Curr Use (HS): | + | $0 | $0 |
| (+) Curr Use (NHS): | + | $0 | $0 |
| | | -------------------------- | |
| (=) Market Value: | = | $568,940 | |
| (–) Productivity Loss: | – | $0 | |
| | | -------------------------- | |
| (=) Subtotal: | = | $568,940 | |
| (+) Senior Appraised Value: | + | $0 | |
| (+) Non-Senior Appraised Value: | + | $568,940 | |
| | | -------------------------- | |
| (=) Total Appraised Value: | = | $568,940 | |
| (–) Senior Exemption Loss: | – | $0 | |
| (–) Exemption Loss: | – | $0 | |
| | | -------------------------- | |
| (=) Taxable Value: | = | $568,940 | |
Taxing Jurisdiction
| Owner: | HOGAN, JOSEPH | | |
| % Ownership: | 100.0000000000% | | |
| Total Value: | $568,940 | | |
| Tax Area: | 112 - APPRAISER-OH Schl Dist, outside OH, improved, greater than 1 acre |
| CF | Conservation Futures | 0.0313996660 | $568,940 | $568,940 | $17.86 | | |
| CEM1 | Cemetery #1 | 0.0040018856 | $568,940 | $568,940 | $2.28 | | |
| FIRE2 | Fire & Rescue Dist #2 N Whidbey GEN | 0.5381486274 | $568,940 | $568,940 | $306.17 | | |
| HOBOND | Hospital BOND | 0.1893405597 | $568,940 | $568,940 | $107.72 | | |
| HOGEN | Hospital GEN | 0.3848777722 | $568,940 | $568,940 | $218.97 | | |
| CE | County Current Expense | 0.3674210519 | $568,940 | $568,940 | $209.04 | | |
| CR | County Roads | 0.4614296361 | $568,940 | $568,940 | $262.53 | | |
| ISLANDEMS | Hospital GEN (EMS) | 0.4952018576 | $568,940 | $568,940 | $281.74 | | |
| LIB | Library Sno-Isle GEN | 0.3039084203 | $568,940 | $568,940 | $172.91 | | |
| NWHIDPRMT | P & R N Whidbey GEN | 0.1990272349 | $568,940 | $568,940 | $113.23 | | |
| SCH201MO | School 201 Enrichment | 2.3851112745 | $568,940 | $568,940 | $1,356.99 | | |
| ST | State School | 1.4761226122 | $568,940 | $568,940 | $839.83 | | |
| ST2 | State School Part 2 | 0.7953803475 | $568,940 | $568,940 | $452.52 | | |
| | Total Tax Rate: | 7.6313709459 | | | | | |
| | | | | Taxes w/Current Exemptions: | $4,341.79 | | |
| | | | | Taxes w/o Exemptions: | $4,341.79 | | |
Improvement / Building
| Improvement #1: | RESIDENTIAL | State Code: | Y | 1798.0 sqft | Value: | $318,940 |
| Bathrooms: | 2 | Bedrooms: | 3 | | Ceiling: | DRY WALL SPRAYED | Exterior Wall/Cover: | VINYL | | Floor Covering: | HARDWOOD/CARP 60-40 | Floor Structure: | WOOD W/SUBFLOOR | | Foundation: | CONCRETE | Heating: | FHA GAS | | Interior Finish: | DRYWALL PAINT | Plumbing Fixture Cnt: | 10 | | Roof Slope: | 4" IN 12" | Roof Structure/Cover: | CJ ASPHALT |
|
| | Type | Description | Class CD | Sub Class CD | Year Built | Area |
| | BAS | BASE/MAIN FLOOR | 3 | 0 | 1972 | 1200.0 |
| | DWN | DOWNSTAIRS LIVING AREA | 3 | 0 | 1972 | 598.0 |
| | OP2 | OPEN PORCH W/STEPS | 3 | 0 | 1972 | 36.0 |
| | BIG | BUILT IN GARAGE | 3 | 0 | 1972 | 572.0 |
| | OWR | OPEN WOOD PORCH W/STEPS/ROOF | 3 | 0 | 1972 | 256.0 |
| | UTY | STORAGE/UTILITY | 3 | 0 | 1972 | 864.0 |
Sketch
Property Image
Land
| 1 | 18 | AC (02.01-03.00) | 0.0000 | 0.00 | 0.00 | 0.00 | 1.00 | $250,000 | $0 |
Roll Value History
| 2026 | N/A | N/A | N/A | N/A | N/A |
| 2025 | $318,940 | $250,000 | $0 | $568,940 | $568,940 |
| 2024 | $322,915 | $230,000 | $0 | $552,915 | $552,915 |
| 2023 | $326,889 | $220,000 | $0 | $546,889 | $546,889 |
| 2022 | $293,838 | $210,000 | $0 | $503,838 | $503,838 |
| 2021 | $258,629 | $160,000 | $0 | $418,629 | $418,629 |
| 2020 | $252,221 | $140,000 | $0 | $392,221 | $392,221 |
| 2019 | $176,533 | $200,000 | $0 | $376,533 | $376,533 |
| 2018 | $177,028 | $170,000 | $0 | $347,028 | $347,028 |
| 2017 | $178,021 | $150,000 | $0 | $328,021 | $328,021 |
| 2016 | $176,037 | $120,000 | $0 | $296,037 | $296,037 |
| 2015 | $178,021 | $100,000 | $0 | $278,021 | $278,021 |
| 2014 | $122,513 | $100,000 | $0 | $222,513 | $222,513 |
| 2013 | $124,266 | $80,000 | $0 | $204,266 | $204,266 |
| 2012 | $126,018 | $108,000 | $0 | $234,018 | $234,018 |
| 2011 | $127,770 | $120,000 | $0 | $247,770 | $247,770 |
| 2010 | $138,065 | $120,000 | $0 | $258,065 | $258,065 |
| 2009 | $144,329 | $155,000 | $0 | $299,329 | $299,329 |
| 2008 | $152,449 | $125,000 | $0 | $277,449 | $277,449 |
| 2007 | $155,127 | $80,000 | $0 | $235,127 | $235,127 |
Deed and Sales History
| 1 | 08/08/2019 | WD | Warranty Deed | PINA, GEORGE MAXIMO | HOGAN, JOSEPH | | | $435,000.00 | 39825 | 4469168 |
| 2 | 10/17/2014 | WD | Warranty Deed | LESETMOE, SHANE M | PINA, GEORGE MAXIMO | | | $299,000.00 | 17229 | 4367190 |
| 3 | 04/11/2008 | QCD | Quit Claim Deed | LESETMOE, SHANE M | LESETMOE, SHANE M | | | $0.00 | 80910 | 4226369 |
| 4 | 01/09/2008 | WD | Warranty Deed | MCWHERTER, JAMES D | LESETMOE, SHANE M | | | $279,000.00 | 80178 | 4220364 |
| 5 | 06/01/1990 | WD | Warranty Deed | DELL, LAWRENCE E | MCWHERTER, JAMES D | | | $109,000.00 | 3311 | 90010771 |
| 6 | 01/01/1985 | WD | Warranty Deed | RINGERING, DAVID A | DELL, LAWRENCE E | | | $83,725.00 | 50246 | 85001133 |
| 7 | 12/01/1978 | OTHER | Other - Misc. Documents | Unknown | RINGERING, DAVID A | | | $60,750.00 | 85913 | 344066 |
Payout Agreement
| No payout information available.. |