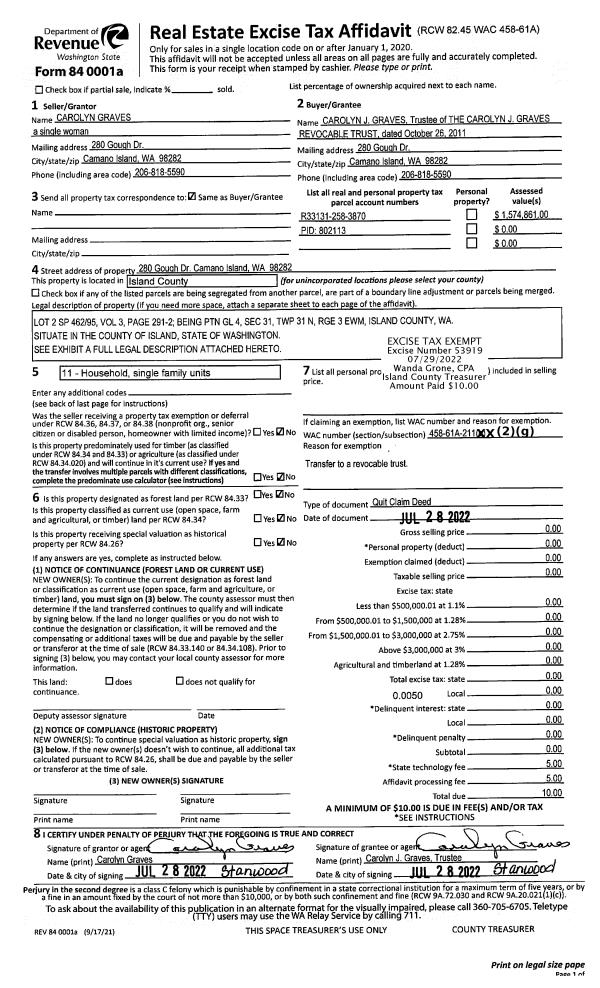
Property
Account |
| Property ID: | 238022 | Abbreviated Legal Description: | CROCKETT LK EST LOT 2 SL2C:BG SLY CR L2 N39*W181.15'TPB N46*E122'N39*W160.20'S46* W122.04'S39*E159.70'TPB |
| Geographic ID: | S6435-00-00002-2 | Agent Code: | |
| Type: | Real | | |
| Tax Area: | 380 - APPRAISER-Cpvl Schl Dist, Special Dist, improved & less than 1 acre | Land Use Code | 11 |
| Open Space: | N | DFL | N |
| Historic Property: | N | Remodel Property: | N |
| Multi-Family Redevelopment: | N | | |
| Township: | | Section: | |
| Range: | |
Location |
| Address: | 965 FERRY AVE COUPEVILLE, WA 98239 | Mapsco: | |
| Neighborhood: | Cycle 2 | Map ID: | 65 |
| Neighborhood CD: | 2 |
Owner |
| Name: | MULLEN, CAMERON R. | Owner ID: | 305910 |
| Mailing Address: | ROBERT J. MULLEN 965 FERRY AVE COUPEVILLE, WA 98239 | % Ownership: | 100.0000000000% |
| | | Exemptions: | |
Taxes and Assessment Details
Values
| (+) Improvement Homesite Value: | + | $0 | |
| (+) Improvement Non-Homesite Value: | + | $213,937 | |
| (+) Land Homesite Value: | + | $0 | |
| (+) Land Non-Homesite Value: | + | $270,000 | |
| (+) Curr Use (HS): | + | $0 | $0 |
| (+) Curr Use (NHS): | + | $0 | $0 |
| | | -------------------------- | |
| (=) Market Value: | = | $483,937 | |
| (–) Productivity Loss: | – | $0 | |
| | | -------------------------- | |
| (=) Subtotal: | = | $483,937 | |
| (+) Senior Appraised Value: | + | $0 | |
| (+) Non-Senior Appraised Value: | + | $483,937 | |
| | | -------------------------- | |
| (=) Total Appraised Value: | = | $483,937 | |
| (–) Senior Exemption Loss: | – | $0 | |
| (–) Exemption Loss: | – | $0 | |
| | | -------------------------- | |
| (=) Taxable Value: | = | $483,937 | |
Taxing Jurisdiction
| Owner: | MULLEN, CAMERON R. | | |
| % Ownership: | 100.0000000000% | | |
| Total Value: | $483,937 | | |
| Tax Area: | 380 - APPRAISER-Cpvl Schl Dist, Special Dist, improved & less than 1 acre |
| CF | Conservation Futures | 0.0313996660 | $483,937 | $483,937 | $15.20 | | |
| CEM2 | Cemetery #2 | 0.0092609791 | $483,937 | $483,937 | $4.48 | | |
| FIRE5 | Fire & Rescue Dist #5 C Whidbey GEN | 1.1892169230 | $483,937 | $483,937 | $575.51 | | |
| FIRE5BOND | Fire & Rescue Dist #5 C Whidbey BOND | 0.1394359503 | $483,937 | $483,937 | $67.48 | | |
| HOBOND | Hospital BOND | 0.1893405597 | $483,937 | $483,937 | $91.63 | | |
| HOGEN | Hospital GEN | 0.3848777722 | $483,937 | $483,937 | $186.26 | | |
| CE | County Current Expense | 0.3674210519 | $483,937 | $483,937 | $177.81 | | |
| CR | County Roads | 0.4614296361 | $483,937 | $483,937 | $223.30 | | |
| ISLANDEMS | Hospital GEN (EMS) | 0.4952018576 | $483,937 | $483,937 | $239.65 | | |
| LIB | Library Sno-Isle GEN | 0.3039084203 | $483,937 | $483,937 | $147.07 | | |
| LIBCAP | Library Sno-Isle BOND (Cap Fac Imp Area) | 0.0528562629 | $483,937 | $483,937 | $25.58 | | |
| POCOUP | Port of Coupeville GEN | 0.1065226063 | $483,937 | $483,937 | $51.55 | | |
| POCOUPIDD | Port of Coupeville IDD | 0.3353038577 | $483,937 | $483,937 | $162.27 | | |
| COUPSDTECH | School 204 CP (TECH) | 0.1215123397 | $483,937 | $483,937 | $58.80 | | |
| SCH204MO | School 204 Enrichment | 0.6416662518 | $483,937 | $483,937 | $310.53 | | |
| ST | State School | 1.4761226122 | $483,937 | $483,937 | $714.35 | | |
| ST2 | State School Part 2 | 0.7953803475 | $483,937 | $483,937 | $384.91 | | |
| | Total Tax Rate: | 7.1008570943 | | | | | |
| | | | | Taxes w/Current Exemptions: | $3,436.38 | | |
| | | | | Taxes w/o Exemptions: | $3,436.38 | | |
Improvement / Building
| Improvement #1: | RESIDENTIAL | State Code: | Y | 1008.0 sqft | Value: | $213,937 |
| Bathrooms: | 1 | Bedrooms: | 3 | | Ceiling: | DRYWALL PAINTED | Cooling: | HEAT PUMP/CONV/V | | Exterior Wall/Cover: | VINYL | Floor Covering: | HARDWOOD/CARP 20-80 | | Floor Structure: | WOOD W/SUBFLOOR | Foundation: | CONCRETE | | Interior Finish: | DRYWALL PAINT | Plumbing Fixture Cnt: | 6 | | Roof Slope: | 4" IN 12" | Roof Structure/Cover: | CJ ASPHALT |
|
| | Type | Description | Class CD | Sub Class CD | Year Built | Area |
| | BAS | BASE/MAIN FLOOR | 3 | 0 | 1975 | 1008.0 |
| | AGR | ATTACHED GARAGE | 3 | 0 | 1975 | 336.0 |
| | OWP | OPEN WOOD PORCH W/STEPS | 3 | 0 | 1975 | 192.0 |
| | UTY | STORAGE/UTILITY | 3 | 0 | 1975 | 80.0 |
| | CPD | OPEN CARPORT DIRT FLOOR | 3 | 0 | 1975 | 32.0 |
Sketch
Property Image
Land
| 1 | 15 | SQ (12001-21780) | 0.4458 | 19419.05 | 0.00 | 0.00 | 1.00 | $270,000 | $0 |
Roll Value History
| 2026 | N/A | N/A | N/A | N/A | N/A |
| 2025 | $213,937 | $270,000 | $0 | $483,937 | $483,937 |
| 2024 | $208,976 | $250,000 | $0 | $458,976 | $458,976 |
| 2023 | $211,456 | $220,000 | $0 | $431,456 | $431,456 |
| 2022 | $176,909 | $210,000 | $0 | $386,909 | $386,909 |
| 2021 | $155,657 | $140,000 | $0 | $295,657 | $295,657 |
| 2020 | $151,658 | $110,000 | $0 | $261,658 | $261,658 |
| 2019 | $106,154 | $150,000 | $0 | $256,154 | $256,154 |
| 2018 | $106,458 | $115,000 | $0 | $221,458 | $221,458 |
| 2017 | $107,066 | $100,000 | $0 | $207,066 | $207,066 |
| 2016 | $76,891 | $75,000 | $0 | $151,891 | $151,891 |
| 2015 | $78,075 | $65,000 | $0 | $143,075 | $143,075 |
| 2014 | $79,257 | $65,000 | $0 | $144,257 | $144,257 |
| 2013 | $80,440 | $65,000 | $0 | $145,440 | $44,441 |
| 2012 | $83,387 | $68,000 | $0 | $151,387 | $44,441 |
| 2011 | $84,577 | $80,000 | $0 | $164,577 | $44,441 |
| 2010 | $88,687 | $80,000 | $0 | $168,687 | $44,441 |
| 2009 | $92,576 | $80,000 | $0 | $172,576 | $44,441 |
| 2008 | $93,795 | $80,000 | $0 | $173,795 | $44,441 |
| 2007 | $95,028 | $80,000 | $0 | $175,028 | $44,441 |
Deed and Sales History
| 1 | 09/06/2022 | WD | Warranty Deed | GREENBERG, ZACHARY D | MULLEN, CAMERON R. | | | $425,000.00 | 54481 | 4550966 |
| 2 | 01/10/2017 | WD | Warranty Deed | HYTTE HOMES LLC | GREENBERG, ZACHARY D | | | $242,000.00 | 27717 | 4415069 |
| 3 | 08/22/2016 | TRUSTEED | Trustee's Deed | LINES, LINDA | HYTTE HOMES LLC | | | $72,764.00 | 25880 | 4406141 |
| 4 | 12/10/2001 | TRUSTEED | Trustee's Deed | MORTGAGE GUARANTY INSURANCE CO | LINES, LINDA | | | $113,000.00 | 14874 | 4006865 |
| 5 | 09/21/2001 | WD | Warranty Deed | FEDERAL NATIONAL MORTGAGE ASSO | MORTGAGE GUARANTY INSURANCE CO | | | $0.00 | 14873 | 4006864 |
| 6 | 07/31/2001 | TRUSTEED | Trustee's Deed | BENTON, PHILIP E | FEDERAL NATIONAL MORTGAGE ASSO | | | $117,868.00 | 12903 | 20038772 |
| 7 | 05/01/1996 | WD | Warranty Deed | EDWARDS, HENRY H | BENTON, PHILIP E | | | $113,000.00 | 61600 | 96008060 |
Payout Agreement
| No payout information available.. |