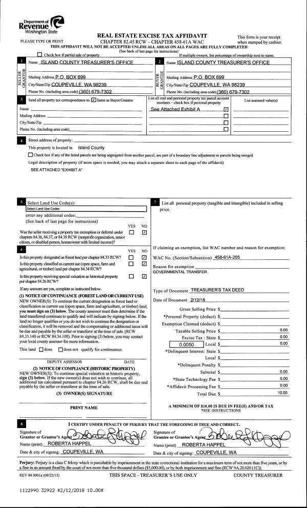
Property
Account |
| Property ID: | 239030 | Abbreviated Legal Description: | CROCKETT LK EST LOT 38 SL3C: BG MST SLY CR SD LOT N54*W72' N29*W77.61' TPB N29*W87.31' N52*E219.49 SELY ALG CUR/L 85.68' S52*W 227.74' TPB |
| Geographic ID: | S6435-00-00038-3 | Agent Code: | |
| Type: | Real | | |
| Tax Area: | 380 - APPRAISER-Cpvl Schl Dist, Special Dist, improved & less than 1 acre | Land Use Code | 11 |
| Open Space: | N | DFL | N |
| Historic Property: | N | Remodel Property: | N |
| Multi-Family Redevelopment: | N | | |
| Township: | | Section: | |
| Range: | |
Location |
| Address: | 515 OLYMPIC VIEW DR COUPEVILLE, WA 98239 | Mapsco: | |
| Neighborhood: | Cycle 2 | Map ID: | 65 |
| Neighborhood CD: | 2 |
Owner |
| Name: | MATSON, CYNTHIA JANE | Owner ID: | 284398 |
| Mailing Address: | DAVID GUY MATSON 515 OLYMPIC VIEW DR COUPEVILLE, WA 98239 | % Ownership: | 100.0000000000% |
| | | Exemptions: | |
Taxes and Assessment Details
Values
| (+) Improvement Homesite Value: | + | $0 | |
| (+) Improvement Non-Homesite Value: | + | $199,836 | |
| (+) Land Homesite Value: | + | $0 | |
| (+) Land Non-Homesite Value: | + | $320,000 | |
| (+) Curr Use (HS): | + | $0 | $0 |
| (+) Curr Use (NHS): | + | $0 | $0 |
| | | -------------------------- | |
| (=) Market Value: | = | $519,836 | |
| (–) Productivity Loss: | – | $0 | |
| | | -------------------------- | |
| (=) Subtotal: | = | $519,836 | |
| (+) Senior Appraised Value: | + | $0 | |
| (+) Non-Senior Appraised Value: | + | $519,836 | |
| | | -------------------------- | |
| (=) Total Appraised Value: | = | $519,836 | |
| (–) Senior Exemption Loss: | – | $0 | |
| (–) Exemption Loss: | – | $0 | |
| | | -------------------------- | |
| (=) Taxable Value: | = | $519,836 | |
Taxing Jurisdiction
| Owner: | MATSON, CYNTHIA JANE | | |
| % Ownership: | 100.0000000000% | | |
| Total Value: | $519,836 | | |
| Tax Area: | 380 - APPRAISER-Cpvl Schl Dist, Special Dist, improved & less than 1 acre |
| CF | Conservation Futures | 0.0313996660 | $519,836 | $519,836 | $16.32 | | |
| CEM2 | Cemetery #2 | 0.0092609791 | $519,836 | $519,836 | $4.81 | | |
| FIRE5 | Fire & Rescue Dist #5 C Whidbey GEN | 1.1892169230 | $519,836 | $519,836 | $618.20 | | |
| FIRE5BOND | Fire & Rescue Dist #5 C Whidbey BOND | 0.1394359503 | $519,836 | $519,836 | $72.48 | | |
| HOBOND | Hospital BOND | 0.1893405597 | $519,836 | $519,836 | $98.43 | | |
| HOGEN | Hospital GEN | 0.3848777722 | $519,836 | $519,836 | $200.07 | | |
| CE | County Current Expense | 0.3674210519 | $519,836 | $519,836 | $191.00 | | |
| CR | County Roads | 0.4614296361 | $519,836 | $519,836 | $239.87 | | |
| ISLANDEMS | Hospital GEN (EMS) | 0.4952018576 | $519,836 | $519,836 | $257.42 | | |
| LIB | Library Sno-Isle GEN | 0.3039084203 | $519,836 | $519,836 | $157.98 | | |
| LIBCAP | Library Sno-Isle BOND (Cap Fac Imp Area) | 0.0528562629 | $519,836 | $519,836 | $27.48 | | |
| POCOUP | Port of Coupeville GEN | 0.1065226063 | $519,836 | $519,836 | $55.37 | | |
| POCOUPIDD | Port of Coupeville IDD | 0.3353038577 | $519,836 | $519,836 | $174.30 | | |
| COUPSDTECH | School 204 CP (TECH) | 0.1215123397 | $519,836 | $519,836 | $63.17 | | |
| SCH204MO | School 204 Enrichment | 0.6416662518 | $519,836 | $519,836 | $333.56 | | |
| ST | State School | 1.4761226122 | $519,836 | $519,836 | $767.34 | | |
| ST2 | State School Part 2 | 0.7953803475 | $519,836 | $519,836 | $413.47 | | |
| | Total Tax Rate: | 7.1008570943 | | | | | |
| | | | | Taxes w/Current Exemptions: | $3,691.27 | | |
| | | | | Taxes w/o Exemptions: | $3,691.27 | | |
Improvement / Building
| Improvement #1: | MANUFACTURED HOME | State Code: | Y | 1512.0 sqft | Value: | $199,836 |
| Bathrooms: | 0 | Bedrooms: | 0 | | Ceiling: | PLASTER PAINTED | Cooling: | EVAP NO DUCT | | Exterior Wall/Cover: | VINYL | Floor Covering: | CARPET 100% | | Floor Structure: | SLAB ON GRADE | Foundation: | SLAB | | Heating: | FHA ELECTRIC | Interior Finish: | PLASTER | | Plumbing Fixture Cnt: | 1 | Roof Slope: | FLAT | | Roof Structure/Cover: | CJ ALUMINIUM HEAVY |   |   |
|
| | Type | Description | Class CD | Sub Class CD | Year Built | Area |
| | BAS | BASE/MAIN FLOOR | 4 | 0 | 1995 | 1512.0 |
| | OWP | OPEN WOOD PORCH W/STEPS | 4 | 0 | 1995 | 83.0 |
| | OWP | OPEN WOOD PORCH W/STEPS | 4 | 0 | 1995 | 384.0 |
| | oUTI | UTILITY | 4 | 0 | 1995 | 1360.0 |
Sketch
Property Image
Land
| 1 | 15 | SQ (12001-21780) | 0.4346 | 18931.18 | 0.00 | 0.00 | 1.00 | $320,000 | $0 |
Roll Value History
| 2026 | N/A | N/A | N/A | N/A | N/A |
| 2025 | $199,836 | $320,000 | $0 | $519,836 | $519,836 |
| 2024 | $163,288 | $300,000 | $0 | $463,288 | $463,288 |
| 2023 | $149,641 | $300,000 | $0 | $449,641 | $449,641 |
| 2022 | $140,169 | $280,000 | $0 | $420,169 | $420,169 |
| 2021 | $128,847 | $155,000 | $0 | $283,847 | $283,847 |
| 2020 | $128,541 | $150,000 | $0 | $278,541 | $278,541 |
| 2019 | $110,405 | $180,000 | $0 | $290,405 | $290,405 |
| 2018 | $86,817 | $160,000 | $0 | $246,817 | $246,817 |
| 2017 | $88,648 | $150,000 | $0 | $238,648 | $238,648 |
| 2016 | $90,479 | $135,000 | $0 | $225,479 | $225,479 |
| 2015 | $92,310 | $85,000 | $0 | $177,310 | $177,310 |
| 2014 | $94,140 | $85,000 | $0 | $179,140 | $179,140 |
| 2013 | $95,971 | $85,000 | $0 | $180,971 | $180,971 |
| 2012 | $101,607 | $76,500 | $0 | $178,107 | $178,107 |
| 2011 | $103,372 | $90,000 | $0 | $193,372 | $193,372 |
| 2010 | $111,109 | $90,000 | $0 | $201,109 | $201,109 |
| 2009 | $115,828 | $90,000 | $0 | $205,828 | $205,828 |
| 2008 | $118,230 | $90,000 | $0 | $208,230 | $208,230 |
| 2007 | $121,527 | $90,000 | $0 | $211,527 | $211,527 |
Deed and Sales History
| 1 | 08/27/2025 | WD | Warranty Deed | MATSON, CYNTHIA JANE | WITTMIER, CYNTHNIA A | | | $610,000.00 | 64643 | 4590247 |
| 2 | 03/20/2018 | WD | Warranty Deed | TYLER, WESLEY L | MATSON, CYNTHIA JANE | | | $320,000.00 | 33467 | 4441640 |
| 3 | 12/15/2015 | QCD | Quit Claim Deed | TYLER, WESLEY L | TYLER, WESLEY L | | | $0.00 | 22514 | 4391148 |
| 4 | 12/01/1993 | WD | Warranty Deed | BARRETT, INGRID E | TYLER, WESLEY L | | | $33,500.00 | 34972 | 93025801 |
| 5 | 01/01/1900 | OTHER | Other - Misc. Documents | Unknown | BARRETT, INGRID E | | | $0.00 | 0 | 0 |
Payout Agreement
| No payout information available.. |