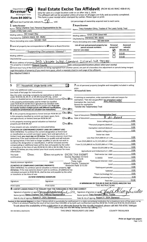
Property
Account |
| Property ID: | 239076 | Abbreviated Legal Description: | CROCKETT LK EST LOT 39 SL3B: BG MST SLY CR LOT 39 N42*W111.33' TPB N53*E198.60' N24*W99.35' S53*W229.91' S42*E98' TPB (TR 39B SP 75-087) |
| Geographic ID: | S6435-00-00039-3 | Agent Code: | |
| Type: | Real | | |
| Tax Area: | 380 - APPRAISER-Cpvl Schl Dist, Special Dist, improved & less than 1 acre | Land Use Code | 11 |
| Open Space: | N | DFL | N |
| Historic Property: | N | Remodel Property: | N |
| Multi-Family Redevelopment: | N | | |
| Township: | | Section: | |
| Range: | |
Location |
| Address: | 541 OLYMPIC VIEW DR COUPEVILLE, WA 98239 | Mapsco: | |
| Neighborhood: | Cycle 2 | Map ID: | 65 |
| Neighborhood CD: | 2 |
Owner |
| Name: | GOFF, LARRY D | Owner ID: | 192267 |
| Mailing Address: | SHELLEY A GOFF 541 OLYMPIC VIEW DR COUPEVILLE, WA 98239 | % Ownership: | 100.0000000000% |
| | | Exemptions: | |
Taxes and Assessment Details
Values
| (+) Improvement Homesite Value: | + | $0 | |
| (+) Improvement Non-Homesite Value: | + | $102,801 | |
| (+) Land Homesite Value: | + | $0 | |
| (+) Land Non-Homesite Value: | + | $270,000 | |
| (+) Curr Use (HS): | + | $0 | $0 |
| (+) Curr Use (NHS): | + | $0 | $0 |
| | | -------------------------- | |
| (=) Market Value: | = | $372,801 | |
| (–) Productivity Loss: | – | $0 | |
| | | -------------------------- | |
| (=) Subtotal: | = | $372,801 | |
| (+) Senior Appraised Value: | + | $0 | |
| (+) Non-Senior Appraised Value: | + | $372,801 | |
| | | -------------------------- | |
| (=) Total Appraised Value: | = | $372,801 | |
| (–) Senior Exemption Loss: | – | $0 | |
| (–) Exemption Loss: | – | $0 | |
| | | -------------------------- | |
| (=) Taxable Value: | = | $372,801 | |
Taxing Jurisdiction
| Owner: | GOFF, LARRY D | | |
| % Ownership: | 100.0000000000% | | |
| Total Value: | $372,801 | | |
| Tax Area: | 380 - APPRAISER-Cpvl Schl Dist, Special Dist, improved & less than 1 acre |
| CF | Conservation Futures | 0.0313996660 | $372,801 | $372,801 | $11.71 | | |
| CEM2 | Cemetery #2 | 0.0092609791 | $372,801 | $372,801 | $3.45 | | |
| FIRE5 | Fire & Rescue Dist #5 C Whidbey GEN | 1.1892169230 | $372,801 | $372,801 | $443.34 | | |
| FIRE5BOND | Fire & Rescue Dist #5 C Whidbey BOND | 0.1394359503 | $372,801 | $372,801 | $51.98 | | |
| HOBOND | Hospital BOND | 0.1893405597 | $372,801 | $372,801 | $70.59 | | |
| HOGEN | Hospital GEN | 0.3848777722 | $372,801 | $372,801 | $143.48 | | |
| CE | County Current Expense | 0.3674210519 | $372,801 | $372,801 | $136.97 | | |
| CR | County Roads | 0.4614296361 | $372,801 | $372,801 | $172.02 | | |
| ISLANDEMS | Hospital GEN (EMS) | 0.4952018576 | $372,801 | $372,801 | $184.61 | | |
| LIB | Library Sno-Isle GEN | 0.3039084203 | $372,801 | $372,801 | $113.30 | | |
| LIBCAP | Library Sno-Isle BOND (Cap Fac Imp Area) | 0.0528562629 | $372,801 | $372,801 | $19.70 | | |
| POCOUP | Port of Coupeville GEN | 0.1065226063 | $372,801 | $372,801 | $39.71 | | |
| POCOUPIDD | Port of Coupeville IDD | 0.3353038577 | $372,801 | $372,801 | $125.00 | | |
| COUPSDTECH | School 204 CP (TECH) | 0.1215123397 | $372,801 | $372,801 | $45.30 | | |
| SCH204MO | School 204 Enrichment | 0.6416662518 | $372,801 | $372,801 | $239.21 | | |
| ST | State School | 1.4761226122 | $372,801 | $372,801 | $550.30 | | |
| ST2 | State School Part 2 | 0.7953803475 | $372,801 | $372,801 | $296.52 | | |
| | Total Tax Rate: | 7.1008570943 | | | | | |
| | | | | Taxes w/Current Exemptions: | $2,647.19 | | |
| | | | | Taxes w/o Exemptions: | $2,647.19 | | |
Improvement / Building
| Improvement #1: | MANUFACTURED HOME | State Code: | Y | 1223.4 sqft | Value: | $102,801 |
| Bathrooms: | 0 | Bedrooms: | 0 | | Ceiling: | PLASTER PAINTED | Cooling: | EVAP NO DUCT | | Exterior Wall/Cover: | VINYL | Floor Covering: | CARPET 100% | | Floor Structure: | SLAB ON GRADE | Foundation: | SLAB | | Heating: | FHA ELECTRIC | Interior Finish: | PLASTER | | Plumbing Fixture Cnt: | 1 | Roof Slope: | FLAT | | Roof Structure/Cover: | CJ ALUMINIUM HEAVY |   |   |
|
| | Type | Description | Class CD | Sub Class CD | Year Built | Area |
| | BAS | BASE/MAIN FLOOR | 3 | 0 | 1994 | 1223.4 |
| | OWC | OPEN WOOD PORCH W/STEPS/ROOF/C | 3 | 0 | 1994 | 48.0 |
| | OWP | OPEN WOOD PORCH W/STEPS | 3 | 0 | 1994 | 208.0 |
| | OWR | OPEN WOOD PORCH W/STEPS/ROOF | 3 | 0 | 1994 | 70.0 |
| | DGR | DETACHED GARAGE | 3 | 0 | 1994 | 576.0 |
Sketch
Property Image
Land
| 1 | 15 | SQ (12001-21780) | 0.4780 | 20821.68 | 0.00 | 0.00 | 1.00 | $270,000 | $0 |
Roll Value History
| 2026 | N/A | N/A | N/A | N/A | N/A |
| 2025 | $102,801 | $270,000 | $0 | $372,801 | $372,801 |
| 2024 | $95,434 | $250,000 | $0 | $345,434 | $345,434 |
| 2023 | $97,889 | $220,000 | $0 | $317,889 | $317,889 |
| 2022 | $92,229 | $210,000 | $0 | $302,229 | $302,229 |
| 2021 | $85,270 | $140,000 | $0 | $225,270 | $225,270 |
| 2020 | $84,157 | $110,000 | $0 | $194,157 | $194,157 |
| 2019 | $70,853 | $150,000 | $0 | $220,853 | $220,853 |
| 2018 | $69,948 | $160,000 | $0 | $229,948 | $229,948 |
| 2017 | $71,453 | $150,000 | $0 | $221,453 | $221,453 |
| 2016 | $72,957 | $135,000 | $0 | $207,957 | $207,957 |
| 2015 | $74,464 | $85,000 | $0 | $159,464 | $159,464 |
| 2014 | $75,969 | $85,000 | $0 | $160,969 | $160,969 |
| 2013 | $77,474 | $85,000 | $0 | $162,474 | $162,474 |
| 2012 | $84,638 | $85,000 | $0 | $169,638 | $169,638 |
| 2011 | $86,082 | $100,000 | $0 | $186,082 | $186,082 |
| 2010 | $87,121 | $100,000 | $0 | $187,121 | $187,121 |
| 2009 | $89,653 | $90,000 | $0 | $179,653 | $179,653 |
| 2008 | $92,105 | $90,000 | $0 | $182,105 | $182,105 |
| 2007 | $94,609 | $90,000 | $0 | $184,609 | $184,609 |
Deed and Sales History
| 1 | 03/06/2009 | WD | Warranty Deed | COPE, CECIL C | COPE TTEE OF RICHARD COPE TRUS | | | $0.00 | 90513 | 0 |
| 2 | 02/28/2009 | WD | Warranty Deed | COPE TTEE OF RICHARD COPE TRUS | GOFF, LARRY D | | | $195,000.00 | 90514 | 4246111 |
| 3 | 03/22/2004 | QCD | Quit Claim Deed | COPE, CECIL C | COPE, CECIL C | | | $0.00 | 41064 | 4094655 |
| 4 | 09/04/2001 | WD | Warranty Deed | CEDERGREEN, RICHARD W | COPE, CECIL C | | | $140,000.00 | 13489 | 20042451 |
| 5 | 09/01/1997 | OTHER | Other - Misc. Documents | CEDERGREEN, RICHARD W | CEDERGREEN, RICHARD W | | | $43,517.00 | 72999 | 0 |
| 6 | 08/01/1997 | WD | Warranty Deed | MCCLARD, BERT G | CEDERGREEN, RICHARD W | | | $76,473.00 | 72998 | 97014217 |
| 7 | 05/01/1997 | QCD | Quit Claim Deed | MCCLARD, BERT G | MCCLARD, BERT G | | | $0.00 | 71608 | 97007259 |
| 8 | 08/01/1994 | WD | Warranty Deed | WARNICK, RICHARD L | MCCLARD, BERT G | | | $35,000.00 | 43520 | 94018707 |
| 9 | 12/01/1979 | EZ | Easement | SIMOKAT, WALTER E | WARNICK, RICHARD L | | | $19,700.00 | 95918 | 363235 |
| 10 | 10/01/1978 | OTHER | Other - Misc. Documents | MCCLARD, BERT G | SIMOKAT, WALTER E | | | $14,500.00 | 85277 | 342013 |
| 11 | 01/01/1900 | OTHER | Other - Misc. Documents | Unknown | MCCLARD, BERT G | | | $0.00 | 0 | 0 |
Payout Agreement
| No payout information available.. |