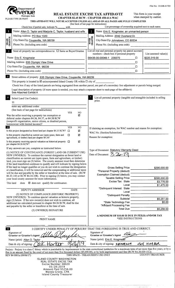
Property
Account |
| Property ID: | 239370 | Abbreviated Legal Description: | CROCKETT LK EST LOT 48-SL 1A: W80' OF LOT 48 MEAS AT R/A WITH WLN |
| Geographic ID: | S6435-00-00048-1 | Agent Code: | |
| Type: | Real | | |
| Tax Area: | 380 - APPRAISER-Cpvl Schl Dist, Special Dist, improved & less than 1 acre | Land Use Code | 11 |
| Open Space: | N | DFL | N |
| Historic Property: | N | Remodel Property: | N |
| Multi-Family Redevelopment: | N | | |
| Township: | | Section: | |
| Range: | |
Location |
| Address: | 635 OLYMPIC VIEW DR COUPEVILLE, WA 98239 | Mapsco: | |
| Neighborhood: | Cycle 2 | Map ID: | 64 |
| Neighborhood CD: | 2 |
Owner |
| Name: | KROGMEIER, ERIC E | Owner ID: | 289304 |
| Mailing Address: | 635 OLYMPIC VIEW DR COUPEVILLE, WA 98239 | % Ownership: | 100.0000000000% |
| | | Exemptions: | |
Taxes and Assessment Details
Values
| (+) Improvement Homesite Value: | + | $0 | |
| (+) Improvement Non-Homesite Value: | + | $176,957 | |
| (+) Land Homesite Value: | + | $0 | |
| (+) Land Non-Homesite Value: | + | $230,000 | |
| (+) Curr Use (HS): | + | $0 | $0 |
| (+) Curr Use (NHS): | + | $0 | $0 |
| | | -------------------------- | |
| (=) Market Value: | = | $406,957 | |
| (–) Productivity Loss: | – | $0 | |
| | | -------------------------- | |
| (=) Subtotal: | = | $406,957 | |
| (+) Senior Appraised Value: | + | $0 | |
| (+) Non-Senior Appraised Value: | + | $406,957 | |
| | | -------------------------- | |
| (=) Total Appraised Value: | = | $406,957 | |
| (–) Senior Exemption Loss: | – | $0 | |
| (–) Exemption Loss: | – | $0 | |
| | | -------------------------- | |
| (=) Taxable Value: | = | $406,957 | |
Taxing Jurisdiction
| Owner: | KROGMEIER, ERIC E | | |
| % Ownership: | 100.0000000000% | | |
| Total Value: | $406,957 | | |
| Tax Area: | 380 - APPRAISER-Cpvl Schl Dist, Special Dist, improved & less than 1 acre |
| CF | Conservation Futures | 0.0313996660 | $406,957 | $406,957 | $12.78 | | |
| CEM2 | Cemetery #2 | 0.0092609791 | $406,957 | $406,957 | $3.77 | | |
| FIRE5 | Fire & Rescue Dist #5 C Whidbey GEN | 1.1892169230 | $406,957 | $406,957 | $483.96 | | |
| FIRE5BOND | Fire & Rescue Dist #5 C Whidbey BOND | 0.1394359503 | $406,957 | $406,957 | $56.74 | | |
| HOBOND | Hospital BOND | 0.1893405597 | $406,957 | $406,957 | $77.05 | | |
| HOGEN | Hospital GEN | 0.3848777722 | $406,957 | $406,957 | $156.63 | | |
| CE | County Current Expense | 0.3674210519 | $406,957 | $406,957 | $149.52 | | |
| CR | County Roads | 0.4614296361 | $406,957 | $406,957 | $187.78 | | |
| ISLANDEMS | Hospital GEN (EMS) | 0.4952018576 | $406,957 | $406,957 | $201.53 | | |
| LIB | Library Sno-Isle GEN | 0.3039084203 | $406,957 | $406,957 | $123.68 | | |
| LIBCAP | Library Sno-Isle BOND (Cap Fac Imp Area) | 0.0528562629 | $406,957 | $406,957 | $21.51 | | |
| POCOUP | Port of Coupeville GEN | 0.1065226063 | $406,957 | $406,957 | $43.35 | | |
| POCOUPIDD | Port of Coupeville IDD | 0.3353038577 | $406,957 | $406,957 | $136.45 | | |
| COUPSDTECH | School 204 CP (TECH) | 0.1215123397 | $406,957 | $406,957 | $49.45 | | |
| SCH204MO | School 204 Enrichment | 0.6416662518 | $406,957 | $406,957 | $261.13 | | |
| ST | State School | 1.4761226122 | $406,957 | $406,957 | $600.72 | | |
| ST2 | State School Part 2 | 0.7953803475 | $406,957 | $406,957 | $323.69 | | |
| | Total Tax Rate: | 7.1008570943 | | | | | |
| | | | | Taxes w/Current Exemptions: | $2,889.74 | | |
| | | | | Taxes w/o Exemptions: | $2,889.74 | | |
Improvement / Building
| Improvement #1: | MANUFACTURED HOME | State Code: | Y | 1615.4 sqft | Value: | $176,957 |
| Bathrooms: | 0 | Bedrooms: | 0 | | Ceiling: | PLASTER PAINTED | Cooling: | EVAP NO DUCT | | Exterior Wall/Cover: | VINYL | Floor Covering: | CARPET 100% | | Floor Structure: | SLAB ON GRADE | Foundation: | SLAB | | Heating: | FHA ELECTRIC | Interior Finish: | PLASTER | | Plumbing Fixture Cnt: | 1 | Roof Slope: | FLAT | | Roof Structure/Cover: | CJ ALUMINIUM HEAVY |   |   |
|
| | Type | Description | Class CD | Sub Class CD | Year Built | Area |
| | BAS | BASE/MAIN FLOOR | 4 | 0 | 1998 | 1615.4 |
| | OWP | OPEN WOOD PORCH W/STEPS | 4 | 0 | 1998 | 128.0 |
| | OWP | OPEN WOOD PORCH W/STEPS | 4 | 0 | 1998 | 100.0 |
| | oUTI | UTILITY | 3 | 0 | 1998 | 1080.0 |
| | oGAR | GARAGE | 3 | 0 | 1998 | 480.0 |
Sketch
Property Image
Land
| 1 | 16 | AC (00.51-01.00) | 0.5600 | 24393.60 | 0.00 | 0.00 | 1.00 | $230,000 | $0 |
Roll Value History
| 2026 | N/A | N/A | N/A | N/A | N/A |
| 2025 | $176,957 | $230,000 | $0 | $406,957 | $406,957 |
| 2024 | $164,217 | $250,000 | $0 | $414,217 | $414,217 |
| 2023 | $150,998 | $220,000 | $0 | $370,998 | $370,998 |
| 2022 | $141,820 | $210,000 | $0 | $351,820 | $351,820 |
| 2021 | $130,864 | $140,000 | $0 | $270,864 | $270,864 |
| 2020 | $130,556 | $110,000 | $0 | $240,556 | $240,556 |
| 2019 | $112,999 | $150,000 | $0 | $262,999 | $262,999 |
| 2018 | $105,319 | $115,000 | $0 | $220,319 | $220,319 |
| 2017 | $107,159 | $100,000 | $0 | $207,159 | $207,159 |
| 2016 | $109,019 | $75,000 | $0 | $184,019 | $184,019 |
| 2015 | $109,948 | $65,000 | $0 | $174,948 | $174,948 |
| 2014 | $110,878 | $65,000 | $0 | $175,878 | $175,878 |
| 2013 | $112,737 | $65,000 | $0 | $177,737 | $177,737 |
| 2012 | $141,013 | $68,000 | $0 | $209,013 | $209,013 |
| 2011 | $143,416 | $80,000 | $0 | $223,416 | $223,416 |
| 2010 | $157,584 | $80,000 | $0 | $237,584 | $237,584 |
| 2009 | $163,772 | $80,000 | $0 | $243,772 | $243,772 |
| 2008 | $169,052 | $80,000 | $0 | $249,052 | $249,052 |
| 2007 | $171,384 | $80,000 | $0 | $251,384 | $251,384 |
Deed and Sales History
| 1 | 04/18/2019 | WD | Warranty Deed | TAYLOR, ALLEN D | KROGMEIER, ERIC E | | | $295,000.00 | 38020 | |
| 2 | 01/29/1999 | PACD | Purchaser's Assignment | TAYLOR, ALLEN D | TAYLOR, ALLEN D | | | $71,105.00 | 0 | 0 |
| 3 | 06/03/1998 | WD | Warranty Deed | Unknown | TAYLOR, ALLEN D | | | $0.00 | 82329 | 98012091 |
| 4 | 06/03/1998 | WD | Warranty Deed | TAYLOR, ALLEN D | TAYLOR, ALLEN D | | | $33,500.00 | 82296 | 98011984 |
| 5 | 02/01/1998 | PRD | Personal Representatives Deed | REGGIATORE, JOSEPH | REGGIATORE, MARIE L | | | $0.00 | 81038 | 98005775 |
| 6 | 02/01/1998 | QCD | Quit Claim Deed | REGGIATORE, ERNEST | REGGIATORE, JOSEPH | | | $0.00 | 81039 | 98005776 |
| 7 | 11/01/1989 | WD | Warranty Deed | ANDERSON, DONALD R | REGGIATORE, ERNEST | | | $15,500.00 | 95622 | 89018073 |
| 8 | 04/01/1988 | WD | Warranty Deed | MELLE, M M | ANDERSON, DONALD R | | | $12,000.00 | 81284 | 88004878 |
| 9 | 05/01/1976 | EZ | Easement | Unknown | MELLE, M M | | | $0.00 | 61825 | 0 |
| 10 | 01/01/1900 | OTHER | Other - Misc. Documents | Unknown | CAMPBELL, VERN C | | | $0.00 | 0 | 0 |
Payout Agreement
| No payout information available.. |