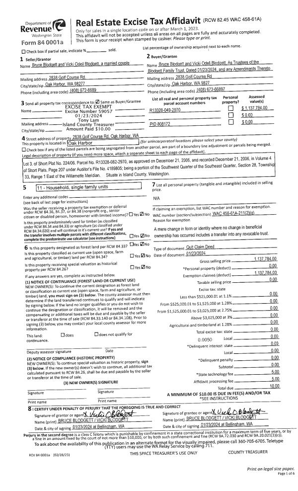
Property
Account |
| Property ID: | 240563 | Abbreviated Legal Description: | CROSSWOODS 4 LOT 52 |
| Geographic ID: | S6440-04-00052-0 | Agent Code: | |
| Type: | Real | | |
| Tax Area: | 110 - APPRAISER-OH Schl Dist, outside OH, improved & 1 acre or less | Land Use Code | 11 |
| Open Space: | N | DFL | N |
| Historic Property: | N | Remodel Property: | N |
| Multi-Family Redevelopment: | N | | |
| Township: | | Section: | |
| Range: | |
Location |
| Address: | 1234 LIBERTY LN OAK HARBOR, WA 98277 | Mapsco: | |
| Neighborhood: | Cycle 1 | Map ID: | 95 |
| Neighborhood CD: | 1 |
Owner |
| Name: | MAGORRIAN, SEAN P | Owner ID: | 44093 |
| Mailing Address: | 1234 LIBERTY LN OAK HARBOR, WA 98277-8882 | % Ownership: | 100.0000000000% |
| | | Exemptions: | |
Taxes and Assessment Details
Values
| (+) Improvement Homesite Value: | + | $0 | |
| (+) Improvement Non-Homesite Value: | + | $294,011 | |
| (+) Land Homesite Value: | + | $0 | |
| (+) Land Non-Homesite Value: | + | $220,000 | |
| (+) Curr Use (HS): | + | $0 | $0 |
| (+) Curr Use (NHS): | + | $0 | $0 |
| | | -------------------------- | |
| (=) Market Value: | = | $514,011 | |
| (–) Productivity Loss: | – | $0 | |
| | | -------------------------- | |
| (=) Subtotal: | = | $514,011 | |
| (+) Senior Appraised Value: | + | $0 | |
| (+) Non-Senior Appraised Value: | + | $514,011 | |
| | | -------------------------- | |
| (=) Total Appraised Value: | = | $514,011 | |
| (–) Senior Exemption Loss: | – | $0 | |
| (–) Exemption Loss: | – | $0 | |
| | | -------------------------- | |
| (=) Taxable Value: | = | $514,011 | |
Taxing Jurisdiction
| Owner: | MAGORRIAN, SEAN P | | |
| % Ownership: | 100.0000000000% | | |
| Total Value: | $514,011 | | |
| Tax Area: | 110 - APPRAISER-OH Schl Dist, outside OH, improved & 1 acre or less |
| CF | Conservation Futures | 0.0313996660 | $514,011 | $514,011 | $16.14 | | |
| CEM1 | Cemetery #1 | 0.0040018856 | $514,011 | $514,011 | $2.06 | | |
| FIRE2 | Fire & Rescue Dist #2 N Whidbey GEN | 0.5381486274 | $514,011 | $514,011 | $276.61 | | |
| HOBOND | Hospital BOND | 0.1893405597 | $514,011 | $514,011 | $97.32 | | |
| HOGEN | Hospital GEN | 0.3848777722 | $514,011 | $514,011 | $197.83 | | |
| CE | County Current Expense | 0.3674210519 | $514,011 | $514,011 | $188.86 | | |
| CR | County Roads | 0.4614296361 | $514,011 | $514,011 | $237.18 | | |
| ISLANDEMS | Hospital GEN (EMS) | 0.4952018576 | $514,011 | $514,011 | $254.54 | | |
| LIB | Library Sno-Isle GEN | 0.3039084203 | $514,011 | $514,011 | $156.21 | | |
| NWHIDPRMT | P & R N Whidbey GEN | 0.1990272349 | $514,011 | $514,011 | $102.30 | | |
| SCH201MO | School 201 Enrichment | 2.3851112745 | $514,011 | $514,011 | $1,225.97 | | |
| ST | State School | 1.4761226122 | $514,011 | $514,011 | $758.74 | | |
| ST2 | State School Part 2 | 0.7953803475 | $514,011 | $514,011 | $408.83 | | |
| | Total Tax Rate: | 7.6313709459 | | | | | |
| | | | | Taxes w/Current Exemptions: | $3,922.59 | | |
| | | | | Taxes w/o Exemptions: | $3,922.59 | | |
Improvement / Building
| Improvement #1: | RESIDENTIAL | State Code: | Y | 1929.0 sqft | Value: | $294,011 |
| Bathrooms: | 2.5 | Bedrooms: | 3 | | Ceiling: | DRY WALL SPRAYED | Exterior Wall/Cover: | CEMENT FIBER | | Floor Covering: | CARPET/VINYL 80-20 | Floor Structure: | WOOD W/SUBFLOOR | | Foundation: | CONCRETE | Heating: | BASEBOARD ELECTRIC | | Interior Finish: | DRYWALL PAINT | Plumbing Fixture Cnt: | 11 | | Roof Slope: | 4" IN 12" | Roof Structure/Cover: | CJ ASPHALT |
|
| | Type | Description | Class CD | Sub Class CD | Year Built | Area |
| | BAS | BASE/MAIN FLOOR | 3 | 0 | 1979 | 1137.0 |
| | OP3 | OPEN PORCH W/ROOF | 3 | 0 | 1979 | 60.0 |
| | AGR | ATTACHED GARAGE | 3 | 0 | 1979 | 495.0 |
| | UPS | UPPER STORY | 3 | 0 | 1979 | 792.0 |
| | OWP | OPEN WOOD PORCH W/STEPS | 3 | 0 | 1979 | 503.0 |
| | OWR | OPEN WOOD PORCH W/STEPS/ROOF | 3 | 0 | 1979 | 35.0 |
Sketch
Property Image
Land
| 1 | 14 | SQ (08001-12000) | 0.0000 | 0.00 | 0.00 | 0.00 | 1.00 | $220,000 | $0 |
Roll Value History
| 2026 | N/A | N/A | N/A | N/A | N/A |
| 2025 | $294,011 | $220,000 | $0 | $514,011 | $514,011 |
| 2024 | $304,310 | $190,000 | $0 | $494,310 | $494,310 |
| 2023 | $296,431 | $200,000 | $0 | $496,431 | $496,431 |
| 2022 | $271,988 | $180,000 | $0 | $451,988 | $451,988 |
| 2021 | $239,611 | $125,000 | $0 | $364,611 | $364,611 |
| 2020 | $233,689 | $100,000 | $0 | $333,689 | $333,689 |
| 2019 | $176,070 | $150,000 | $0 | $326,070 | $326,070 |
| 2018 | $176,624 | $130,000 | $0 | $306,624 | $306,624 |
| 2017 | $169,965 | $120,000 | $0 | $289,965 | $289,965 |
| 2016 | $172,171 | $90,000 | $0 | $262,171 | $262,171 |
| 2015 | $174,379 | $70,000 | $0 | $244,379 | $244,379 |
| 2014 | $176,587 | $55,000 | $0 | $231,587 | $231,587 |
| 2013 | $178,794 | $55,000 | $0 | $233,794 | $233,794 |
| 2012 | $181,001 | $65,000 | $0 | $246,001 | $246,001 |
| 2011 | $182,478 | $50,000 | $0 | $232,478 | $232,478 |
| 2010 | $192,729 | $50,000 | $0 | $242,729 | $242,729 |
| 2009 | $200,910 | $75,000 | $0 | $275,910 | $275,910 |
| 2008 | $203,282 | $100,000 | $0 | $303,282 | $303,282 |
| 2007 | $205,691 | $100,000 | $0 | $305,691 | $305,691 |
Deed and Sales History
| 1 | 05/01/1988 | WD | Warranty Deed | PALMER, FRANK L | MAGORRIAN, SEAN P | | | $81,500.00 | 81669 | 88006279 |
| 2 | 05/01/1979 | WD | Warranty Deed | HAMMING, GORDON | PALMER, FRANK L | | | $12,000.00 | 92709 | 353446 |
| 3 | 01/01/1900 | OTHER | Other - Misc. Documents | Unknown | HAMMING, GORDON | | | $0.00 | 0 | 0 |
Payout Agreement
| No payout information available.. |