Property
Account |
| Property ID: | 241330 | Abbreviated Legal Description: | DEC PK VU 1 LOT 15 |
| Geographic ID: | S6455-00-00015-0 | Agent Code: | |
| Type: | Real | | |
| Tax Area: | 110 - APPRAISER-OH Schl Dist, outside OH, improved & 1 acre or less | Land Use Code | 11 |
| Open Space: | N | DFL | N |
| Historic Property: | N | Remodel Property: | N |
| Multi-Family Redevelopment: | N | | |
| Township: | | Section: | |
| Range: | |
Location |
| Address: | 5051 DECEPTION CIR OAK HARBOR, WA 98277 | Mapsco: | |
| Neighborhood: | Cycle 6 | Map ID: | 273 |
| Neighborhood CD: | 6 |
Owner |
| Name: | STEIN, ALLISON ELAINE | Owner ID: | 311677 |
| Mailing Address: | 5051 DECEPTION CIR OAK HARBOR, WA 98277 | % Ownership: | 100.0000000000% |
| | | Exemptions: | |
Taxes and Assessment Details
Values
| (+) Improvement Homesite Value: | + | N/A | |
| (+) Improvement Non-Homesite Value: | + | N/A | |
| (+) Land Homesite Value: | + | N/A | |
| (+) Land Non-Homesite Value: | + | N/A | Ag / Timber Use Value |
| (+) Curr Use (HS): | + | N/A | N/A |
| (+) Curr Use (NHS): | + | N/A | N/A |
| | | -------------------------- | |
| (=) Market Value: | = | N/A | |
| (–) Productivity Loss: | – | N/A | |
| | | -------------------------- | |
| (=) Subtotal: | = | N/A | |
| (+) Senior Appraised Value: | + | N/A | |
| (+) Non-Senior Appraised Value: | + | N/A | |
| | | -------------------------- | |
| (=) Total Appraised Value: | = | N/A | |
| (–) Senior Exemption Loss: | – | N/A | |
| (–) Exemption Loss: | – | N/A | |
| | | -------------------------- | |
| (=) Taxable Value: | = | N/A | |
Taxing Jurisdiction
| Owner: | STEIN, ALLISON ELAINE | | |
| % Ownership: | 100.0000000000% | | |
| Total Value: | N/A | | |
| Tax Area: | 110 - APPRAISER-OH Schl Dist, outside OH, improved & 1 acre or less |
| CF | Conservation Futures | N/A | N/A | N/A | N/A | | |
| WCD | Whidbey Conservation District | N/A | N/A | N/A | N/A | | |
| CEM1 | Cemetery #1 | N/A | N/A | N/A | N/A | | |
| FIRE2 | Fire & Rescue Dist #2 N Whidbey GEN | N/A | N/A | N/A | N/A | | |
| HOBOND | Hospital BOND | N/A | N/A | N/A | N/A | | |
| HOGEN | Hospital GEN | N/A | N/A | N/A | N/A | | |
| CE | County Current Expense | N/A | N/A | N/A | N/A | | |
| CR | County Roads | N/A | N/A | N/A | N/A | | |
| ISLANDEMS | Hospital GEN (EMS) | N/A | N/A | N/A | N/A | | |
| LIB | Library Sno-Isle GEN | N/A | N/A | N/A | N/A | | |
| NWHIDPRMT | P & R N Whidbey GEN | N/A | N/A | N/A | N/A | | |
| SCH201MO | School 201 Enrichment | N/A | N/A | N/A | N/A | | |
| ST | State School | N/A | N/A | N/A | N/A | | |
| ST2 | State School Part 2 | N/A | N/A | N/A | N/A | | |
| | Total Tax Rate: | N/A | | | | | |
| | | | | Taxes w/Current Exemptions: | N/A | | |
| | | | | Taxes w/o Exemptions: | N/A | | |
Improvement / Building
| Improvement #1: | RESIDENTIAL | State Code: | Y | 1632.0 sqft | Value: | N/A |
| Bathrooms: | 2 | Bedrooms: | 3 | | Ceiling: | DRYWALL PAINTED | Cooling: | HEAT PUMP/CONV/V | | Exterior Wall/Cover: | CEMENT FIBER | Floor Covering: | CARPET/VINYL 20-80 | | Floor Structure: | WOOD W/SUBFLOOR | Foundation: | CONCRETE | | Interior Finish: | DRYWALL PAINT | Plumbing Fixture Cnt: | 10 | | Roof Slope: | 4" IN 12" | Roof Structure/Cover: | CJ ASPHALT |
|
| | Type | Description | Class CD | Sub Class CD | Year Built | Area |
| | BAS | BASE/MAIN FLOOR | 3 | 0 | 2020 | 1632.0 |
| | AGR | ATTACHED GARAGE | 3 | 0 | 2020 | 484.0 |
| | OWP | OPEN WOOD PORCH W/STEPS | 3 | 0 | 2020 | 160.0 |
| | OWP | OPEN WOOD PORCH W/STEPS | 3 | 0 | 2020 | 242.0 |
Sketch
Property Image
Land
| 1 | 14 | SQ (08001-12000) | 0.0000 | 0.00 | 0.00 | 0.00 | 1.00 | N/A | N/A |
Roll Value History
| 2026 | N/A | N/A | N/A | N/A | N/A |
| 2025 | $323,827 | $200,000 | $0 | $523,827 | $523,827 |
| 2024 | $326,417 | $180,000 | $0 | $506,417 | $506,417 |
| 2023 | $329,008 | $180,000 | $0 | $509,008 | $509,008 |
| 2022 | $286,323 | $150,000 | $0 | $436,323 | $436,323 |
| 2021 | $253,501 | $100,000 | $0 | $353,501 | $353,501 |
| 2020 | $21,899 | $40,000 | $0 | $61,899 | $61,899 |
| 2019 | $0 | $40,000 | $0 | $40,000 | $40,000 |
| 2018 | $0 | $5,000 | $0 | $5,000 | $5,000 |
| 2017 | $0 | $5,000 | $0 | $5,000 | $5,000 |
| 2016 | $0 | $5,000 | $0 | $5,000 | $5,000 |
| 2015 | $0 | $5,000 | $0 | $5,000 | $5,000 |
| 2014 | $0 | $5,000 | $0 | $5,000 | $5,000 |
| 2013 | $0 | $5,000 | $0 | $5,000 | $5,000 |
| 2012 | $0 | $6,000 | $0 | $6,000 | $6,000 |
| 2011 | $0 | $6,000 | $0 | $6,000 | $6,000 |
| 2010 | $0 | $6,000 | $0 | $6,000 | $6,000 |
| 2009 | $0 | $6,000 | $0 | $6,000 | $6,000 |
| 2008 | $0 | $10,000 | $0 | $10,000 | $10,000 |
| 2007 | $0 | $18,000 | $0 | $18,000 | $18,000 |
Deed and Sales History
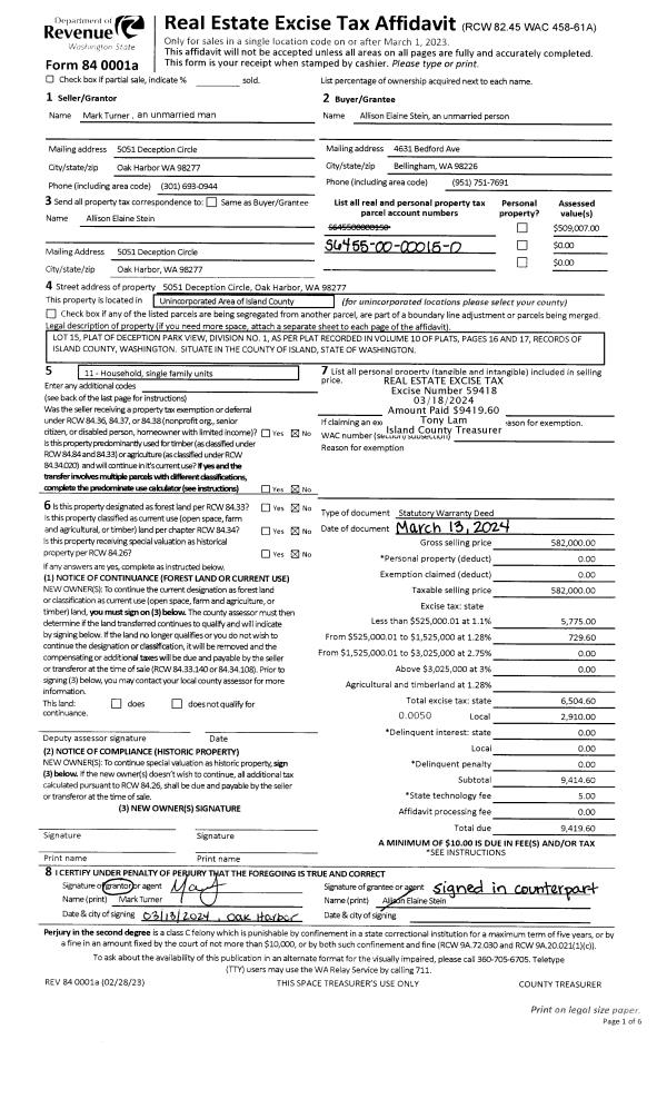
| 1 | 03/13/2024 | WD | Warranty Deed | TURNER, MARK | STEIN, ALLISON ELAINE | | | $582,000.00 | 59418 | 4570326 |
| 2 | 04/19/2021 | WD | Warranty Deed | KINGS MEN CONSTRUCTION | TURNER, MARK | | | $465,000.00 | 47921 | 4517290 |
| 3 | 09/25/2019 | WD | Warranty Deed | FAKKEMA, ROBERT P | KINGS MEN CONSTRUCTION | | | $28,000.00 | 40452 | 4472278 |
|   | |
| 4 | 12/01/1982 | QCD | Quit Claim Deed | FAKKEMA, R P | FAKKEMA, ROBERT P | | | $0.00 | 23099 | 404066 |
| 5 | 01/01/1900 | OTHER | Other - Misc. Documents | Unknown | FAKKEMA, R P | | | $0.00 | 0 | 0 |
Payout Agreement
| No payout information available.. |