Property
Account |
| Property ID: | 241429 | Abbreviated Legal Description: | DEC PK VU 1 LOT 24 |
| Geographic ID: | S6455-00-00024-0 | Agent Code: | |
| Type: | Real | | |
| Tax Area: | 119 - APPRAISER-OH Schl Dist, outside OH, vacant & 50 acres or less | Land Use Code | 99 |
| Open Space: | N | DFL | N |
| Historic Property: | N | Remodel Property: | N |
| Multi-Family Redevelopment: | N | | |
| Township: | | Section: | |
| Range: | |
Location |
| Address: | DECEPTION CIR OAK HARBOR, WA 98277 | Mapsco: | |
| Neighborhood: | Cycle 6 | Map ID: | 273 |
| Neighborhood CD: | 6 |
Owner |
| Name: | PARSONS TTEE, STEVEN P | Owner ID: | 315186 |
| Mailing Address: | JUNE R PARSONS TTEE 1961 WALLAPAI DR LAKE HAVASU CITY, AZ 86403 | % Ownership: | 100.0000000000% |
| | | Exemptions: | |
Taxes and Assessment Details
Values
| (+) Improvement Homesite Value: | + | $0 | |
| (+) Improvement Non-Homesite Value: | + | $0 | |
| (+) Land Homesite Value: | + | $0 | |
| (+) Land Non-Homesite Value: | + | $50,000 | |
| (+) Curr Use (HS): | + | $0 | $0 |
| (+) Curr Use (NHS): | + | $0 | $0 |
| | | -------------------------- | |
| (=) Market Value: | = | $50,000 | |
| (–) Productivity Loss: | – | $0 | |
| | | -------------------------- | |
| (=) Subtotal: | = | $50,000 | |
| (+) Senior Appraised Value: | + | $0 | |
| (+) Non-Senior Appraised Value: | + | $50,000 | |
| | | -------------------------- | |
| (=) Total Appraised Value: | = | $50,000 | |
| (–) Senior Exemption Loss: | – | $0 | |
| (–) Exemption Loss: | – | $0 | |
| | | -------------------------- | |
| (=) Taxable Value: | = | $50,000 | |
Taxing Jurisdiction
| Owner: | PARSONS TTEE, STEVEN P | | |
| % Ownership: | 100.0000000000% | | |
| Total Value: | $50,000 | | |
| Tax Area: | 119 - APPRAISER-OH Schl Dist, outside OH, vacant & 50 acres or less |
| CF | Conservation Futures | 0.0313996660 | $50,000 | $50,000 | $1.57 | | |
| CEM1 | Cemetery #1 | 0.0040018856 | $50,000 | $50,000 | $0.20 | | |
| HOBOND | Hospital BOND | 0.1893405597 | $50,000 | $50,000 | $9.47 | | |
| HOGEN | Hospital GEN | 0.3848777722 | $50,000 | $50,000 | $19.24 | | |
| CE | County Current Expense | 0.3674210519 | $50,000 | $50,000 | $18.37 | | |
| CR | County Roads | 0.4614296361 | $50,000 | $50,000 | $23.07 | | |
| ISLANDEMS | Hospital GEN (EMS) | 0.4952018576 | $50,000 | $50,000 | $24.76 | | |
| LIB | Library Sno-Isle GEN | 0.3039084203 | $50,000 | $50,000 | $15.20 | | |
| NWHIDPRMT | P & R N Whidbey GEN | 0.1990272349 | $50,000 | $50,000 | $9.95 | | |
| SCH201MO | School 201 Enrichment | 2.3851112745 | $50,000 | $50,000 | $119.26 | | |
| ST | State School | 1.4761226122 | $50,000 | $50,000 | $73.81 | | |
| ST2 | State School Part 2 | 0.7953803475 | $50,000 | $50,000 | $39.77 | | |
| | Total Tax Rate: | 7.0932223185 | | | | | |
| | | | | Taxes w/Current Exemptions: | $354.67 | | |
| | | | | Taxes w/o Exemptions: | $354.67 | | |
Improvement / Building
Sketch
| No sketches available for this property. |
Property Image
Land
| 1 | 14 | SQ (08001-12000) | 0.0000 | 0.00 | 0.00 | 0.00 | 1.00 | $50,000 | $0 |
Roll Value History
| 2026 | N/A | N/A | N/A | N/A | N/A |
| 2025 | $0 | $50,000 | $0 | $50,000 | $50,000 |
| 2024 | $0 | $50,000 | $0 | $50,000 | $50,000 |
| 2023 | $0 | $50,000 | $0 | $50,000 | $50,000 |
| 2022 | $0 | $40,000 | $0 | $40,000 | $40,000 |
| 2021 | $0 | $40,000 | $0 | $40,000 | $40,000 |
| 2020 | $0 | $40,000 | $0 | $40,000 | $40,000 |
| 2019 | $0 | $40,000 | $0 | $40,000 | $40,000 |
| 2018 | $0 | $5,000 | $0 | $5,000 | $5,000 |
| 2017 | $0 | $5,000 | $0 | $5,000 | $5,000 |
| 2016 | $0 | $5,000 | $0 | $5,000 | $5,000 |
| 2015 | $0 | $5,000 | $0 | $5,000 | $5,000 |
| 2014 | $0 | $5,000 | $0 | $5,000 | $5,000 |
| 2013 | $0 | $35,000 | $0 | $35,000 | $35,000 |
| 2012 | $0 | $39,950 | $0 | $39,950 | $39,950 |
| 2011 | $0 | $39,950 | $0 | $39,950 | $39,950 |
| 2010 | $0 | $39,950 | $0 | $39,950 | $39,950 |
| 2009 | $0 | $39,950 | $0 | $39,950 | $39,950 |
| 2008 | $0 | $60,050 | $0 | $60,050 | $60,050 |
| 2007 | $0 | $39,000 | $0 | $39,000 | $39,000 |
Deed and Sales History
| 1 | 01/17/2025 | WD | Warranty Deed | SCHROEDER TRUSTEE, FRANZ MICHAEL | PARSONS TTEE, STEVEN P | | | $80,000.00 | 62358 | 4581449 |
|   | |
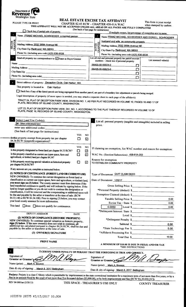
| 2 | 09/23/2024 | QCD | Quit Claim Deed | SCHROEDER, FRANZ MICHAEL | SCHROEDER TRUSTEE, FRANZ MICHAEL | | | | 28552 | 4419392 |
| 3 | 09/23/2024 | QCD | Quit Claim Deed | SCHROEDER, FRANZ M | SCHROEDER, FRANZ MICHAEL | | | | 28375 | 4418623 |
Payout Agreement
| No payout information available.. |