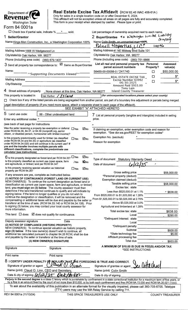
Property
Account |
| Property ID: | 241740 | Abbreviated Legal Description: | DEC PK VU 1 LOT 56 DRAINFIELD FOR LOT 14 AF#96000140 |
| Geographic ID: | S6455-00-00056-0 | Agent Code: | |
| Type: | Real | | |
| Tax Area: | 119 - APPRAISER-OH Schl Dist, outside OH, vacant & 50 acres or less | Land Use Code | 99 |
| Open Space: | N | DFL | N |
| Historic Property: | N | Remodel Property: | N |
| Multi-Family Redevelopment: | N | | |
| Township: | | Section: | |
| Range: | |
Location |
| Address: | | Mapsco: | |
| Neighborhood: | Cycle 6 | Map ID: | 273 |
| Neighborhood CD: | 6 |
Owner |
| Name: | POLNELL PROPERTIES, LLC | Owner ID: | 317167 |
| Mailing Address: | 41 NE MIDWAY BLVD SUITE 101 OAK HARBOR, WA 98277 | % Ownership: | 100.0000000000% |
| | | Exemptions: | |
Taxes and Assessment Details
Values
| (+) Improvement Homesite Value: | + | N/A | |
| (+) Improvement Non-Homesite Value: | + | N/A | |
| (+) Land Homesite Value: | + | N/A | |
| (+) Land Non-Homesite Value: | + | N/A | Ag / Timber Use Value |
| (+) Curr Use (HS): | + | N/A | N/A |
| (+) Curr Use (NHS): | + | N/A | N/A |
| | | -------------------------- | |
| (=) Market Value: | = | N/A | |
| (–) Productivity Loss: | – | N/A | |
| | | -------------------------- | |
| (=) Subtotal: | = | N/A | |
| (+) Senior Appraised Value: | + | N/A | |
| (+) Non-Senior Appraised Value: | + | N/A | |
| | | -------------------------- | |
| (=) Total Appraised Value: | = | N/A | |
| (–) Senior Exemption Loss: | – | N/A | |
| (–) Exemption Loss: | – | N/A | |
| | | -------------------------- | |
| (=) Taxable Value: | = | N/A | |
Taxing Jurisdiction
| Owner: | POLNELL PROPERTIES, LLC | | |
| % Ownership: | 100.0000000000% | | |
| Total Value: | N/A | | |
| Tax Area: | 119 - APPRAISER-OH Schl Dist, outside OH, vacant & 50 acres or less |
| CF | Conservation Futures | N/A | N/A | N/A | N/A | | |
| WCD | Whidbey Conservation District | N/A | N/A | N/A | N/A | | |
| CEM1 | Cemetery #1 | N/A | N/A | N/A | N/A | | |
| HOBOND | Hospital BOND | N/A | N/A | N/A | N/A | | |
| HOGEN | Hospital GEN | N/A | N/A | N/A | N/A | | |
| CE | County Current Expense | N/A | N/A | N/A | N/A | | |
| CR | County Roads | N/A | N/A | N/A | N/A | | |
| ISLANDEMS | Hospital GEN (EMS) | N/A | N/A | N/A | N/A | | |
| LIB | Library Sno-Isle GEN | N/A | N/A | N/A | N/A | | |
| NWHIDPRMT | P & R N Whidbey GEN | N/A | N/A | N/A | N/A | | |
| SCH201MO | School 201 Enrichment | N/A | N/A | N/A | N/A | | |
| ST | State School | N/A | N/A | N/A | N/A | | |
| ST2 | State School Part 2 | N/A | N/A | N/A | N/A | | |
| | Total Tax Rate: | N/A | | | | | |
| | | | | Taxes w/Current Exemptions: | N/A | | |
| | | | | Taxes w/o Exemptions: | N/A | | |
Improvement / Building
Sketch
| No sketches available for this property. |
Property Image
Land
| 1 | 14 | SQ (08001-12000) | 0.0000 | 0.00 | 0.00 | 0.00 | 1.00 | N/A | N/A |
Roll Value History
| 2026 | N/A | N/A | N/A | N/A | N/A |
| 2025 | $0 | $50,000 | $0 | $50,000 | $50,000 |
| 2024 | $0 | $50,000 | $0 | $50,000 | $50,000 |
| 2023 | $0 | $50,000 | $0 | $50,000 | $50,000 |
| 2022 | $0 | $40,000 | $0 | $40,000 | $40,000 |
| 2021 | $0 | $40,000 | $0 | $40,000 | $40,000 |
| 2020 | $0 | $40,000 | $0 | $40,000 | $40,000 |
| 2019 | $0 | $40,000 | $0 | $40,000 | $40,000 |
| 2018 | $0 | $5,000 | $0 | $5,000 | $5,000 |
| 2017 | $0 | $5,000 | $0 | $5,000 | $5,000 |
| 2016 | $0 | $5,000 | $0 | $5,000 | $5,000 |
| 2015 | $0 | $5,000 | $0 | $5,000 | $5,000 |
| 2014 | $0 | $5,000 | $0 | $5,000 | $5,000 |
| 2013 | $0 | $5,000 | $0 | $5,000 | $5,000 |
| 2012 | $0 | $6,000 | $0 | $6,000 | $6,000 |
| 2011 | $0 | $6,000 | $0 | $6,000 | $6,000 |
| 2010 | $0 | $6,000 | $0 | $6,000 | $6,000 |
| 2009 | $0 | $6,000 | $0 | $6,000 | $6,000 |
| 2008 | $0 | $10,000 | $0 | $10,000 | $10,000 |
| 2007 | $0 | $18,000 | $0 | $18,000 | $18,000 |
Deed and Sales History
| 1 | 06/12/2025 | WD | Warranty Deed | KINGS-MEN CONSTRUCTION | POLNELL PROPERTIES, LLC | | | $58,000.00 | 63992 | 4587602 |
| 2 | 06/28/2021 | WD | Warranty Deed | FAKKEMA, ROBERT P | KINGS-MEN CONSTRUCTION | | | $42,000.00 | 48917 | 4523094 |
|   | |
| 3 | 12/01/1982 | QCD | Quit Claim Deed | FAKKEMA, R P | FAKKEMA, ROBERT P | | | $0.00 | 23099 | 404066 |
| 4 | 01/01/1900 | OTHER | Other - Misc. Documents | Unknown | FAKKEMA, R P | | | $0.00 | 0 | 0 |
Payout Agreement
| No payout information available.. |