Property
Account |
| Property ID: | 242053 | Abbreviated Legal Description: | DEC PK VU 2 LOT 13 BLK 1 |
| Geographic ID: | S6455-02-01013-0 | Agent Code: | |
| Type: | Real | | |
| Tax Area: | 119 - APPRAISER-OH Schl Dist, outside OH, vacant & 50 acres or less | Land Use Code | 99 |
| Open Space: | N | DFL | N |
| Historic Property: | N | Remodel Property: | N |
| Multi-Family Redevelopment: | N | | |
| Township: | | Section: | |
| Range: | |
Location |
| Address: | | Mapsco: | |
| Neighborhood: | Cycle 6 | Map ID: | 273 |
| Neighborhood CD: | 6 |
Owner |
| Name: | NEW 2 U HOMES NW LLC | Owner ID: | 312236 |
| Mailing Address: | 989 S BURLINGTON BLVD, UNIT 441 BURLINGTON, WA 98233 | % Ownership: | 100.0000000000% |
| | | Exemptions: | |
Taxes and Assessment Details
Values
| (+) Improvement Homesite Value: | + | $0 | |
| (+) Improvement Non-Homesite Value: | + | $0 | |
| (+) Land Homesite Value: | + | $0 | |
| (+) Land Non-Homesite Value: | + | $50,000 | |
| (+) Curr Use (HS): | + | $0 | $0 |
| (+) Curr Use (NHS): | + | $0 | $0 |
| | | -------------------------- | |
| (=) Market Value: | = | $50,000 | |
| (–) Productivity Loss: | – | $0 | |
| | | -------------------------- | |
| (=) Subtotal: | = | $50,000 | |
| (+) Senior Appraised Value: | + | $0 | |
| (+) Non-Senior Appraised Value: | + | $50,000 | |
| | | -------------------------- | |
| (=) Total Appraised Value: | = | $50,000 | |
| (–) Senior Exemption Loss: | – | $0 | |
| (–) Exemption Loss: | – | $0 | |
| | | -------------------------- | |
| (=) Taxable Value: | = | $50,000 | |
Taxing Jurisdiction
| Owner: | NEW 2 U HOMES NW LLC | | |
| % Ownership: | 100.0000000000% | | |
| Total Value: | $50,000 | | |
| Tax Area: | 119 - APPRAISER-OH Schl Dist, outside OH, vacant & 50 acres or less |
| CF | Conservation Futures | 0.0313996660 | $50,000 | $50,000 | $1.57 | | |
| CEM1 | Cemetery #1 | 0.0040018856 | $50,000 | $50,000 | $0.20 | | |
| HOBOND | Hospital BOND | 0.1893405597 | $50,000 | $50,000 | $9.47 | | |
| HOGEN | Hospital GEN | 0.3848777722 | $50,000 | $50,000 | $19.24 | | |
| CE | County Current Expense | 0.3674210519 | $50,000 | $50,000 | $18.37 | | |
| CR | County Roads | 0.4614296361 | $50,000 | $50,000 | $23.07 | | |
| ISLANDEMS | Hospital GEN (EMS) | 0.4952018576 | $50,000 | $50,000 | $24.76 | | |
| LIB | Library Sno-Isle GEN | 0.3039084203 | $50,000 | $50,000 | $15.20 | | |
| NWHIDPRMT | P & R N Whidbey GEN | 0.1990272349 | $50,000 | $50,000 | $9.95 | | |
| SCH201MO | School 201 Enrichment | 2.3851112745 | $50,000 | $50,000 | $119.26 | | |
| ST | State School | 1.4761226122 | $50,000 | $50,000 | $73.81 | | |
| ST2 | State School Part 2 | 0.7953803475 | $50,000 | $50,000 | $39.77 | | |
| | Total Tax Rate: | 7.0932223185 | | | | | |
| | | | | Taxes w/Current Exemptions: | $354.67 | | |
| | | | | Taxes w/o Exemptions: | $354.67 | | |
Improvement / Building
Sketch
| No sketches available for this property. |
Property Image
Land
| 1 | 14 | SQ (08001-12000) | 0.0000 | 0.00 | 0.00 | 0.00 | 1.00 | $50,000 | $0 |
Roll Value History
| 2026 | N/A | N/A | N/A | N/A | N/A |
| 2025 | $0 | $50,000 | $0 | $50,000 | $50,000 |
| 2024 | $0 | $50,000 | $0 | $50,000 | $50,000 |
| 2023 | $0 | $50,000 | $0 | $50,000 | $50,000 |
| 2022 | $0 | $40,000 | $0 | $40,000 | $40,000 |
| 2021 | $0 | $40,000 | $0 | $40,000 | $40,000 |
| 2020 | $0 | $40,000 | $0 | $40,000 | $40,000 |
| 2019 | $0 | $40,000 | $0 | $40,000 | $40,000 |
| 2018 | $0 | $5,000 | $0 | $5,000 | $5,000 |
| 2017 | $0 | $5,000 | $0 | $5,000 | $5,000 |
| 2016 | $0 | $5,000 | $0 | $5,000 | $5,000 |
| 2015 | $0 | $5,000 | $0 | $5,000 | $5,000 |
| 2014 | $0 | $5,000 | $0 | $5,000 | $5,000 |
| 2013 | $0 | $5,000 | $0 | $5,000 | $5,000 |
| 2012 | $0 | $6,000 | $0 | $6,000 | $6,000 |
| 2011 | $0 | $6,000 | $0 | $6,000 | $6,000 |
| 2010 | $0 | $6,000 | $0 | $6,000 | $6,000 |
| 2009 | $0 | $6,000 | $0 | $6,000 | $6,000 |
| 2008 | $0 | $10,000 | $0 | $10,000 | $10,000 |
| 2007 | $0 | $18,000 | $0 | $18,000 | $18,000 |
Deed and Sales History
| 1 | 05/01/2024 | WD | Warranty Deed | KINGS-MEN CONSTRUCTION | NEW 2 U HOMES NW LLC | | | $62,500.00 | 59865 | 4572014 |
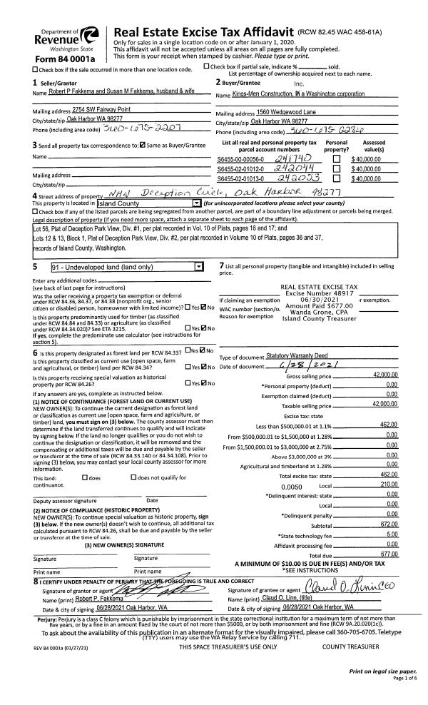
| 2 | 06/28/2021 | WD | Warranty Deed | FAKKEMA, ROBERT P | KINGS-MEN CONSTRUCTION | | | $42,000.00 | 48917 | 4523094 |
|   | |
| 3 | 12/01/1982 | QCD | Quit Claim Deed | KRIEG, K C | FAKKEMA, ROBERT P | | | $0.00 | 23099 | 404066 |
| 4 | 01/01/1900 | OTHER | Other - Misc. Documents | Unknown | KRIEG, K C | | | $0.00 | 0 | 0 |
Payout Agreement
| No payout information available.. |