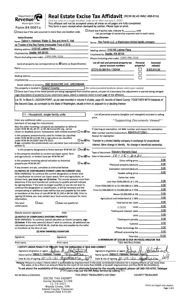
Property
Account |
| Property ID: | 242375 | Abbreviated Legal Description: | DEER LK EST 1 LOT 5 |
| Geographic ID: | S6460-00-00005-0 | Agent Code: | |
| Type: | Real | | |
| Tax Area: | 710 - APPRAISER-S Whid Schl Dist, outside Langley, improved & 1 acre or less | Land Use Code | 11 |
| Open Space: | N | DFL | N |
| Historic Property: | N | Remodel Property: | N |
| Multi-Family Redevelopment: | N | | |
| Township: | | Section: | |
| Range: | |
Location |
| Address: | 4284 CEDAR VISTA DR CLINTON, WA 98236 | Mapsco: | |
| Neighborhood: | Cycle 4 | Map ID: | 804 |
| Neighborhood CD: | 4 |
Owner |
| Name: | HAGEL, KYLE | Owner ID: | 302552 |
| Mailing Address: | TALENA N HAGEL 16701 76TH AVE NE KENMORE, WA 98028 | % Ownership: | 100.0000000000% |
| | | Exemptions: | |
Taxes and Assessment Details
Values
| (+) Improvement Homesite Value: | + | $0 | |
| (+) Improvement Non-Homesite Value: | + | $527,702 | |
| (+) Land Homesite Value: | + | $0 | |
| (+) Land Non-Homesite Value: | + | $350,000 | |
| (+) Curr Use (HS): | + | $0 | $0 |
| (+) Curr Use (NHS): | + | $0 | $0 |
| | | -------------------------- | |
| (=) Market Value: | = | $877,702 | |
| (–) Productivity Loss: | – | $0 | |
| | | -------------------------- | |
| (=) Subtotal: | = | $877,702 | |
| (+) Senior Appraised Value: | + | $0 | |
| (+) Non-Senior Appraised Value: | + | $877,702 | |
| | | -------------------------- | |
| (=) Total Appraised Value: | = | $877,702 | |
| (–) Senior Exemption Loss: | – | $0 | |
| (–) Exemption Loss: | – | $0 | |
| | | -------------------------- | |
| (=) Taxable Value: | = | $877,702 | |
Taxing Jurisdiction
| Owner: | HAGEL, KYLE | | |
| % Ownership: | 100.0000000000% | | |
| Total Value: | $877,702 | | |
| Tax Area: | 710 - APPRAISER-S Whid Schl Dist, outside Langley, improved & 1 acre or less |
| CF | Conservation Futures | 0.0313996660 | $877,702 | $877,702 | $27.56 | | |
| FIRE3 | Fire & Rescue Dist #3 S Whidbey GEN | 1.2130821753 | $877,702 | $877,702 | $1,064.72 | | |
| HOBOND | Hospital BOND | 0.1893405597 | $877,702 | $877,702 | $166.18 | | |
| HOGEN | Hospital GEN | 0.3848777722 | $877,702 | $877,702 | $337.81 | | |
| CE | County Current Expense | 0.3674210519 | $877,702 | $877,702 | $322.49 | | |
| CR | County Roads | 0.4614296361 | $877,702 | $877,702 | $405.00 | | |
| ISLANDEMS | Hospital GEN (EMS) | 0.4952018576 | $877,702 | $877,702 | $434.64 | | |
| LIB | Library Sno-Isle GEN | 0.3039084203 | $877,702 | $877,702 | $266.74 | | |
| PORTWHID | Port of S Whidbey GEN | 0.1086004714 | $877,702 | $877,702 | $95.32 | | |
| SCH206BOND | School 206 BOND | 0.5960237832 | $877,702 | $877,702 | $523.13 | | |
| SCH206CAP | School 206 CP | 0.3066144020 | $877,702 | $877,702 | $269.12 | | |
| SCH206MO | School 206 Enrichment | 0.4808755445 | $877,702 | $877,702 | $422.07 | | |
| ST | State School | 1.4761226122 | $877,702 | $877,702 | $1,295.60 | | |
| ST2 | State School Part 2 | 0.7953803475 | $877,702 | $877,702 | $698.11 | | |
| SWHIDPRBD | P & R S Whidbey BOND | 0.0144185398 | $877,702 | $877,702 | $12.66 | | |
| SWHIDPRBD3 | P & R S Whidbey BOND3 | 0.1483535547 | $877,702 | $877,702 | $130.21 | | |
| SWHIDPRMT | P & R S Whidbey GEN | 0.4600000000 | $877,702 | $877,702 | $403.74 | | |
| | Total Tax Rate: | 7.8330503944 | | | | | |
| | | | | Taxes w/Current Exemptions: | $6,875.10 | | |
| | | | | Taxes w/o Exemptions: | $6,875.10 | | |
Improvement / Building
| Improvement #1: | RESIDENTIAL | State Code: | Y | 2433.5 sqft | Value: | $527,702 |
| Bathrooms: | 3 | Bedrooms: | 2 | | Ceiling: | DRYWALL PAINTED | Cooling: | HEAT PUMP/CONV/V | | Exterior Wall/Cover: | WOOD SIDING | Floor Covering: | CARPET/VINYL 80-20 | | Floor Structure: | WOOD W/SUBFLOOR | Foundation: | CONCRETE | | Interior Finish: | DRYWALL PAINT | Plumbing Fixture Cnt: | 14 | | Roof Slope: | 4" IN 12" | Roof Structure/Cover: | BEAM ASPHALT |
|
| | Type | Description | Class CD | Sub Class CD | Year Built | Area |
| | BAS | BASE/MAIN FLOOR | 4 | 0 | 1980 | 1443.5 |
| | UB8 | BASEMENT UNFINISHED 8" | 4 | 0 | 1980 | 314.0 |
| | DWN | DOWNSTAIRS LIVING AREA | 4 | 0 | 1980 | 990.0 |
| | OP1 | OPEN PORCH SLAB | 4 | 0 | 1980 | 132.0 |
| | AGR | ATTACHED GARAGE | 4 | 0 | 1980 | 440.0 |
| | OWP | OPEN WOOD PORCH W/STEPS | 4 | 0 | 1980 | 627.0 |
| | OWR | OPEN WOOD PORCH W/STEPS/ROOF | 4 | 0 | 1980 | 72.0 |
| | oPRS | PIER RESDK | 4 | 0 | 1980 | 0.0 |
Sketch
Property Image
Land
| 1 | 14 | SQ (08001-12000) | 0.0000 | 0.00 | 0.00 | 0.00 | 1.00 | $350,000 | $0 |
Roll Value History
| 2026 | N/A | N/A | N/A | N/A | N/A |
| 2025 | $527,702 | $350,000 | $0 | $877,702 | $877,702 |
| 2024 | $534,040 | $330,000 | $0 | $864,040 | $864,040 |
| 2023 | $540,378 | $330,000 | $0 | $870,378 | $870,378 |
| 2022 | $495,065 | $310,000 | $0 | $805,065 | $805,065 |
| 2021 | $331,659 | $250,000 | $0 | $581,659 | $581,659 |
| 2020 | $283,290 | $220,000 | $0 | $503,290 | $503,290 |
| 2019 | $203,000 | $270,000 | $0 | $473,000 | $473,000 |
| 2018 | $203,693 | $200,000 | $0 | $403,693 | $403,693 |
| 2017 | $202,000 | $200,000 | $0 | $402,000 | $402,000 |
| 2016 | $199,273 | $200,000 | $0 | $399,273 | $399,273 |
| 2015 | $202,000 | $200,000 | $0 | $402,000 | $402,000 |
| 2014 | $174,940 | $100,000 | $0 | $274,940 | $274,940 |
| 2013 | $177,612 | $100,000 | $0 | $277,612 | $277,612 |
| 2012 | $180,284 | $81,000 | $0 | $261,284 | $261,284 |
| 2011 | $182,955 | $90,000 | $0 | $272,955 | $272,955 |
| 2010 | $197,085 | $90,000 | $0 | $287,085 | $287,085 |
| 2009 | $205,688 | $135,000 | $0 | $340,688 | $340,688 |
| 2008 | $207,888 | $120,000 | $0 | $327,888 | $327,888 |
| 2007 | $210,586 | $120,000 | $0 | $330,586 | $330,586 |
Deed and Sales History
| 1 | 12/28/2021 | WD | Warranty Deed | VICTOR, JASON EMILE | HAGEL, KYLE | | | $1,350,000.00 | 51554 | 4537125 |
| 2 | 11/20/2014 | WD | Warranty Deed | HARRIS, K R | VICTOR, JASON EMILE | | | $418,000.00 | 17711 | 4369134 |
| 3 | 12/01/1978 | OTHER | Other - Misc. Documents | Unknown | HARRIS, K R | | | $15,000.00 | 90023 | 345469 |
Payout Agreement
| No payout information available.. |