| 1 | 06/01/2018 | WD | Warranty Deed | MUTINY BAY DEVELOPMENT COMPANY | TOMISSER, JAMES | | | $398,500.00 | 34372 | 4445488 |
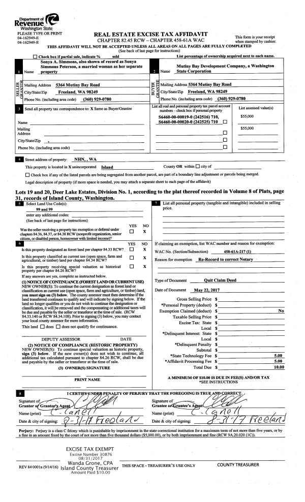
| 2 | 08/22/2017 | QCD | Quit Claim Deed | MUTINY BAY DEVELOPMENT COMPANY | MUTINY BAY DEVELOPMENT COMPANY | | | $0.00 | 30876 | 4429235 |
| 3 | 05/22/2017 | WD | Warranty Deed | SIMMONS PETERSON, SONYA A | MUTINY BAY DEVELOPMENT COMPANY | | | $0.00 | 29486 | 4423321 |
| 4 | 04/13/2001 | QCD | Quit Claim Deed | SIMMONS PETERSON, SONYA A | SIMMONS PETERSON, SONYA A | | | $0.00 | 11193 | 20029445 |
| 5 | 04/13/2001 | QCD | Quit Claim Deed | SIMMONS, SONYA A | SIMMONS PETERSON, SONYA A | | | $0.00 | 11193 | 20029445 |
| 6 | 07/01/1982 | TRUSTEED | Trustee's Deed | FREDERICK, JOE R | SIMMONS, SONYA A | | | $7,500.00 | 21688 | 39835 |
| 7 | 01/01/1900 | OTHER | Other - Misc. Documents | Unknown | FREDERICK, JOE R | | | $0.00 | 0 | 0 |